Property
Account |
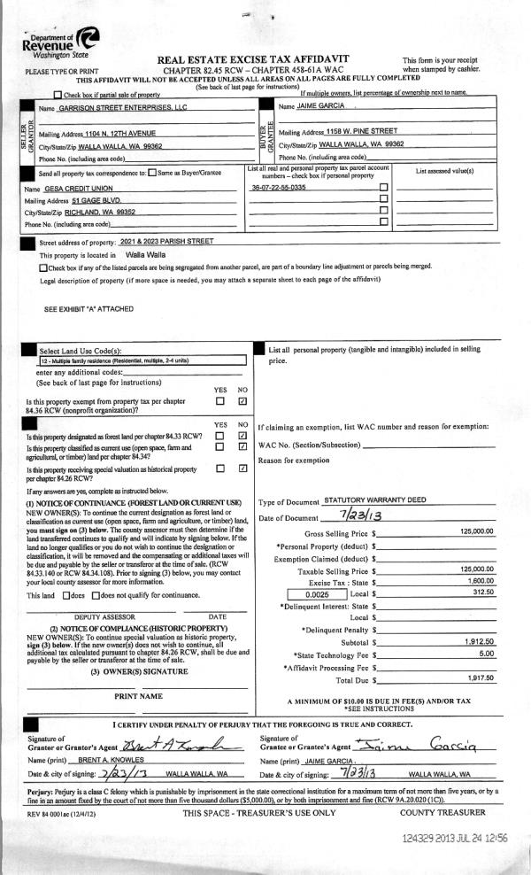
| Property ID: | 34406 | Abbreviated Legal Description: | TAUSICK PARK ELY PTN LOT 10; NLY PTN LOT 11 BLK 3 (THIS IS LOT 10OF BLA SURVEY) |
| Parcel Number: | 360722550335 | Agent Code: | |
| Type: | Real | | |
| Tax Area: | 1 - OL-140-F | Land Use Code | 12 |
| Open Space: | N | DFL | N |
| Historic Property: | N | Remodel Property: | N |
| Multi-Family Redevelopment: | N | | |
| Township: | 7 | Section: | 22 |
| Range: | 36 |
Location |
| Address: | 2021 PARISH ST WA 99362 | Mapsco: | |
| Neighborhood: | A Duplex | Map ID: | |
| Neighborhood CD: | 413031 |
Owner |
| Name: | LOCKEN DAVID L & KIMBERLY A | Owner ID: | 6130 |
| Mailing Address: | 1162 MAGNOLIA DR WALLA WALLA, WA 99362 | % Ownership: | 100.0000000000% |
| | | Exemptions: | |
Taxes and Assessment Details
Property Tax Information as of
02/21/2026
Click on "Statement Details" to expand or collapse a tax statement.
* Please enter a valid date ** Please enter a valid date *
Statement Details |
| | TOTAL: | $0.00 | $0.00 | $0.00 | $0.00 | $0.00 | $0.00 |
|
| | $0.00 | $0.00 | $0.00 | $0.00 | $0.00 | $0.00 |
Values
| (+) Improvement Homesite Value: | + | $0 | |
| (+) Improvement Non-Homesite Value: | + | $257,300 | |
| (+) Land Homesite Value: | + | $0 | |
| (+) Land Non-Homesite Value: | + | $80,050 | |
| (+) Curr Use (HS): | + | $0 | $0 |
| (+) Curr Use (NHS): | + | $0 | $0 |
| | | -------------------------- | |
| (=) Market Value: | = | $337,350 | |
| (–) Productivity Loss: | – | $0 | |
| | | -------------------------- | |
| (=) Subtotal: | = | $337,350 | |
| (+) Senior Appraised Value: | + | $0 | |
| (+) Non-Senior Appraised Value: | + | $337,350 | |
| | | -------------------------- | |
| (=) Total Appraised Value: | = | $337,350 | |
| (–) Senior Exemption Loss: | – | $0 | |
| (–) Exemption Loss: | – | $0 | |
| | | -------------------------- | |
| (=) Taxable Value: | = | $337,350 | |
Taxing Jurisdiction
| Owner: | LOCKEN DAVID L & KIMBERLY A | | |
| % Ownership: | 100.0000000000% | | |
| Total Value: | $337,350 | | |
| Tax Area: | 1 - OL-140-F |
| CERFD | CURRENT EXPENSE REFUND 010 | 0.0000000000 | $337,350 | $337,350 | $0.00 | | |
| CURREXP | CURRENT EXPENSE 010 | 1.0175366760 | $337,350 | $337,350 | $343.27 | | |
| HUMNSERV | HUMAN SERVICES 119 | 0.0250000000 | $337,350 | $337,350 | $8.43 | | |
| SLDREL | SOLDIERS RELIEF 121 | 0.0155990005 | $337,350 | $337,350 | $5.26 | | |
| EMERGSER | EMS 147 | 0.3792580840 | $337,350 | $337,350 | $127.94 | | |
| EMSRFD | EMS REFUND 147 | 0.0000000000 | $337,350 | $337,350 | $0.00 | | |
| PORTRFD | PORT REFUND 640 | 0.0000000000 | $337,350 | $337,350 | $0.00 | | |
| PORTWWGEN | PORT OF WW 640 | 0.2460186015 | $337,350 | $337,350 | $82.99 | | |
| SD140BOND | SD #140 BOND 764 | 0.8342371393 | $337,350 | $337,350 | $281.43 | | |
| SD140GEN | SD #140 GENERAL 760 | 2.0646500647 | $337,350 | $337,350 | $696.51 | | |
| ST2 | STATE SCHOOL PART 2 600 | 0.8131451643 | $337,350 | $337,350 | $274.31 | | |
| STATESCHL | STATE SCHOOL 600 | 1.5158548041 | $337,350 | $337,350 | $511.37 | | |
| STREFUND | STATE REFUND LEVY 603 | 0.0000000000 | $337,350 | $337,350 | $0.00 | | |
| CWWBOND | C OF WW BOND 643 | 0.2760494372 | $337,350 | $337,350 | $93.13 | | |
| CWWGEN | CITY OF WW 631 | 1.6100204973 | $337,350 | $337,350 | $543.14 | | |
| CWWRFD | CITY OF WALLA WALLA REFUND 631 | 0.0000000000 | $337,350 | $337,350 | $0.00 | | |
| | Total Tax Rate: | 8.7973694689 | | | | | |
| | | | | Taxes w/Current Exemptions: | $2,967.78 | | |
| | | | | Taxes w/o Exemptions: | $2,967.78 | | |
Improvement / Building
| Improvement #1: | RESIDENTIAL | State Code: | 12 | 1963.0 sqft | Value: | $257,300 |
| Exterior Wall: | PLYWOOD | Foundation: | SLAB | | Heating/Cooling: | FORCED AIR | Number of Bathrooms: | 2 | | Number of Bedrooms: | 5 | Plumbing: | 12 | | Roof Covering: | COMP SHINGLE |   |   |
|
| | Type | Description | Class CD | Sub Class CD | Year Built | Area |
| | MA | Main Area | 1 | 30 | 1975 | 1963.0 |
| | SI1 | SITE IMPROVEMENT | 1 | 30 | 0 | 2.5 |
| | ATG | Attached Garage | 1 | 30 | 1975 | 273.0 |
Sketch
Property Image
Land
| 1 | RES 1 | Converted: Residential | 0.2300 | 10019.00 | 0.00 | 0.00 | 1.00 | $80,050 | $0 |
Roll Value History
| 2026 | N/A | N/A | N/A | N/A | N/A |
| 2025 | $260,200 | $80,100 | $0 | $340,300 | $340,300 |
| 2024 | $260,200 | $80,100 | $0 | $340,300 | $340,300 |
| 2023 | $257,300 | $80,050 | $0 | $337,350 | $337,350 |
| 2022 | $269,170 | $52,500 | $0 | $321,670 | $321,670 |
| 2021 | $153,810 | $52,500 | $0 | $206,310 | $206,310 |
| 2020 | $123,050 | $52,500 | $0 | $175,550 | $175,550 |
| 2019 | $123,050 | $52,500 | $0 | $175,550 | $175,550 |
| 2018 | $107,000 | $52,500 | $0 | $159,500 | $159,500 |
| 2017 | $107,000 | $52,500 | $0 | $159,500 | $159,500 |
| 2016 | $107,000 | $40,000 | $0 | $147,000 | $147,000 |
| 2015 | $107,000 | $40,000 | $0 | $147,000 | $147,000 |
| 2014 | $107,000 | $40,000 | $0 | $147,000 | $147,000 |
| 2013 | $102,400 | $40,000 | $0 | $142,400 | $142,400 |
| 2012 | $102,400 | $40,000 | $0 | $0 | $0 |
| 2011 | $58,000 | $18,600 | $0 | $0 | $0 |
| 2010 | $102,400 | $40,000 | $0 | $0 | $0 |
Deed and Sales History
| 1 | 05/31/2017 | SWD | STATUTORY WARRANTY DEED | GARCIA JAMIE | LOCKEN DAVID L & KIMBERLY A | | | $170,000.00 | 132510 | 2017-04151 |
| 2 | 07/24/2013 | WARRANTY D | WARRANTY DEED | GARRISON STREET ENTERPRISES LL | GARCIA, JAMIE | | | $125,000.00 | 124329 | 2013-07460 |
Payout Agreement
| No payout information available.. |