Property
Account |
| Property ID: | 34387 | Abbreviated Legal Description: | (WILLIAMS REPLAT) REPLAT OF LOTS 6-14 OF BLK 1 OF COUNTRY GLENESTATES LOT 14 BLK 1 |
| Parcel Number: | 360731870109 | Agent Code: | |
| Type: | Real | | |
| Tax Area: | 5 - OL-140 | Land Use Code | 11 |
| Open Space: | N | DFL | N |
| Historic Property: | N | Remodel Property: | N |
| Multi-Family Redevelopment: | N | | |
| Township: | 7 | Section: | 31 |
| Range: | 36 |
Location |
| Address: | 1074 MERCITA DR WA 99362 | Mapsco: | |
| Neighborhood: | E SRF | Map ID: | |
| Neighborhood CD: | 116011 |
Owner |
| Name: | WILSON DANNY K & RENEE L | Owner ID: | 62473 |
| Mailing Address: | 1074 MERCITA DR WALLA WALLA, WA 99362 | % Ownership: | 100.0000000000% |
| | | Exemptions: | |
Taxes and Assessment Details
Property Tax Information as of
02/21/2026
Click on "Statement Details" to expand or collapse a tax statement.
* Please enter a valid date ** Please enter a valid date *
Statement Details |
| | TOTAL: | $0.00 | $0.00 | $0.00 | $0.00 | $0.00 | $0.00 |
|
| | $0.00 | $0.00 | $0.00 | $0.00 | $0.00 | $0.00 |
Values
| (+) Improvement Homesite Value: | + | $0 | |
| (+) Improvement Non-Homesite Value: | + | $415,900 | |
| (+) Land Homesite Value: | + | $0 | |
| (+) Land Non-Homesite Value: | + | $100,000 | |
| (+) Curr Use (HS): | + | $0 | $0 |
| (+) Curr Use (NHS): | + | $0 | $0 |
| | | -------------------------- | |
| (=) Market Value: | = | $515,900 | |
| (–) Productivity Loss: | – | $0 | |
| | | -------------------------- | |
| (=) Subtotal: | = | $515,900 | |
| (+) Senior Appraised Value: | + | $0 | |
| (+) Non-Senior Appraised Value: | + | $515,900 | |
| | | -------------------------- | |
| (=) Total Appraised Value: | = | $515,900 | |
| (–) Senior Exemption Loss: | – | $0 | |
| (–) Exemption Loss: | – | $0 | |
| | | -------------------------- | |
| (=) Taxable Value: | = | $515,900 | |
Taxing Jurisdiction
| Owner: | WILSON DANNY K & RENEE L | | |
| % Ownership: | 100.0000000000% | | |
| Total Value: | $515,900 | | |
| Tax Area: | 5 - OL-140 |
| CERFD | CURRENT EXPENSE REFUND 010 | 0.0000000000 | $515,900 | $515,900 | $0.00 | | |
| CURREXP | CURRENT EXPENSE 010 | 1.0175366760 | $515,900 | $515,900 | $524.95 | | |
| HUMNSERV | HUMAN SERVICES 119 | 0.0250000000 | $515,900 | $515,900 | $12.90 | | |
| SLDREL | SOLDIERS RELIEF 121 | 0.0155990005 | $515,900 | $515,900 | $8.05 | | |
| EMERGSER | EMS 147 | 0.3792580840 | $515,900 | $515,900 | $195.66 | | |
| EMSRFD | EMS REFUND 147 | 0.0000000000 | $515,900 | $515,900 | $0.00 | | |
| PORTRFD | PORT REFUND 640 | 0.0000000000 | $515,900 | $515,900 | $0.00 | | |
| PORTWWGEN | PORT OF WW 640 | 0.2460186015 | $515,900 | $515,900 | $126.92 | | |
| SD140BOND | SD #140 BOND 764 | 0.8342371393 | $515,900 | $515,900 | $430.38 | | |
| SD140GEN | SD #140 GENERAL 760 | 2.0646500647 | $515,900 | $515,900 | $1,065.15 | | |
| ST2 | STATE SCHOOL PART 2 600 | 0.8131451643 | $515,900 | $515,900 | $419.50 | | |
| STATESCHL | STATE SCHOOL 600 | 1.5158548041 | $515,900 | $515,900 | $782.03 | | |
| STREFUND | STATE REFUND LEVY 603 | 0.0000000000 | $515,900 | $515,900 | $0.00 | | |
| CWWBOND | C OF WW BOND 643 | 0.2760494372 | $515,900 | $515,900 | $142.41 | | |
| CWWGEN | CITY OF WW 631 | 1.6100204973 | $515,900 | $515,900 | $830.61 | | |
| CWWRFD | CITY OF WALLA WALLA REFUND 631 | 0.0000000000 | $515,900 | $515,900 | $0.00 | | |
| | Total Tax Rate: | 8.7973694689 | | | | | |
| | | | | Taxes w/Current Exemptions: | $4,538.56 | | |
| | | | | Taxes w/o Exemptions: | $4,538.56 | | |
Improvement / Building
| Improvement #1: | RESIDENTIAL | State Code: | 11 | 1968.0 sqft | Value: | $415,900 |
| Exterior Wall: | CEMENT FIBER | Heating/Cooling: | HEAT PUMP | | Number of Bathrooms: | 2.5 | Number of Bedrooms: | 3 | | Plumbing: | 12 | Roof Covering: | COMP SHINGLE |
|
| | Type | Description | Class CD | Sub Class CD | Year Built | Area |
| | MA | Main Area | 1 | 40 | 2012 | 1968.0 |
| | ATG | Attached Garage | 1 | 40 | 2012 | 878.0 |
| | RPC | OPEN PORCH W/ROOF , CEILED | 1 | 40 | 2012 | 416.0 |
| | SI1 | SITE IMPROVEMENT | 1 | 40 | 2012 | 4.0 |
| | RPC | OPEN PORCH W/ROOF , CEILED | 1 | 40 | 2012 | 102.0 |
| | RPC | OPEN PORCH W/ROOF , CEILED | 1 | 40 | 2012 | 102.0 |
Sketch
Property Image
Land
| 1 | RES 1 | Converted: Residential | 0.2931 | 12767.00 | 0.00 | 0.00 | 1.00 | $100,000 | $0 |
Roll Value History
| 2026 | N/A | N/A | N/A | N/A | N/A |
| 2025 | $415,900 | $150,000 | $0 | $565,900 | $565,900 |
| 2024 | $415,900 | $100,000 | $0 | $515,900 | $515,900 |
| 2023 | $415,900 | $100,000 | $0 | $515,900 | $515,900 |
| 2022 | $378,090 | $100,000 | $0 | $478,090 | $478,090 |
| 2021 | $360,090 | $100,000 | $0 | $460,090 | $460,090 |
| 2020 | $313,120 | $100,000 | $0 | $413,120 | $413,120 |
| 2019 | $323,120 | $90,000 | $0 | $413,120 | $413,120 |
| 2018 | $293,750 | $90,000 | $0 | $383,750 | $383,750 |
| 2017 | $279,760 | $90,000 | $0 | $369,760 | $369,760 |
| 2016 | $279,760 | $90,000 | $0 | $369,760 | $369,760 |
| 2015 | $279,760 | $90,000 | $0 | $369,760 | $369,760 |
| 2014 | $215,200 | $90,000 | $0 | $305,200 | $305,200 |
| 2013 | $215,200 | $90,000 | $0 | $305,200 | $305,200 |
| 2012 | $0 | $90,000 | $0 | $0 | $0 |
| 2011 | $0 | $90,000 | $0 | $0 | $0 |
| 2010 | $0 | $90,000 | $0 | $0 | $0 |
| 2009 | $0 | $90,000 | $0 | $0 | $0 |
| 2008 | $0 | $50,000 | $0 | $0 | $0 |
| 2007 | $0 | $50,000 | $0 | $0 | $0 |
Deed and Sales History
| 1 | 01/23/2018 | SWD | STATUTORY WARRANTY DEED | VUCHETICH MARK A & CHERINE R | WILSON DANNY K & RENEE L | | | $429,000.00 | 134037 | 2018-00648 |
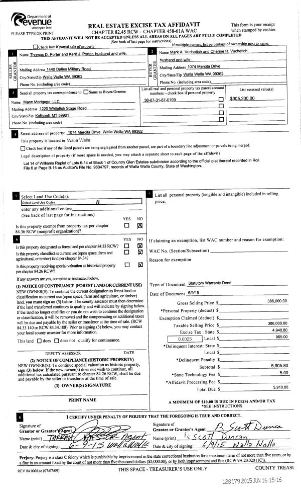
| 2 | 06/16/2015 | SWD | STATUTORY WARRANTY DEED | PORTER THOMAS D & KERRI J | VUCHETICH MARK A & CHERINE R | | | $386,000.00 | 128179 | 2015-05055 |
| 3 | 11/14/2012 | WARRANTY D | WARRANTY DEED | SR HOMES LLC | PORTER, THOMAS D & KERRI J | | | $327,465.00 | 122986 | 2012-10051 |
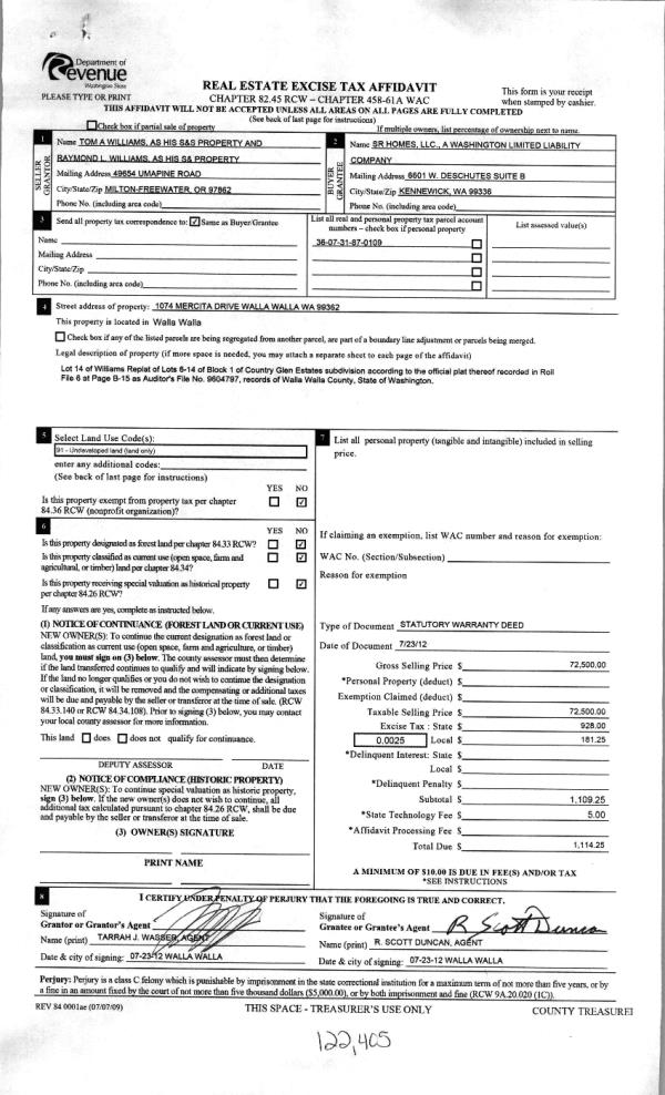
| 4 | 07/27/2012 | WARRANTY D | WARRANTY DEED | WILLIAMS, RAYMOND L | SR HOMES LLC | | | $72,500.00 | 122405 | 2012-06418 |
| 5 | 11/16/2011 | WARRANTY D | WARRANTY DEED | WILLIAMS, CATHERINE ET AL | WILLIAMS, RAYMOND L | | | | 85886 | 2011-09000 |
| 6 | | WARRANTY D | WARRANTY DEED | | | | | | 0 | |
Payout Agreement
| No payout information available.. |