Property
Account |
| Property ID: | 34380 | Abbreviated Legal Description: | EDAIR VISTAS REPLAT LOT 2 BLK 2 |
| Parcel Number: | 360715510202 | Agent Code: | |
| Type: | Real | | |
| Tax Area: | 5 - OL-140 | Land Use Code | 11 |
| Open Space: | N | DFL | N |
| Historic Property: | N | Remodel Property: | N |
| Multi-Family Redevelopment: | N | | |
| Township: | 7 | Section: | 15 |
| Range: | 36 |
Location |
| Address: | 925 SHASTA DR WA 99362 | Mapsco: | |
| Neighborhood: | A-SFR | Map ID: | |
| Neighborhood CD: | 313011 |
Owner |
| Name: | MAKKOS SUZANNA & PAUL | Owner ID: | 69673 |
| Mailing Address: | 1728 S CARMELINA AVE LOS ANGELES, CA 90025 | % Ownership: | 100.0000000000% |
| | | Exemptions: | |
Taxes and Assessment Details
Values
| (+) Improvement Homesite Value: | + | $0 | |
| (+) Improvement Non-Homesite Value: | + | $347,070 | |
| (+) Land Homesite Value: | + | $0 | |
| (+) Land Non-Homesite Value: | + | $90,000 | |
| (+) Curr Use (HS): | + | $0 | $0 |
| (+) Curr Use (NHS): | + | $0 | $0 |
| | | -------------------------- | |
| (=) Market Value: | = | $437,070 | |
| (–) Productivity Loss: | – | $0 | |
| | | -------------------------- | |
| (=) Subtotal: | = | $437,070 | |
| (+) Senior Appraised Value: | + | $0 | |
| (+) Non-Senior Appraised Value: | + | $437,070 | |
| | | -------------------------- | |
| (=) Total Appraised Value: | = | $437,070 | |
| (–) Senior Exemption Loss: | – | $0 | |
| (–) Exemption Loss: | – | $0 | |
| | | -------------------------- | |
| (=) Taxable Value: | = | $437,070 | |
Taxing Jurisdiction
| Owner: | MAKKOS SUZANNA & PAUL | | |
| % Ownership: | 100.0000000000% | | |
| Total Value: | $437,070 | | |
| Tax Area: | 5 - OL-140 |
| CERFD | CURRENT EXPENSE REFUND 010 | 0.0000000000 | $437,070 | $437,070 | $0.00 | | |
| CURREXP | CURRENT EXPENSE 010 | 1.0175366760 | $437,070 | $437,070 | $444.73 | | |
| HUMNSERV | HUMAN SERVICES 119 | 0.0250000000 | $437,070 | $437,070 | $10.93 | | |
| SLDREL | SOLDIERS RELIEF 121 | 0.0155990005 | $437,070 | $437,070 | $6.82 | | |
| EMERGSER | EMS 147 | 0.3792580840 | $437,070 | $437,070 | $165.76 | | |
| EMSRFD | EMS REFUND 147 | 0.0000000000 | $437,070 | $437,070 | $0.00 | | |
| PORTRFD | PORT REFUND 640 | 0.0000000000 | $437,070 | $437,070 | $0.00 | | |
| PORTWWGEN | PORT OF WW 640 | 0.2460186015 | $437,070 | $437,070 | $107.53 | | |
| SD140BOND | SD #140 BOND 764 | 0.8342371393 | $437,070 | $437,070 | $364.62 | | |
| SD140GEN | SD #140 GENERAL 760 | 2.0646500647 | $437,070 | $437,070 | $902.40 | | |
| ST2 | STATE SCHOOL PART 2 600 | 0.8131451643 | $437,070 | $437,070 | $355.40 | | |
| STATESCHL | STATE SCHOOL 600 | 1.5158548041 | $437,070 | $437,070 | $662.53 | | |
| STREFUND | STATE REFUND LEVY 603 | 0.0000000000 | $437,070 | $437,070 | $0.00 | | |
| CWWBOND | C OF WW BOND 643 | 0.2760494372 | $437,070 | $437,070 | $120.65 | | |
| CWWGEN | CITY OF WW 631 | 1.6100204973 | $437,070 | $437,070 | $703.69 | | |
| CWWRFD | CITY OF WALLA WALLA REFUND 631 | 0.0000000000 | $437,070 | $437,070 | $0.00 | | |
| | Total Tax Rate: | 8.7973694689 | | | | | |
| | | | | Taxes w/Current Exemptions: | $3,845.06 | | |
| | | | | Taxes w/o Exemptions: | $3,845.06 | | |
Improvement / Building
| Improvement #1: | RESIDENTIAL | State Code: | 11 | 2024.0 sqft | Value: | $347,070 |
| Exterior Wall: | PLYWOOD | Foundation: | SLAB FOUNDATION | | Heating/Cooling: | WARM & COOLED AIR | Number of Bathrooms: | 2 | | Number of Bedrooms: | 4 | Plumbing: | 11 | | Roof Covering: | COMP SHINGLE |   |   |
|
| | Type | Description | Class CD | Sub Class CD | Year Built | Area |
| | MA | Main Area | 3 | 35 | 1969 | 2024.0 |
| | UPFL | Upper Floor (included in main area) | 3 | 30 | 1969 | 704.0 |
| | SI1 | SITE IMPROVEMENT | 3 | 30 | 1969 | 5.0 |
| | S1F | Single One Story Fireplace | 3 | 30 | 1969 | 1.0 |
| | ATG | Attached Garage | 3 | 30 | 1969 | 440.0 |
| | TOOL | TOOL SHED | 3 | 30 | 1969 | 32.0 |
| | RPC | OPEN PORCH W/ROOF , CEILED | 3 | 30 | 1969 | 88.0 |
| | CPC | COVERED CARPORT/PATIO | 3 | 30 | 1969 | 128.0 |
| | WOD | Wood Deck | 3 | 30 | 1969 | 240.0 |
Sketch
Property Image
Land
| 1 | RES 1 | Converted: Residential | 0.2138 | 9315.00 | 0.00 | 0.00 | 1.00 | $90,000 | $0 |
Roll Value History
| 2026 | N/A | N/A | N/A | N/A | N/A |
| 2025 | $347,070 | $90,000 | $0 | $437,070 | $437,070 |
| 2024 | $347,070 | $90,000 | $0 | $437,070 | $437,070 |
| 2023 | $347,070 | $90,000 | $0 | $437,070 | $437,070 |
| 2022 | $315,520 | $90,000 | $0 | $405,520 | $405,520 |
| 2021 | $268,410 | $55,000 | $0 | $323,410 | $323,410 |
| 2020 | $206,470 | $55,000 | $0 | $261,470 | $261,470 |
| 2019 | $206,470 | $55,000 | $0 | $261,470 | $261,470 |
| 2018 | $179,540 | $55,000 | $0 | $234,540 | $234,540 |
| 2017 | $156,120 | $55,000 | $0 | $211,120 | $211,120 |
| 2016 | $156,120 | $55,000 | $0 | $211,120 | $211,120 |
| 2015 | $137,890 | $55,000 | $0 | $192,890 | $192,890 |
| 2014 | $119,900 | $55,000 | $0 | $174,900 | $174,900 |
| 2013 | $119,900 | $55,000 | $0 | $174,900 | $174,900 |
| 2012 | $149,500 | $55,000 | $0 | $0 | $0 |
| 2011 | $149,500 | $55,000 | $0 | $0 | $0 |
| 2010 | $150,900 | $40,000 | $0 | $0 | $0 |
| 2009 | $183,300 | $40,000 | $0 | $0 | $0 |
| 2008 | $154,200 | $40,000 | $0 | $0 | $0 |
| 2007 | $154,200 | $40,000 | $0 | $0 | $0 |
Deed and Sales History
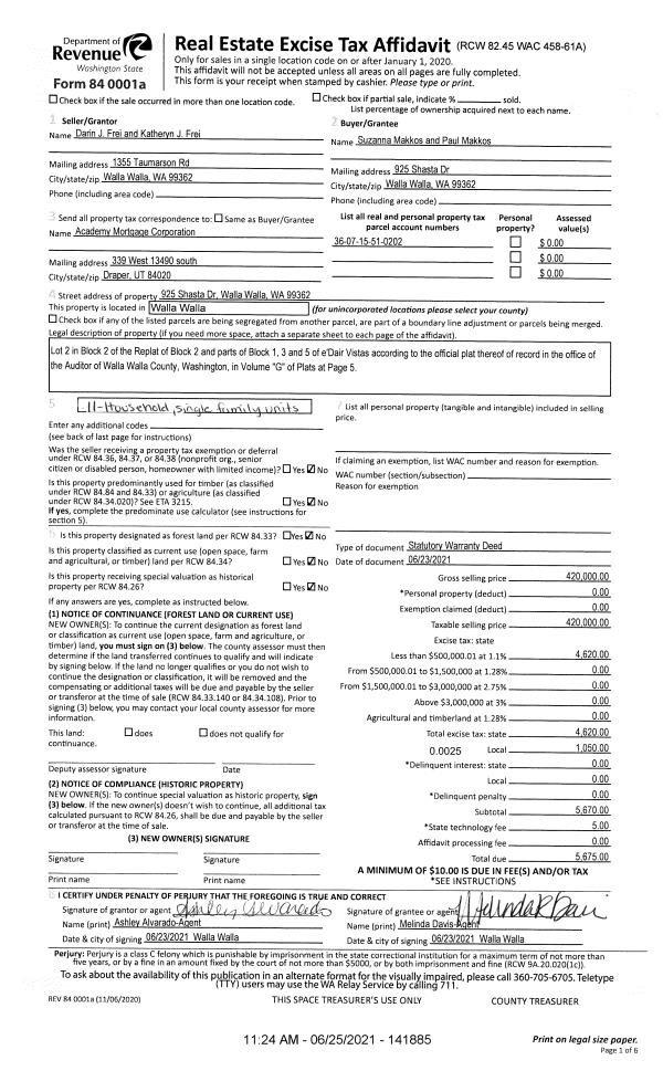
| 1 | 06/25/2021 | SWD | STATUTORY WARRANTY DEED | FREI DARIN J & KATHERYN J | MAKKOS SUZANNA & PAUL | | | $420,000.00 | 141885 | 2021-07722 |
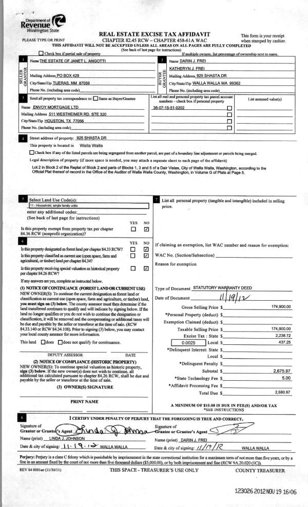
| 2 | 11/19/2012 | WARRANTY D | WARRANTY DEED | ANGOTTI, JANET L ESTATE OF | FREI, DARIN J & KATHERYN J | | | $174,900.00 | 123026 | 2012-10287 |
| 3 | 10/10/1984 | WARRANTY D | WARRANTY DEED | | | | | $74,000.00 | 0 | 1468-407006 |
Payout Agreement
| No payout information available.. |