Property
Account |
| Property ID: | 34360 | Abbreviated Legal Description: | UNNUMBERED BLOCK-ROBERTS TAX 25 BLK 3 |
| Parcel Number: | 360729870328 | Agent Code: | |
| Type: | Real | | |
| Tax Area: | 1 - OL-140-F | Land Use Code | 13 |
| Open Space: | N | DFL | N |
| Historic Property: | N | Remodel Property: | N |
| Multi-Family Redevelopment: | N | | |
| Township: | 7 | Section: | 29 |
| Range: | 36 |
Location |
| Address: | 247 E POPLAR ST WA 99362 | Mapsco: | |
| Neighborhood: | WW Downtown Core Area #2 | Map ID: | |
| Neighborhood CD: | 5342 |
Owner |
| Name: | ALLEN L RENVILLE REVOCABLE TRUST | Owner ID: | 70984 |
| Mailing Address: | 14 DANA POINT RD CHICO, CA 95928 | % Ownership: | 100.0000000000% |
| | | Exemptions: | |
Taxes and Assessment Details
Property Tax Information as of
02/21/2026
Click on "Statement Details" to expand or collapse a tax statement.
* Please enter a valid date ** Please enter a valid date *
Statement Details |
| | TOTAL: | $0.00 | $0.00 | $0.00 | $0.00 | $0.00 | $0.00 |
|
| | $0.00 | $0.00 | $0.00 | $0.00 | $0.00 | $0.00 |
Values
| (+) Improvement Homesite Value: | + | $0 | |
| (+) Improvement Non-Homesite Value: | + | $139,800 | |
| (+) Land Homesite Value: | + | $0 | |
| (+) Land Non-Homesite Value: | + | $109,200 | |
| (+) Curr Use (HS): | + | $0 | $0 |
| (+) Curr Use (NHS): | + | $0 | $0 |
| | | -------------------------- | |
| (=) Market Value: | = | $249,000 | |
| (–) Productivity Loss: | – | $0 | |
| | | -------------------------- | |
| (=) Subtotal: | = | $249,000 | |
| (+) Senior Appraised Value: | + | $0 | |
| (+) Non-Senior Appraised Value: | + | $249,000 | |
| | | -------------------------- | |
| (=) Total Appraised Value: | = | $249,000 | |
| (–) Senior Exemption Loss: | – | $0 | |
| (–) Exemption Loss: | – | $0 | |
| | | -------------------------- | |
| (=) Taxable Value: | = | $249,000 | |
Taxing Jurisdiction
| Owner: | ALLEN L RENVILLE REVOCABLE TRUST | | |
| % Ownership: | 100.0000000000% | | |
| Total Value: | $249,000 | | |
| Tax Area: | 1 - OL-140-F |
| CERFD | CURRENT EXPENSE REFUND 010 | 0.0000000000 | $249,000 | $249,000 | $0.00 | | |
| CURREXP | CURRENT EXPENSE 010 | 1.0175366760 | $249,000 | $249,000 | $253.37 | | |
| HUMNSERV | HUMAN SERVICES 119 | 0.0250000000 | $249,000 | $249,000 | $6.23 | | |
| SLDREL | SOLDIERS RELIEF 121 | 0.0155990005 | $249,000 | $249,000 | $3.88 | | |
| EMERGSER | EMS 147 | 0.3792580840 | $249,000 | $249,000 | $94.44 | | |
| EMSRFD | EMS REFUND 147 | 0.0000000000 | $249,000 | $249,000 | $0.00 | | |
| PORTRFD | PORT REFUND 640 | 0.0000000000 | $249,000 | $249,000 | $0.00 | | |
| PORTWWGEN | PORT OF WW 640 | 0.2460186015 | $249,000 | $249,000 | $61.26 | | |
| SD140BOND | SD #140 BOND 764 | 0.8342371393 | $249,000 | $249,000 | $207.73 | | |
| SD140GEN | SD #140 GENERAL 760 | 2.0646500647 | $249,000 | $249,000 | $514.10 | | |
| ST2 | STATE SCHOOL PART 2 600 | 0.8131451643 | $249,000 | $249,000 | $202.47 | | |
| STATESCHL | STATE SCHOOL 600 | 1.5158548041 | $249,000 | $249,000 | $377.45 | | |
| STREFUND | STATE REFUND LEVY 603 | 0.0000000000 | $249,000 | $249,000 | $0.00 | | |
| CWWBOND | C OF WW BOND 643 | 0.2760494372 | $249,000 | $249,000 | $68.74 | | |
| CWWGEN | CITY OF WW 631 | 1.6100204973 | $249,000 | $249,000 | $400.90 | | |
| CWWRFD | CITY OF WALLA WALLA REFUND 631 | 0.0000000000 | $249,000 | $249,000 | $0.00 | | |
| | Total Tax Rate: | 8.7973694689 | | | | | |
| | | | | Taxes w/Current Exemptions: | $2,190.57 | | |
| | | | | Taxes w/o Exemptions: | $2,190.57 | | |
Improvement / Building
| Improvement #1: | COMMERCIAL | State Code: | 13 | 4335.0 sqft | Value: | $139,800 |
| | Type | Description | Class CD | Sub Class CD | Year Built | Area |
| | MA | Main Area | D | * | 1937 | 4335.0 |
| | BASE | BASEMENT | D | * | 1937 | 1440.0 |
| | BASE | BASEMENT | D | * | 1937 | 425.0 |
| | OUT | OUTSIDE BASEMENT ENTRY | D | * | 1937 | 2.0 |
| | RPO | OPEN PORCH W/ROOF | D | * | 1937 | 75.0 |
| | BLW | WOOD BALCONIES | D | * | 1937 | 84.0 |
| | CPC | COVERED CARPORT/PATIO | D | * | 1937 | 560.0 |
| | DTG | Detached Garage | D | * | 1937 | 800.0 |
| | UPFL | Upper Floor (included in main area) | D | * | 1937 | 470.0 |
| | SI1 | SITE IMPROVEMENT | D | * | 1937 | 6.0 |
Sketch
Property Image
Land
| 1 | COM 1 | Converted: Commercial | 0.2507 | 10922.00 | 0.00 | 0.00 | 1.00 | $109,200 | $0 |
Roll Value History
| 2026 | N/A | N/A | N/A | N/A | N/A |
| 2025 | $450,300 | $120,100 | $0 | $570,400 | $570,400 |
| 2024 | $432,700 | $120,100 | $0 | $552,800 | $552,800 |
| 2023 | $139,800 | $109,200 | $0 | $249,000 | $249,000 |
| 2022 | $139,800 | $109,200 | $0 | $249,000 | $249,000 |
| 2021 | $139,800 | $109,200 | $0 | $249,000 | $249,000 |
| 2020 | $139,800 | $109,200 | $0 | $249,000 | $249,000 |
| 2019 | $139,800 | $109,200 | $0 | $249,000 | $249,000 |
| 2018 | $139,800 | $109,200 | $0 | $249,000 | $249,000 |
| 2017 | $88,800 | $109,200 | $0 | $198,000 | $198,000 |
| 2016 | $88,800 | $109,200 | $0 | $198,000 | $198,000 |
| 2015 | $88,800 | $109,200 | $0 | $198,000 | $198,000 |
| 2014 | $88,800 | $109,200 | $0 | $198,000 | $198,000 |
| 2013 | $88,800 | $109,200 | $0 | $198,000 | $198,000 |
| 2012 | $143,600 | $43,700 | $0 | $0 | $0 |
| 2011 | $143,600 | $43,700 | $0 | $0 | $0 |
| 2010 | $143,600 | $43,700 | $0 | $0 | $0 |
| 2009 | $143,600 | $43,700 | $0 | $0 | $0 |
| 2008 | $143,600 | $43,700 | $0 | $0 | $0 |
| 2007 | $143,600 | $43,700 | $0 | $0 | $0 |
Deed and Sales History
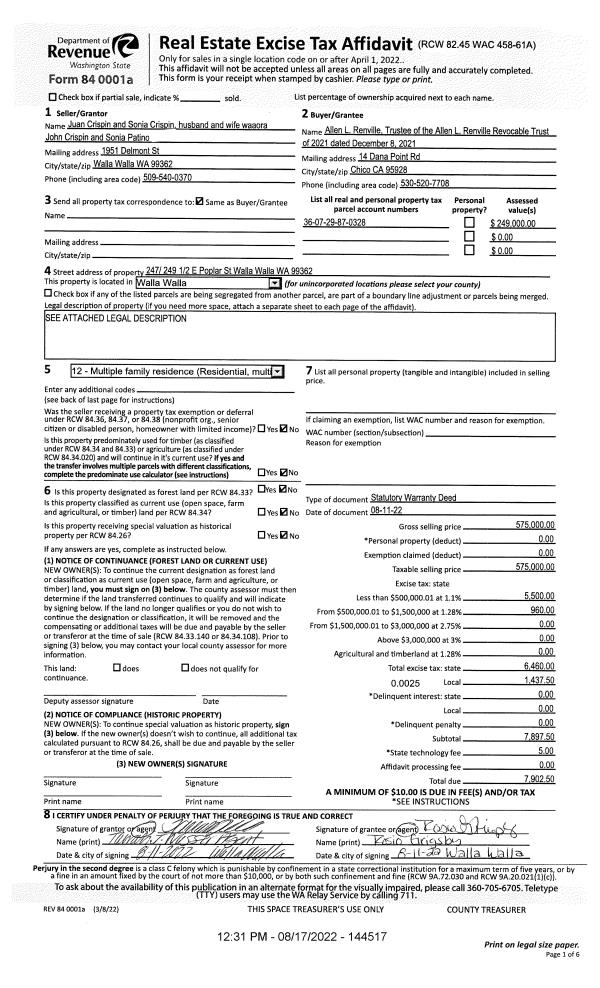
| 1 | 08/17/2022 | SWD | STATUTORY WARRANTY DEED | CRISPIN JOHN & SONIA | ALLEN L RENVILLE REVOCABLE TRUST | | | $575,000.00 | 144517 | 2022-06894 |
| 2 | 01/09/2020 | SWD | STATUTORY WARRANTY DEED | BROETJE ORCHARDS LLC | CRISPIN JOHN & SONIA | | | $310,000.00 | 138389 | 2020-00194 |
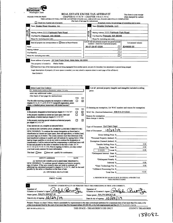
| 3 | 10/29/2019 | QCD | QUIT CLAIM DEED | SNAKE RIVER HOUSING INC | BROETJE ORCHARDS LLC | | | $0.00 | 138082 | 2019-09413 |
| 4 | 11/06/2002 | WARRANTY D | WARRANTY DEED | CENTER FOR SHARING | SNAKE RIVER HOUSING INC | | | $210,000.00 | 100765 | 2002-12672 |
| 5 | 11/15/1995 | WARRANTY D | WARRANTY DEED | | | | | $205,000.00 | 85102 | 2359-511094 |
Payout Agreement
| No payout information available.. |