Property
Account |
| Property ID: | 34343 | Abbreviated Legal Description: | GREENS 1ST LOT 7 BLK 2 |
| Parcel Number: | 360720620207 | Agent Code: | |
| Type: | Real | | |
| Tax Area: | 1 - OL-140-F | Land Use Code | 11 |
| Open Space: | N | DFL | N |
| Historic Property: | N | Remodel Property: | N |
| Multi-Family Redevelopment: | N | | |
| Township: | 7 | Section: | 20 |
| Range: | 36 |
Location |
| Address: | 1022 POMONA ST WA 99362 | Mapsco: | |
| Neighborhood: | A-SFR | Map ID: | |
| Neighborhood CD: | 513011 |
Owner |
| Name: | HART EZRI & DAVID | Owner ID: | 67656 |
| Mailing Address: | EVAN FELIX 1022 POMONA ST WALLA WALLA, WA 99362 | % Ownership: | 100.0000000000% |
| | | Exemptions: | |
Taxes and Assessment Details
Property Tax Information as of
02/21/2026
Click on "Statement Details" to expand or collapse a tax statement.
* Please enter a valid date ** Please enter a valid date *
Statement Details |
| | TOTAL: | $0.00 | $0.00 | $0.00 | $0.00 | $0.00 | $0.00 |
|
| | $0.00 | $0.00 | $0.00 | $0.00 | $0.00 | $0.00 |
Values
| (+) Improvement Homesite Value: | + | $0 | |
| (+) Improvement Non-Homesite Value: | + | $248,890 | |
| (+) Land Homesite Value: | + | $0 | |
| (+) Land Non-Homesite Value: | + | $37,500 | |
| (+) Curr Use (HS): | + | $0 | $0 |
| (+) Curr Use (NHS): | + | $0 | $0 |
| | | -------------------------- | |
| (=) Market Value: | = | $286,390 | |
| (–) Productivity Loss: | – | $0 | |
| | | -------------------------- | |
| (=) Subtotal: | = | $286,390 | |
| (+) Senior Appraised Value: | + | $0 | |
| (+) Non-Senior Appraised Value: | + | $286,390 | |
| | | -------------------------- | |
| (=) Total Appraised Value: | = | $286,390 | |
| (–) Senior Exemption Loss: | – | $0 | |
| (–) Exemption Loss: | – | $0 | |
| | | -------------------------- | |
| (=) Taxable Value: | = | $286,390 | |
Taxing Jurisdiction
| Owner: | HART EZRI & DAVID | | |
| % Ownership: | 100.0000000000% | | |
| Total Value: | $286,390 | | |
| Tax Area: | 1 - OL-140-F |
| CERFD | CURRENT EXPENSE REFUND 010 | 0.0000000000 | $286,390 | $286,390 | $0.00 | | |
| CURREXP | CURRENT EXPENSE 010 | 1.0175366760 | $286,390 | $286,390 | $291.41 | | |
| HUMNSERV | HUMAN SERVICES 119 | 0.0250000000 | $286,390 | $286,390 | $7.16 | | |
| SLDREL | SOLDIERS RELIEF 121 | 0.0155990005 | $286,390 | $286,390 | $4.47 | | |
| EMERGSER | EMS 147 | 0.3792580840 | $286,390 | $286,390 | $108.62 | | |
| EMSRFD | EMS REFUND 147 | 0.0000000000 | $286,390 | $286,390 | $0.00 | | |
| PORTRFD | PORT REFUND 640 | 0.0000000000 | $286,390 | $286,390 | $0.00 | | |
| PORTWWGEN | PORT OF WW 640 | 0.2460186015 | $286,390 | $286,390 | $70.46 | | |
| SD140BOND | SD #140 BOND 764 | 0.8342371393 | $286,390 | $286,390 | $238.92 | | |
| SD140GEN | SD #140 GENERAL 760 | 2.0646500647 | $286,390 | $286,390 | $591.30 | | |
| ST2 | STATE SCHOOL PART 2 600 | 0.8131451643 | $286,390 | $286,390 | $232.88 | | |
| STATESCHL | STATE SCHOOL 600 | 1.5158548041 | $286,390 | $286,390 | $434.13 | | |
| STREFUND | STATE REFUND LEVY 603 | 0.0000000000 | $286,390 | $286,390 | $0.00 | | |
| CWWBOND | C OF WW BOND 643 | 0.2760494372 | $286,390 | $286,390 | $79.06 | | |
| CWWGEN | CITY OF WW 631 | 1.6100204973 | $286,390 | $286,390 | $461.09 | | |
| CWWRFD | CITY OF WALLA WALLA REFUND 631 | 0.0000000000 | $286,390 | $286,390 | $0.00 | | |
| | Total Tax Rate: | 8.7973694689 | | | | | |
| | | | | Taxes w/Current Exemptions: | $2,519.50 | | |
| | | | | Taxes w/o Exemptions: | $2,519.50 | | |
Improvement / Building
| Improvement #1: | RESIDENTIAL | State Code: | 11 | 756.0 sqft | Value: | $248,890 |
| Exterior Wall: | SIDING | Heating/Cooling: | FORCED AIR | | Number of Bathrooms: | 2 | Number of Bedrooms: | 3 | | Plumbing: | 12 | Roof Covering: | COMP SHINGLE |
|
| | Type | Description | Class CD | Sub Class CD | Year Built | Area |
| | MA | Main Area | 1 | 30 | 1920 | 756.0 |
| | SI1 | SITE IMPROVEMENT | 1 | 30 | 1920 | 1.5 |
| | BASE | BASEMENT | 1 | 30 | 1920 | 756.0 |
| | BPF | BASEMENT -PARTITIONED FINISH | 1 | 30 | 1920 | 756.0 |
| | CPC | COVERED CARPORT/PATIO | 1 | 30 | 1920 | 200.0 |
| | RPS | PORCH W/STEPS,ROOF | 1 | 30 | 1920 | 84.0 |
| | SWP | Solid Wall Porch | 1 | 30 | 1920 | 104.0 |
Sketch
Property Image
Land
| 1 | RES 1 | Converted: Residential | 0.1377 | 6000.00 | 0.00 | 0.00 | 1.00 | $37,500 | $0 |
Roll Value History
| 2026 | N/A | N/A | N/A | N/A | N/A |
| 2025 | $243,530 | $60,000 | $0 | $303,530 | $303,530 |
| 2024 | $231,930 | $60,000 | $0 | $291,930 | $291,930 |
| 2023 | $248,890 | $37,500 | $0 | $286,390 | $286,390 |
| 2022 | $237,040 | $37,500 | $0 | $274,540 | $274,540 |
| 2021 | $215,490 | $37,500 | $0 | $252,990 | $252,990 |
| 2020 | $130,600 | $37,500 | $0 | $168,100 | $168,100 |
| 2019 | $130,600 | $37,500 | $0 | $168,100 | $168,100 |
| 2018 | $130,600 | $37,500 | $0 | $168,100 | $168,100 |
| 2017 | $144,100 | $24,000 | $0 | $168,100 | $168,100 |
| 2016 | $137,240 | $24,000 | $0 | $161,240 | $161,240 |
| 2015 | $124,760 | $24,000 | $0 | $148,760 | $148,760 |
| 2014 | $116,600 | $24,000 | $0 | $140,600 | $140,600 |
| 2013 | $116,600 | $24,000 | $0 | $140,600 | $140,600 |
| 2012 | $81,000 | $24,000 | $0 | $0 | $0 |
| 2011 | $92,700 | $24,000 | $0 | $0 | $0 |
| 2010 | $77,500 | $24,000 | $0 | $0 | $0 |
| 2009 | $88,800 | $24,000 | $0 | $0 | $0 |
| 2008 | $62,800 | $24,000 | $0 | $0 | $0 |
| 2007 | $62,800 | $24,000 | $0 | $0 | $0 |
Deed and Sales History
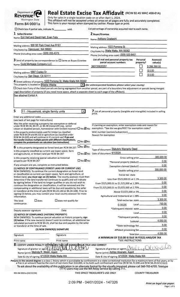
| 1 | 04/01/2024 | SWD | STATUTORY WARRANTY DEED | HART EZRI & DAVID | GRADWOHL ANTHONY | | | $300,000.00 | 147326 | 2024-01576 |
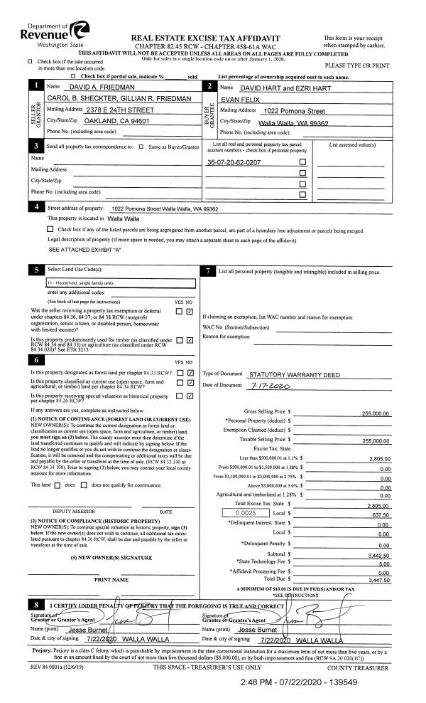
| 2 | 07/22/2020 | QCD | QUIT CLAIM DEED | FELIZ EDNA | HART EZRI & DAVID | | | | 139550 | 2020-07077 |
| 3 | 07/22/2020 | SWD | STATUTORY WARRANTY DEED | SHECKTER CAROL B ET AL | HART EZRI & DAVID | | | $255,000.00 | 139549 | 2020-07076 |
| 4 | 11/30/2012 | WARRANTY D | WARRANTY DEED | JOHANSON, CHRISTINA R | SHECKTER, CAROL B ET AL | | | $150,000.00 | 123080 | 2012-10615 |
| 5 | 06/14/2007 | WARRANTY D | WARRANTY DEED | LARSON, JAMES | JOHANSON, CHRISTINA R | | | $115,500.00 | 113049 | 2007-06779 |
| 6 | 05/30/2006 | WARRANTY D | WARRANTY DEED | WOOD, DANIEL E | LARSON, JAMES | | | $74,000.00 | 110387 | 2006-06222 |
| 7 | 07/26/1988 | WARRANTY D | WARRANTY DEED | | | | | $26,300.00 | 0 | 1087-906950 |
Payout Agreement
| No payout information available.. |