Property
Account |
| Property ID: | 34337 | Abbreviated Legal Description: | SCHNABEL ADDITION LOT 7 |
| Parcel Number: | 350726720007 | Agent Code: | |
| Type: | Real | | |
| Tax Area: | 75 - CP 250 | Land Use Code | 12 |
| Open Space: | N | DFL | N |
| Historic Property: | N | Remodel Property: | N |
| Multi-Family Redevelopment: | N | | |
| Township: | 7 | Section: | 26 |
| Range: | 35 |
Location |
| Address: | 263 NW SCHNABEL LN WA 99324 | Mapsco: | |
| Neighborhood: | A Duplex | Map ID: | |
| Neighborhood CD: | 113031 |
Owner |
| Name: | DESMOND MEGHAN E | Owner ID: | 70707 |
| Mailing Address: | JONATHAN J LIEM 263 NW SCHNABEL LN COLLEGE PLACE, WA 99324 | % Ownership: | 100.0000000000% |
| | | Exemptions: | |
Taxes and Assessment Details
Property Tax Information as of
02/21/2026
Click on "Statement Details" to expand or collapse a tax statement.
* Please enter a valid date ** Please enter a valid date *
Statement Details |
| | TOTAL: | $0.00 | $0.00 | $0.00 | $0.00 | $0.00 | $0.00 |
|
| | $0.00 | $0.00 | $0.00 | $0.00 | $0.00 | $0.00 |
Values
| (+) Improvement Homesite Value: | + | $0 | |
| (+) Improvement Non-Homesite Value: | + | $275,560 | |
| (+) Land Homesite Value: | + | $0 | |
| (+) Land Non-Homesite Value: | + | $70,000 | |
| (+) Curr Use (HS): | + | $0 | $0 |
| (+) Curr Use (NHS): | + | $0 | $0 |
| | | -------------------------- | |
| (=) Market Value: | = | $345,560 | |
| (–) Productivity Loss: | – | $0 | |
| | | -------------------------- | |
| (=) Subtotal: | = | $345,560 | |
| (+) Senior Appraised Value: | + | $0 | |
| (+) Non-Senior Appraised Value: | + | $345,560 | |
| | | -------------------------- | |
| (=) Total Appraised Value: | = | $345,560 | |
| (–) Senior Exemption Loss: | – | $0 | |
| (–) Exemption Loss: | – | $0 | |
| | | -------------------------- | |
| (=) Taxable Value: | = | $345,560 | |
Taxing Jurisdiction
| Owner: | DESMOND MEGHAN E | | |
| % Ownership: | 100.0000000000% | | |
| Total Value: | $345,560 | | |
| Tax Area: | 75 - CP 250 |
| CERFD | CURRENT EXPENSE REFUND 010 | 0.0000000000 | $345,560 | $345,560 | $0.00 | | |
| CURREXP | CURRENT EXPENSE 010 | 1.0175366760 | $345,560 | $345,560 | $351.62 | | |
| HUMNSERV | HUMAN SERVICES 119 | 0.0250000000 | $345,560 | $345,560 | $8.64 | | |
| SLDREL | SOLDIERS RELIEF 121 | 0.0155990005 | $345,560 | $345,560 | $5.39 | | |
| COLLPLBOND | C OF CP BOND 644 | 0.4374241808 | $345,560 | $345,560 | $151.16 | | |
| COLLPLGEN | CITY OF CP 632 | 1.4453819216 | $345,560 | $345,560 | $499.47 | | |
| EMERGSER | EMS 147 | 0.3792580840 | $345,560 | $345,560 | $131.06 | | |
| EMSRFD | EMS REFUND 147 | 0.0000000000 | $345,560 | $345,560 | $0.00 | | |
| RURALLIB | RURAL LIBRARY 623 | 0.3710609029 | $345,560 | $345,560 | $128.22 | | |
| PORTRFD | PORT REFUND 640 | 0.0000000000 | $345,560 | $345,560 | $0.00 | | |
| PORTWWGEN | PORT OF WW 640 | 0.2460186015 | $345,560 | $345,560 | $85.01 | | |
| SD250BOND | SD #250 BOND 773 | 1.4560608159 | $345,560 | $345,560 | $503.16 | | |
| SD250GEN | SD #250 GENERAL 770 | 2.3880724087 | $345,560 | $345,560 | $825.22 | | |
| ST2 | STATE SCHOOL PART 2 600 | 0.8131451643 | $345,560 | $345,560 | $280.99 | | |
| STATESCHL | STATE SCHOOL 600 | 1.5158548041 | $345,560 | $345,560 | $523.82 | | |
| STREFUND | STATE REFUND LEVY 603 | 0.0000000000 | $345,560 | $345,560 | $0.00 | | |
| | Total Tax Rate: | 10.1104125603 | | | | | |
| | | | | Taxes w/Current Exemptions: | $3,493.76 | | |
| | | | | Taxes w/o Exemptions: | $3,493.76 | | |
Improvement / Building
| Improvement #1: | RESIDENTIAL | State Code: | 12 | 2080.0 sqft | Value: | $275,560 |
| Exterior Wall: | PLYWOOD | Heating/Cooling: | WARM & COOLED AIR | | Number of Bathrooms: | 5 | Number of Bedrooms: | 6 | | Plumbing: | 18 | Roof Covering: | COMP SHINGLE |
|
| | Type | Description | Class CD | Sub Class CD | Year Built | Area |
| | MA | Main Area | 2 | 30 | 2006 | 2080.0 |
| | SI1 | SITE IMPROVEMENT | 2 | 30 | 2006 | 2.5 |
| | UPFL | Upper Floor (included in main area) | 2 | 30 | 2006 | 1080.0 |
| | BIG | Built In Garage | 2 | 30 | 2006 | 452.0 |
| | RPC | OPEN PORCH W/ROOF , CEILED | 4 | 30 | 2006 | 80.0 |
| | RPC | OPEN PORCH W/ROOF , CEILED | 4 | 30 | 0 | 70.0 |
| | ATG | Attached Garage | 2 | 30 | 2006 | 280.0 |
Sketch
Property Image
Land
| 1 | RES 1 | Converted: Residential | 0.2909 | 12670.00 | 0.00 | 0.00 | 1.00 | $70,000 | $0 |
Roll Value History
| 2026 | N/A | N/A | N/A | N/A | N/A |
| 2025 | $303,160 | $100,000 | $0 | $403,160 | $403,160 |
| 2024 | $275,600 | $75,000 | $0 | $350,600 | $350,600 |
| 2023 | $275,560 | $70,000 | $0 | $345,560 | $345,560 |
| 2022 | $229,630 | $70,000 | $0 | $299,630 | $299,630 |
| 2021 | $191,360 | $70,000 | $0 | $261,360 | $261,360 |
| 2020 | $147,200 | $70,000 | $0 | $217,200 | $217,200 |
| 2019 | $162,200 | $55,000 | $0 | $217,200 | $217,200 |
| 2018 | $162,200 | $55,000 | $0 | $217,200 | $217,200 |
| 2017 | $162,200 | $55,000 | $0 | $217,200 | $217,200 |
| 2016 | $162,200 | $55,000 | $0 | $217,200 | $217,200 |
| 2015 | $162,200 | $55,000 | $0 | $217,200 | $217,200 |
| 2014 | $162,200 | $55,000 | $0 | $217,200 | $217,200 |
| 2013 | $162,200 | $55,000 | $0 | $217,200 | $217,200 |
| 2012 | $162,200 | $55,000 | $0 | $0 | $0 |
| 2011 | $162,200 | $55,000 | $0 | $0 | $0 |
| 2010 | $162,200 | $55,000 | $0 | $0 | $0 |
| 2009 | $173,600 | $55,000 | $0 | $0 | $0 |
| 2008 | $185,600 | $45,000 | $0 | $0 | $0 |
| 2007 | $185,600 | $45,000 | $0 | $0 | $0 |
Deed and Sales History
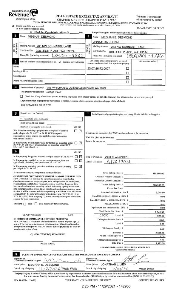
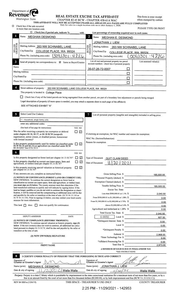
| 1 | 11/29/2021 | SWD | STATUTORY WARRANTY DEED | DESMOND MEGHAN | DESMOND MEGHAN E | | | $185,500.00 | 142953 | 2021-14071 |
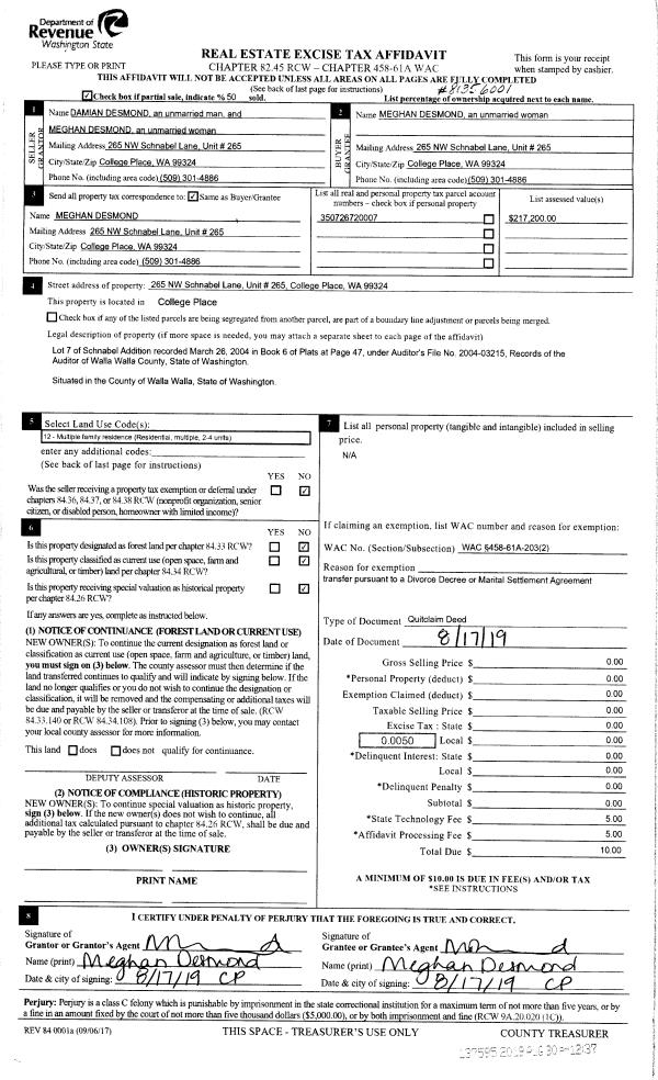
| 2 | 08/17/2019 | QCD | QUIT CLAIM DEED | DESMOND DAMIAN & MEGHAN | DESMOND MEGHAN | | | $0.00 | 137595 | 2019-06756 |
| 3 | 03/26/2010 | WARRANTY D | WARRANTY DEED | BANK OF INTERNET | DESMOND, DAMIAN & MEGHAN | | | $218,000.00 | 118254 | 2010-02484 |
| 4 | 01/22/2010 | WARRANTY D | WARRANTY DEED | BISHOP, WHITE & MARSHALL P S | BANK OF INTERNET | | | $207,471.00 | 118002 | 2010-00687 |
| 5 | 04/01/2004 | WARRANTY D | WARRANTY DEED | "SCHNABEL, HAROLD & JUNIS~TRUS | MAJERUS DOUGLAS & CHRISTINA M | | | | 104410 | 2004-03453 |
Payout Agreement
| No payout information available.. |