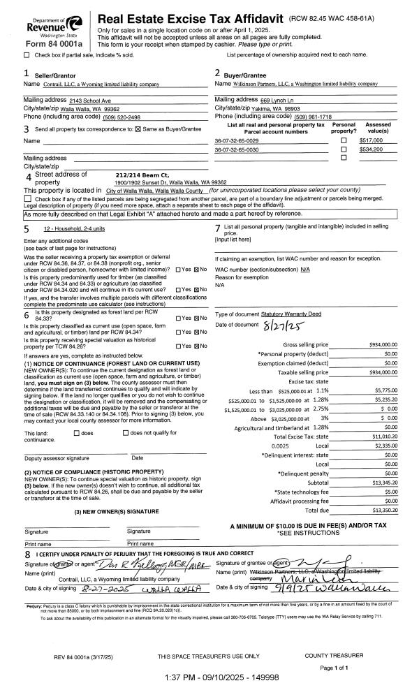
Property
Account |
| Property ID: | 34326 | Abbreviated Legal Description: | SPRING HILL #1 LOT 5 OF SHORT PLAT (PTN IN NLY PT LOT 25) |
| Parcel Number: | 360732650030 | Agent Code: | |
| Type: | Real | | |
| Tax Area: | 1 - OL-140-F | Land Use Code | 12 |
| Open Space: | N | DFL | N |
| Historic Property: | N | Remodel Property: | N |
| Multi-Family Redevelopment: | N | | |
| Township: | 7 | Section: | 32 |
| Range: | 36 |
Location |
| Address: | 212 BEAM CT WA 99362 | Mapsco: | |
| Neighborhood: | A Res Duplex | Map ID: | |
| Neighborhood CD: | 613031 |
Owner |
| Name: | WILKINSON PARTNERS LLC | Owner ID: | 77770 |
| Mailing Address: | 669 LYNCH LN YAKIMA, WA 98903 | % Ownership: | 100.0000000000% |
| | | Exemptions: | |
Taxes and Assessment Details
Values
| (+) Improvement Homesite Value: | + | N/A | |
| (+) Improvement Non-Homesite Value: | + | N/A | |
| (+) Land Homesite Value: | + | N/A | |
| (+) Land Non-Homesite Value: | + | N/A | Ag / Timber Use Value |
| (+) Curr Use (HS): | + | N/A | N/A |
| (+) Curr Use (NHS): | + | N/A | N/A |
| | | -------------------------- | |
| (=) Market Value: | = | N/A | |
| (–) Productivity Loss: | – | N/A | |
| | | -------------------------- | |
| (=) Subtotal: | = | N/A | |
| (+) Senior Appraised Value: | + | N/A | |
| (+) Non-Senior Appraised Value: | + | N/A | |
| | | -------------------------- | |
| (=) Total Appraised Value: | = | N/A | |
| (–) Senior Exemption Loss: | – | N/A | |
| (–) Exemption Loss: | – | N/A | |
| | | -------------------------- | |
| (=) Taxable Value: | = | N/A | |
Taxing Jurisdiction
| Owner: | WILKINSON PARTNERS LLC | | |
| % Ownership: | 100.0000000000% | | |
| Total Value: | N/A | | |
| Tax Area: | 1 - OL-140-F |
| CERFD | CURRENT EXPENSE REFUND 010 | N/A | N/A | N/A | N/A | | |
| CURREXP | CURRENT EXPENSE 010 | N/A | N/A | N/A | N/A | | |
| HUMNSERV | HUMAN SERVICES 119 | N/A | N/A | N/A | N/A | | |
| SLDREL | SOLDIERS RELIEF 121 | N/A | N/A | N/A | N/A | | |
| EMERGSER | EMS 147 | N/A | N/A | N/A | N/A | | |
| EMSRFD | EMS REFUND 147 | N/A | N/A | N/A | N/A | | |
| PORTRFD | PORT REFUND 640 | N/A | N/A | N/A | N/A | | |
| PORTWWGEN | PORT OF WW 640 | N/A | N/A | N/A | N/A | | |
| SD140BOND | SD #140 BOND 764 | N/A | N/A | N/A | N/A | | |
| SD140GEN | SD #140 GENERAL 760 | N/A | N/A | N/A | N/A | | |
| ST2 | STATE SCHOOL PART 2 600 | N/A | N/A | N/A | N/A | | |
| STATESCHL | STATE SCHOOL 600 | N/A | N/A | N/A | N/A | | |
| STREFUND | STATE REFUND LEVY 603 | N/A | N/A | N/A | N/A | | |
| CWWBOND | C OF WW BOND 643 | N/A | N/A | N/A | N/A | | |
| CWWGEN | CITY OF WW 631 | N/A | N/A | N/A | N/A | | |
| CWWRFD | CITY OF WALLA WALLA REFUND 631 | N/A | N/A | N/A | N/A | | |
| | Total Tax Rate: | N/A | | | | | |
| | | | | Taxes w/Current Exemptions: | N/A | | |
| | | | | Taxes w/o Exemptions: | N/A | | |
Improvement / Building
| Improvement #1: | RESIDENTIAL | State Code: | 12 | 2964.0 sqft | Value: | N/A |
| Exterior Wall: | SIDING | Heating/Cooling: | WARM & COOLED AIR | | Number of Bathrooms: | 4 | Number of Bedrooms: | 6 | | Plumbing: | 20 | Roof Covering: | COMP SHINGLE |
|
| | Type | Description | Class CD | Sub Class CD | Year Built | Area |
| | MA | Main Area | 2 | 35 | 2005 | 2964.0 |
| | SI1 | SITE IMPROVEMENT | 2 | 35 | 2005 | 3.0 |
| | UPFL | Upper Floor (included in main area) | 2 | 35 | 2005 | 1636.0 |
| | BIG | Built In Garage | 2 | 35 | 2005 | 462.0 |
| | CPC | COVERED CARPORT/PATIO | 2 | 35 | 2005 | 70.0 |
| | PRC | PORCH W STEPS, ROOF,CEILED | 2 | 35 | 2005 | 154.0 |
| | PRC | PORCH W STEPS, ROOF,CEILED | 2 | 35 | 2005 | 154.0 |
Sketch
Property Image
Land
| 1 | RES 1 | Converted: Residential | 0.2410 | 10500.00 | 0.00 | 0.00 | 1.00 | N/A | N/A |
Roll Value History
| 2026 | N/A | N/A | N/A | N/A | N/A |
| 2025 | $409,230 | $125,000 | $0 | $534,230 | $534,230 |
| 2024 | $443,800 | $90,400 | $0 | $534,200 | $534,200 |
| 2023 | $428,080 | $90,410 | $0 | $518,490 | $518,490 |
| 2022 | $428,080 | $72,800 | $0 | $500,880 | $500,880 |
| 2021 | $329,290 | $72,800 | $0 | $402,090 | $402,090 |
| 2020 | $253,300 | $72,800 | $0 | $326,100 | $326,100 |
| 2019 | $253,300 | $72,800 | $0 | $326,100 | $326,100 |
| 2018 | $252,940 | $47,600 | $0 | $300,540 | $300,540 |
| 2017 | $240,900 | $47,600 | $0 | $288,500 | $288,500 |
| 2016 | $200,750 | $47,600 | $0 | $248,350 | $248,350 |
| 2015 | $200,750 | $47,600 | $0 | $248,350 | $248,350 |
| 2014 | $194,900 | $47,600 | $0 | $242,500 | $242,500 |
| 2013 | $194,900 | $47,600 | $0 | $242,500 | $242,500 |
| 2012 | $194,900 | $47,600 | $0 | $0 | $0 |
| 2011 | $237,000 | $47,600 | $0 | $0 | $0 |
| 2010 | $223,400 | $47,600 | $0 | $0 | $0 |
| 2009 | $253,500 | $47,600 | $0 | $0 | $0 |
| 2008 | $253,500 | $47,600 | $0 | $0 | $0 |
| 2007 | $270,600 | $25,100 | $0 | $0 | $0 |
Deed and Sales History
| 1 | 09/10/2025 | SWD | STATUTORY WARRANTY DEED | CONTRAIL LLC | WILKINSON PARTNERS LLC | | 2-PARCELS | $934,000.00 | 149998 | 2025-05480 |
|   | |
| 2 | 01/18/2011 | WARRANTY D | WARRANTY DEED | ROFF, BRYAN & DANA | CONTRAIL LLC | | | $245,000.00 | 119612 | 2011-00534 |
| 3 | 03/04/2005 | QCD | QUIT CLAIM DEED | ROFF HOMES INC | ROFF, BRYAN & DANA | | | | 106929 | 2005-02519 |
| 4 | 02/23/2005 | WARRANTY D | WARRANTY DEED | SUNSET DEVELOPMENT LLC | ROFF HOMES INC | | | $195,000.00 | 106817 | 2005-02033 |
|   | |
Payout Agreement
| No payout information available.. |