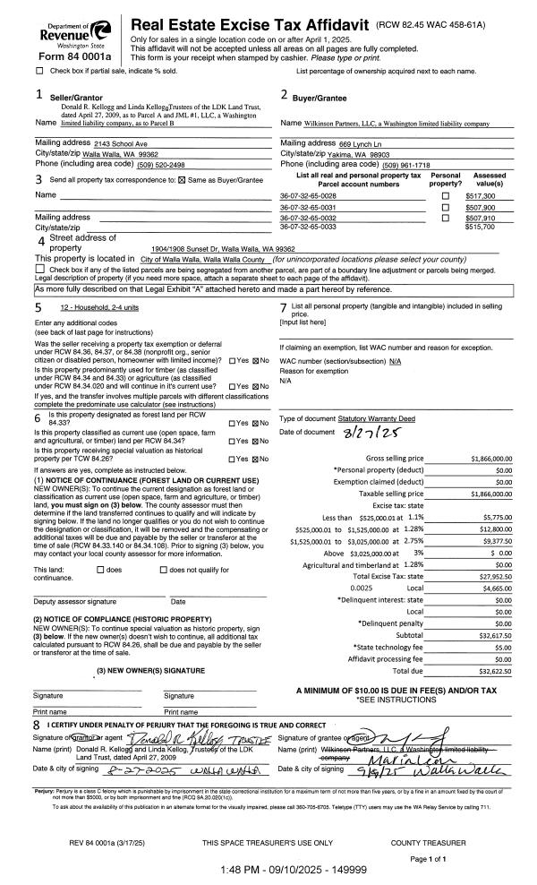
| 1 | 09/10/2025 | SWD | STATUTORY WARRANTY DEED | LDK LAND TRUST | WILKINSON PARTNERS LLC | | 3-PARCELS | $1,866,000.00 | 149999 | 2025-05482 |
|   | |
| 2 | 05/17/2016 | QCD | QUIT CLAIM DEED | KELLOGG DONALD R & LINDA J | LDK LAND TRUST | | | $0.00 | 130243 | 2016-03753 |
| 3 | 03/06/2015 | QCD | QUIT CLAIM DEED | LDK LAND TRUST | KELLOGG DONALD R & LINDA J | | | $0.00 | 127562 | 2015-02052 |
| 4 | 12/09/2009 | QCD | QUIT CLAIM DEED | KELLOGG, DONALD & LINDA J | LDK LAND TRUST | | | | 117786 | 2009-11877 |
| 5 | 10/29/2009 | QCD | QUIT CLAIM DEED | KELLOGG, DONALD R & LINDA J | LDK LAND TRUST | | | | 117579 | 2009-10711 |
| 6 | 10/03/2005 | WARRANTY D | WARRANTY DEED | ROFF HOMES INC | KELLOGG, DONALD R & LINDA J | | | $285,500.00 | 108657 | 2005-12324 |
| 7 | 12/10/2004 | WARRANTY D | WARRANTY DEED | SUNSET DEVELOPMENT LLC | ROFF HOMES INC | | | | 106376 | 2004-14194 |