Property
Account |
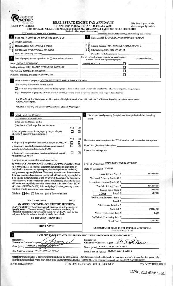
| Property ID: | 34302 | Abbreviated Legal Description: | WATERTOWN LOT 10 BLK 3 |
| Parcel Number: | 360721730310 | Agent Code: | |
| Type: | Real | | |
| Tax Area: | 1 - OL-140-F | Land Use Code | 11 |
| Open Space: | N | DFL | N |
| Historic Property: | N | Remodel Property: | N |
| Multi-Family Redevelopment: | N | | |
| Township: | 7 | Section: | 21 |
| Range: | 36 |
Location |
| Address: | 1327 OLIVE ST WA 99362 | Mapsco: | |
| Neighborhood: | A-SFR | Map ID: | |
| Neighborhood CD: | 513011 |
Owner |
| Name: | COOLEY JAMES B | Owner ID: | 51890 |
| Mailing Address: | 1327 OLIVE ST WALLA WALLA, WA 99362 | % Ownership: | 100.0000000000% |
| | | Exemptions: | |
Taxes and Assessment Details
Property Tax Information as of
02/21/2026
Click on "Statement Details" to expand or collapse a tax statement.
* Please enter a valid date ** Please enter a valid date *
Statement Details |
| | TOTAL: | $0.00 | $0.00 | $0.00 | $0.00 | $0.00 | $0.00 |
|
| | $0.00 | $0.00 | $0.00 | $0.00 | $0.00 | $0.00 |
Values
| (+) Improvement Homesite Value: | + | $0 | |
| (+) Improvement Non-Homesite Value: | + | $344,450 | |
| (+) Land Homesite Value: | + | $0 | |
| (+) Land Non-Homesite Value: | + | $46,880 | |
| (+) Curr Use (HS): | + | $0 | $0 |
| (+) Curr Use (NHS): | + | $0 | $0 |
| | | -------------------------- | |
| (=) Market Value: | = | $391,330 | |
| (–) Productivity Loss: | – | $0 | |
| | | -------------------------- | |
| (=) Subtotal: | = | $391,330 | |
| (+) Senior Appraised Value: | + | $0 | |
| (+) Non-Senior Appraised Value: | + | $391,330 | |
| | | -------------------------- | |
| (=) Total Appraised Value: | = | $391,330 | |
| (–) Senior Exemption Loss: | – | $0 | |
| (–) Exemption Loss: | – | $0 | |
| | | -------------------------- | |
| (=) Taxable Value: | = | $391,330 | |
Taxing Jurisdiction
| Owner: | COOLEY JAMES B | | |
| % Ownership: | 100.0000000000% | | |
| Total Value: | $391,330 | | |
| Tax Area: | 1 - OL-140-F |
| CERFD | CURRENT EXPENSE REFUND 010 | 0.0000000000 | $391,330 | $391,330 | $0.00 | | |
| CURREXP | CURRENT EXPENSE 010 | 1.0175366760 | $391,330 | $391,330 | $398.19 | | |
| HUMNSERV | HUMAN SERVICES 119 | 0.0250000000 | $391,330 | $391,330 | $9.78 | | |
| SLDREL | SOLDIERS RELIEF 121 | 0.0155990005 | $391,330 | $391,330 | $6.10 | | |
| EMERGSER | EMS 147 | 0.3792580840 | $391,330 | $391,330 | $148.42 | | |
| EMSRFD | EMS REFUND 147 | 0.0000000000 | $391,330 | $391,330 | $0.00 | | |
| PORTRFD | PORT REFUND 640 | 0.0000000000 | $391,330 | $391,330 | $0.00 | | |
| PORTWWGEN | PORT OF WW 640 | 0.2460186015 | $391,330 | $391,330 | $96.27 | | |
| SD140BOND | SD #140 BOND 764 | 0.8342371393 | $391,330 | $391,330 | $326.46 | | |
| SD140GEN | SD #140 GENERAL 760 | 2.0646500647 | $391,330 | $391,330 | $807.96 | | |
| ST2 | STATE SCHOOL PART 2 600 | 0.8131451643 | $391,330 | $391,330 | $318.21 | | |
| STATESCHL | STATE SCHOOL 600 | 1.5158548041 | $391,330 | $391,330 | $593.20 | | |
| STREFUND | STATE REFUND LEVY 603 | 0.0000000000 | $391,330 | $391,330 | $0.00 | | |
| CWWBOND | C OF WW BOND 643 | 0.2760494372 | $391,330 | $391,330 | $108.03 | | |
| CWWGEN | CITY OF WW 631 | 1.6100204973 | $391,330 | $391,330 | $630.05 | | |
| CWWRFD | CITY OF WALLA WALLA REFUND 631 | 0.0000000000 | $391,330 | $391,330 | $0.00 | | |
| | Total Tax Rate: | 8.7973694689 | | | | | |
| | | | | Taxes w/Current Exemptions: | $3,442.67 | | |
| | | | | Taxes w/o Exemptions: | $3,442.67 | | |
Improvement / Building
| Improvement #1: | RESIDENTIAL | State Code: | 11 | 1574.0 sqft | Value: | $344,450 |
| Exterior Wall: | SIDING | Heating/Cooling: | WARM & COOLED AIR | | Number of Bathrooms: | 2 | Number of Bedrooms: | 3 | | Plumbing: | 9 | Roof Covering: | COMP SHINGLE |
|
| | Type | Description | Class CD | Sub Class CD | Year Built | Area |
| | MA | Main Area | 4 | 35 | 1947 | 1574.0 |
| | UPFL | Upper Floor (included in main area) | 4 | 35 | 1947 | 398.0 |
| | SI1 | SITE IMPROVEMENT | 4 | 35 | 1947 | 2.5 |
| | BASE | BASEMENT | 4 | 35 | 1947 | 1119.0 |
| | SWP | Solid Wall Porch | 4 | 35 | 1947 | 108.0 |
| | WOD | Wood Deck | 4 | 35 | 1947 | 275.0 |
| | RCD | WOOD DECK W/ROOF, CEILED | 4 | 35 | 1947 | 306.0 |
| | DTG | Detached Garage | 4 | 35 | 1947 | 240.0 |
Sketch
Property Image
Land
| 1 | RES 1 | Converted: Residential | 0.1722 | 7500.00 | 0.00 | 0.00 | 1.00 | $46,880 | $0 |
Roll Value History
| 2026 | N/A | N/A | N/A | N/A | N/A |
| 2025 | $350,790 | $75,000 | $0 | $425,790 | $425,790 |
| 2024 | $318,900 | $75,000 | $0 | $393,900 | $393,900 |
| 2023 | $344,450 | $46,880 | $0 | $391,330 | $391,330 |
| 2022 | $328,040 | $46,880 | $0 | $374,920 | $374,920 |
| 2021 | $252,340 | $46,880 | $0 | $299,220 | $299,220 |
| 2020 | $201,870 | $46,880 | $0 | $248,750 | $248,750 |
| 2019 | $201,870 | $46,880 | $0 | $248,750 | $248,750 |
| 2018 | $192,260 | $46,880 | $0 | $239,140 | $239,140 |
| 2017 | $195,900 | $30,000 | $0 | $225,900 | $225,900 |
| 2016 | $195,900 | $30,000 | $0 | $225,900 | $225,900 |
| 2015 | $195,900 | $30,000 | $0 | $225,900 | $225,900 |
| 2014 | $195,900 | $30,000 | $0 | $225,900 | $225,900 |
| 2013 | $195,900 | $30,000 | $0 | $225,900 | $225,900 |
| 2012 | $195,900 | $30,000 | $0 | $0 | $0 |
| 2011 | $185,100 | $30,000 | $0 | $0 | $0 |
| 2010 | $146,400 | $30,000 | $0 | $0 | $0 |
| 2009 | $146,400 | $30,000 | $0 | $0 | $0 |
| 2008 | $117,000 | $30,000 | $0 | $0 | $0 |
| 2007 | $117,000 | $30,000 | $0 | $0 | $0 |
Deed and Sales History
| 1 | 03/03/2025 | SWD | STATUTORY WARRANTY DEED | COOLEY JAMES B | BRODLAND KATE MELISSA | | | $445,738.00 | 149008 | 2025-01075 |
| 2 | 11/05/2012 | WARRANTY D | WARRANTY DEED | GRAVES, TYSON ESTATE OF | COOLEY, JAMES B | | | $195,000.00 | 122943 | 2012-09820 |
| 3 | 04/12/2010 | WARRANTY D | WARRANTY DEED | HUCKSTEP, AARON R & CARRIE L | GRAVES, TYSON | | | $235,000.00 | 118323 | 2010-02904 |
| 4 | 07/17/2009 | QCD | QUIT CLAIM DEED | HUCKSTEP, AARON R | HUCKSTEP, AARON R & CARRIE L | | | | 117020 | 2009-07282 |
| 5 | 09/13/1996 | WARRANTY D | WARRANTY DEED | | | | | $76,700.00 | 86869 | 2449-609357 |
Payout Agreement
| No payout information available.. |