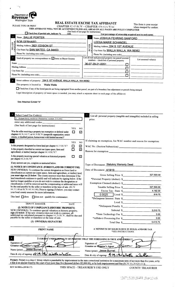
Property
Account |
| Property ID: | 34299 | Abbreviated Legal Description: | 29-7-36 TAX 97 |
| Parcel Number: | 360729210051 | Agent Code: | |
| Type: | Real | | |
| Tax Area: | 1 - OL-140-F | Land Use Code | 12 |
| Open Space: | N | DFL | N |
| Historic Property: | N | Remodel Property: | N |
| Multi-Family Redevelopment: | N | | |
| Township: | 7 | Section: | 29 |
| Range: | 36 |
Location |
| Address: | 334 S 1ST AVE WA 99362 | Mapsco: | |
| Neighborhood: | A+ Res Duplex | Map ID: | |
| Neighborhood CD: | 513231 |
Owner |
| Name: | SANFORD JOSHUA FEHRING | Owner ID: | 64972 |
| Mailing Address: | LEESA MARIE SCHANDEL 519 NEWELL ST WALLA WALLA, WA 99362 | % Ownership: | 100.0000000000% |
| | | Exemptions: | |
Taxes and Assessment Details
Property Tax Information as of
02/21/2026
Click on "Statement Details" to expand or collapse a tax statement.
* Please enter a valid date ** Please enter a valid date *
Statement Details |
| | TOTAL: | $0.00 | $0.00 | $0.00 | $0.00 | $0.00 | $0.00 |
|
| | $0.00 | $0.00 | $0.00 | $0.00 | $0.00 | $0.00 |
Values
| (+) Improvement Homesite Value: | + | $0 | |
| (+) Improvement Non-Homesite Value: | + | $441,090 | |
| (+) Land Homesite Value: | + | $0 | |
| (+) Land Non-Homesite Value: | + | $45,000 | |
| (+) Curr Use (HS): | + | $0 | $0 |
| (+) Curr Use (NHS): | + | $0 | $0 |
| | | -------------------------- | |
| (=) Market Value: | = | $486,090 | |
| (–) Productivity Loss: | – | $0 | |
| | | -------------------------- | |
| (=) Subtotal: | = | $486,090 | |
| (+) Senior Appraised Value: | + | $0 | |
| (+) Non-Senior Appraised Value: | + | $486,090 | |
| | | -------------------------- | |
| (=) Total Appraised Value: | = | $486,090 | |
| (–) Senior Exemption Loss: | – | $0 | |
| (–) Exemption Loss: | – | $0 | |
| | | -------------------------- | |
| (=) Taxable Value: | = | $486,090 | |
Taxing Jurisdiction
| Owner: | SANFORD JOSHUA FEHRING | | |
| % Ownership: | 100.0000000000% | | |
| Total Value: | $486,090 | | |
| Tax Area: | 1 - OL-140-F |
| CERFD | CURRENT EXPENSE REFUND 010 | 0.0000000000 | $486,090 | $486,090 | $0.00 | | |
| CURREXP | CURRENT EXPENSE 010 | 1.0175366760 | $486,090 | $486,090 | $494.61 | | |
| HUMNSERV | HUMAN SERVICES 119 | 0.0250000000 | $486,090 | $486,090 | $12.15 | | |
| SLDREL | SOLDIERS RELIEF 121 | 0.0155990005 | $486,090 | $486,090 | $7.58 | | |
| EMERGSER | EMS 147 | 0.3792580840 | $486,090 | $486,090 | $184.35 | | |
| EMSRFD | EMS REFUND 147 | 0.0000000000 | $486,090 | $486,090 | $0.00 | | |
| PORTRFD | PORT REFUND 640 | 0.0000000000 | $486,090 | $486,090 | $0.00 | | |
| PORTWWGEN | PORT OF WW 640 | 0.2460186015 | $486,090 | $486,090 | $119.59 | | |
| SD140BOND | SD #140 BOND 764 | 0.8342371393 | $486,090 | $486,090 | $405.51 | | |
| SD140GEN | SD #140 GENERAL 760 | 2.0646500647 | $486,090 | $486,090 | $1,003.61 | | |
| ST2 | STATE SCHOOL PART 2 600 | 0.8131451643 | $486,090 | $486,090 | $395.26 | | |
| STATESCHL | STATE SCHOOL 600 | 1.5158548041 | $486,090 | $486,090 | $736.84 | | |
| STREFUND | STATE REFUND LEVY 603 | 0.0000000000 | $486,090 | $486,090 | $0.00 | | |
| CWWBOND | C OF WW BOND 643 | 0.2760494372 | $486,090 | $486,090 | $134.18 | | |
| CWWGEN | CITY OF WW 631 | 1.6100204973 | $486,090 | $486,090 | $782.61 | | |
| CWWRFD | CITY OF WALLA WALLA REFUND 631 | 0.0000000000 | $486,090 | $486,090 | $0.00 | | |
| | Total Tax Rate: | 8.7973694689 | | | | | |
| | | | | Taxes w/Current Exemptions: | $4,276.29 | | |
| | | | | Taxes w/o Exemptions: | $4,276.29 | | |
Improvement / Building
| Improvement #1: | RESIDENTIAL | State Code: | 12 | 1748.0 sqft | Value: | $441,090 |
| Exterior Wall: | SIDING | Heating/Cooling: | FORCED AIR | | Number of Bathrooms: | 2 | Number of Bedrooms: | 4 | | Plumbing: | 10 | Roof Covering: | COMP SHINGLE |
|
| | Type | Description | Class CD | Sub Class CD | Year Built | Area |
| | MA | Main Area | 1 | 30 | 1942 | 1748.0 |
| | SI1 | SITE IMPROVEMENT | 1 | 30 | 1942 | 1.5 |
| | BASE | BASEMENT | 1 | 30 | 1942 | 1254.0 |
| | BPF | BASEMENT -PARTITIONED FINISH | 1 | 30 | 1942 | 450.0 |
| | RPO | OPEN PORCH W/ROOF | 1 | 30 | 1942 | 66.0 |
| | DTG | Detached Garage | 1 | 30 | 1942 | 400.0 |
Sketch
Property Image
Land
| 1 | RES 1 | Converted: Residential | 0.1653 | 7200.00 | 0.00 | 0.00 | 1.00 | $45,000 | $0 |
Roll Value History
| 2026 | N/A | N/A | N/A | N/A | N/A |
| 2025 | $414,100 | $72,000 | $0 | $486,100 | $486,100 |
| 2024 | $414,100 | $72,000 | $0 | $486,100 | $486,100 |
| 2023 | $441,090 | $45,000 | $0 | $486,090 | $486,090 |
| 2022 | $352,870 | $45,000 | $0 | $397,870 | $397,870 |
| 2021 | $294,060 | $45,000 | $0 | $339,060 | $339,060 |
| 2020 | $226,200 | $45,000 | $0 | $271,200 | $271,200 |
| 2019 | $226,200 | $45,000 | $0 | $271,200 | $271,200 |
| 2018 | $150,800 | $45,000 | $0 | $195,800 | $195,800 |
| 2017 | $152,600 | $43,200 | $0 | $195,800 | $195,800 |
| 2016 | $152,600 | $43,200 | $0 | $195,800 | $195,800 |
| 2015 | $152,600 | $43,200 | $0 | $195,800 | $195,800 |
| 2014 | $152,600 | $43,200 | $0 | $195,800 | $195,800 |
| 2013 | $152,600 | $43,200 | $0 | $195,800 | $195,800 |
| 2012 | $152,600 | $43,200 | $0 | $0 | $0 |
| 2011 | $152,600 | $43,200 | $0 | $0 | $0 |
| 2010 | $152,600 | $43,200 | $0 | $0 | $0 |
| 2009 | $174,300 | $43,200 | $0 | $0 | $0 |
| 2008 | $174,300 | $43,200 | $0 | $0 | $0 |
| 2007 | $89,200 | $21,300 | $0 | $0 | $0 |
Deed and Sales History
| 1 | 04/19/2019 | SWD | STATUTORY WARRANTY DEED | GEBHARD BOB & SALLIE PORTER | SANFORD JOSHUA FEHRING | | | $327,500.00 | 136715 | 2019-02496 |
| 2 | 01/12/2006 | WARRANTY D | WARRANTY DEED | TAFF, WARREN & BARBARA TRUSTEE | GEBHARD, BOB | | | $270,000.00 | 109463 | 2006-00436 |
| 3 | 10/14/2004 | WARRANTY D | WARRANTY DEED | TAFF, WARREN & BARBARA | TAFF, WARREN & BARBARA TRUSTEE | | | | 0 | 2004-11907 |
| 4 | 08/20/2004 | WARRANTY D | WARRANTY DEED | WILSON, GARY B | TAFF, WARREN & BARBARA | | | $142,982.00 | 105531 | 2004-09582 |
| 5 | 10/11/1996 | WARRANTY D | WARRANTY DEED | | | | | $85,000.00 | 87021 | 2459-610302 |
Payout Agreement
| No payout information available.. |