Property
Account |
| Property ID: | 34246 | Abbreviated Legal Description: | LT 3 BLK 2 BRYANTS ADDN |
| Parcel Number: | 360728530203 | Agent Code: | |
| Type: | Real | | |
| Tax Area: | 1 - OL-140-F | Land Use Code | 12 |
| Open Space: | N | DFL | N |
| Historic Property: | N | Remodel Property: | N |
| Multi-Family Redevelopment: | N | | |
| Township: | 7 | Section: | 28 |
| Range: | 36 |
Location |
| Address: | 612 PLEASANT ST WA 99362 | Mapsco: | |
| Neighborhood: | A Res Multi Res | Map ID: | |
| Neighborhood CD: | 613081 |
Owner |
| Name: | 612 PLEASANT STREET LLC | Owner ID: | 70999 |
| Mailing Address: | 4291 ELTOPIA WEST RD ELTOPIA, WA 99330 | % Ownership: | 100.0000000000% |
| | | Exemptions: | |
Taxes and Assessment Details
Values
| (+) Improvement Homesite Value: | + | $0 | |
| (+) Improvement Non-Homesite Value: | + | $160,340 | |
| (+) Land Homesite Value: | + | $0 | |
| (+) Land Non-Homesite Value: | + | $70,000 | |
| (+) Curr Use (HS): | + | $0 | $0 |
| (+) Curr Use (NHS): | + | $0 | $0 |
| | | -------------------------- | |
| (=) Market Value: | = | $230,340 | |
| (–) Productivity Loss: | – | $0 | |
| | | -------------------------- | |
| (=) Subtotal: | = | $230,340 | |
| (+) Senior Appraised Value: | + | $0 | |
| (+) Non-Senior Appraised Value: | + | $230,340 | |
| | | -------------------------- | |
| (=) Total Appraised Value: | = | $230,340 | |
| (–) Senior Exemption Loss: | – | $0 | |
| (–) Exemption Loss: | – | $0 | |
| | | -------------------------- | |
| (=) Taxable Value: | = | $230,340 | |
Taxing Jurisdiction
| Owner: | 612 PLEASANT STREET LLC | | |
| % Ownership: | 100.0000000000% | | |
| Total Value: | $230,340 | | |
| Tax Area: | 1 - OL-140-F |
| CERFD | CURRENT EXPENSE REFUND 010 | 0.0000000000 | $230,340 | $230,340 | $0.00 | | |
| CURREXP | CURRENT EXPENSE 010 | 1.0175366760 | $230,340 | $230,340 | $234.38 | | |
| HUMNSERV | HUMAN SERVICES 119 | 0.0250000000 | $230,340 | $230,340 | $5.76 | | |
| SLDREL | SOLDIERS RELIEF 121 | 0.0155990005 | $230,340 | $230,340 | $3.59 | | |
| EMERGSER | EMS 147 | 0.3792580840 | $230,340 | $230,340 | $87.36 | | |
| EMSRFD | EMS REFUND 147 | 0.0000000000 | $230,340 | $230,340 | $0.00 | | |
| PORTRFD | PORT REFUND 640 | 0.0000000000 | $230,340 | $230,340 | $0.00 | | |
| PORTWWGEN | PORT OF WW 640 | 0.2460186015 | $230,340 | $230,340 | $56.67 | | |
| SD140BOND | SD #140 BOND 764 | 0.8342371393 | $230,340 | $230,340 | $192.16 | | |
| SD140GEN | SD #140 GENERAL 760 | 2.0646500647 | $230,340 | $230,340 | $475.57 | | |
| ST2 | STATE SCHOOL PART 2 600 | 0.8131451643 | $230,340 | $230,340 | $187.30 | | |
| STATESCHL | STATE SCHOOL 600 | 1.5158548041 | $230,340 | $230,340 | $349.16 | | |
| STREFUND | STATE REFUND LEVY 603 | 0.0000000000 | $230,340 | $230,340 | $0.00 | | |
| CWWBOND | C OF WW BOND 643 | 0.2760494372 | $230,340 | $230,340 | $63.59 | | |
| CWWGEN | CITY OF WW 631 | 1.6100204973 | $230,340 | $230,340 | $370.85 | | |
| CWWRFD | CITY OF WALLA WALLA REFUND 631 | 0.0000000000 | $230,340 | $230,340 | $0.00 | | |
| | Total Tax Rate: | 8.7973694689 | | | | | |
| | | | | Taxes w/Current Exemptions: | $2,026.39 | | |
| | | | | Taxes w/o Exemptions: | $2,026.39 | | |
Improvement / Building
| Improvement #1: | RESIDENTIAL | State Code: | 12 | 855.0 sqft | Value: | $80,450 |
| Exterior Wall: | VINYL | Foundation: | POST & PIER | | Heating/Cooling: | WARM & COOLED AIR | Number of Bathrooms: | 1 | | Number of Bedrooms: | 2 | Plumbing: | 7 | | Roof Covering: | COMP SHINGLE |   |   |
|
| | Type | Description | Class CD | Sub Class CD | Year Built | Area |
| | MA | Main Area | 4 | 25 | 1905 | 855.0 |
| | UPFL | Upper Floor (included in main area) | 4 | 25 | 1905 | 285.0 |
| | SI1 | SITE IMPROVEMENT | 4 | 25 | 1905 | 1.0 |
| | WDR | WOOD DECK W/ROOF | 4 | 25 | 1905 | 48.0 |
| | SWP | Solid Wall Porch | 4 | 25 | 1905 | 42.0 |
| Improvement #2: | RESIDENTIAL | State Code: | 12 | 830.0 sqft | Value: | $79,890 |
| Exterior Wall: | VINYL | Foundation: | POST & PIER | | Heating/Cooling: | GRAVITY FURNACE | Number of Bathrooms: | 1 | | Number of Bedrooms: | 2 | Plumbing: | 7 | | Roof Covering: | COMP SHINGLE |   |   |
|
| | Type | Description | Class CD | Sub Class CD | Year Built | Area |
| | MA | Main Area | 4 | 25 | 1905 | 830.0 |
| | UPFL | Upper Floor (included in main area) | 4 | 25 | 1905 | 278.0 |
| | SI1 | SITE IMPROVEMENT | 4 | 25 | 1905 | 1.0 |
| | SWP | Solid Wall Porch | 4 | 25 | 1905 | 55.0 |
| | RCD | WOOD DECK W/ROOF, CEILED | 4 | 25 | 1905 | 60.0 |
Sketch
Property Image
Land
| 1 | RES 1 | Converted: Residential | 0.1377 | 6000.00 | 0.00 | 0.00 | 1.00 | $70,000 | $0 |
Roll Value History
| 2026 | N/A | N/A | N/A | N/A | N/A |
| 2025 | $142,070 | $66,000 | $0 | $208,070 | $208,070 |
| 2024 | $160,340 | $70,000 | $0 | $230,340 | $230,340 |
| 2023 | $160,340 | $70,000 | $0 | $230,340 | $230,340 |
| 2022 | $160,340 | $55,000 | $0 | $215,340 | $215,340 |
| 2021 | $145,770 | $55,000 | $0 | $200,770 | $200,770 |
| 2020 | $112,130 | $55,000 | $0 | $167,130 | $167,130 |
| 2019 | $112,130 | $55,000 | $0 | $167,130 | $167,130 |
| 2018 | $90,320 | $36,000 | $0 | $126,320 | $126,320 |
| 2017 | $82,110 | $36,000 | $0 | $118,110 | $118,110 |
| 2016 | $82,110 | $36,000 | $0 | $118,110 | $118,110 |
| 2015 | $71,410 | $36,000 | $0 | $107,410 | $107,410 |
| 2014 | $71,410 | $36,000 | $0 | $107,410 | $107,410 |
| 2013 | $71,400 | $36,000 | $0 | $107,400 | $107,400 |
| 2012 | $71,400 | $36,000 | $0 | $0 | $0 |
| 2011 | $71,400 | $36,000 | $0 | $0 | $0 |
| 2010 | $71,400 | $36,000 | $0 | $0 | $0 |
| 2009 | $71,400 | $36,000 | $0 | $0 | $0 |
| 2008 | $71,400 | $36,000 | $0 | $0 | $0 |
| 2007 | $52,700 | $18,000 | $0 | $0 | $0 |
Deed and Sales History
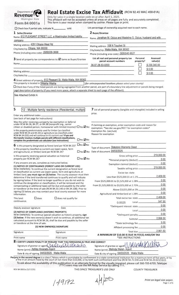
| 1 | 04/04/2025 | SWD | STATUTORY WARRANTY DEED | 612 PLEASANT STREET LLC | OJCIUS JONATHAN M & MADELINE S | | | $219,000.00 | 149172 | 2025-01778 |
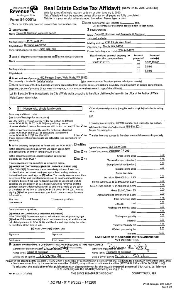
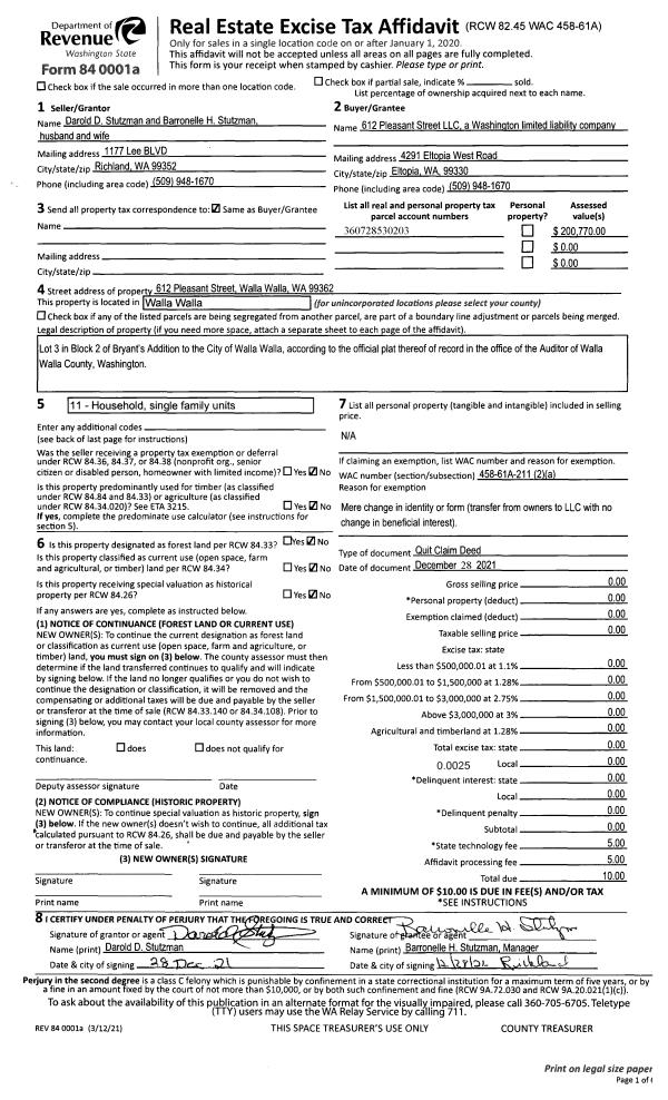
| 2 | 12/28/2021 | QCD | QUIT CLAIM DEED | STUTZMAN DAROLD D & BARRONELLE H | 612 PLEASANT STREET LLC | | | $0.00 | 143274 | 2022-00619 |
| 3 | 12/28/2021 | QCD | QUIT CLAIM DEED | STUTZMAN DAROLD D | STUTZMAN DAROLD D & BARRONELLE H | | | $0.00 | 143268 | 2022-00592 |
| 4 | 01/06/1993 | WARRANTY D | WARRANTY DEED | | | | | $37,000.00 | 78304 | 2039-300112 |
Payout Agreement
| No payout information available.. |