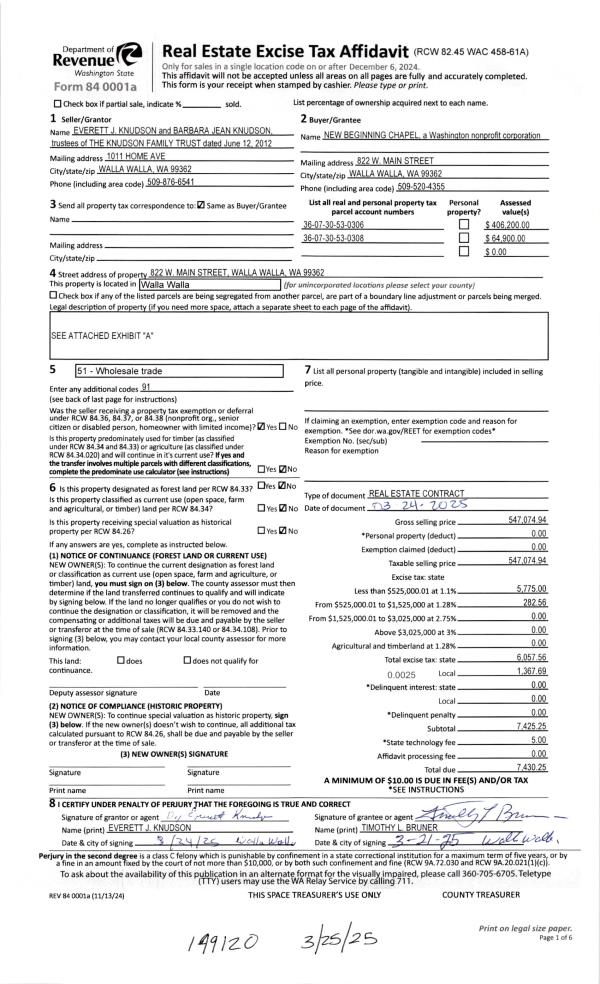
Property
Account |
| Property ID: | 34238 | Abbreviated Legal Description: | REESES LOT 6 & 7 BLK 3; RITZ ADDN BLK 20 S OF ALLEY |
| Parcel Number: | 360730530306 | Agent Code: | |
| Type: | Real | | |
| Tax Area: | 1 - OL-140-F | Land Use Code | 51 |
| Open Space: | N | DFL | N |
| Historic Property: | N | Remodel Property: | N |
| Multi-Family Redevelopment: | N | | |
| Township: | 7 | Section: | 30 |
| Range: | 36 |
Location |
| Address: | 822 W MAIN ST WA 99362 | Mapsco: | |
| Neighborhood: | | Map ID: | |
| Neighborhood CD: | 3343 |
Owner |
| Name: | NEW BEGINNING CHAPEL | Owner ID: | 52094 |
| Mailing Address: | 822 W MAIN ST WALLA WALLA, WA 99362 | % Ownership: | 100.0000000000% |
| | | Exemptions: | EX |
Taxes and Assessment Details
Values
| (+) Improvement Homesite Value: | + | N/A | |
| (+) Improvement Non-Homesite Value: | + | N/A | |
| (+) Land Homesite Value: | + | N/A | |
| (+) Land Non-Homesite Value: | + | N/A | Ag / Timber Use Value |
| (+) Curr Use (HS): | + | N/A | N/A |
| (+) Curr Use (NHS): | + | N/A | N/A |
| | | -------------------------- | |
| (=) Market Value: | = | N/A | |
| (–) Productivity Loss: | – | N/A | |
| | | -------------------------- | |
| (=) Subtotal: | = | N/A | |
| (+) Senior Appraised Value: | + | N/A | |
| (+) Non-Senior Appraised Value: | + | N/A | |
| | | -------------------------- | |
| (=) Total Appraised Value: | = | N/A | |
| (–) Senior Exemption Loss: | – | N/A | |
| (–) Exemption Loss: | – | N/A | |
| | | -------------------------- | |
| (=) Taxable Value: | = | N/A | |
Taxing Jurisdiction
| Owner: | NEW BEGINNING CHAPEL | | |
| % Ownership: | 100.0000000000% | | |
| Total Value: | N/A | | |
| Tax Area: | 1 - OL-140-F |
| CERFD | CURRENT EXPENSE REFUND 010 | N/A | N/A | N/A | N/A | | |
| CURREXP | CURRENT EXPENSE 010 | N/A | N/A | N/A | N/A | | |
| HUMNSERV | HUMAN SERVICES 119 | N/A | N/A | N/A | N/A | | |
| SLDREL | SOLDIERS RELIEF 121 | N/A | N/A | N/A | N/A | | |
| EMERGSER | EMS 147 | N/A | N/A | N/A | N/A | | |
| EMSRFD | EMS REFUND 147 | N/A | N/A | N/A | N/A | | |
| PORTRFD | PORT REFUND 640 | N/A | N/A | N/A | N/A | | |
| PORTWWGEN | PORT OF WW 640 | N/A | N/A | N/A | N/A | | |
| SD140BOND | SD #140 BOND 764 | N/A | N/A | N/A | N/A | | |
| SD140GEN | SD #140 GENERAL 760 | N/A | N/A | N/A | N/A | | |
| ST2 | STATE SCHOOL PART 2 600 | N/A | N/A | N/A | N/A | | |
| STATESCHL | STATE SCHOOL 600 | N/A | N/A | N/A | N/A | | |
| STREFUND | STATE REFUND LEVY 603 | N/A | N/A | N/A | N/A | | |
| CWWBOND | C OF WW BOND 643 | N/A | N/A | N/A | N/A | | |
| CWWGEN | CITY OF WW 631 | N/A | N/A | N/A | N/A | | |
| CWWRFD | CITY OF WALLA WALLA REFUND 631 | N/A | N/A | N/A | N/A | | |
| | Total Tax Rate: | N/A | | | | | |
| | | | | Taxes w/Current Exemptions: | N/A | | |
| | | | | Taxes w/o Exemptions: | N/A | | |
Improvement / Building
| Improvement #1: | COMMERCIAL | State Code: | 51 | 13638.0 sqft | Value: | N/A |
Sketch
Property Image
Land
| 1 | COM 1 | Converted: Commercial | 0.3312 | 14427.07 | 0.00 | 0.00 | 1.00 | N/A | N/A |
Roll Value History
| 2026 | N/A | N/A | N/A | N/A | N/A |
| 2025 | $279,400 | $144,300 | $0 | $423,700 | $0 |
| 2024 | $279,400 | $129,800 | $0 | $409,200 | $0 |
| 2023 | $279,400 | $129,800 | $0 | $409,200 | $0 |
| 2022 | $279,400 | $129,800 | $0 | $409,200 | $0 |
| 2021 | $216,400 | $129,800 | $0 | $346,200 | $0 |
| 2020 | $216,400 | $129,800 | $0 | $346,200 | $0 |
| 2019 | $216,400 | $129,800 | $0 | $346,200 | $0 |
| 2018 | $216,400 | $129,800 | $0 | $346,200 | $0 |
| 2017 | $216,400 | $129,800 | $0 | $346,200 | $0 |
| 2016 | $216,400 | $129,800 | $0 | $346,200 | $0 |
| 2015 | $237,800 | $103,700 | $0 | $341,500 | $0 |
| 2014 | $237,800 | $103,700 | $0 | $341,500 | $0 |
| 2013 | $237,800 | $103,700 | $0 | $341,500 | $341,500 |
| 2012 | $237,800 | $103,700 | $0 | $0 | $0 |
| 2011 | $237,800 | $103,700 | $0 | $0 | $0 |
| 2010 | $172,900 | $60,500 | $0 | $0 | $0 |
| 2009 | $183,000 | $50,400 | $0 | $0 | $0 |
| 2008 | $183,000 | $50,400 | $0 | $0 | $0 |
| 2007 | $183,000 | $50,400 | $0 | $0 | $0 |
Deed and Sales History
| 1 | 02/28/2025 | REAL ESTAT | REAL ESTATE CONTRACT | KNUDSON FAMILY TRUST | NEW BEGINNING CHAPEL | | | $547,075.00 | 149120 | 2025-01560 |
|   | |
| 2 | 10/18/2012 | QCD | QUIT CLAIM DEED | KNUDSON, EVERETT J | KNUDSON FAMILY TRUST | | | $0.00 | 122824 | 2012-09177 |
| 3 | 01/25/1988 | WARRANTY D | WARRANTY DEED | | | | | $55,600.00 | 0 | 1688-800497 |
Payout Agreement
| No payout information available.. |