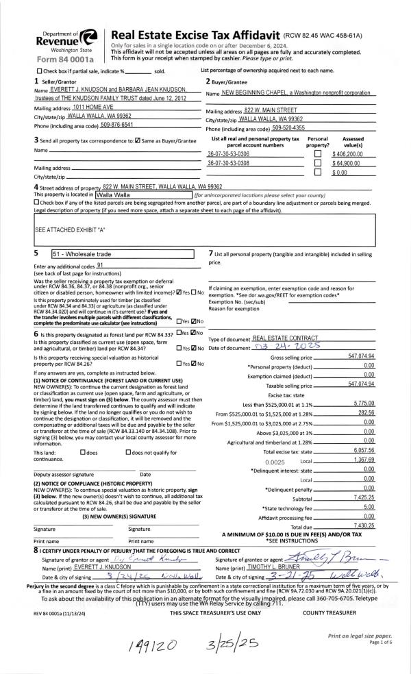
Property
Account |
| Property ID: | 34237 | Abbreviated Legal Description: | REESES LOT 8 BLK 3 |
| Parcel Number: | 360730530308 | Agent Code: | |
| Type: | Real | | |
| Tax Area: | 1 - OL-140-F | Land Use Code | 91 |
| Open Space: | N | DFL | N |
| Historic Property: | N | Remodel Property: | N |
| Multi-Family Redevelopment: | N | | |
| Township: | 7 | Section: | 30 |
| Range: | 36 |
Location |
| Address: | 822 W MAIN ST WA 99362 | Mapsco: | |
| Neighborhood: | | Map ID: | |
| Neighborhood CD: | 3343 |
Owner |
| Name: | KNUDSON FAMILY TRUST | Owner ID: | 51836 |
| Mailing Address: | 1011 HOME AVE WALLA WALLA, WA 99362 | % Ownership: | 100.0000000000% |
| | | Exemptions: | EX |
Taxes and Assessment Details
Property Tax Information as of
02/21/2026
Click on "Statement Details" to expand or collapse a tax statement.
* Please enter a valid date ** Please enter a valid date *
Statement Details |
| | TOTAL: | $0.00 | $0.00 | $0.00 | $0.00 | $0.00 | $0.00 |
|
| | $0.00 | $0.00 | $0.00 | $0.00 | $0.00 | $0.00 |
Values
| (+) Improvement Homesite Value: | + | $0 | |
| (+) Improvement Non-Homesite Value: | + | $0 | |
| (+) Land Homesite Value: | + | $0 | |
| (+) Land Non-Homesite Value: | + | $64,900 | |
| (+) Curr Use (HS): | + | $0 | $0 |
| (+) Curr Use (NHS): | + | $0 | $0 |
| | | -------------------------- | |
| (=) Market Value: | = | $64,900 | |
| (–) Productivity Loss: | – | $0 | |
| | | -------------------------- | |
| (=) Subtotal: | = | $64,900 | |
| (+) Senior Appraised Value: | + | $0 | |
| (+) Non-Senior Appraised Value: | + | $64,900 | |
| | | -------------------------- | |
| (=) Total Appraised Value: | = | $64,900 | |
| (–) Senior Exemption Loss: | – | $0 | |
| (–) Exemption Loss: | – | $64,900 | |
| | | -------------------------- | |
| (=) Taxable Value: | = | $0 | |
Taxing Jurisdiction
| Owner: | KNUDSON FAMILY TRUST | | |
| % Ownership: | 100.0000000000% | | |
| Total Value: | $64,900 | | |
| Tax Area: | 1 - OL-140-F |
| CERFD | CURRENT EXPENSE REFUND 010 | 0.0000000000 | $64,900 | $0 | $0.00 | | |
| CURREXP | CURRENT EXPENSE 010 | 1.0175366760 | $64,900 | $0 | $0.00 | | |
| HUMNSERV | HUMAN SERVICES 119 | 0.0250000000 | $64,900 | $0 | $0.00 | | |
| SLDREL | SOLDIERS RELIEF 121 | 0.0155990005 | $64,900 | $0 | $0.00 | | |
| EMERGSER | EMS 147 | 0.3792580840 | $64,900 | $0 | $0.00 | | |
| EMSRFD | EMS REFUND 147 | 0.0000000000 | $64,900 | $0 | $0.00 | | |
| PORTRFD | PORT REFUND 640 | 0.0000000000 | $64,900 | $0 | $0.00 | | |
| PORTWWGEN | PORT OF WW 640 | 0.2460186015 | $64,900 | $0 | $0.00 | | |
| SD140BOND | SD #140 BOND 764 | 0.8342371393 | $64,900 | $0 | $0.00 | | |
| SD140GEN | SD #140 GENERAL 760 | 2.0646500647 | $64,900 | $0 | $0.00 | | |
| ST2 | STATE SCHOOL PART 2 600 | 0.8131451643 | $64,900 | $0 | $0.00 | | |
| STATESCHL | STATE SCHOOL 600 | 1.5158548041 | $64,900 | $0 | $0.00 | | |
| STREFUND | STATE REFUND LEVY 603 | 0.0000000000 | $64,900 | $0 | $0.00 | | |
| CWWBOND | C OF WW BOND 643 | 0.2760494372 | $64,900 | $0 | $0.00 | | |
| CWWGEN | CITY OF WW 631 | 1.6100204973 | $64,900 | $0 | $0.00 | | |
| CWWRFD | CITY OF WALLA WALLA REFUND 631 | 0.0000000000 | $64,900 | $0 | $0.00 | | |
| | Total Tax Rate: | 8.7973694689 | | | | | |
| | | | | Taxes w/Current Exemptions: | $0.00 | | |
| | | | | Taxes w/o Exemptions: | $570.95 | | |
Improvement / Building
Sketch
| No sketches available for this property. |
Property Image
Land
| 1 | COM 1 | Converted: Commercial | 0.1656 | 7213.54 | 0.00 | 0.00 | 1.00 | $64,900 | $0 |
Roll Value History
| 2026 | N/A | N/A | N/A | N/A | N/A |
| 2025 | $0 | $64,900 | $0 | $64,900 | $0 |
| 2024 | $0 | $64,900 | $0 | $64,900 | $0 |
| 2023 | $0 | $64,900 | $0 | $64,900 | $0 |
| 2022 | $0 | $64,900 | $0 | $64,900 | $0 |
| 2021 | $0 | $64,800 | $0 | $64,800 | $0 |
| 2020 | $0 | $64,800 | $0 | $64,800 | $0 |
| 2019 | $0 | $64,800 | $0 | $64,800 | $0 |
| 2018 | $0 | $64,800 | $0 | $64,800 | $0 |
| 2017 | $0 | $64,800 | $0 | $64,800 | $0 |
| 2016 | $0 | $64,800 | $0 | $64,800 | $0 |
| 2015 | $0 | $25,900 | $0 | $25,900 | $0 |
| 2014 | $0 | $25,900 | $0 | $25,900 | $0 |
| 2013 | $0 | $25,900 | $0 | $25,900 | $25,900 |
| 2012 | $0 | $25,900 | $0 | $0 | $0 |
| 2011 | $0 | $25,900 | $0 | $0 | $0 |
| 2010 | $0 | $25,200 | $0 | $0 | $0 |
| 2009 | $0 | $25,200 | $0 | $0 | $0 |
| 2008 | $0 | $25,200 | $0 | $0 | $0 |
| 2007 | $0 | $25,200 | $0 | $0 | $0 |
Deed and Sales History
| 1 | 02/28/2025 | REAL ESTAT | REAL ESTATE CONTRACT | KNUDSON FAMILY TRUST | NEW BEGINNING CHAPEL | | | $547,075.00 | 149120 | 2025-01560 |
|   | |
| 2 | 10/18/2012 | QCD | QUIT CLAIM DEED | KNUDSON, EVERETT J | KNUDSON FAMILY TRUST | | | $0.00 | 122825 | 2012-09178 |
| 3 | 04/11/1988 | WARRANTY D | WARRANTY DEED | | | | | $10,400.00 | 0 | 1708-802187 |
Payout Agreement
| No payout information available.. |