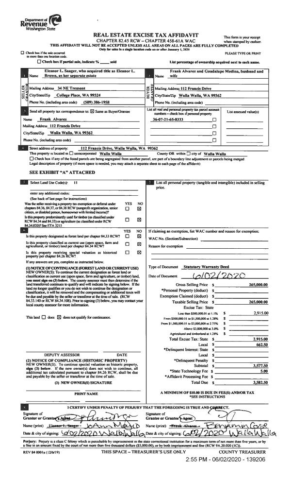
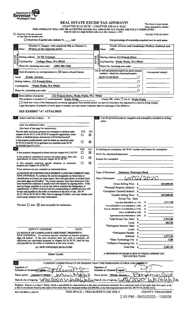
Property
Account |
| Property ID: | 34181 | Abbreviated Legal Description: | MILBROOKE PARK LOT 33 BLK 3 |
| Parcel Number: | 360721650333 | Agent Code: | |
| Type: | Real | | |
| Tax Area: | 1 - OL-140-F | Land Use Code | 11 |
| Open Space: | N | DFL | N |
| Historic Property: | N | Remodel Property: | N |
| Multi-Family Redevelopment: | N | | |
| Township: | 7 | Section: | 21 |
| Range: | 36 |
Location |
| Address: | 112 FRANCIS DR WA 99362 | Mapsco: | |
| Neighborhood: | A-Superior SFR | Map ID: | |
| Neighborhood CD: | 513211 |
Owner |
| Name: | ALVAREZ FRANK & GUADALUPE MEDINA | Owner ID: | 67254 |
| Mailing Address: | 112 FRANCIS DR WALLA WALLA, WA 99362 | % Ownership: | 100.0000000000% |
| | | Exemptions: | |
Taxes and Assessment Details
Values
| (+) Improvement Homesite Value: | + | $0 | |
| (+) Improvement Non-Homesite Value: | + | $287,880 | |
| (+) Land Homesite Value: | + | $0 | |
| (+) Land Non-Homesite Value: | + | $42,380 | |
| (+) Curr Use (HS): | + | $0 | $0 |
| (+) Curr Use (NHS): | + | $0 | $0 |
| | | -------------------------- | |
| (=) Market Value: | = | $330,260 | |
| (–) Productivity Loss: | – | $0 | |
| | | -------------------------- | |
| (=) Subtotal: | = | $330,260 | |
| (+) Senior Appraised Value: | + | $0 | |
| (+) Non-Senior Appraised Value: | + | $330,260 | |
| | | -------------------------- | |
| (=) Total Appraised Value: | = | $330,260 | |
| (–) Senior Exemption Loss: | – | $0 | |
| (–) Exemption Loss: | – | $0 | |
| | | -------------------------- | |
| (=) Taxable Value: | = | $330,260 | |
Taxing Jurisdiction
| Owner: | ALVAREZ FRANK & GUADALUPE MEDINA | | |
| % Ownership: | 100.0000000000% | | |
| Total Value: | $330,260 | | |
| Tax Area: | 1 - OL-140-F |
| CERFD | CURRENT EXPENSE REFUND 010 | 0.0000000000 | $330,260 | $330,260 | $0.00 | | |
| CURREXP | CURRENT EXPENSE 010 | 1.0175366760 | $330,260 | $330,260 | $336.05 | | |
| HUMNSERV | HUMAN SERVICES 119 | 0.0250000000 | $330,260 | $330,260 | $8.26 | | |
| SLDREL | SOLDIERS RELIEF 121 | 0.0155990005 | $330,260 | $330,260 | $5.15 | | |
| EMERGSER | EMS 147 | 0.3792580840 | $330,260 | $330,260 | $125.25 | | |
| EMSRFD | EMS REFUND 147 | 0.0000000000 | $330,260 | $330,260 | $0.00 | | |
| PORTRFD | PORT REFUND 640 | 0.0000000000 | $330,260 | $330,260 | $0.00 | | |
| PORTWWGEN | PORT OF WW 640 | 0.2460186015 | $330,260 | $330,260 | $81.25 | | |
| SD140BOND | SD #140 BOND 764 | 0.8342371393 | $330,260 | $330,260 | $275.52 | | |
| SD140GEN | SD #140 GENERAL 760 | 2.0646500647 | $330,260 | $330,260 | $681.87 | | |
| ST2 | STATE SCHOOL PART 2 600 | 0.8131451643 | $330,260 | $330,260 | $268.55 | | |
| STATESCHL | STATE SCHOOL 600 | 1.5158548041 | $330,260 | $330,260 | $500.63 | | |
| STREFUND | STATE REFUND LEVY 603 | 0.0000000000 | $330,260 | $330,260 | $0.00 | | |
| CWWBOND | C OF WW BOND 643 | 0.2760494372 | $330,260 | $330,260 | $91.17 | | |
| CWWGEN | CITY OF WW 631 | 1.6100204973 | $330,260 | $330,260 | $531.73 | | |
| CWWRFD | CITY OF WALLA WALLA REFUND 631 | 0.0000000000 | $330,260 | $330,260 | $0.00 | | |
| | Total Tax Rate: | 8.7973694689 | | | | | |
| | | | | Taxes w/Current Exemptions: | $2,905.43 | | |
| | | | | Taxes w/o Exemptions: | $2,905.43 | | |
Improvement / Building
| Improvement #1: | RESIDENTIAL | State Code: | 11 | 1040.0 sqft | Value: | $287,880 |
| Exterior Wall: | SIDING | Heating/Cooling: | FORCED AIR | | Number of Bathrooms: | 2 | Number of Bedrooms: | 3 | | Plumbing: | 8 | Roof Covering: | COMP SHINGLE |
|
| | Type | Description | Class CD | Sub Class CD | Year Built | Area |
| | MA | Main Area | 1 | 30 | 1953 | 1040.0 |
| | SI1 | SITE IMPROVEMENT | 1 | 30 | 1953 | 1.5 |
| | BASE | BASEMENT | 1 | 30 | 1953 | 1040.0 |
| | BPF | BASEMENT -PARTITIONED FINISH | 1 | 30 | 1953 | 520.0 |
| | DTG | Detached Garage | 1 | 30 | 1953 | 240.0 |
| | RPS | PORCH W/STEPS,ROOF | 1 | 30 | 1953 | 60.0 |
Sketch
Property Image
Land
| 1 | RES 1 | Converted: Residential | 0.1556 | 6780.00 | 0.00 | 0.00 | 1.00 | $42,380 | $0 |
Roll Value History
| 2026 | N/A | N/A | N/A | N/A | N/A |
| 2025 | $272,670 | $67,800 | $0 | $340,470 | $340,470 |
| 2024 | $247,880 | $67,800 | $0 | $315,680 | $315,680 |
| 2023 | $287,880 | $42,380 | $0 | $330,260 | $330,260 |
| 2022 | $274,170 | $42,380 | $0 | $316,550 | $316,550 |
| 2021 | $210,900 | $42,380 | $0 | $253,280 | $253,280 |
| 2020 | $140,600 | $42,380 | $0 | $182,980 | $182,980 |
| 2019 | $140,600 | $42,380 | $0 | $182,980 | $182,980 |
| 2018 | $140,600 | $42,380 | $0 | $182,980 | $182,980 |
| 2017 | $153,240 | $27,100 | $0 | $180,340 | $180,340 |
| 2016 | $127,700 | $27,100 | $0 | $154,800 | $154,800 |
| 2015 | $127,700 | $27,100 | $0 | $154,800 | $154,800 |
| 2014 | $127,700 | $27,100 | $0 | $154,800 | $154,800 |
| 2013 | $127,700 | $27,100 | $0 | $154,800 | $154,800 |
| 2012 | $132,900 | $27,100 | $0 | $0 | $0 |
| 2011 | $132,900 | $27,100 | $0 | $0 | $0 |
| 2010 | $125,300 | $27,100 | $0 | $0 | $0 |
| 2009 | $142,200 | $27,100 | $0 | $0 | $0 |
| 2008 | $114,000 | $27,100 | $0 | $0 | $0 |
| 2007 | $114,000 | $27,100 | $0 | $0 | $0 |
Deed and Sales History
| 1 | 06/02/2020 | SWD | STATUTORY WARRANTY DEED | SAAGER ELEANOR L | ALVAREZ FRANK & GUADALUPE MEDINA | | | $265,000.00 | 139206 | 2020-04935 |
| 2 | 07/22/2002 | WARRANTY D | WARRANTY DEED | | | | | $97,500.00 | 99989 | 2002-0008237 |
Payout Agreement
| No payout information available.. |