Property
Account |
| Property ID: | 3416 | Abbreviated Legal Description: | HILLTOP ACRES PHASE 1 LOT 6 BLK 4 |
| Parcel Number: | 350614510406 | Agent Code: | |
| Type: | Real | | |
| Tax Area: | 311 - 250-4 | Land Use Code | 11 |
| Open Space: | N | DFL | N |
| Historic Property: | N | Remodel Property: | N |
| Multi-Family Redevelopment: | N | | |
| Township: | 6 | Section: | 14 |
| Range: | 35 |
Location |
| Address: | 78 TYBEN CT WA 99324 | Mapsco: | |
| Neighborhood: | G SFR Rural | Map ID: | |
| Neighborhood CD: | 214013 |
Owner |
| Name: | CRAWFORD STEVEN EDWARD & MARY KATHLEEN | Owner ID: | 62904 |
| Mailing Address: | 78 TYBEN CT WALLA WALLA, WA 99362 | % Ownership: | 100.0000000000% |
| | | Exemptions: | |
Taxes and Assessment Details
Property Tax Information as of
02/21/2026
Click on "Statement Details" to expand or collapse a tax statement.
* Please enter a valid date ** Please enter a valid date *
Statement Details |
| | TOTAL: | $0.00 | $0.00 | $0.00 | $0.00 | $0.00 | $0.00 |
|
| | $0.00 | $0.00 | $0.00 | $0.00 | $0.00 | $0.00 |
Values
| (+) Improvement Homesite Value: | + | $0 | |
| (+) Improvement Non-Homesite Value: | + | $705,330 | |
| (+) Land Homesite Value: | + | $0 | |
| (+) Land Non-Homesite Value: | + | $127,410 | |
| (+) Curr Use (HS): | + | $0 | $0 |
| (+) Curr Use (NHS): | + | $0 | $0 |
| | | -------------------------- | |
| (=) Market Value: | = | $832,740 | |
| (–) Productivity Loss: | – | $0 | |
| | | -------------------------- | |
| (=) Subtotal: | = | $832,740 | |
| (+) Senior Appraised Value: | + | $0 | |
| (+) Non-Senior Appraised Value: | + | $832,740 | |
| | | -------------------------- | |
| (=) Total Appraised Value: | = | $832,740 | |
| (–) Senior Exemption Loss: | – | $0 | |
| (–) Exemption Loss: | – | $0 | |
| | | -------------------------- | |
| (=) Taxable Value: | = | $832,740 | |
Taxing Jurisdiction
| Owner: | CRAWFORD STEVEN EDWARD & MARY KATHLEEN | | |
| % Ownership: | 100.0000000000% | | |
| Total Value: | $832,740 | | |
| Tax Area: | 311 - 250-4 |
| CERFD | CURRENT EXPENSE REFUND 010 | 0.0000000000 | $832,740 | $832,740 | $0.00 | | |
| CURREXP | CURRENT EXPENSE 010 | 1.0175366760 | $832,740 | $832,740 | $847.34 | | |
| HUMNSERV | HUMAN SERVICES 119 | 0.0250000000 | $832,740 | $832,740 | $20.82 | | |
| SLDREL | SOLDIERS RELIEF 121 | 0.0155990005 | $832,740 | $832,740 | $12.99 | | |
| EMERGSER | EMS 147 | 0.3792580840 | $832,740 | $832,740 | $315.82 | | |
| EMSRFD | EMS REFUND 147 | 0.0000000000 | $832,740 | $832,740 | $0.00 | | |
| FD4EXP | FD #4 EXPENSE 686 | 0.8836993059 | $832,740 | $832,740 | $735.89 | | |
| RLBRFD | RURAL LIBRARY REFUND 623 | 0.0000000000 | $832,740 | $832,740 | $0.00 | | |
| RURALLIB | RURAL LIBRARY 623 | 0.3710609029 | $832,740 | $832,740 | $309.00 | | |
| PORTRFD | PORT REFUND 640 | 0.0000000000 | $832,740 | $832,740 | $0.00 | | |
| PORTWWGEN | PORT OF WW 640 | 0.2460186015 | $832,740 | $832,740 | $204.87 | | |
| SD250BOND | SD #250 BOND 773 | 1.4560608159 | $832,740 | $832,740 | $1,212.52 | | |
| SD250GEN | SD #250 GENERAL 770 | 2.3880724087 | $832,740 | $832,740 | $1,988.64 | | |
| ST2 | STATE SCHOOL PART 2 600 | 0.8131451643 | $832,740 | $832,740 | $677.14 | | |
| STATESCHL | STATE SCHOOL 600 | 1.5158548041 | $832,740 | $832,740 | $1,262.31 | | |
| STREFUND | STATE REFUND LEVY 603 | 0.0000000000 | $832,740 | $832,740 | $0.00 | | |
| COROAD | COUNTY ROAD 115 | 1.6549953990 | $832,740 | $832,740 | $1,378.18 | | |
| CRPRD | COUNTY ROAD REFUND 115 | 0.0000000000 | $832,740 | $832,740 | $0.00 | | |
| | Total Tax Rate: | 10.7663011628 | | | | | |
| | | | | Taxes w/Current Exemptions: | $8,965.52 | | |
| | | | | Taxes w/o Exemptions: | $8,965.52 | | |
Improvement / Building
| Improvement #1: | RESIDENTIAL | State Code: | 11 | 2509.0 sqft | Value: | $705,330 |
| Exterior Wall: | HARDBOARD | Heating/Cooling: | HEAT PUMP | | Number of Bathrooms: | 3 | Number of Bedrooms: | 4 | | Plumbing: | 15 | Roof Covering: | COMP SHINGLE |
|
| | Type | Description | Class CD | Sub Class CD | Year Built | Area |
| | MA | Main Area | 1 | 45 | 2018 | 2509.0 |
| | ATG | Attached Garage | 1 | 45 | 2018 | 648.0 |
| | RPC | OPEN PORCH W/ROOF , CEILED | 1 | 45 | 2018 | 45.0 |
| | RPC | OPEN PORCH W/ROOF , CEILED | 1 | 45 | 2018 | 242.0 |
| | SI1 | SITE IMPROVEMENT | 1 | 45 | 2018 | 5.5 |
| | GFP | GAS FIREPLACE | 1 | 45 | 2018 | 1.0 |
| | BON1 | BONUS RM ATT/MIN OR NO FINISH | 1 | 45 | 2018 | 300.0 |
Sketch
Property Image
Land
| 1 | RES 1 | Converted: Residential | 2.4300 | 105850.80 | 0.00 | 0.00 | 1.00 | $127,410 | $0 |
Roll Value History
| 2026 | N/A | N/A | N/A | N/A | N/A |
| 2025 | $881,660 | $127,410 | $0 | $1,009,070 | $1,009,070 |
| 2024 | $705,330 | $127,410 | $0 | $832,740 | $832,740 |
| 2023 | $705,330 | $127,410 | $0 | $832,740 | $832,740 |
| 2022 | $705,330 | $127,410 | $0 | $832,740 | $832,740 |
| 2021 | $427,470 | $127,410 | $0 | $554,880 | $554,880 |
| 2020 | $427,470 | $90,000 | $0 | $517,470 | $517,470 |
| 2019 | $427,470 | $90,000 | $0 | $517,470 | $517,470 |
| 2018 | $427,470 | $90,000 | $0 | $517,470 | $517,470 |
| 2017 | $0 | $90,000 | $0 | $90,000 | $90,000 |
| 2016 | $0 | $90,000 | $0 | $90,000 | $90,000 |
| 2015 | $0 | $90,000 | $0 | $90,000 | $90,000 |
| 2014 | $0 | $90,000 | $0 | $90,000 | $90,000 |
| 2013 | $0 | $90,000 | $0 | $90,000 | $90,000 |
| 2012 | $0 | $135,000 | $0 | $0 | $0 |
| 2011 | $0 | $135,000 | $0 | $0 | $0 |
| 2010 | $0 | $155,000 | $0 | $0 | $0 |
| 2009 | $0 | $155,000 | $0 | $0 | $0 |
| 2008 | $0 | $70,000 | $0 | $0 | $0 |
| 2007 | $0 | $70,000 | $0 | $0 | $0 |
Deed and Sales History
| 1 | 04/17/2018 | SWD | STATUTORY WARRANTY DEED | SONOMA HOMES LLC | CRAWFORD STEVEN EDWARD & MARY KATHLEEN | | | $535,000.00 | 134513 | 2018-03009 |
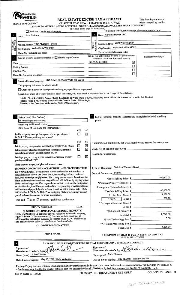
| 2 | 05/16/2017 | SWD | STATUTORY WARRANTY DEED | CULHANE JOHN A | SONOMA HOMES LLC | | | $100,000.00 | 132398 | 2017-03697 |
| 3 | 08/26/2005 | WARRANTY D | WARRANTY DEED | "SUMMERS, JAY & JUNE" | | | | | 86447 | 2005--10601 |
| 4 | 07/27/2005 | WARRANTY D | WARRANTY DEED | GRAND VISTA ESTATE DEV LLC | CULHANE, JOHN A | | | $115,000.00 | 108059 | 2005-09181 |
Payout Agreement
| No payout information available.. |