Property
Account |
| Property ID: | 34157 | Abbreviated Legal Description: | VALLEY ACRES LOT 20 |
| Parcel Number: | 350601560020 | Agent Code: | |
| Type: | Real | | |
| Tax Area: | 2 - OL-250 | Land Use Code | 11 |
| Open Space: | N | DFL | N |
| Historic Property: | N | Remodel Property: | N |
| Multi-Family Redevelopment: | N | | |
| Township: | 6 | Section: | 1 |
| Range: | 35 |
Location |
| Address: | 74 DRESDEN CT WA 99324 | Mapsco: | |
| Neighborhood: | G SFR | Map ID: | |
| Neighborhood CD: | 114011 |
Owner |
| Name: | NEWTON RYAN D & ALISHA | Owner ID: | 69735 |
| Mailing Address: | 74 DRESDEN CT WALLA WALLA, WA 99362 | % Ownership: | 100.0000000000% |
| | | Exemptions: | |
Taxes and Assessment Details
Values
| (+) Improvement Homesite Value: | + | $0 | |
| (+) Improvement Non-Homesite Value: | + | $480,120 | |
| (+) Land Homesite Value: | + | $0 | |
| (+) Land Non-Homesite Value: | + | $75,000 | |
| (+) Curr Use (HS): | + | $0 | $0 |
| (+) Curr Use (NHS): | + | $0 | $0 |
| | | -------------------------- | |
| (=) Market Value: | = | $555,120 | |
| (–) Productivity Loss: | – | $0 | |
| | | -------------------------- | |
| (=) Subtotal: | = | $555,120 | |
| (+) Senior Appraised Value: | + | $0 | |
| (+) Non-Senior Appraised Value: | + | $555,120 | |
| | | -------------------------- | |
| (=) Total Appraised Value: | = | $555,120 | |
| (–) Senior Exemption Loss: | – | $0 | |
| (–) Exemption Loss: | – | $0 | |
| | | -------------------------- | |
| (=) Taxable Value: | = | $555,120 | |
Taxing Jurisdiction
| Owner: | NEWTON RYAN D & ALISHA | | |
| % Ownership: | 100.0000000000% | | |
| Total Value: | $555,120 | | |
| Tax Area: | 2 - OL-250 |
| CERFD | CURRENT EXPENSE REFUND 010 | 0.0000000000 | $555,120 | $555,120 | $0.00 | | |
| CURREXP | CURRENT EXPENSE 010 | 1.0175366760 | $555,120 | $555,120 | $564.85 | | |
| HUMNSERV | HUMAN SERVICES 119 | 0.0250000000 | $555,120 | $555,120 | $13.88 | | |
| SLDREL | SOLDIERS RELIEF 121 | 0.0155990005 | $555,120 | $555,120 | $8.66 | | |
| EMERGSER | EMS 147 | 0.3792580840 | $555,120 | $555,120 | $210.53 | | |
| EMSRFD | EMS REFUND 147 | 0.0000000000 | $555,120 | $555,120 | $0.00 | | |
| PORTRFD | PORT REFUND 640 | 0.0000000000 | $555,120 | $555,120 | $0.00 | | |
| PORTWWGEN | PORT OF WW 640 | 0.2460186015 | $555,120 | $555,120 | $136.57 | | |
| SD250BOND | SD #250 BOND 773 | 1.4560608159 | $555,120 | $555,120 | $808.29 | | |
| SD250GEN | SD #250 GENERAL 770 | 2.3880724087 | $555,120 | $555,120 | $1,325.67 | | |
| ST2 | STATE SCHOOL PART 2 600 | 0.8131451643 | $555,120 | $555,120 | $451.39 | | |
| STATESCHL | STATE SCHOOL 600 | 1.5158548041 | $555,120 | $555,120 | $841.48 | | |
| STREFUND | STATE REFUND LEVY 603 | 0.0000000000 | $555,120 | $555,120 | $0.00 | | |
| CWWBOND | C OF WW BOND 643 | 0.2760494372 | $555,120 | $555,120 | $153.24 | | |
| CWWGEN | CITY OF WW 631 | 1.6100204973 | $555,120 | $555,120 | $893.75 | | |
| CWWRFD | CITY OF WALLA WALLA REFUND 631 | 0.0000000000 | $555,120 | $555,120 | $0.00 | | |
| | Total Tax Rate: | 9.7426154895 | | | | | |
| | | | | Taxes w/Current Exemptions: | $5,408.31 | | |
| | | | | Taxes w/o Exemptions: | $5,408.31 | | |
Improvement / Building
| Improvement #1: | RESIDENTIAL | State Code: | 11 | 2741.0 sqft | Value: | $480,120 |
| Exterior Wall: | HARDBOARD | Heating/Cooling: | WARM & COOLED AIR | | Number of Bathrooms: | 2.5 | Number of Bedrooms: | 4 | | Plumbing: | 12 | Roof Covering: | COMP SHINGLE |
|
| | Type | Description | Class CD | Sub Class CD | Year Built | Area |
| | MA | Main Area | 4 | 35 | 2008 | 2741.0 |
| | SI1 | SITE IMPROVEMENT | 4 | 35 | 2008 | 3.0 |
| | UPFL | Upper Floor (included in main area) | 4 | 35 | 2008 | 994.0 |
| | ATG | Attached Garage | 4 | 35 | 2008 | 621.0 |
| | RPC | OPEN PORCH W/ROOF , CEILED | 4 | 35 | 2008 | 75.0 |
| | WOD | Wood Deck | 4 | 35 | 2008 | 160.0 |
| | GFP | GAS FIREPLACE | 4 | 35 | 2008 | 1.0 |
Sketch
Property Image
Land
| 1 | RES 1 | Converted: Residential | 0.3125 | 13612.00 | 0.00 | 0.00 | 1.00 | $75,000 | $0 |
Roll Value History
| 2026 | N/A | N/A | N/A | N/A | N/A |
| 2025 | $432,100 | $135,000 | $0 | $567,100 | $567,100 |
| 2024 | $480,120 | $75,000 | $0 | $555,120 | $555,120 |
| 2023 | $480,120 | $75,000 | $0 | $555,120 | $555,120 |
| 2022 | $384,090 | $75,000 | $0 | $459,090 | $459,090 |
| 2021 | $349,180 | $75,000 | $0 | $424,180 | $424,180 |
| 2020 | $303,630 | $75,000 | $0 | $378,630 | $378,630 |
| 2019 | $313,630 | $65,000 | $0 | $378,630 | $378,630 |
| 2018 | $285,120 | $65,000 | $0 | $350,120 | $350,120 |
| 2017 | $237,600 | $65,000 | $0 | $302,600 | $302,600 |
| 2016 | $237,600 | $65,000 | $0 | $302,600 | $302,600 |
| 2015 | $237,600 | $65,000 | $0 | $302,600 | $302,600 |
| 2014 | $237,600 | $65,000 | $0 | $302,600 | $302,600 |
| 2013 | $237,600 | $65,000 | $0 | $302,600 | $302,600 |
| 2012 | $237,600 | $65,000 | $0 | $0 | $0 |
| 2011 | $223,200 | $65,000 | $0 | $0 | $0 |
| 2010 | $223,200 | $65,000 | $0 | $0 | $0 |
| 2009 | $238,400 | $65,000 | $0 | $0 | $0 |
| 2008 | $0 | $1,900 | $0 | $0 | $0 |
| 2007 | $237,600 | $65,000 | $0 | $0 | $0 |
Deed and Sales History
| 1 | 07/02/2021 | SWD | STATUTORY WARRANTY DEED | MYRES JAMES FREDERICK | NEWTON RYAN D & ALISHA | | | $490,000.00 | 141970 | 2021-08101 |
| 2 | 06/21/2019 | SWP | Special Warranty Deed | SECRETARY OF VETERANS AFFAIRS | MYRES JAMES FREDERICK | | | $0.00 | 137154 | 2019-04502 |
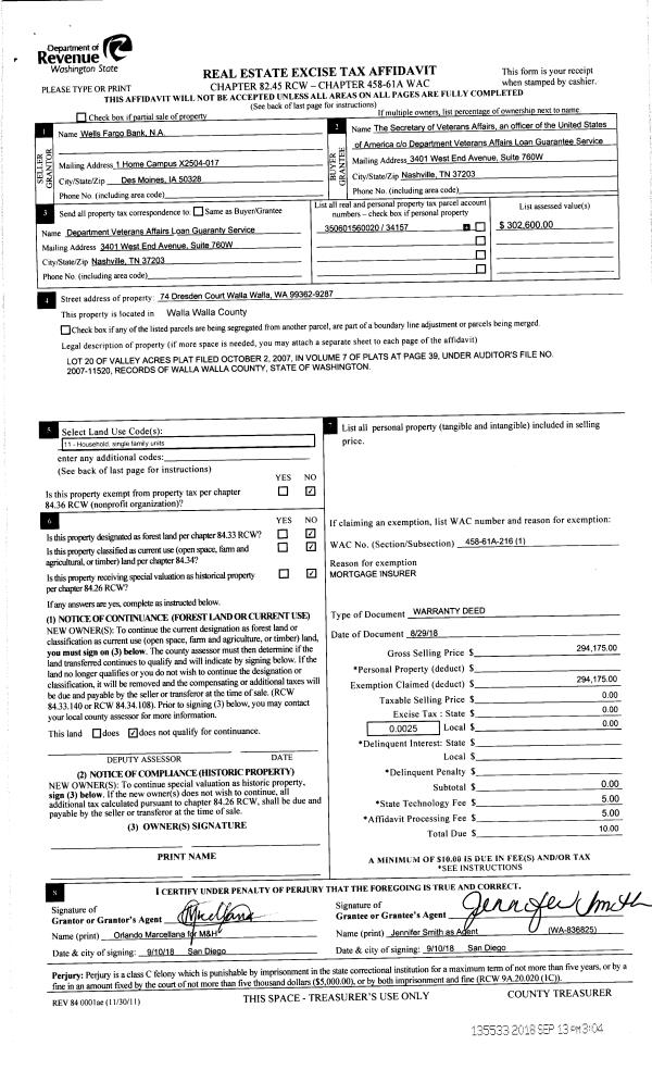
| 3 | 09/13/2018 | WARRANTY D | WARRANTY DEED | WELLS FARGO BANK | SECRETARY OF VETERANS AFFAIRS | | | $294,175.00 | 135533 | 2018-07633 |
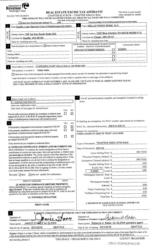
| 4 | 08/24/2018 | TRUSTEES D | TRUSTEE'S DEED | BIDDISCOMBE WILLY | WELLS FARGO BANK | | | $294,175.00 | 135404 | 2018-07009 |
| 5 | 10/24/2012 | WARRANTY D | WARRANTY DEED | SILVER, ALYCIA | BIDDISCOMBE, WILLY | | | $307,000.00 | 122870 | 2012-09389 |
| 6 | 03/10/2010 | QCD | QUIT CLAIM DEED | SILVER, ALYCIA | SILVER, ALYCIA | | | | 118181 | 2010-02045 |
| 7 | 05/29/2008 | WARRANTY D | WARRANTY DEED | S R HOMES LLC | SILVER, ALYCIA | | | $304,335.00 | 115100 | 2008-05435 |
Payout Agreement
| No payout information available.. |