Property
Account |
| Property ID: | 34147 | Abbreviated Legal Description: | 19-7-36 LOT 7 SHORT PLAT 2000-10766 3/290 (PT TAX 17) |
| Parcel Number: | 360719430052 | Agent Code: | |
| Type: | Real | | |
| Tax Area: | 1 - OL-140-F | Land Use Code | 64 |
| Open Space: | N | DFL | N |
| Historic Property: | N | Remodel Property: | N |
| Multi-Family Redevelopment: | N | | |
| Township: | 7 | Section: | 19 |
| Range: | 36 |
Location |
| Address: | 618 INDUSTRIAL CT WALLA WALLA, WA 99362 | Mapsco: | |
| Neighborhood: | COMMERCIAL INDUSTRIAL | Map ID: | |
| Neighborhood CD: | 3303 |
Owner |
| Name: | SRJ LAND COMPANY LLC | Owner ID: | 78262 |
| Mailing Address: | 2430 SE KELLI BLVD HERMISTON, OR 97838 | % Ownership: | 100.0000000000% |
| | | Exemptions: | |
Taxes and Assessment Details
Values
| (+) Improvement Homesite Value: | + | N/A | |
| (+) Improvement Non-Homesite Value: | + | N/A | |
| (+) Land Homesite Value: | + | N/A | |
| (+) Land Non-Homesite Value: | + | N/A | Ag / Timber Use Value |
| (+) Curr Use (HS): | + | N/A | N/A |
| (+) Curr Use (NHS): | + | N/A | N/A |
| | | -------------------------- | |
| (=) Market Value: | = | N/A | |
| (–) Productivity Loss: | – | N/A | |
| | | -------------------------- | |
| (=) Subtotal: | = | N/A | |
| (+) Senior Appraised Value: | + | N/A | |
| (+) Non-Senior Appraised Value: | + | N/A | |
| | | -------------------------- | |
| (=) Total Appraised Value: | = | N/A | |
| (–) Senior Exemption Loss: | – | N/A | |
| (–) Exemption Loss: | – | N/A | |
| | | -------------------------- | |
| (=) Taxable Value: | = | N/A | |
Taxing Jurisdiction
| Owner: | SRJ LAND COMPANY LLC | | |
| % Ownership: | 100.0000000000% | | |
| Total Value: | N/A | | |
| Tax Area: | 1 - OL-140-F |
| CERFD | CURRENT EXPENSE REFUND 010 | N/A | N/A | N/A | N/A | | |
| CURREXP | CURRENT EXPENSE 010 | N/A | N/A | N/A | N/A | | |
| HUMNSERV | HUMAN SERVICES 119 | N/A | N/A | N/A | N/A | | |
| SLDREL | SOLDIERS RELIEF 121 | N/A | N/A | N/A | N/A | | |
| EMERGSER | EMS 147 | N/A | N/A | N/A | N/A | | |
| EMSRFD | EMS REFUND 147 | N/A | N/A | N/A | N/A | | |
| PORTRFD | PORT REFUND 640 | N/A | N/A | N/A | N/A | | |
| PORTWWGEN | PORT OF WW 640 | N/A | N/A | N/A | N/A | | |
| SD140BOND | SD #140 BOND 764 | N/A | N/A | N/A | N/A | | |
| SD140GEN | SD #140 GENERAL 760 | N/A | N/A | N/A | N/A | | |
| ST2 | STATE SCHOOL PART 2 600 | N/A | N/A | N/A | N/A | | |
| STATESCHL | STATE SCHOOL 600 | N/A | N/A | N/A | N/A | | |
| STREFUND | STATE REFUND LEVY 603 | N/A | N/A | N/A | N/A | | |
| CWWBOND | C OF WW BOND 643 | N/A | N/A | N/A | N/A | | |
| CWWGEN | CITY OF WW 631 | N/A | N/A | N/A | N/A | | |
| CWWRFD | CITY OF WALLA WALLA REFUND 631 | N/A | N/A | N/A | N/A | | |
| | Total Tax Rate: | N/A | | | | | |
| | | | | Taxes w/Current Exemptions: | N/A | | |
| | | | | Taxes w/o Exemptions: | N/A | | |
Improvement / Building
| Improvement #1: | COMMERCIAL | State Code: | 64 | 9360.0 sqft | Value: | N/A |
| | Type | Description | Class CD | Sub Class CD | Year Built | Area |
| | MA | Main Area | D | * | 2016 | 9360.0 |
| | SI1 | SITE IMPROVEMENT | D | * | 2016 | 6.0 |
| | FIXT | AVERAGE FIXTURE | D | * | 2016 | 6.0 |
Sketch
Property Image
Land
| 1 | COM 1 | Converted: Commercial | 0.9330 | 40641.48 | 0.00 | 0.00 | 1.00 | N/A | N/A |
Roll Value History
| 2026 | N/A | N/A | N/A | N/A | N/A |
| 2025 | $673,500 | $143,500 | $0 | $817,000 | $817,000 |
| 2024 | $673,500 | $143,500 | $0 | $817,000 | $817,000 |
| 2023 | $673,500 | $143,500 | $0 | $817,000 | $817,000 |
| 2022 | $673,500 | $143,500 | $0 | $817,000 | $817,000 |
| 2021 | $395,000 | $142,200 | $0 | $537,200 | $537,200 |
| 2020 | $395,000 | $142,200 | $0 | $537,200 | $537,200 |
| 2019 | $395,000 | $142,200 | $0 | $537,200 | $537,200 |
| 2018 | $395,000 | $142,200 | $0 | $537,200 | $537,200 |
| 2017 | $395,000 | $142,200 | $0 | $537,200 | $537,200 |
| 2016 | $0 | $142,200 | $0 | $142,200 | $142,200 |
| 2015 | $0 | $117,700 | $0 | $117,700 | $117,700 |
| 2014 | $0 | $50,700 | $0 | $50,700 | $50,700 |
| 2013 | $0 | $50,700 | $0 | $50,700 | $50,700 |
| 2012 | $0 | $202,800 | $0 | $0 | $0 |
| 2011 | $0 | $202,800 | $0 | $0 | $0 |
| 2010 | $0 | $202,800 | $0 | $0 | $0 |
| 2009 | $0 | $30,400 | $0 | $0 | $0 |
| 2008 | $0 | $30,400 | $0 | $0 | $0 |
| 2007 | $0 | $30,400 | $0 | $0 | $0 |
Deed and Sales History
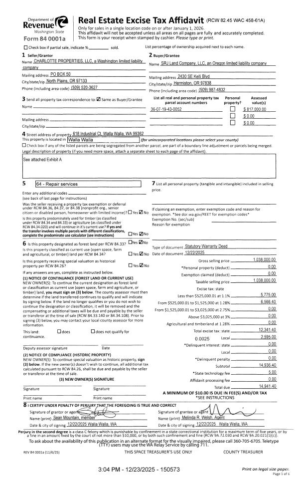
| 1 | 12/23/2025 | SWD | STATUTORY WARRANTY DEED | CHARLOTTE PROPERTIES LLC | SRJ LAND COMPANY LLC | | | $1,038,000.00 | 150573 | 2025-07922 |
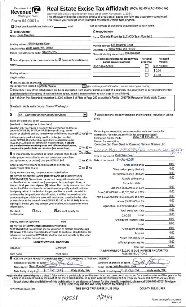
| 2 | 11/27/2024 | QCD | QUIT CLAIM DEED | CHARLOTTE LLC | CHARLOTTE PROPERTIES LLC | | | | 148588 | 2024-06892 |
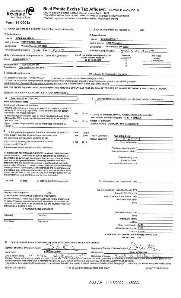
| 3 | 11/18/2022 | QCD | QUIT CLAIM DEED | MOUNTAIN SEAN | CHARLOTTE LLC | | | $0.00 | 145033 | 2022-09197 |
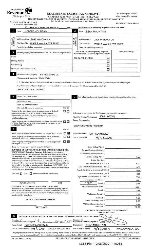
| 4 | 10/06/2020 | QCD | QUIT CLAIM DEED | MOUNTAIN SEAN | MOUNTAIN SEAN | | | | 140034 | 2020-10303 |
| 5 | 10/18/2012 | WARRANTY D | WARRANTY DEED | ARTEMESIA LLC | MOUNTAIN SEAN | | | | 122837 | 2012-09197 |
| 6 | 08/31/2006 | QCD | QUIT CLAIM DEED | NASH, ANNE E AS TRUSTEE OF THE | ARTEMESIA LLC | | | | 111096 | 2006-10494 |
| 7 | 07/25/2006 | WARRANTY D | WARRANTY DEED | PK PARTNERSHIP | NASH ANNE E AS TRUSTEE OF THE | | | $789,559.00 | 110795 | 2006-08715 |
|   | |
| 8 | 09/28/2004 | WARRANTY D | WARRANTY DEED | "PRINGLE, RAY T & BARBARA" | PK PARTNERSHIP | | | | 105801 | 2004-11209 |
Payout Agreement
| No payout information available.. |