Property
Account |
| Property ID: | 34128 | Abbreviated Legal Description: | LOT 2 OF FROG HOLLOW VIEW TRACTS |
| Parcel Number: | 340603500002 | Agent Code: | |
| Type: | Real | | |
| Tax Area: | 113 - 140-6 | Land Use Code | 11 |
| Open Space: | N | DFL | N |
| Historic Property: | N | Remodel Property: | N |
| Multi-Family Redevelopment: | N | | |
| Township: | 6 | Section: | 3 |
| Range: | 34 |
Location |
| Address: | 135 HIDEAWAY PL WA 99362 | Mapsco: | |
| Neighborhood: | G TOUCHET/LOWDEN SFR RURAL | Map ID: | |
| Neighborhood CD: | 214613 |
Owner |
| Name: | SCHMIDT KATHLEEN GAIL | Owner ID: | 65991 |
| Mailing Address: | 135 HIDEAWAY PL TOUCHET, WA 99360 | % Ownership: | 100.0000000000% |
| | | Exemptions: | SNR/DSBL |
Taxes and Assessment Details
Property Tax Information as of
02/21/2026
Click on "Statement Details" to expand or collapse a tax statement.
* Please enter a valid date ** Please enter a valid date *
Statement Details |
| | TOTAL: | $0.00 | $0.00 | $0.00 | $0.00 | $0.00 | $0.00 |
|
| | $0.00 | $0.00 | $0.00 | $0.00 | $0.00 | $0.00 |
Values
| (+) Improvement Homesite Value: | + | $488,430 | |
| (+) Improvement Non-Homesite Value: | + | $127,670 | |
| (+) Land Homesite Value: | + | $110,000 | |
| (+) Land Non-Homesite Value: | + | $25,290 | |
| (+) Curr Use (HS): | + | $0 | $0 |
| (+) Curr Use (NHS): | + | $0 | $0 |
| | | -------------------------- | |
| (=) Market Value: | = | $751,390 | |
| (–) Productivity Loss: | – | $0 | |
| | | -------------------------- | |
| (=) Subtotal: | = | $751,390 | |
| (+) Senior Appraised Value: | + | $598,430 | |
| (+) Non-Senior Appraised Value: | + | $152,960 | |
| | | -------------------------- | |
| (=) Total Appraised Value: | = | $751,390 | |
| (–) Senior Exemption Loss: | – | $359,058 | |
| (–) Exemption Loss: | – | $0 | |
| | | -------------------------- | |
| (=) Taxable Value: | = | $392,332 | |
Taxing Jurisdiction
| Owner: | SCHMIDT KATHLEEN GAIL | | |
| % Ownership: | 100.0000000000% | | |
| Total Value: | $751,390 | | |
| Tax Area: | 113 - 140-6 |
| CERFD | CURRENT EXPENSE REFUND 010 | 0.0000000000 | $751,390 | $392,332 | $0.00 | | |
| CURREXP | CURRENT EXPENSE 010 | 1.0175366760 | $751,390 | $392,332 | $399.21 | | |
| HUMNSERV | HUMAN SERVICES 119 | 0.0250000000 | $751,390 | $392,332 | $9.81 | | |
| SLDREL | SOLDIERS RELIEF 121 | 0.0155990005 | $751,390 | $392,332 | $6.12 | | |
| EMERGSER | EMS 147 | 0.3792580840 | $751,390 | $392,332 | $148.80 | | |
| EMSRFD | EMS REFUND 147 | 0.0000000000 | $751,390 | $392,332 | $0.00 | | |
| FD6EXP | FD #6 EXPENSE 693 | 0.6692985746 | $751,390 | $392,332 | $262.59 | | |
| RLBRFD | RURAL LIBRARY REFUND 623 | 0.0000000000 | $751,390 | $392,332 | $0.00 | | |
| RURALLIB | RURAL LIBRARY 623 | 0.3710609029 | $751,390 | $392,332 | $145.58 | | |
| PORTRFD | PORT REFUND 640 | 0.0000000000 | $751,390 | $392,332 | $0.00 | | |
| PORTWWGEN | PORT OF WW 640 | 0.2460186015 | $751,390 | $392,332 | $96.52 | | |
| SD140BOND | SD #140 BOND 764 | 0.0000000000 | $751,390 | $152,960 | $127.60 | | |
| SD140GEN | SD #140 GENERAL 760 | 0.0000000000 | $751,390 | $152,960 | $315.81 | | |
| ST2 | STATE SCHOOL PART 2 600 | 0.0000000000 | $751,390 | $152,960 | $124.38 | | |
| STATESCHL | STATE SCHOOL 600 | 1.5158548041 | $751,390 | $392,332 | $594.72 | | |
| STREFUND | STATE REFUND LEVY 603 | 0.0000000000 | $751,390 | $392,332 | $0.00 | | |
| COROAD | COUNTY ROAD 115 | 1.6549953990 | $751,390 | $392,332 | $649.31 | | |
| CRPRD | COUNTY ROAD REFUND 115 | 0.0000000000 | $751,390 | $392,332 | $0.00 | | |
| | Total Tax Rate: | 5.8946220426 | | | | | |
| | | | | Taxes w/Current Exemptions: | $2,880.45 | | |
| | | | | Taxes w/o Exemptions: | $7,218.35 | | |
Improvement / Building
| Improvement #1: | SENIOR SEG VALUE | State Code: | 11 | 1805.0 sqft | Value: | $488,430 |
| Exterior Wall: | STUCCO | Heating/Cooling: | WARM & COOLED AIR | | Number of Bathrooms: | 2.5 | Number of Bedrooms: | 3 | | Plumbing: | 15 | Roof Covering: | COMP SHINGLE |
|
| | Type | Description | Class CD | Sub Class CD | Year Built | Area |
| | MA | Main Area | 1 | 50 | 2006 | 1805.0 |
| | RPC | OPEN PORCH W/ROOF , CEILED | 1 | 50 | 2006 | 78.0 |
| | SI1 | SITE IMPROVEMENT | 1 | 50 | 2006 | 5.0 |
| | SMP | SWIMMING POOL | 1 | 50 | 2006 | 1.0 |
| | ATG | Attached Garage | 1 | 50 | 2006 | 900.0 |
| | LOFT | Loft Area | 1 | 50 | 2006 | 290.0 |
| | LOFT | Loft Area | 1 | 50 | 2006 | 360.0 |
| Improvement #2: | SENIOR SEG VALUE | State Code: | 11 | 0.0 sqft | Value: | $127,670 |
| | Type | Description | Class CD | Sub Class CD | Year Built | Area |
| | POL1 | POLE BUILDING-GRAVEL | 1 | 50 | 2010 | 624.0 |
| | POL3 | POLE BUILDING-CON,ELEC,INSU | 1 | 50 | 2005 | 1344.0 |
| | POL2 | POLE BUILDING-CONCRETE | 1 | 50 | 2006 | 1200.0 |
Sketch
Property Image
Land
| 1 | SENIOR SEG | SENIOR SEG | 5.0000 | 217800.00 | 0.00 | 0.00 | 1.00 | $110,000 | $0 |
| 2 | SENIOR SEG | SENIOR SEG | 5.1100 | 222591.60 | 0.00 | 0.00 | 1.00 | $25,290 | $0 |
Roll Value History
| 2026 | N/A | N/A | N/A | N/A | N/A |
| 2025 | $770,130 | $135,290 | $0 | $905,420 | $473,096 |
| 2024 | $616,100 | $135,290 | $0 | $751,390 | $392,332 |
| 2023 | $616,100 | $135,290 | $0 | $751,390 | $392,332 |
| 2022 | $616,100 | $135,290 | $0 | $751,390 | $392,332 |
| 2021 | $616,100 | $135,290 | $0 | $751,390 | $392,332 |
| 2020 | $390,390 | $120,300 | $0 | $510,690 | $510,690 |
| 2019 | $390,390 | $120,300 | $0 | $510,690 | $510,690 |
| 2018 | $390,390 | $120,300 | $0 | $510,690 | $510,690 |
| 2017 | $390,390 | $120,300 | $0 | $510,690 | $510,690 |
| 2016 | $390,390 | $120,300 | $0 | $510,690 | $510,690 |
| 2015 | $371,800 | $120,300 | $0 | $492,100 | $492,100 |
| 2014 | $371,800 | $120,300 | $0 | $492,100 | $492,100 |
| 2013 | $349,200 | $120,300 | $0 | $469,500 | $469,500 |
| 2012 | $227,500 | $120,300 | $0 | $0 | $0 |
| 2011 | $227,500 | $120,300 | $0 | $0 | $0 |
| 2010 | $216,900 | $120,300 | $0 | $0 | $0 |
| 2009 | $243,100 | $120,600 | $0 | $0 | $0 |
| 2008 | $243,100 | $120,600 | $0 | $0 | $0 |
| 2007 | $102,800 | $61,900 | $0 | $0 | $0 |
Deed and Sales History
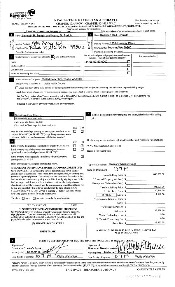
| 1 | 10/07/2019 | SWD | STATUTORY WARRANTY DEED | SERIGHT KENNETH R & NANCY M | SCHMIDT KATHLEEN GAIL | | | $845,000.00 | 137829 | 2019-07989 |
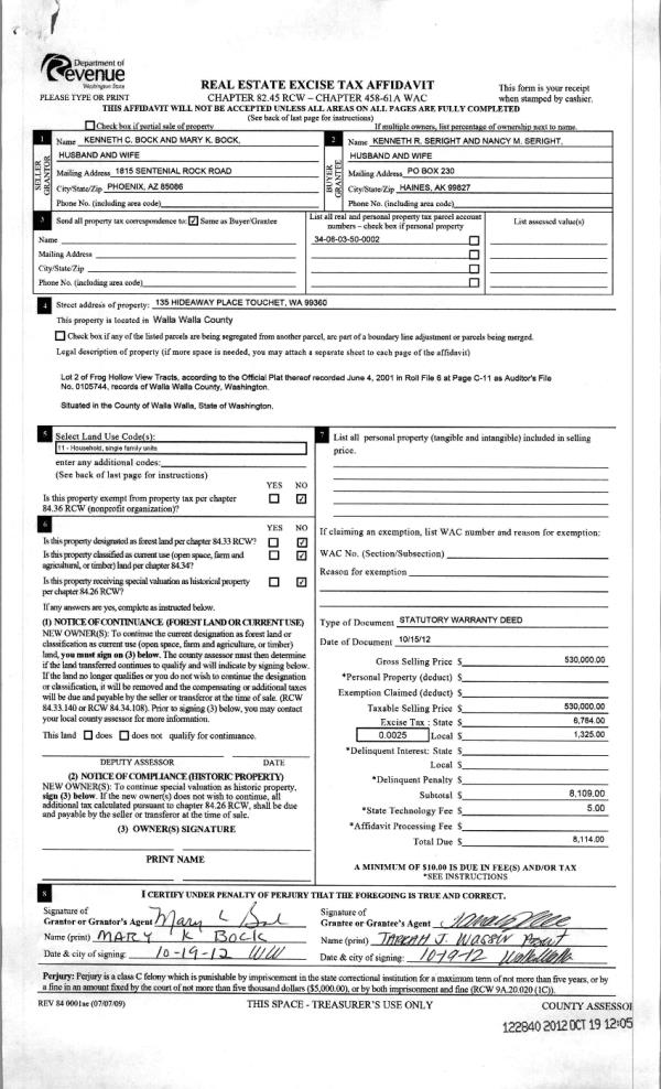
| 2 | 10/19/2012 | WARRANTY D | WARRANTY DEED | BOCK, KENNETH C & MARY K | SERIGHT, KENNETH R & NANCY M | | | $530,000.00 | 122840 | 2012-09226 |
| 3 | 10/16/2003 | WARRANTY D | WARRANTY DEED | SEWELL, BRIAN R & DEBBIE K | BOCK, KENNETH C & MARY K | | | $79,900.00 | 103278 | 2003-16001 |
| 4 | 07/02/2001 | WARRANTY D | WARRANTY DEED | | | | | | 97503 | 3150-106950 |
Payout Agreement
| No payout information available.. |