Property
Account |
| Property ID: | 34127 | Abbreviated Legal Description: | EDGEWOOD PLACE LOT 5 BLK 1 |
| Parcel Number: | 360728570105 | Agent Code: | |
| Type: | Real | | |
| Tax Area: | 1 - OL-140-F | Land Use Code | 11 |
| Open Space: | N | DFL | N |
| Historic Property: | N | Remodel Property: | N |
| Multi-Family Redevelopment: | N | | |
| Township: | 7 | Section: | 28 |
| Range: | 36 |
Location |
| Address: | 821 EDGEWOOD ST WA 99362 | Mapsco: | |
| Neighborhood: | A Res | Map ID: | |
| Neighborhood CD: | 613011 |
Owner |
| Name: | CALVILLO CARLO R | Owner ID: | 64637 |
| Mailing Address: | ALICIA D WESTERN 821 EDGEWOOD ST WALLA WALLA, WA 99362 | % Ownership: | 100.0000000000% |
| | | Exemptions: | |
Taxes and Assessment Details
Values
| (+) Improvement Homesite Value: | + | $0 | |
| (+) Improvement Non-Homesite Value: | + | $217,920 | |
| (+) Land Homesite Value: | + | $0 | |
| (+) Land Non-Homesite Value: | + | $60,000 | |
| (+) Curr Use (HS): | + | $0 | $0 |
| (+) Curr Use (NHS): | + | $0 | $0 |
| | | -------------------------- | |
| (=) Market Value: | = | $277,920 | |
| (–) Productivity Loss: | – | $0 | |
| | | -------------------------- | |
| (=) Subtotal: | = | $277,920 | |
| (+) Senior Appraised Value: | + | $0 | |
| (+) Non-Senior Appraised Value: | + | $277,920 | |
| | | -------------------------- | |
| (=) Total Appraised Value: | = | $277,920 | |
| (–) Senior Exemption Loss: | – | $0 | |
| (–) Exemption Loss: | – | $0 | |
| | | -------------------------- | |
| (=) Taxable Value: | = | $277,920 | |
Taxing Jurisdiction
| Owner: | CALVILLO CARLO R | | |
| % Ownership: | 100.0000000000% | | |
| Total Value: | $277,920 | | |
| Tax Area: | 1 - OL-140-F |
| CERFD | CURRENT EXPENSE REFUND 010 | 0.0000000000 | $277,920 | $277,920 | $0.00 | | |
| CURREXP | CURRENT EXPENSE 010 | 1.0175366760 | $277,920 | $277,920 | $282.79 | | |
| HUMNSERV | HUMAN SERVICES 119 | 0.0250000000 | $277,920 | $277,920 | $6.95 | | |
| SLDREL | SOLDIERS RELIEF 121 | 0.0155990005 | $277,920 | $277,920 | $4.34 | | |
| EMERGSER | EMS 147 | 0.3792580840 | $277,920 | $277,920 | $105.40 | | |
| EMSRFD | EMS REFUND 147 | 0.0000000000 | $277,920 | $277,920 | $0.00 | | |
| PORTRFD | PORT REFUND 640 | 0.0000000000 | $277,920 | $277,920 | $0.00 | | |
| PORTWWGEN | PORT OF WW 640 | 0.2460186015 | $277,920 | $277,920 | $68.37 | | |
| SD140BOND | SD #140 BOND 764 | 0.8342371393 | $277,920 | $277,920 | $231.85 | | |
| SD140GEN | SD #140 GENERAL 760 | 2.0646500647 | $277,920 | $277,920 | $573.81 | | |
| ST2 | STATE SCHOOL PART 2 600 | 0.8131451643 | $277,920 | $277,920 | $225.99 | | |
| STATESCHL | STATE SCHOOL 600 | 1.5158548041 | $277,920 | $277,920 | $421.29 | | |
| STREFUND | STATE REFUND LEVY 603 | 0.0000000000 | $277,920 | $277,920 | $0.00 | | |
| CWWBOND | C OF WW BOND 643 | 0.2760494372 | $277,920 | $277,920 | $76.72 | | |
| CWWGEN | CITY OF WW 631 | 1.6100204973 | $277,920 | $277,920 | $447.46 | | |
| CWWRFD | CITY OF WALLA WALLA REFUND 631 | 0.0000000000 | $277,920 | $277,920 | $0.00 | | |
| | Total Tax Rate: | 8.7973694689 | | | | | |
| | | | | Taxes w/Current Exemptions: | $2,444.97 | | |
| | | | | Taxes w/o Exemptions: | $2,444.97 | | |
Improvement / Building
| Improvement #1: | RESIDENTIAL | State Code: | 11 | 1080.0 sqft | Value: | $217,920 |
| Exterior Wall: | SIDING | Heating/Cooling: | BASEBOARD ELECTRIC | | Number of Bathrooms: | 2 | Number of Bedrooms: | 3 | | Plumbing: | 9 | Roof Covering: | COMP SHINGLE |
|
| | Type | Description | Class CD | Sub Class CD | Year Built | Area |
| | MA | Main Area | 2 | 30 | 1908 | 1080.0 |
| | UPFL | Upper Floor (included in main area) | 2 | 30 | 1908 | 480.0 |
| | SI1 | SITE IMPROVEMENT | 2 | 30 | 1908 | 1.5 |
| | WDR | WOOD DECK W/ROOF | 2 | 30 | 1908 | 100.0 |
| | CPCG | CARPORT/ GABLE ROOF | 2 | 30 | 1908 | 360.0 |
Sketch
Property Image
Land
| 1 | RES 1 | Converted: Residential | 0.1148 | 5000.00 | 0.00 | 0.00 | 1.00 | $60,000 | $0 |
Roll Value History
| 2026 | N/A | N/A | N/A | N/A | N/A |
| 2025 | $225,710 | $60,000 | $0 | $285,710 | $285,710 |
| 2024 | $217,920 | $60,000 | $0 | $277,920 | $277,920 |
| 2023 | $217,920 | $60,000 | $0 | $277,920 | $277,920 |
| 2022 | $189,490 | $45,000 | $0 | $234,490 | $234,490 |
| 2021 | $145,760 | $45,000 | $0 | $190,760 | $190,760 |
| 2020 | $121,470 | $45,000 | $0 | $166,470 | $166,470 |
| 2019 | $121,470 | $45,000 | $0 | $166,470 | $166,470 |
| 2018 | $110,510 | $30,000 | $0 | $140,510 | $140,510 |
| 2017 | $100,460 | $30,000 | $0 | $130,460 | $130,460 |
| 2016 | $77,280 | $30,000 | $0 | $107,280 | $107,280 |
| 2015 | $73,600 | $30,000 | $0 | $103,600 | $103,600 |
| 2014 | $73,600 | $30,000 | $0 | $103,600 | $103,600 |
| 2013 | $73,600 | $30,000 | $0 | $103,600 | $103,600 |
| 2012 | $90,300 | $30,000 | $0 | $0 | $0 |
| 2011 | $85,700 | $30,000 | $0 | $0 | $0 |
| 2010 | $85,700 | $30,000 | $0 | $0 | $0 |
| 2009 | $98,500 | $30,000 | $0 | $0 | $0 |
| 2008 | $98,500 | $30,000 | $0 | $0 | $0 |
| 2007 | $60,300 | $15,000 | $0 | $0 | $0 |
Deed and Sales History
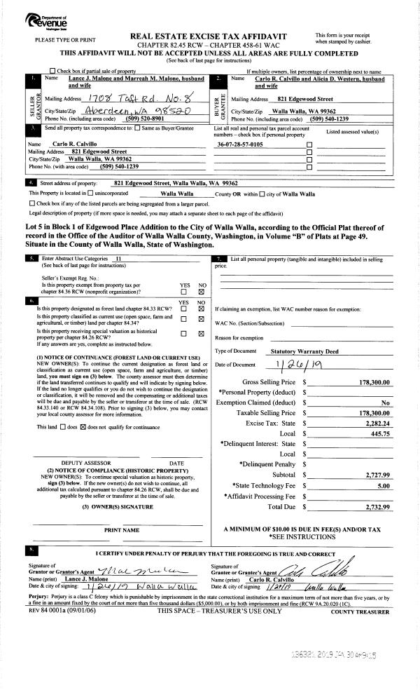
| 1 | 01/30/2019 | SWD | STATUTORY WARRANTY DEED | MALONE LANCE J & MARREAH M | CALVILLO CARLO R | | | $178,300.00 | 136321 | 2019-00608 |
| 2 | 08/24/2016 | SWD | STATUTORY WARRANTY DEED | KOLAR ROBERT D | MALONE LANCE J & MARREAH M | | | $141,000.00 | 130880 | 2016-06789 |
| 3 | 04/05/2013 | WARRANTY D | WARRANTY DEED | SECRETARY OF HOUSING & URBAN D | KOLAR, ROBERT D | | | $99,000.00 | 123739 | 2013-03305 |
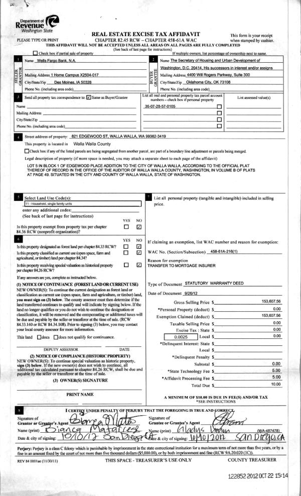
| 4 | 10/22/2012 | WARRANTY D | WARRANTY DEED | WELLS FARGO BANK NA | SECRETARY OF HOUSING & URBAN D | | | $153,607.00 | 122852 | 2012-09290 |
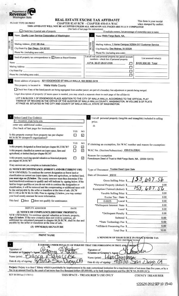
| 5 | 09/10/2012 | WARRANTY D | WARRANTY DEED | QUALITY LOAN SERVICE CORPORATI | WELLS FARGO BANK NA | | | $153,607.00 | 122620 | 2012-07890 |
| 6 | 03/16/2006 | WARRANTY D | WARRANTY DEED | ABC#1, LLC | WALLIN, LANI | | | $129,000.00 | 109851 | 2006-02875 |
| 7 | 08/10/2005 | WARRANTY D | WARRANTY DEED | PARENT, JENNIFER J | ABC#1, LLC | | | $92,000.00 | 108197 | 2005-09874 |
| 8 | 07/10/1998 | WARRANTY D | WARRANTY DEED | | | | | $72,500.00 | 90833 | 2699-807775 |
Payout Agreement
| No payout information available.. |