Property
Account |
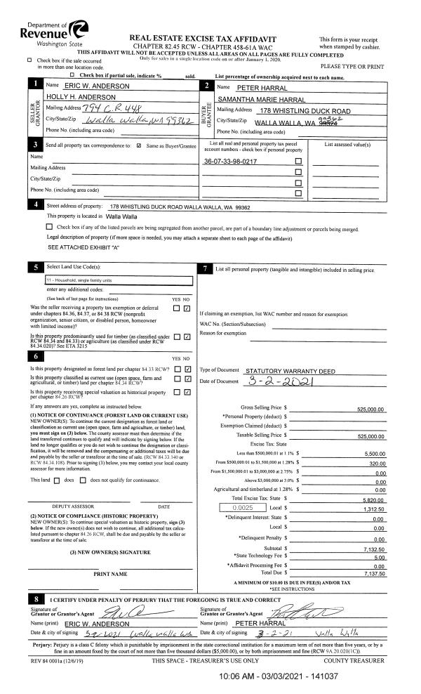
| Property ID: | 34115 | Abbreviated Legal Description: | TRIPLE CREEK MEADOWS PHASE 2 LOT 26 BLOCK 2 |
| Parcel Number: | 360733980217 | Agent Code: | |
| Type: | Real | | |
| Tax Area: | 5 - OL-140 | Land Use Code | 11 |
| Open Space: | N | DFL | N |
| Historic Property: | N | Remodel Property: | N |
| Multi-Family Redevelopment: | N | | |
| Township: | 7 | Section: | 33 |
| Range: | 36 |
Location |
| Address: | 178 WHISTLING DUCK RD WA 99362 | Mapsco: | |
| Neighborhood: | A Res | Map ID: | |
| Neighborhood CD: | 613011 |
Owner |
| Name: | HARRAL PETER & SAMANTHA MARIE | Owner ID: | 68946 |
| Mailing Address: | 178 WHISTLING DUCK RD WALLA WALLA, WA 99362 | % Ownership: | 100.0000000000% |
| | | Exemptions: | |
Taxes and Assessment Details
Values
| (+) Improvement Homesite Value: | + | N/A | |
| (+) Improvement Non-Homesite Value: | + | N/A | |
| (+) Land Homesite Value: | + | N/A | |
| (+) Land Non-Homesite Value: | + | N/A | Ag / Timber Use Value |
| (+) Curr Use (HS): | + | N/A | N/A |
| (+) Curr Use (NHS): | + | N/A | N/A |
| | | -------------------------- | |
| (=) Market Value: | = | N/A | |
| (–) Productivity Loss: | – | N/A | |
| | | -------------------------- | |
| (=) Subtotal: | = | N/A | |
| (+) Senior Appraised Value: | + | N/A | |
| (+) Non-Senior Appraised Value: | + | N/A | |
| | | -------------------------- | |
| (=) Total Appraised Value: | = | N/A | |
| (–) Senior Exemption Loss: | – | N/A | |
| (–) Exemption Loss: | – | N/A | |
| | | -------------------------- | |
| (=) Taxable Value: | = | N/A | |
Taxing Jurisdiction
| Owner: | HARRAL PETER & SAMANTHA MARIE | | |
| % Ownership: | 100.0000000000% | | |
| Total Value: | N/A | | |
| Tax Area: | 5 - OL-140 |
| CERFD | CURRENT EXPENSE REFUND 010 | N/A | N/A | N/A | N/A | | |
| CURREXP | CURRENT EXPENSE 010 | N/A | N/A | N/A | N/A | | |
| HUMNSERV | HUMAN SERVICES 119 | N/A | N/A | N/A | N/A | | |
| SLDREL | SOLDIERS RELIEF 121 | N/A | N/A | N/A | N/A | | |
| EMERGSER | EMS 147 | N/A | N/A | N/A | N/A | | |
| EMSRFD | EMS REFUND 147 | N/A | N/A | N/A | N/A | | |
| PORTRFD | PORT REFUND 640 | N/A | N/A | N/A | N/A | | |
| PORTWWGEN | PORT OF WW 640 | N/A | N/A | N/A | N/A | | |
| SD140BOND | SD #140 BOND 764 | N/A | N/A | N/A | N/A | | |
| SD140GEN | SD #140 GENERAL 760 | N/A | N/A | N/A | N/A | | |
| ST2 | STATE SCHOOL PART 2 600 | N/A | N/A | N/A | N/A | | |
| STATESCHL | STATE SCHOOL 600 | N/A | N/A | N/A | N/A | | |
| STREFUND | STATE REFUND LEVY 603 | N/A | N/A | N/A | N/A | | |
| CWWBOND | C OF WW BOND 643 | N/A | N/A | N/A | N/A | | |
| CWWGEN | CITY OF WW 631 | N/A | N/A | N/A | N/A | | |
| CWWRFD | CITY OF WALLA WALLA REFUND 631 | N/A | N/A | N/A | N/A | | |
| | Total Tax Rate: | N/A | | | | | |
| | | | | Taxes w/Current Exemptions: | N/A | | |
| | | | | Taxes w/o Exemptions: | N/A | | |
Improvement / Building
| Improvement #1: | RESIDENTIAL | State Code: | 11 | 2016.0 sqft | Value: | N/A |
| Exterior Wall: | PLYWOOD | Heating/Cooling: | REV-HEAT-PUMP-W/DUCT | | Number of Bathrooms: | 2.5 | Number of Bedrooms: | 5 | | Plumbing: | 12 | Roof Covering: | COMP SHINGLE |
|
| | Type | Description | Class CD | Sub Class CD | Year Built | Area |
| | MA | Main Area | 2 | 35 | 2013 | 2016.0 |
| | GFP | GAS FIREPLACE | 2 | 35 | 2013 | 1.0 |
| | SI1 | SITE IMPROVEMENT | 2 | 35 | 2013 | 3.5 |
| | BASE | BASEMENT | 2 | 35 | 2013 | 1008.0 |
| | UTIL-STOR | UTILITY STORAGE | 2 | 35 | 2013 | 200.0 |
| | ATG | Attached Garage | 2 | 35 | 2013 | 704.0 |
| | BPF | BASEMENT -PARTITIONED FINISH | 2 | 35 | 2013 | 1008.0 |
| | RPO | OPEN PORCH W/ROOF | 2 | 35 | 2013 | 216.0 |
| | UPFL | Upper Floor (included in main area) | 2 | 35 | 2013 | 1008.0 |
Sketch
Property Image
Land
| 1 | RES 1 | Converted: Residential | 0.2204 | 9600.00 | 0.00 | 0.00 | 1.00 | N/A | N/A |
Roll Value History
| 2026 | N/A | N/A | N/A | N/A | N/A |
| 2025 | $492,530 | $125,000 | $0 | $617,530 | $617,530 |
| 2024 | $425,750 | $100,000 | $0 | $525,750 | $525,750 |
| 2023 | $425,750 | $100,000 | $0 | $525,750 | $525,750 |
| 2022 | $425,750 | $85,000 | $0 | $510,750 | $510,750 |
| 2021 | $387,050 | $85,000 | $0 | $472,050 | $472,050 |
| 2020 | $266,930 | $85,000 | $0 | $351,930 | $351,930 |
| 2019 | $266,930 | $85,000 | $0 | $351,930 | $351,930 |
| 2018 | $236,200 | $50,000 | $0 | $286,200 | $286,200 |
| 2017 | $236,200 | $50,000 | $0 | $286,200 | $286,200 |
| 2016 | $236,200 | $50,000 | $0 | $286,200 | $286,200 |
| 2015 | $236,200 | $50,000 | $0 | $286,200 | $286,200 |
| 2014 | $236,200 | $50,000 | $0 | $286,200 | $286,200 |
| 2013 | $108,700 | $50,000 | $0 | $158,700 | $158,700 |
| 2012 | $0 | $55,000 | $0 | $0 | $0 |
| 2011 | $0 | $55,000 | $0 | $0 | $0 |
| 2010 | $0 | $55,000 | $0 | $0 | $0 |
| 2009 | $0 | $65,000 | $0 | $0 | $0 |
| 2008 | $0 | $65,000 | $0 | $0 | $0 |
| 2007 | $108,700 | $50,000 | $0 | $0 | $0 |
Deed and Sales History
| 1 | 03/03/2021 | SWD | STATUTORY WARRANTY DEED | ANDERSON ERIC W & HOLLY H | HARRAL PETER & SAMANTHA MARIE | | | $525,000.00 | 141037 | 2021-02445 |
| 2 | 04/11/2014 | SWD | STATUTORY WARRANTY DEED | SUREJAM CONSTRUCTION LLC | ANDERSON ERIC W & HOLLY H | | | $289,700.00 | 125708 | 2014-02464 |
| 3 | 10/04/2012 | WARRANTY D | WARRANTY DEED | KYKO CONSTRUCTION LLC | SUREJAM CONSTRUCTION LLC | | | $42,000.00 | 122757 | 2012-08769 |
| 4 | 01/24/2011 | WARRANTY D | WARRANTY DEED | MAJERUS, DOUGLAS | KYKO CONSTRUCTION LLC | | | $101,500.00 | 119634 | 2011-00728 |
|   | |
Payout Agreement
| No payout information available.. |