Property
Account |
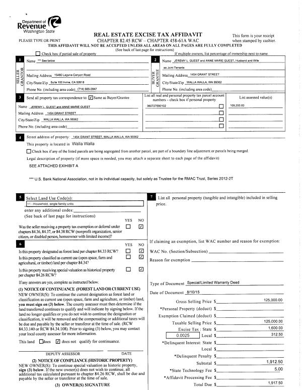
| Property ID: | 34080 | Abbreviated Legal Description: | EAST WALLA WALLA ROBERTS LOT 2 BLK 1 |
| Parcel Number: | 360727590102 | Agent Code: | |
| Type: | Real | | |
| Tax Area: | 105 - 140-F-4 | Land Use Code | 11 |
| Open Space: | N | DFL | N |
| Historic Property: | N | Remodel Property: | N |
| Multi-Family Redevelopment: | N | | |
| Township: | 7 | Section: | 27 |
| Range: | 36 |
Location |
| Address: | 1454 GRANT ST WA 99362 | Mapsco: | |
| Neighborhood: | A Res | Map ID: | |
| Neighborhood CD: | 613011 |
Owner |
| Name: | GUEST JEREMY L & ANNE MARIE | Owner ID: | 57447 |
| Mailing Address: | 1454 GRANT ST WALLA WALLA, WA 99362 | % Ownership: | 100.0000000000% |
| | | Exemptions: | |
Taxes and Assessment Details
Property Tax Information as of
02/21/2026
Click on "Statement Details" to expand or collapse a tax statement.
* Please enter a valid date ** Please enter a valid date *
Statement Details |
| | TOTAL: | $0.00 | $0.00 | $0.00 | $0.00 | $0.00 | $0.00 |
|
| | $0.00 | $0.00 | $0.00 | $0.00 | $0.00 | $0.00 |
Values
| (+) Improvement Homesite Value: | + | $0 | |
| (+) Improvement Non-Homesite Value: | + | $249,080 | |
| (+) Land Homesite Value: | + | $0 | |
| (+) Land Non-Homesite Value: | + | $59,400 | |
| (+) Curr Use (HS): | + | $0 | $0 |
| (+) Curr Use (NHS): | + | $0 | $0 |
| | | -------------------------- | |
| (=) Market Value: | = | $308,480 | |
| (–) Productivity Loss: | – | $0 | |
| | | -------------------------- | |
| (=) Subtotal: | = | $308,480 | |
| (+) Senior Appraised Value: | + | $0 | |
| (+) Non-Senior Appraised Value: | + | $308,480 | |
| | | -------------------------- | |
| (=) Total Appraised Value: | = | $308,480 | |
| (–) Senior Exemption Loss: | – | $0 | |
| (–) Exemption Loss: | – | $0 | |
| | | -------------------------- | |
| (=) Taxable Value: | = | $308,480 | |
Taxing Jurisdiction
| Owner: | GUEST JEREMY L & ANNE MARIE | | |
| % Ownership: | 100.0000000000% | | |
| Total Value: | $308,480 | | |
| Tax Area: | 105 - 140-F-4 |
| CERFD | CURRENT EXPENSE REFUND 010 | 0.0000000000 | $308,480 | $308,480 | $0.00 | | |
| CURREXP | CURRENT EXPENSE 010 | 1.0175366760 | $308,480 | $308,480 | $313.89 | | |
| HUMNSERV | HUMAN SERVICES 119 | 0.0250000000 | $308,480 | $308,480 | $7.71 | | |
| SLDREL | SOLDIERS RELIEF 121 | 0.0155990005 | $308,480 | $308,480 | $4.81 | | |
| EMERGSER | EMS 147 | 0.3792580840 | $308,480 | $308,480 | $116.99 | | |
| EMSRFD | EMS REFUND 147 | 0.0000000000 | $308,480 | $308,480 | $0.00 | | |
| FD4EXP | FD #4 EXPENSE 686 | 0.8836993059 | $308,480 | $308,480 | $272.60 | | |
| RLBRFD | RURAL LIBRARY REFUND 623 | 0.0000000000 | $308,480 | $308,480 | $0.00 | | |
| RURALLIB | RURAL LIBRARY 623 | 0.3710609029 | $308,480 | $308,480 | $114.46 | | |
| PORTRFD | PORT REFUND 640 | 0.0000000000 | $308,480 | $308,480 | $0.00 | | |
| PORTWWGEN | PORT OF WW 640 | 0.2460186015 | $308,480 | $308,480 | $75.89 | | |
| SD140BOND | SD #140 BOND 764 | 0.8342371393 | $308,480 | $308,480 | $257.35 | | |
| SD140GEN | SD #140 GENERAL 760 | 2.0646500647 | $308,480 | $308,480 | $636.90 | | |
| ST2 | STATE SCHOOL PART 2 600 | 0.8131451643 | $308,480 | $308,480 | $250.84 | | |
| STATESCHL | STATE SCHOOL 600 | 1.5158548041 | $308,480 | $308,480 | $467.61 | | |
| STREFUND | STATE REFUND LEVY 603 | 0.0000000000 | $308,480 | $308,480 | $0.00 | | |
| COROAD | COUNTY ROAD 115 | 1.6549953990 | $308,480 | $308,480 | $510.53 | | |
| CRPRD | COUNTY ROAD REFUND 115 | 0.0000000000 | $308,480 | $308,480 | $0.00 | | |
| | Total Tax Rate: | 9.8210551422 | | | | | |
| | | | | Taxes w/Current Exemptions: | $3,029.58 | | |
| | | | | Taxes w/o Exemptions: | $3,029.58 | | |
Improvement / Building
| Improvement #1: | RESIDENTIAL | State Code: | 11 | 1113.0 sqft | Value: | $249,080 |
| Exterior Wall: | PLYWOOD | Heating/Cooling: | WARM & COOLED AIR | | Number of Bathrooms: | 2 | Number of Bedrooms: | 2 | | Plumbing: | 9 | Roof Covering: | COMP SHINGLE |
|
| | Type | Description | Class CD | Sub Class CD | Year Built | Area |
| | MA | Main Area | 1 | 20 | 1963 | 1113.0 |
| | SI1 | SITE IMPROVEMENT | 1 | 20 | 1963 | 1.0 |
| | BASE | BASEMENT | 1 | 20 | 1963 | 1075.0 |
| | BRF | BASEMENT - REC FINISH | 1 | 20 | 1963 | 645.0 |
| | GFP | GAS FIREPLACE | 1 | 20 | 1963 | 1.0 |
| | OPS | OPEN PORCH W/STEPS | 1 | 20 | 1963 | 15.0 |
| | CPC | COVERED CARPORT/PATIO | 1 | 20 | 1963 | 693.0 |
Sketch
Property Image
Land
| 1 | RES 1 | Converted: Residential | 0.1515 | 6600.00 | 0.00 | 0.00 | 1.00 | $59,400 | $0 |
Roll Value History
| 2026 | N/A | N/A | N/A | N/A | N/A |
| 2025 | $238,560 | $72,600 | $0 | $311,160 | $311,160 |
| 2024 | $249,080 | $59,400 | $0 | $308,480 | $308,480 |
| 2023 | $249,080 | $59,400 | $0 | $308,480 | $308,480 |
| 2022 | $226,430 | $47,850 | $0 | $274,280 | $274,280 |
| 2021 | $181,150 | $47,850 | $0 | $229,000 | $229,000 |
| 2020 | $129,390 | $47,850 | $0 | $177,240 | $177,240 |
| 2019 | $129,390 | $47,850 | $0 | $177,240 | $177,240 |
| 2018 | $97,440 | $39,600 | $0 | $137,040 | $137,040 |
| 2017 | $97,440 | $39,600 | $0 | $137,040 | $137,040 |
| 2016 | $97,440 | $39,600 | $0 | $137,040 | $137,040 |
| 2015 | $97,440 | $39,600 | $0 | $137,040 | $137,040 |
| 2014 | $69,600 | $39,600 | $0 | $109,200 | $109,200 |
| 2013 | $69,600 | $39,600 | $0 | $109,200 | $109,200 |
| 2012 | $69,600 | $39,600 | $0 | $0 | $0 |
| 2011 | $69,600 | $39,600 | $0 | $0 | $0 |
| 2010 | $88,900 | $39,600 | $0 | $0 | $0 |
| 2009 | $103,200 | $39,600 | $0 | $0 | $0 |
| 2008 | $103,200 | $39,600 | $0 | $0 | $0 |
| 2007 | $77,400 | $19,800 | $0 | $0 | $0 |
Deed and Sales History
| 1 | 09/14/2015 | SWD | STATUTORY WARRANTY DEED | RMAC TRUST SERIES 2012-2T | GUEST JEREMY L & ANNE MARIE | | | $125,000.00 | 128808 | 2015-08042 |
| 2 | 06/22/2015 | DFL | DEED IN LIEU OF FORECLOSURE | GLYN-BLUE JOYCE M | RMAC TRUST SERIES 2012-2T | | | $180,260.00 | 128211 | 2015-05214 |
| 3 | 09/14/1978 | WARRANTY D | WARRANTY DEED | | | | | $43,900.00 | 0 | 8978-08074 |
Payout Agreement
| No payout information available.. |