Property
Account |
| Property ID: | 34032 | Abbreviated Legal Description: | 25-7-35 LOT 3 OF SHORT PLAT (PTN LY IN WLY PT TAX 22 ALL LY WITHINNE1/4NE1/4) |
| Parcel Number: | 350725140032 | Agent Code: | |
| Type: | Real | | |
| Tax Area: | 1 - OL-140-F | Land Use Code | 11 |
| Open Space: | N | DFL | N |
| Historic Property: | N | Remodel Property: | N |
| Multi-Family Redevelopment: | N | | |
| Township: | 7 | Section: | 25 |
| Range: | 35 |
Location |
| Address: | 411 OFFNER RD WA 99362 | Mapsco: | |
| Neighborhood: | A-SFR | Map ID: | |
| Neighborhood CD: | 313011 |
Owner |
| Name: | FLORES DIANA GEUVARA AND LEONARDO A DIAZ | Owner ID: | 69129 |
| Mailing Address: | 411 OFFNER RD WALLA WALLA, WA 99362 | % Ownership: | 100.0000000000% |
| | | Exemptions: | |
Taxes and Assessment Details
Property Tax Information as of
02/21/2026
Click on "Statement Details" to expand or collapse a tax statement.
* Please enter a valid date ** Please enter a valid date *
Statement Details |
| | TOTAL: | $0.00 | $0.00 | $0.00 | $0.00 | $0.00 | $0.00 |
|
| | $0.00 | $0.00 | $0.00 | $0.00 | $0.00 | $0.00 |
Values
| (+) Improvement Homesite Value: | + | $0 | |
| (+) Improvement Non-Homesite Value: | + | $259,140 | |
| (+) Land Homesite Value: | + | $0 | |
| (+) Land Non-Homesite Value: | + | $63,070 | |
| (+) Curr Use (HS): | + | $0 | $0 |
| (+) Curr Use (NHS): | + | $0 | $0 |
| | | -------------------------- | |
| (=) Market Value: | = | $322,210 | |
| (–) Productivity Loss: | – | $0 | |
| | | -------------------------- | |
| (=) Subtotal: | = | $322,210 | |
| (+) Senior Appraised Value: | + | $0 | |
| (+) Non-Senior Appraised Value: | + | $322,210 | |
| | | -------------------------- | |
| (=) Total Appraised Value: | = | $322,210 | |
| (–) Senior Exemption Loss: | – | $0 | |
| (–) Exemption Loss: | – | $0 | |
| | | -------------------------- | |
| (=) Taxable Value: | = | $322,210 | |
Taxing Jurisdiction
| Owner: | FLORES DIANA GEUVARA AND LEONARDO A DIAZ | | |
| % Ownership: | 100.0000000000% | | |
| Total Value: | $322,210 | | |
| Tax Area: | 1 - OL-140-F |
| CERFD | CURRENT EXPENSE REFUND 010 | 0.0000000000 | $322,210 | $322,210 | $0.00 | | |
| CURREXP | CURRENT EXPENSE 010 | 1.0175366760 | $322,210 | $322,210 | $327.86 | | |
| HUMNSERV | HUMAN SERVICES 119 | 0.0250000000 | $322,210 | $322,210 | $8.06 | | |
| SLDREL | SOLDIERS RELIEF 121 | 0.0155990005 | $322,210 | $322,210 | $5.03 | | |
| EMERGSER | EMS 147 | 0.3792580840 | $322,210 | $322,210 | $122.20 | | |
| EMSRFD | EMS REFUND 147 | 0.0000000000 | $322,210 | $322,210 | $0.00 | | |
| PORTRFD | PORT REFUND 640 | 0.0000000000 | $322,210 | $322,210 | $0.00 | | |
| PORTWWGEN | PORT OF WW 640 | 0.2460186015 | $322,210 | $322,210 | $79.27 | | |
| SD140BOND | SD #140 BOND 764 | 0.8342371393 | $322,210 | $322,210 | $268.80 | | |
| SD140GEN | SD #140 GENERAL 760 | 2.0646500647 | $322,210 | $322,210 | $665.25 | | |
| ST2 | STATE SCHOOL PART 2 600 | 0.8131451643 | $322,210 | $322,210 | $262.00 | | |
| STATESCHL | STATE SCHOOL 600 | 1.5158548041 | $322,210 | $322,210 | $488.42 | | |
| STREFUND | STATE REFUND LEVY 603 | 0.0000000000 | $322,210 | $322,210 | $0.00 | | |
| CWWBOND | C OF WW BOND 643 | 0.2760494372 | $322,210 | $322,210 | $88.95 | | |
| CWWGEN | CITY OF WW 631 | 1.6100204973 | $322,210 | $322,210 | $518.76 | | |
| CWWRFD | CITY OF WALLA WALLA REFUND 631 | 0.0000000000 | $322,210 | $322,210 | $0.00 | | |
| | Total Tax Rate: | 8.7973694689 | | | | | |
| | | | | Taxes w/Current Exemptions: | $2,834.60 | | |
| | | | | Taxes w/o Exemptions: | $2,834.60 | | |
Improvement / Building
| Improvement #1: | RESIDENTIAL | State Code: | 11 | 1349.0 sqft | Value: | $259,140 |
| Exterior Wall: | HARDBOARD | Heating/Cooling: | WARM & COOLED AIR | | Number of Bathrooms: | 2 | Number of Bedrooms: | 3 | | Plumbing: | 9 | Roof Covering: | COMP SHINGLE |
|
| | Type | Description | Class CD | Sub Class CD | Year Built | Area |
| | MA | Main Area | 1 | 30 | 2011 | 1349.0 |
| | SI1 | SITE IMPROVEMENT | 1 | 30 | 2011 | 1.5 |
| | ATG | Attached Garage | 1 | 30 | 2011 | 441.0 |
| | OSP | Open | 1 | 30 | 2011 | 100.0 |
| | RPO | OPEN PORCH W/ROOF | 1 | 30 | 2011 | 115.0 |
Sketch
Property Image
Land
| 1 | RES 1 | Converted: Residential | 0.1866 | 8128.00 | 0.00 | 0.00 | 1.00 | $63,070 | $0 |
Roll Value History
| 2026 | N/A | N/A | N/A | N/A | N/A |
| 2025 | $285,060 | $63,070 | $0 | $348,130 | $348,130 |
| 2024 | $285,060 | $63,070 | $0 | $348,130 | $348,130 |
| 2023 | $259,140 | $63,070 | $0 | $322,210 | $322,210 |
| 2022 | $199,340 | $63,070 | $0 | $262,410 | $262,410 |
| 2021 | $202,410 | $60,000 | $0 | $262,410 | $262,410 |
| 2020 | $149,930 | $60,000 | $0 | $209,930 | $209,930 |
| 2019 | $149,930 | $60,000 | $0 | $209,930 | $209,930 |
| 2018 | $130,380 | $60,000 | $0 | $190,380 | $190,380 |
| 2017 | $130,380 | $60,000 | $0 | $190,380 | $190,380 |
| 2016 | $113,370 | $60,000 | $0 | $173,370 | $173,370 |
| 2015 | $104,900 | $60,000 | $0 | $164,900 | $164,900 |
| 2014 | $104,900 | $60,000 | $0 | $164,900 | $164,900 |
| 2013 | $104,900 | $60,000 | $0 | $164,900 | $164,900 |
| 2012 | $93,700 | $60,000 | $0 | $0 | $0 |
| 2011 | $0 | $23,100 | $0 | $0 | $0 |
| 2010 | $0 | $23,000 | $0 | $0 | $0 |
| 2009 | $104,900 | $60,000 | $0 | $0 | $0 |
Deed and Sales History
| 1 | 03/24/2021 | QCD | QUIT CLAIM DEED | DIAZ LEONARDO ALVARADO | FLORES DIANA GEUVARA AND LEONARDO A DIAZ | | | $0.00 | 141199 | 2021-03536 |
| 2 | 01/26/2018 | SWD | STATUTORY WARRANTY DEED | BRINDLE KEITH A & DAKOTA | DIAZ LEONARDO ALVARADO | | | $213,400.00 | 134052 | 2018-00751 |
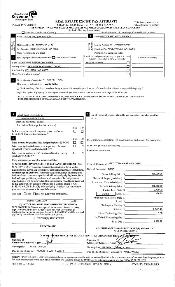
| 3 | 07/08/2016 | SWD | STATUTORY WARRANTY DEED | MATSON TRAVIS J & EVA C | BRINDLE KEITH A & DAKOTA | | | $189,900.00 | 130581 | 2016-05284 |
| 4 | 09/05/2012 | WARRANTY D | WARRANTY DEED | G & CS LLP | MATSON, TRAVIS J & EVA C | | | $165,900.00 | 122595 | 2012-07785 |
| 5 | 03/25/2011 | WARRANTY D | WARRANTY DEED | SIRMON, THAD REAL ESTATE LLC | G & CS LLP | | | $50,000.00 | 119933 | 2011-02607 |
Payout Agreement
| No payout information available.. |