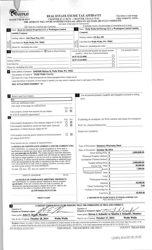
| 1 | 10/28/2014 | WARRANTY D | WARRANTY DEED | ROYSE INVESTMENT PROPERTIES LLC | WALLA WALLA SELF STORAGE LLC | | 2-PARCELS | $3,000,000.00 | 126851 | 2014-07886 |
|   | |
| 2 | 08/21/2012 | WARRANTY D | WARRANTY DEED | TITUS CREEK DEVELOPMENT LLC | ROYSE INVESTMENT PROPERTIES LLC | | | $1,890,000.00 | 122524 | 2012-07195 |
|   | |
| 3 | 08/15/2005 | WARRANTY D | WARRANTY DEED | KEEN, DORIS CREDIT SHELTER TRU | TITUS CREEK DEVELOPMENT LLC | | | | 108224 | 2005-10060 |
| 4 | 03/18/2005 | WARRANTY D | WARRANTY DEED | KEEN, DORIS CREDIT SHELTER TST | TITUS CREEK DEVELOPMENT LLC | | | $345,000.00 | 107027 | 2005-03090 |
| 5 | 05/01/1972 | WARRANTY D | WARRANTY DEED | | | | | | 0 | 3450-520816 |