Property
Account |
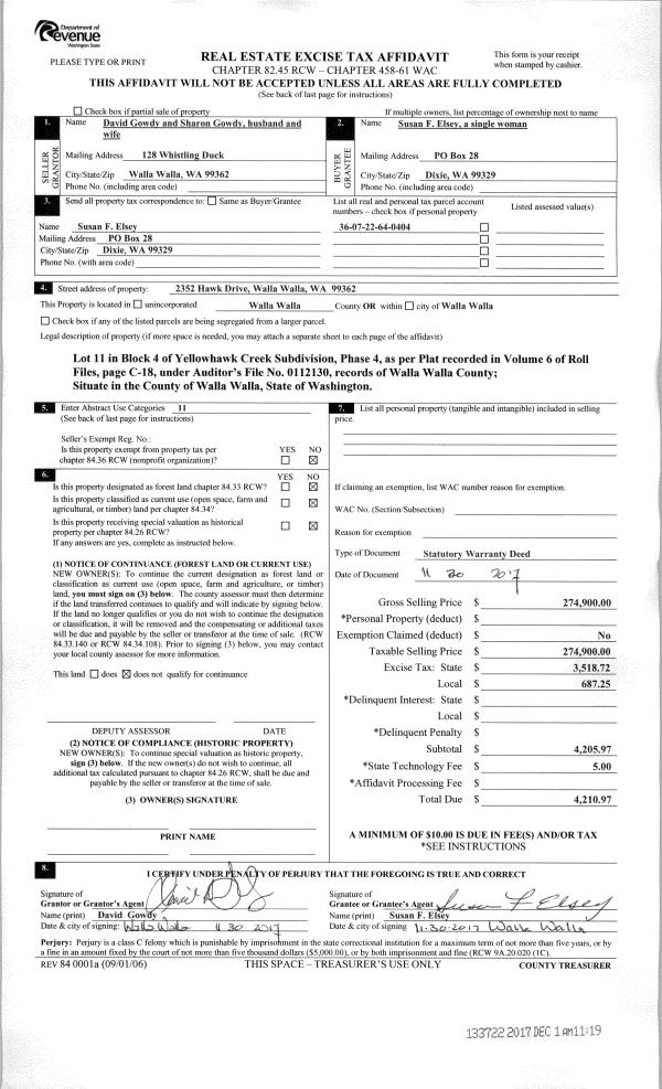
| Property ID: | 34021 | Abbreviated Legal Description: | YELLOWHAWK CREEK SUBD PHASE 4 LOT 11 BLK 4 |
| Parcel Number: | 360722640404 | Agent Code: | |
| Type: | Real | | |
| Tax Area: | 1 - OL-140-F | Land Use Code | 11 |
| Open Space: | N | DFL | N |
| Historic Property: | N | Remodel Property: | N |
| Multi-Family Redevelopment: | N | | |
| Township: | 7 | Section: | 22 |
| Range: | 36 |
Location |
| Address: | 2352 HAWK DR WA 99362 | Mapsco: | |
| Neighborhood: | A-Superior SFR | Map ID: | |
| Neighborhood CD: | 413211 |
Owner |
| Name: | ELSEY SUSAN F | Owner ID: | 62200 |
| Mailing Address: | 2352 HAWK DR WALLA WALLA, WA 99362 | % Ownership: | 100.0000000000% |
| | | Exemptions: | |
Taxes and Assessment Details
Values
| (+) Improvement Homesite Value: | + | $0 | |
| (+) Improvement Non-Homesite Value: | + | $313,470 | |
| (+) Land Homesite Value: | + | $0 | |
| (+) Land Non-Homesite Value: | + | $80,000 | |
| (+) Curr Use (HS): | + | $0 | $0 |
| (+) Curr Use (NHS): | + | $0 | $0 |
| | | -------------------------- | |
| (=) Market Value: | = | $393,470 | |
| (–) Productivity Loss: | – | $0 | |
| | | -------------------------- | |
| (=) Subtotal: | = | $393,470 | |
| (+) Senior Appraised Value: | + | $0 | |
| (+) Non-Senior Appraised Value: | + | $393,470 | |
| | | -------------------------- | |
| (=) Total Appraised Value: | = | $393,470 | |
| (–) Senior Exemption Loss: | – | $0 | |
| (–) Exemption Loss: | – | $0 | |
| | | -------------------------- | |
| (=) Taxable Value: | = | $393,470 | |
Taxing Jurisdiction
| Owner: | ELSEY SUSAN F | | |
| % Ownership: | 100.0000000000% | | |
| Total Value: | $393,470 | | |
| Tax Area: | 1 - OL-140-F |
| CERFD | CURRENT EXPENSE REFUND 010 | 0.0000000000 | $393,470 | $393,470 | $0.00 | | |
| CURREXP | CURRENT EXPENSE 010 | 1.0175366760 | $393,470 | $393,470 | $400.37 | | |
| HUMNSERV | HUMAN SERVICES 119 | 0.0250000000 | $393,470 | $393,470 | $9.84 | | |
| SLDREL | SOLDIERS RELIEF 121 | 0.0155990005 | $393,470 | $393,470 | $6.14 | | |
| EMERGSER | EMS 147 | 0.3792580840 | $393,470 | $393,470 | $149.23 | | |
| EMSRFD | EMS REFUND 147 | 0.0000000000 | $393,470 | $393,470 | $0.00 | | |
| PORTRFD | PORT REFUND 640 | 0.0000000000 | $393,470 | $393,470 | $0.00 | | |
| PORTWWGEN | PORT OF WW 640 | 0.2460186015 | $393,470 | $393,470 | $96.80 | | |
| SD140BOND | SD #140 BOND 764 | 0.8342371393 | $393,470 | $393,470 | $328.25 | | |
| SD140GEN | SD #140 GENERAL 760 | 2.0646500647 | $393,470 | $393,470 | $812.38 | | |
| ST2 | STATE SCHOOL PART 2 600 | 0.8131451643 | $393,470 | $393,470 | $319.95 | | |
| STATESCHL | STATE SCHOOL 600 | 1.5158548041 | $393,470 | $393,470 | $596.44 | | |
| STREFUND | STATE REFUND LEVY 603 | 0.0000000000 | $393,470 | $393,470 | $0.00 | | |
| CWWBOND | C OF WW BOND 643 | 0.2760494372 | $393,470 | $393,470 | $108.62 | | |
| CWWGEN | CITY OF WW 631 | 1.6100204973 | $393,470 | $393,470 | $633.49 | | |
| CWWRFD | CITY OF WALLA WALLA REFUND 631 | 0.0000000000 | $393,470 | $393,470 | $0.00 | | |
| | Total Tax Rate: | 8.7973694689 | | | | | |
| | | | | Taxes w/Current Exemptions: | $3,461.51 | | |
| | | | | Taxes w/o Exemptions: | $3,461.51 | | |
Improvement / Building
| Improvement #1: | RESIDENTIAL | State Code: | 11 | 1608.0 sqft | Value: | $313,470 |
| Exterior Wall: | PLYWOOD | Heating/Cooling: | WARM & COOLED AIR | | Number of Bathrooms: | 2 | Number of Bedrooms: | 3 | | Plumbing: | 10 | Roof Covering: | COMP SHINGLE |
|
| | Type | Description | Class CD | Sub Class CD | Year Built | Area |
| | MA | Main Area | 1 | 35 | 2002 | 1608.0 |
| | GFP | GAS FIREPLACE | 1 | 35 | 0 | 1.0 |
| | SI1 | SITE IMPROVEMENT | 1 | 35 | 0 | 3.5 |
| | ATG | Attached Garage | 1 | 35 | 2002 | 462.0 |
| | RPO | OPEN PORCH W/ROOF | 1 | 35 | 2002 | 150.0 |
| | RPO | OPEN PORCH W/ROOF | 1 | 35 | 2002 | 12.0 |
| | UTST | Utility Storage Shed | 1 | 35 | 2002 | 160.0 |
Sketch
Property Image
Land
| 1 | RES 1 | Converted: Residential | 0.2129 | 9275.00 | 0.00 | 0.00 | 1.00 | $80,000 | $0 |
Roll Value History
| 2026 | N/A | N/A | N/A | N/A | N/A |
| 2025 | $345,600 | $80,000 | $0 | $425,600 | $425,600 |
| 2024 | $329,140 | $80,000 | $0 | $409,140 | $409,140 |
| 2023 | $313,470 | $80,000 | $0 | $393,470 | $393,470 |
| 2022 | $308,000 | $50,000 | $0 | $358,000 | $358,000 |
| 2021 | $220,000 | $50,000 | $0 | $270,000 | $270,000 |
| 2020 | $207,550 | $50,000 | $0 | $257,550 | $257,550 |
| 2019 | $207,550 | $50,000 | $0 | $257,550 | $257,550 |
| 2018 | $185,310 | $50,000 | $0 | $235,310 | $235,310 |
| 2017 | $163,990 | $50,000 | $0 | $213,990 | $213,990 |
| 2016 | $163,990 | $40,000 | $0 | $203,990 | $203,990 |
| 2015 | $156,180 | $40,000 | $0 | $196,180 | $196,180 |
| 2014 | $164,400 | $40,000 | $0 | $204,400 | $204,400 |
| 2013 | $164,400 | $40,000 | $0 | $204,400 | $204,400 |
| 2012 | $164,400 | $40,000 | $0 | $0 | $0 |
| 2011 | $170,200 | $40,000 | $0 | $0 | $0 |
| 2010 | $160,200 | $40,000 | $0 | $0 | $0 |
| 2009 | $182,400 | $40,000 | $0 | $0 | $0 |
| 2008 | $153,400 | $40,000 | $0 | $0 | $0 |
| 2007 | $153,400 | $40,000 | $0 | $0 | $0 |
Deed and Sales History
| 1 | 12/01/2017 | SWD | STATUTORY WARRANTY DEED | GOWDY DAVID A & SHARON K | ELSEY SUSAN F | | | $274,900.00 | 133722 | 2017-09621 |
| 2 | 06/04/2010 | WARRANTY D | WARRANTY DEED | PHILLIPS, ERICA S | GOWDY, DAVID & SHARON | | | $190,000.00 | 118580 | 2010-04338 |
| 3 | 01/10/2008 | QCD | QUIT CLAIM DEED | PHILLIPS, JASON TODD | PHILLIPS, ERICA S | | | | 114363 | 2008-00234 |
| 4 | 01/10/2008 | WARRANTY D | WARRANTY DEED | FICKEL, CHRISTOPHER G & GAYLA | PHILLIPS, ERICA S | | | $225,000.00 | 114366 | 2008-00235 |
| 5 | 09/30/2003 | WARRANTY D | WARRANTY DEED | HARMON, THOMAS J & TRENA C | FICKEL, CHRISTOPHER G | | | $159,700.00 | 103119 | 2003-14915 |
| 6 | 05/24/2002 | WARRANTY D | WARRANTY DEED | | | | | $140,000.00 | 99574 | 2002-0006127 |
Payout Agreement
| No payout information available.. |