Property
Account |
| Property ID: | 34019 | Abbreviated Legal Description: | TAUSICK PARK LT 13 BLK 9 |
| Parcel Number: | 360722550913 | Agent Code: | |
| Type: | Real | | |
| Tax Area: | 1 - OL-140-F | Land Use Code | 11 |
| Open Space: | N | DFL | N |
| Historic Property: | N | Remodel Property: | N |
| Multi-Family Redevelopment: | N | | |
| Township: | 7 | Section: | 22 |
| Range: | 36 |
Location |
| Address: | 180 ASSUMPTION DR WA 99362 | Mapsco: | |
| Neighborhood: | A SFR | Map ID: | |
| Neighborhood CD: | 413011 |
Owner |
| Name: | PARKER RYAN E & CHELSE D STEVENSON | Owner ID: | 76125 |
| Mailing Address: | 180 ASSUMPTION DR WALLA WALLA, WA 99362 | % Ownership: | 100.0000000000% |
| | | Exemptions: | |
Taxes and Assessment Details
Property Tax Information as of
02/21/2026
Click on "Statement Details" to expand or collapse a tax statement.
* Please enter a valid date ** Please enter a valid date *
Statement Details |
| | TOTAL: | $0.00 | $0.00 | $0.00 | $0.00 | $0.00 | $0.00 |
|
| | $0.00 | $0.00 | $0.00 | $0.00 | $0.00 | $0.00 |
Values
| (+) Improvement Homesite Value: | + | $0 | |
| (+) Improvement Non-Homesite Value: | + | $255,700 | |
| (+) Land Homesite Value: | + | $0 | |
| (+) Land Non-Homesite Value: | + | $72,000 | |
| (+) Curr Use (HS): | + | $0 | $0 |
| (+) Curr Use (NHS): | + | $0 | $0 |
| | | -------------------------- | |
| (=) Market Value: | = | $327,700 | |
| (–) Productivity Loss: | – | $0 | |
| | | -------------------------- | |
| (=) Subtotal: | = | $327,700 | |
| (+) Senior Appraised Value: | + | $0 | |
| (+) Non-Senior Appraised Value: | + | $327,700 | |
| | | -------------------------- | |
| (=) Total Appraised Value: | = | $327,700 | |
| (–) Senior Exemption Loss: | – | $0 | |
| (–) Exemption Loss: | – | $0 | |
| | | -------------------------- | |
| (=) Taxable Value: | = | $327,700 | |
Taxing Jurisdiction
| Owner: | PARKER RYAN E & CHELSE D STEVENSON | | |
| % Ownership: | 100.0000000000% | | |
| Total Value: | $327,700 | | |
| Tax Area: | 1 - OL-140-F |
| CERFD | CURRENT EXPENSE REFUND 010 | 0.0000000000 | $327,700 | $327,700 | $0.00 | | |
| CURREXP | CURRENT EXPENSE 010 | 0.9851088983 | $327,700 | $327,700 | $322.82 | | |
| HUMNSERV | HUMAN SERVICES 119 | 0.0250000000 | $327,700 | $327,700 | $8.19 | | |
| SLDREL | SOLDIERS RELIEF 121 | 0.0155990000 | $327,700 | $327,700 | $5.11 | | |
| EMERGSER | EMS 147 | 0.3676811629 | $327,700 | $327,700 | $120.49 | | |
| EMSRFD | EMS REFUND 147 | 0.0000000000 | $327,700 | $327,700 | $0.00 | | |
| PORTRFD | PORT REFUND 640 | 0.0000000000 | $327,700 | $327,700 | $0.00 | | |
| PORTWWGEN | PORT OF WW 640 | 0.2344301070 | $327,700 | $327,700 | $76.82 | | |
| SD140BOND | SD #140 BOND 764 | 0.8032434458 | $327,700 | $327,700 | $263.22 | | |
| SD140CAP | SD #140 CAP 762 | 0.3840034221 | $327,700 | $327,700 | $125.84 | | |
| SD140GEN | SD #140 GENERAL 760 | 2.4999999996 | $327,700 | $327,700 | $819.25 | | |
| ST2 | STATE SCHOOL PART 2 600 | 0.8853714103 | $327,700 | $327,700 | $290.14 | | |
| STATESCHL | STATE SCHOOL 600 | 1.6424571473 | $327,700 | $327,700 | $538.23 | | |
| STREFUND | STATE REFUND LEVY 603 | 0.0000000000 | $327,700 | $327,700 | $0.00 | | |
| CWWBOND | C OF WW BOND 643 | 0.2642134255 | $327,700 | $327,700 | $86.58 | | |
| CWWGEN | CITY OF WW 631 | 1.6110494978 | $327,700 | $327,700 | $527.94 | | |
| CWWRFD | CITY OF WALLA WALLA REFUND 631 | 0.0000000000 | $327,700 | $327,700 | $0.00 | | |
| | Total Tax Rate: | 9.7181575166 | | | | | |
| | | | | Taxes w/Current Exemptions: | $3,184.63 | | |
| | | | | Taxes w/o Exemptions: | $3,184.63 | | |
Improvement / Building
| Improvement #1: | RESIDENTIAL | State Code: | 11 | 1080.0 sqft | Value: | $255,700 |
| Exterior Wall: | PLYWOOD | Heating/Cooling: | WARM & COOLED AIR | | Number of Bathrooms: | 2 | Number of Bedrooms: | 5 | | Plumbing: | 9 | Roof Covering: | COMP SHINGLE |
|
| | Type | Description | Class CD | Sub Class CD | Year Built | Area |
| | MA | Main Area | 1 | 30 | 1984 | 1080.0 |
| | SI1 | SITE IMPROVEMENT | 1 | 30 | 0 | 1.5 |
| | BASE | BASEMENT | 1 | 30 | 1984 | 1040.0 |
| | BPF | BASEMENT -PARTITIONED FINISH | 1 | 30 | 1984 | 1040.0 |
| | ATG | Attached Garage | 1 | 30 | 1984 | 648.0 |
| | RPO | OPEN PORCH W/ROOF | 1 | 30 | 1984 | 30.0 |
| | WOD | Wood Deck | 1 | 30 | 1984 | 539.0 |
| | S1F | Single One Story Fireplace | 1 | 30 | 1984 | 1.0 |
Sketch
Property Image
Land
| 1 | RES 1 | Converted: Residential | 0.2066 | 8999.50 | 0.00 | 0.00 | 1.00 | $72,000 | $0 |
Roll Value History
| 2026 | N/A | N/A | N/A | N/A | N/A |
| 2025 | $255,700 | $72,000 | $0 | $327,700 | $327,700 |
| 2024 | $255,700 | $72,000 | $0 | $327,700 | $327,700 |
| 2023 | $255,700 | $72,000 | $0 | $327,700 | $327,700 |
| 2022 | $256,240 | $47,250 | $0 | $303,490 | $303,490 |
| 2021 | $213,540 | $47,250 | $0 | $260,790 | $260,790 |
| 2020 | $142,360 | $47,250 | $0 | $189,610 | $189,610 |
| 2019 | $142,360 | $47,250 | $0 | $189,610 | $189,610 |
| 2018 | $135,580 | $47,250 | $0 | $182,830 | $182,830 |
| 2017 | $135,580 | $47,250 | $0 | $182,830 | $182,830 |
| 2016 | $125,900 | $36,000 | $0 | $161,900 | $161,900 |
| 2015 | $119,900 | $36,000 | $0 | $155,900 | $155,900 |
| 2014 | $119,900 | $36,000 | $0 | $155,900 | $155,900 |
| 2013 | $119,900 | $36,000 | $0 | $155,900 | $155,900 |
| 2012 | $93,900 | $36,000 | $0 | $0 | $0 |
| 2011 | $101,200 | $36,000 | $0 | $0 | $0 |
| 2010 | $101,200 | $36,000 | $0 | $0 | $0 |
| 2009 | $116,400 | $36,000 | $0 | $0 | $0 |
| 2008 | $116,400 | $36,000 | $0 | $0 | $0 |
| 2007 | $116,400 | $36,000 | $0 | $0 | $0 |
Deed and Sales History
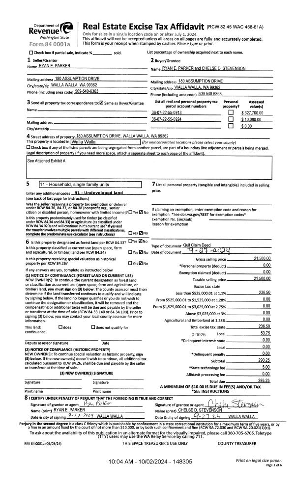
| 1 | 10/02/2024 | QCD | QUIT CLAIM DEED | PARKER RYAN E | PARKER RYAN E & CHELSE D STEVENSON | | 2-PARCELS | $21,500.00 | 148305 | 2024-05711 |
|   | |
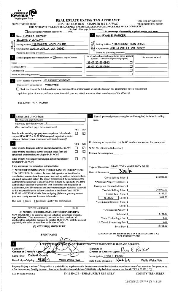
| 2 | 03/28/2019 | SWD | STATUTORY WARRANTY DEED | GOWDY DAVID A & SHARON K | PARKER RYAN E | | 2-PARCLES | $245,000.00 | 136589 | 2019-01985 |
|   | |
| 3 | 08/24/2012 | WARRANTY D | WARRANTY DEED | PERRY, WESLEY & ROSE | GOWDY DAVID A & SHARON K | | | $165,000.00 | 122531 | 2012--07343 |
|   | |
| 4 | 09/16/2002 | WARRANTY D | WARRANTY DEED | "RHOADES, PATRICK & MARY" | | | | | 100267 | 2002-10367 |
| 5 | 09/06/2002 | WARRANTY D | WARRANTY DEED | "RHOADES, PATRICK & MARY" | | | | | 100319 | 2002-09989 |
| 6 | 04/26/1978 | WARRANTY D | WARRANTY DEED | | | | | $10,200.00 | 0 | 81-7803737 |
| 7 | | WARRANTY D | WARRANTY DEED | PERRY, WESLEY & ROSE | | | | | 0 | 2002-09726 |
| 8 | | WARRANTY D | WARRANTY DEED | "PERRY, WESLEY & ROSE" | | | | | 0 | 2012-07343 |
Payout Agreement
| No payout information available.. |