Property
Account |
| Property ID: | 34006 | Abbreviated Legal Description: | BLALOCK ORCHARDS TAX 21 LOT 1 BLK 23 |
| Parcel Number: | 350725522329 | Agent Code: | |
| Type: | Real | | |
| Tax Area: | 77 - CP-250-F | Land Use Code | 55 |
| Open Space: | N | DFL | N |
| Historic Property: | N | Remodel Property: | N |
| Multi-Family Redevelopment: | N | | |
| Township: | 7 | Section: | 25 |
| Range: | 35 |
Location |
| Address: | WA 99324 | Mapsco: | |
| Neighborhood: | CP CITY | Map ID: | |
| Neighborhood CD: | 1342 |
Owner |
| Name: | KIMBALL TODD & SANDRA | Owner ID: | 51703 |
| Mailing Address: | 2902 LOWER WAITSBURG RD WALLA WALLA, WA 99362 | % Ownership: | 100.0000000000% |
| | | Exemptions: | |
Taxes and Assessment Details
Property Tax Information as of
02/21/2026
Click on "Statement Details" to expand or collapse a tax statement.
* Please enter a valid date ** Please enter a valid date *
Statement Details |
| | TOTAL: | $0.00 | $0.00 | $0.00 | $0.00 | $0.00 | $0.00 |
|
| | $0.00 | $0.00 | $0.00 | $0.00 | $0.00 | $0.00 |
Values
| (+) Improvement Homesite Value: | + | $0 | |
| (+) Improvement Non-Homesite Value: | + | $800 | |
| (+) Land Homesite Value: | + | $0 | |
| (+) Land Non-Homesite Value: | + | $107,900 | |
| (+) Curr Use (HS): | + | $0 | $0 |
| (+) Curr Use (NHS): | + | $0 | $0 |
| | | -------------------------- | |
| (=) Market Value: | = | $108,700 | |
| (–) Productivity Loss: | – | $0 | |
| | | -------------------------- | |
| (=) Subtotal: | = | $108,700 | |
| (+) Senior Appraised Value: | + | $0 | |
| (+) Non-Senior Appraised Value: | + | $108,700 | |
| | | -------------------------- | |
| (=) Total Appraised Value: | = | $108,700 | |
| (–) Senior Exemption Loss: | – | $0 | |
| (–) Exemption Loss: | – | $0 | |
| | | -------------------------- | |
| (=) Taxable Value: | = | $108,700 | |
Taxing Jurisdiction
| Owner: | KIMBALL TODD & SANDRA | | |
| % Ownership: | 100.0000000000% | | |
| Total Value: | $108,700 | | |
| Tax Area: | 77 - CP-250-F |
| CERFD | CURRENT EXPENSE REFUND 010 | 0.0000000000 | $108,700 | $108,700 | $0.00 | | |
| CURREXP | CURRENT EXPENSE 010 | 1.0175366760 | $108,700 | $108,700 | $110.61 | | |
| HUMNSERV | HUMAN SERVICES 119 | 0.0250000000 | $108,700 | $108,700 | $2.72 | | |
| SLDREL | SOLDIERS RELIEF 121 | 0.0155990005 | $108,700 | $108,700 | $1.70 | | |
| COLLPLBOND | C OF CP BOND 644 | 0.4374241808 | $108,700 | $108,700 | $47.55 | | |
| COLLPLGEN | CITY OF CP 632 | 1.4453819216 | $108,700 | $108,700 | $157.11 | | |
| EMERGSER | EMS 147 | 0.3792580840 | $108,700 | $108,700 | $41.23 | | |
| EMSRFD | EMS REFUND 147 | 0.0000000000 | $108,700 | $108,700 | $0.00 | | |
| RURALLIB | RURAL LIBRARY 623 | 0.3710609029 | $108,700 | $108,700 | $40.33 | | |
| PORTRFD | PORT REFUND 640 | 0.0000000000 | $108,700 | $108,700 | $0.00 | | |
| PORTWWGEN | PORT OF WW 640 | 0.2460186015 | $108,700 | $108,700 | $26.74 | | |
| SD250BOND | SD #250 BOND 773 | 1.4560608159 | $108,700 | $108,700 | $158.27 | | |
| SD250GEN | SD #250 GENERAL 770 | 2.3880724087 | $108,700 | $108,700 | $259.58 | | |
| ST2 | STATE SCHOOL PART 2 600 | 0.8131451643 | $108,700 | $108,700 | $88.39 | | |
| STATESCHL | STATE SCHOOL 600 | 1.5158548041 | $108,700 | $108,700 | $164.77 | | |
| STREFUND | STATE REFUND LEVY 603 | 0.0000000000 | $108,700 | $108,700 | $0.00 | | |
| | Total Tax Rate: | 10.1104125603 | | | | | |
| | | | | Taxes w/Current Exemptions: | $1,099.00 | | |
| | | | | Taxes w/o Exemptions: | $1,099.00 | | |
Improvement / Building
| Improvement #1: | COMMERCIAL | State Code: | 55 | 0.0 sqft | Value: | $800 |
Sketch
| No sketches available for this property. |
Property Image
Land
| 1 | COM 1 | Converted: Commercial | 0.5800 | 25264.80 | 0.00 | 0.00 | 1.00 | $107,900 | $0 |
Roll Value History
| 2026 | N/A | N/A | N/A | N/A | N/A |
| 2025 | $800 | $107,900 | $0 | $108,700 | $108,700 |
| 2024 | $800 | $107,900 | $0 | $108,700 | $108,700 |
| 2023 | $800 | $107,900 | $0 | $108,700 | $108,700 |
| 2022 | $800 | $107,900 | $0 | $108,700 | $108,700 |
| 2021 | $800 | $107,900 | $0 | $108,700 | $108,700 |
| 2020 | $800 | $107,900 | $0 | $108,700 | $108,700 |
| 2019 | $10,000 | $98,700 | $0 | $108,700 | $108,700 |
| 2018 | $10,000 | $98,700 | $0 | $108,700 | $108,700 |
| 2017 | $10,000 | $98,700 | $0 | $108,700 | $108,700 |
| 2016 | $10,000 | $98,700 | $0 | $108,700 | $108,700 |
| 2015 | $10,000 | $98,700 | $0 | $108,700 | $108,700 |
| 2014 | $10,000 | $98,700 | $0 | $108,700 | $108,700 |
| 2013 | $10,000 | $98,700 | $0 | $108,700 | $108,700 |
| 2012 | $0 | $126,300 | $0 | $0 | $0 |
| 2011 | $0 | $126,300 | $0 | $0 | $0 |
| 2010 | $0 | $126,300 | $0 | $0 | $0 |
| 2009 | $0 | $126,300 | $0 | $0 | $0 |
| 2008 | $0 | $38,200 | $0 | $0 | $0 |
| 2007 | $0 | $38,200 | $0 | $0 | $0 |
Deed and Sales History
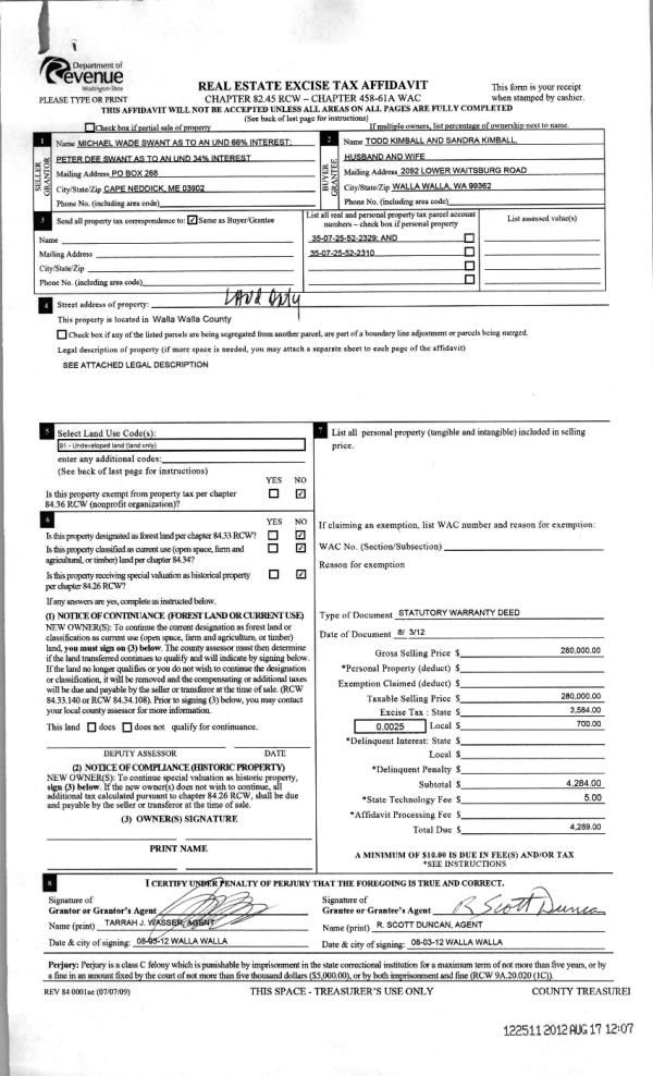
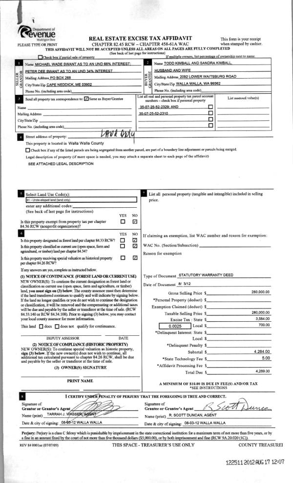
| 1 | 08/17/2012 | WARRANTY D | WARRANTY DEED | SWANT MICHAEL WADE | KIMBALL TODD & SANDRA | | | $280,000.00 | 122511 | 2012-07098 |
|   | |
| 2 | 09/05/2006 | WARRANTY D | WARRANTY DEED | "SWANT, HENRIETTA ESTATE~OF" | SWANT MICHAEL WADE | | | | 111144 | 2006-10701 |
| 3 | 01/03/1994 | WARRANTY D | WARRANTY DEED | | | | | $55,000.00 | 80783 | 2149-400045 |
Payout Agreement
| No payout information available.. |