Property
Account |
| Property ID: | 34004 | Abbreviated Legal Description: | GREEN PARK LOT 10 BLK 16 |
| Parcel Number: | 360721511610 | Agent Code: | |
| Type: | Real | | |
| Tax Area: | 1 - OL-140-F | Land Use Code | 11 |
| Open Space: | N | DFL | N |
| Historic Property: | N | Remodel Property: | N |
| Multi-Family Redevelopment: | N | | |
| Township: | 7 | Section: | 21 |
| Range: | 36 |
Location |
| Address: | 1129 BONSELLA ST WA 99362 | Mapsco: | |
| Neighborhood: | G-SFR | Map ID: | |
| Neighborhood CD: | 514011 |
Owner |
| Name: | MEEKER DALLAS E & FRANCES A | Owner ID: | 70481 |
| Mailing Address: | 14253 87TH CT NE KIRKLAND, WA 98034 | % Ownership: | 100.0000000000% |
| | | Exemptions: | |
Taxes and Assessment Details
Values
| (+) Improvement Homesite Value: | + | $0 | |
| (+) Improvement Non-Homesite Value: | + | $621,750 | |
| (+) Land Homesite Value: | + | $0 | |
| (+) Land Non-Homesite Value: | + | $53,510 | |
| (+) Curr Use (HS): | + | $0 | $0 |
| (+) Curr Use (NHS): | + | $0 | $0 |
| | | -------------------------- | |
| (=) Market Value: | = | $675,260 | |
| (–) Productivity Loss: | – | $0 | |
| | | -------------------------- | |
| (=) Subtotal: | = | $675,260 | |
| (+) Senior Appraised Value: | + | $0 | |
| (+) Non-Senior Appraised Value: | + | $675,260 | |
| | | -------------------------- | |
| (=) Total Appraised Value: | = | $675,260 | |
| (–) Senior Exemption Loss: | – | $0 | |
| (–) Exemption Loss: | – | $0 | |
| | | -------------------------- | |
| (=) Taxable Value: | = | $675,260 | |
Taxing Jurisdiction
| Owner: | MEEKER DALLAS E & FRANCES A | | |
| % Ownership: | 100.0000000000% | | |
| Total Value: | $675,260 | | |
| Tax Area: | 1 - OL-140-F |
| CERFD | CURRENT EXPENSE REFUND 010 | 0.0000000000 | $675,260 | $675,260 | $0.00 | | |
| CURREXP | CURRENT EXPENSE 010 | 1.0175366760 | $675,260 | $675,260 | $687.10 | | |
| HUMNSERV | HUMAN SERVICES 119 | 0.0250000000 | $675,260 | $675,260 | $16.88 | | |
| SLDREL | SOLDIERS RELIEF 121 | 0.0155990005 | $675,260 | $675,260 | $10.53 | | |
| EMERGSER | EMS 147 | 0.3792580840 | $675,260 | $675,260 | $256.10 | | |
| EMSRFD | EMS REFUND 147 | 0.0000000000 | $675,260 | $675,260 | $0.00 | | |
| PORTRFD | PORT REFUND 640 | 0.0000000000 | $675,260 | $675,260 | $0.00 | | |
| PORTWWGEN | PORT OF WW 640 | 0.2460186015 | $675,260 | $675,260 | $166.13 | | |
| SD140BOND | SD #140 BOND 764 | 0.8342371393 | $675,260 | $675,260 | $563.33 | | |
| SD140GEN | SD #140 GENERAL 760 | 2.0646500647 | $675,260 | $675,260 | $1,394.18 | | |
| ST2 | STATE SCHOOL PART 2 600 | 0.8131451643 | $675,260 | $675,260 | $549.08 | | |
| STATESCHL | STATE SCHOOL 600 | 1.5158548041 | $675,260 | $675,260 | $1,023.60 | | |
| STREFUND | STATE REFUND LEVY 603 | 0.0000000000 | $675,260 | $675,260 | $0.00 | | |
| CWWBOND | C OF WW BOND 643 | 0.2760494372 | $675,260 | $675,260 | $186.41 | | |
| CWWGEN | CITY OF WW 631 | 1.6100204973 | $675,260 | $675,260 | $1,087.18 | | |
| CWWRFD | CITY OF WALLA WALLA REFUND 631 | 0.0000000000 | $675,260 | $675,260 | $0.00 | | |
| | Total Tax Rate: | 8.7973694689 | | | | | |
| | | | | Taxes w/Current Exemptions: | $5,940.52 | | |
| | | | | Taxes w/o Exemptions: | $5,940.52 | | |
Improvement / Building
| Improvement #1: | RESIDENTIAL | State Code: | 11 | 2018.0 sqft | Value: | $621,750 |
| Exterior Wall: | SIDING | Heating/Cooling: | WARM & COOLED AIR | | Number of Bathrooms: | 3 | Number of Bedrooms: | 4 | | Plumbing: | 14 | Roof Covering: | COMP SHINGLE |
|
| | Type | Description | Class CD | Sub Class CD | Year Built | Area |
| | MA | Main Area | 4 | 45 | 1940 | 2018.0 |
| | UPFL | Upper Floor (included in main area) | 4 | 45 | 1940 | 650.0 |
| | SI1 | SITE IMPROVEMENT | 4 | 45 | 1940 | 2.5 |
| | BASE | BASEMENT | 4 | 45 | 1940 | 644.0 |
| | BPF | BASEMENT -PARTITIONED FINISH | 4 | 45 | 1940 | 644.0 |
| | S1F | Single One Story Fireplace | 4 | 45 | 1940 | 1.0 |
| | DTG | Detached Garage | 4 | 45 | 1940 | 240.0 |
| | DTG | Detached Garage | 4 | 45 | 1940 | 680.0 |
| | RPS | PORCH W/STEPS,ROOF | 4 | 45 | 1940 | 52.0 |
| | WOD | Wood Deck | 4 | 45 | 1940 | 226.0 |
Sketch
Property Image
Land
| 1 | RES 1 | Converted: Residential | 0.1694 | 7380.00 | 0.00 | 0.00 | 1.00 | $53,510 | $0 |
Roll Value History
| 2026 | N/A | N/A | N/A | N/A | N/A |
| 2025 | $591,710 | $81,180 | $0 | $672,890 | $672,890 |
| 2024 | $591,710 | $81,180 | $0 | $672,890 | $672,890 |
| 2023 | $621,750 | $53,510 | $0 | $675,260 | $675,260 |
| 2022 | $565,230 | $53,510 | $0 | $618,740 | $618,740 |
| 2021 | $353,270 | $53,510 | $0 | $406,780 | $406,780 |
| 2020 | $294,390 | $53,510 | $0 | $347,900 | $347,900 |
| 2019 | $294,390 | $53,510 | $0 | $347,900 | $347,900 |
| 2018 | $294,390 | $53,510 | $0 | $347,900 | $347,900 |
| 2017 | $278,820 | $33,200 | $0 | $312,020 | $312,020 |
| 2016 | $253,470 | $33,200 | $0 | $286,670 | $286,670 |
| 2015 | $253,470 | $33,200 | $0 | $286,670 | $286,670 |
| 2014 | $241,400 | $33,200 | $0 | $274,600 | $274,600 |
| 2013 | $241,400 | $33,200 | $0 | $274,600 | $274,600 |
| 2012 | $237,400 | $33,200 | $0 | $0 | $0 |
| 2011 | $237,400 | $33,200 | $0 | $0 | $0 |
| 2010 | $224,500 | $33,200 | $0 | $0 | $0 |
| 2009 | $253,100 | $33,200 | $0 | $0 | $0 |
| 2008 | $253,100 | $33,200 | $0 | $0 | $0 |
| 2007 | $253,100 | $33,200 | $0 | $0 | $0 |
Deed and Sales History
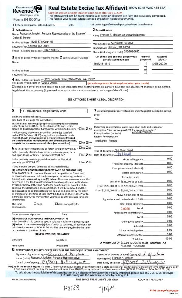
| 1 | 09/12/2024 | QCD | QUIT CLAIM DEED | MEEKER DALLAS E & FRANCES A | MEEKER FRANCES A | | | | 148183 | 2024-05191 |
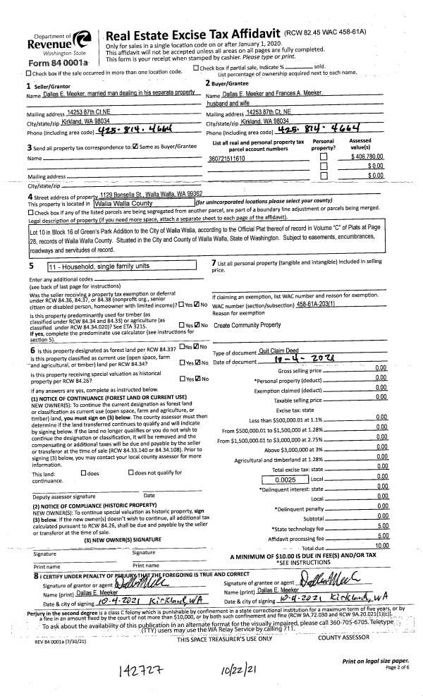
| 2 | 10/22/2021 | QCD | QUIT CLAIM DEED | MEEKER DALLAS E | MEEKER DALLAS E & FRANCES A | | | $0.00 | 142727 | 2021-12813 |
| 3 | 06/09/2021 | QCD | QUIT CLAIM DEED | MEEKER DAVID W | MEEKER DALLAS E | | | $0.00 | 141849 | 2021-07524 |
| 4 | 11/07/2018 | DPR | DEED OF PERSONAL REPRESENTATIVE | MEEKER DAVID W & MARY E | MEEKER DAVID W | | | $0.00 | 135906 | 2018-09295 |
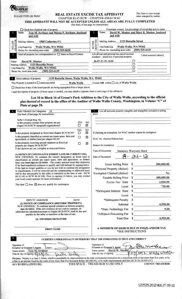
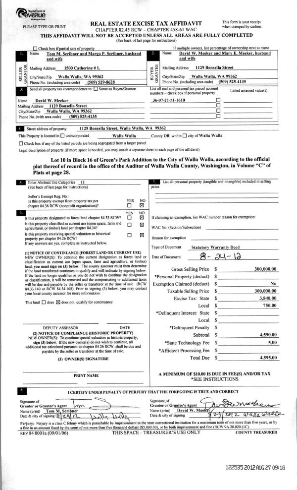
| 5 | 08/27/2012 | WARRANTY D | WARRANTY DEED | SCRIBNER, TOM & MARGO | MEEKER, DAVID W & MARY E | | | $300,000.00 | 122535 | 2012-07354 |
| 6 | 08/31/1994 | WARRANTY D | WARRANTY DEED | | | | | $200,000.00 | 82480 | 2229-410242 |
Payout Agreement
| No payout information available.. |