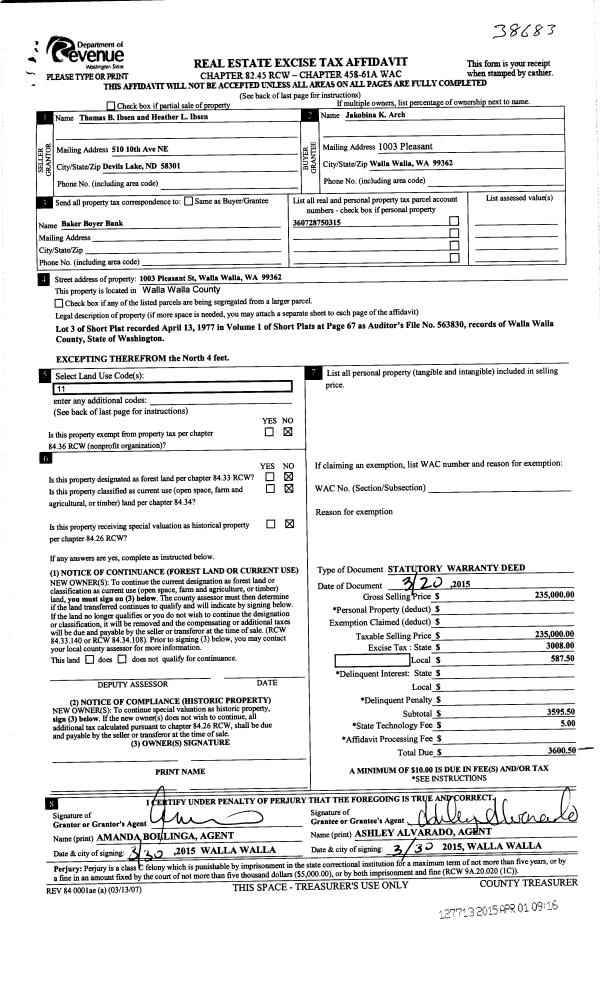
Property
Account |
| Property ID: | 33987 | Abbreviated Legal Description: | TAYLORS TRACT 3 OF SHORT PLAT (TAX 1,2 LESS NLY STRIPS BLK 3) |
| Parcel Number: | 360728750315 | Agent Code: | |
| Type: | Real | | |
| Tax Area: | 1 - OL-140-F | Land Use Code | 11 |
| Open Space: | N | DFL | N |
| Historic Property: | N | Remodel Property: | N |
| Multi-Family Redevelopment: | N | | |
| Township: | 7 | Section: | 28 |
| Range: | 36 |
Location |
| Address: | 1003 PLEASANT ST WA 99362 | Mapsco: | |
| Neighborhood: | G Res | Map ID: | |
| Neighborhood CD: | 614011 |
Owner |
| Name: | ARCH JAKOBINA K | Owner ID: | 56313 |
| Mailing Address: | 1003 PLEASANT ST WALLA WALLA, WA 99362 | % Ownership: | 100.0000000000% |
| | | Exemptions: | |
Taxes and Assessment Details
Values
| (+) Improvement Homesite Value: | + | $0 | |
| (+) Improvement Non-Homesite Value: | + | $288,830 | |
| (+) Land Homesite Value: | + | $0 | |
| (+) Land Non-Homesite Value: | + | $122,440 | |
| (+) Curr Use (HS): | + | $0 | $0 |
| (+) Curr Use (NHS): | + | $0 | $0 |
| | | -------------------------- | |
| (=) Market Value: | = | $411,270 | |
| (–) Productivity Loss: | – | $0 | |
| | | -------------------------- | |
| (=) Subtotal: | = | $411,270 | |
| (+) Senior Appraised Value: | + | $0 | |
| (+) Non-Senior Appraised Value: | + | $411,270 | |
| | | -------------------------- | |
| (=) Total Appraised Value: | = | $411,270 | |
| (–) Senior Exemption Loss: | – | $0 | |
| (–) Exemption Loss: | – | $0 | |
| | | -------------------------- | |
| (=) Taxable Value: | = | $411,270 | |
Taxing Jurisdiction
| Owner: | ARCH JAKOBINA K | | |
| % Ownership: | 100.0000000000% | | |
| Total Value: | $411,270 | | |
| Tax Area: | 1 - OL-140-F |
| CERFD | CURRENT EXPENSE REFUND 010 | 0.0000000000 | $411,270 | $411,270 | $0.00 | | |
| CURREXP | CURRENT EXPENSE 010 | 1.0175366760 | $411,270 | $411,270 | $418.48 | | |
| HUMNSERV | HUMAN SERVICES 119 | 0.0250000000 | $411,270 | $411,270 | $10.28 | | |
| SLDREL | SOLDIERS RELIEF 121 | 0.0155990005 | $411,270 | $411,270 | $6.42 | | |
| EMERGSER | EMS 147 | 0.3792580840 | $411,270 | $411,270 | $155.98 | | |
| EMSRFD | EMS REFUND 147 | 0.0000000000 | $411,270 | $411,270 | $0.00 | | |
| PORTRFD | PORT REFUND 640 | 0.0000000000 | $411,270 | $411,270 | $0.00 | | |
| PORTWWGEN | PORT OF WW 640 | 0.2460186015 | $411,270 | $411,270 | $101.18 | | |
| SD140BOND | SD #140 BOND 764 | 0.8342371393 | $411,270 | $411,270 | $343.10 | | |
| SD140GEN | SD #140 GENERAL 760 | 2.0646500647 | $411,270 | $411,270 | $849.13 | | |
| ST2 | STATE SCHOOL PART 2 600 | 0.8131451643 | $411,270 | $411,270 | $334.42 | | |
| STATESCHL | STATE SCHOOL 600 | 1.5158548041 | $411,270 | $411,270 | $623.43 | | |
| STREFUND | STATE REFUND LEVY 603 | 0.0000000000 | $411,270 | $411,270 | $0.00 | | |
| CWWBOND | C OF WW BOND 643 | 0.2760494372 | $411,270 | $411,270 | $113.53 | | |
| CWWGEN | CITY OF WW 631 | 1.6100204973 | $411,270 | $411,270 | $662.15 | | |
| CWWRFD | CITY OF WALLA WALLA REFUND 631 | 0.0000000000 | $411,270 | $411,270 | $0.00 | | |
| | Total Tax Rate: | 8.7973694689 | | | | | |
| | | | | Taxes w/Current Exemptions: | $3,618.10 | | |
| | | | | Taxes w/o Exemptions: | $3,618.10 | | |
Improvement / Building
| Improvement #1: | RESIDENTIAL | State Code: | 11 | 1578.0 sqft | Value: | $288,830 |
| Exterior Wall: | HARDBOARD | Heating/Cooling: | WARM & COOLED AIR | | Number of Bathrooms: | 2 | Number of Bedrooms: | 3 | | Plumbing: | 9 | Roof Covering: | COMP SHINGLE |
|
| | Type | Description | Class CD | Sub Class CD | Year Built | Area |
| | MA | Main Area | 1 | 35 | 1949 | 1578.0 |
| | SI1 | SITE IMPROVEMENT | 1 | 35 | 1949 | 2.0 |
| | S1F | Single One Story Fireplace | 1 | 35 | 1949 | 1.0 |
| | PRC | PORCH W STEPS, ROOF,CEILED | 1 | 35 | 1949 | 52.0 |
| | CPC | COVERED CARPORT/PATIO | 1 | 35 | 1949 | 310.0 |
| | ATG | Attached Garage | 1 | 35 | 1949 | 469.0 |
| | UTST | Utility Storage Shed | 1 | 35 | 1949 | 55.0 |
| | TOOL | TOOL SHED | 1 | 35 | 1949 | 80.0 |
Sketch
Property Image
Land
| 1 | RES 1 | Converted: Residential | 0.3326 | 14490.00 | 0.00 | 0.00 | 1.00 | $122,440 | $0 |
Roll Value History
| 2026 | N/A | N/A | N/A | N/A | N/A |
| 2025 | $267,850 | $146,060 | $0 | $413,910 | $413,910 |
| 2024 | $288,830 | $122,440 | $0 | $411,270 | $411,270 |
| 2023 | $288,830 | $122,440 | $0 | $411,270 | $411,270 |
| 2022 | $275,080 | $100,560 | $0 | $375,640 | $375,640 |
| 2021 | $261,980 | $100,560 | $0 | $362,540 | $362,540 |
| 2020 | $194,060 | $100,560 | $0 | $294,620 | $294,620 |
| 2019 | $194,060 | $100,560 | $0 | $294,620 | $294,620 |
| 2018 | $184,870 | $50,900 | $0 | $235,770 | $235,770 |
| 2017 | $184,870 | $50,900 | $0 | $235,770 | $235,770 |
| 2016 | $176,070 | $50,900 | $0 | $226,970 | $226,970 |
| 2015 | $176,070 | $50,900 | $0 | $226,970 | $226,970 |
| 2014 | $153,100 | $50,900 | $0 | $204,000 | $204,000 |
| 2013 | $153,100 | $50,900 | $0 | $204,000 | $204,000 |
| 2012 | $120,000 | $50,900 | $0 | $0 | $0 |
| 2011 | $120,000 | $50,900 | $0 | $0 | $0 |
| 2010 | $104,500 | $50,900 | $0 | $0 | $0 |
| 2009 | $121,800 | $50,900 | $0 | $0 | $0 |
| 2008 | $115,000 | $50,900 | $0 | $0 | $0 |
| 2007 | $89,500 | $28,400 | $0 | $0 | $0 |
Deed and Sales History
| 1 | 04/01/2015 | SWD | STATUTORY WARRANTY DEED | IBSEN THOMAS B & HEATHER L | ARCH JAKOBINA K | | | $235,000.00 | 127713 | 2015-02659 |
| 2 | 09/20/2012 | WARRANTY D | WARRANTY DEED | HENLINE, PAUL B | IBSEN, THOMAS B & HEATHER L | | | $210,000.00 | 122672 | 2012-08219 |
| 3 | 11/15/2010 | QCD | QUIT CLAIM DEED | HENLINE, JODI L | HENLINE, PAUL B | | | | 119332 | 2010-09310 |
| 4 | 10/04/2002 | WARRANTY D | WARRANTY DEED | SORENSEN, EVERETT B | HENLINE, PAUL B | | | $120,000.00 | 100513 | 2002-11159 |
Payout Agreement
| No payout information available.. |