Property
Account |
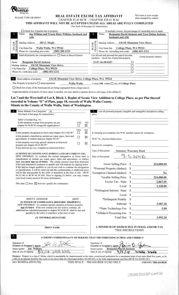
| Property ID: | 33983 | Abbreviated Legal Description: | SCENIC VIEW LOT 7 BLK 3, W1/2 OF LOT 8 BLK 3 |
| Parcel Number: | 350736580307 | Agent Code: | |
| Type: | Real | | |
| Tax Area: | 75 - CP 250 | Land Use Code | 11 |
| Open Space: | N | DFL | N |
| Historic Property: | N | Remodel Property: | N |
| Multi-Family Redevelopment: | N | | |
| Township: | 7 | Section: | 36 |
| Range: | 35 |
Location |
| Address: | 136 SE MOUNTAIN VIEW DR WA 99324 | Mapsco: | |
| Neighborhood: | A SFR | Map ID: | |
| Neighborhood CD: | 113011 |
Owner |
| Name: | JACKSON BENJAMIN DAVID & TARA QUINN | Owner ID: | 63865 |
| Mailing Address: | 136 SE MOUNTAIN VIEW DR COLLEGE PLACE, WA 99324 | % Ownership: | 100.0000000000% |
| | | Exemptions: | |
Taxes and Assessment Details
Property Tax Information as of
02/21/2026
Click on "Statement Details" to expand or collapse a tax statement.
* Please enter a valid date ** Please enter a valid date *
Statement Details |
| | TOTAL: | $0.00 | $0.00 | $0.00 | $0.00 | $0.00 | $0.00 |
|
| | $0.00 | $0.00 | $0.00 | $0.00 | $0.00 | $0.00 |
Values
| (+) Improvement Homesite Value: | + | $0 | |
| (+) Improvement Non-Homesite Value: | + | $277,060 | |
| (+) Land Homesite Value: | + | $0 | |
| (+) Land Non-Homesite Value: | + | $60,750 | |
| (+) Curr Use (HS): | + | $0 | $0 |
| (+) Curr Use (NHS): | + | $0 | $0 |
| | | -------------------------- | |
| (=) Market Value: | = | $337,810 | |
| (–) Productivity Loss: | – | $0 | |
| | | -------------------------- | |
| (=) Subtotal: | = | $337,810 | |
| (+) Senior Appraised Value: | + | $0 | |
| (+) Non-Senior Appraised Value: | + | $337,810 | |
| | | -------------------------- | |
| (=) Total Appraised Value: | = | $337,810 | |
| (–) Senior Exemption Loss: | – | $0 | |
| (–) Exemption Loss: | – | $0 | |
| | | -------------------------- | |
| (=) Taxable Value: | = | $337,810 | |
Taxing Jurisdiction
| Owner: | JACKSON BENJAMIN DAVID & TARA QUINN | | |
| % Ownership: | 100.0000000000% | | |
| Total Value: | $337,810 | | |
| Tax Area: | 75 - CP 250 |
| CERFD | CURRENT EXPENSE REFUND 010 | 0.0000000000 | $337,810 | $337,810 | $0.00 | | |
| CURREXP | CURRENT EXPENSE 010 | 1.0175366760 | $337,810 | $337,810 | $343.73 | | |
| HUMNSERV | HUMAN SERVICES 119 | 0.0250000000 | $337,810 | $337,810 | $8.45 | | |
| SLDREL | SOLDIERS RELIEF 121 | 0.0155990005 | $337,810 | $337,810 | $5.27 | | |
| COLLPLBOND | C OF CP BOND 644 | 0.4374241808 | $337,810 | $337,810 | $147.77 | | |
| COLLPLGEN | CITY OF CP 632 | 1.4453819216 | $337,810 | $337,810 | $488.26 | | |
| EMERGSER | EMS 147 | 0.3792580840 | $337,810 | $337,810 | $128.12 | | |
| EMSRFD | EMS REFUND 147 | 0.0000000000 | $337,810 | $337,810 | $0.00 | | |
| RURALLIB | RURAL LIBRARY 623 | 0.3710609029 | $337,810 | $337,810 | $125.35 | | |
| PORTRFD | PORT REFUND 640 | 0.0000000000 | $337,810 | $337,810 | $0.00 | | |
| PORTWWGEN | PORT OF WW 640 | 0.2460186015 | $337,810 | $337,810 | $83.11 | | |
| SD250BOND | SD #250 BOND 773 | 1.4560608159 | $337,810 | $337,810 | $491.87 | | |
| SD250GEN | SD #250 GENERAL 770 | 2.3880724087 | $337,810 | $337,810 | $806.71 | | |
| ST2 | STATE SCHOOL PART 2 600 | 0.8131451643 | $337,810 | $337,810 | $274.69 | | |
| STATESCHL | STATE SCHOOL 600 | 1.5158548041 | $337,810 | $337,810 | $512.07 | | |
| STREFUND | STATE REFUND LEVY 603 | 0.0000000000 | $337,810 | $337,810 | $0.00 | | |
| | Total Tax Rate: | 10.1104125603 | | | | | |
| | | | | Taxes w/Current Exemptions: | $3,415.40 | | |
| | | | | Taxes w/o Exemptions: | $3,415.40 | | |
Improvement / Building
| Improvement #1: | RESIDENTIAL | State Code: | 11 | 1322.0 sqft | Value: | $277,060 |
| Exterior Wall: | METAL/STEEL | Heating/Cooling: | WARM & COOLED AIR | | Number of Bathrooms: | 2 | Number of Bedrooms: | 3 | | Plumbing: | 9 | Roof Covering: | COMP SHINGLE |
|
| | Type | Description | Class CD | Sub Class CD | Year Built | Area |
| | MA | Main Area | 1 | 30 | 1956 | 1322.0 |
| | SI1 | SITE IMPROVEMENT | 1 | 30 | 1956 | 1.5 |
| | ATG | Attached Garage | 1 | 30 | 1956 | 494.0 |
| | OPS | OPEN PORCH W/STEPS | 1 | 30 | 1956 | 39.0 |
| | S1F | Single One Story Fireplace | 1 | 30 | 1956 | 1.0 |
| | UTIL-STOR | UTILITY STORAGE | 1 | 30 | 1956 | 96.0 |
| | GIF | GARAGE INTERIOR FINISH | 1 | 30 | 2023 | 49.0 |
Sketch
Property Image
Land
| 1 | RES 1 | Converted: Residential | 0.2066 | 9000.00 | 0.00 | 0.00 | 1.00 | $60,750 | $0 |
Roll Value History
| 2026 | N/A | N/A | N/A | N/A | N/A |
| 2025 | $249,350 | $90,000 | $0 | $339,350 | $339,350 |
| 2024 | $277,060 | $60,750 | $0 | $337,810 | $337,810 |
| 2023 | $277,060 | $60,750 | $0 | $337,810 | $337,810 |
| 2022 | $251,380 | $60,750 | $0 | $312,130 | $312,130 |
| 2021 | $179,560 | $60,750 | $0 | $240,310 | $240,310 |
| 2020 | $138,120 | $60,750 | $0 | $198,870 | $198,870 |
| 2019 | $152,570 | $46,300 | $0 | $198,870 | $198,870 |
| 2018 | $127,140 | $46,300 | $0 | $173,440 | $173,440 |
| 2017 | $127,140 | $46,300 | $0 | $173,440 | $173,440 |
| 2016 | $127,140 | $46,300 | $0 | $173,440 | $173,440 |
| 2015 | $127,140 | $46,300 | $0 | $173,440 | $173,440 |
| 2014 | $97,800 | $46,300 | $0 | $144,100 | $144,100 |
| 2013 | $97,800 | $46,300 | $0 | $144,100 | $144,100 |
| 2012 | $90,900 | $46,300 | $0 | $0 | $0 |
| 2011 | $90,900 | $46,300 | $0 | $0 | $0 |
| 2010 | $90,900 | $46,300 | $0 | $0 | $0 |
| 2009 | $106,100 | $46,300 | $0 | $0 | $0 |
| 2008 | $80,300 | $23,800 | $0 | $0 | $0 |
| 2007 | $80,300 | $23,800 | $0 | $0 | $0 |
Deed and Sales History
| 1 | 09/06/2018 | SWD | STATUTORY WARRANTY DEED | WILKINS JOE | JACKSON BENJAMIN DAVID & TARA QUINN | | | $224,000.00 | 135488 | 2018-07396 |
| 2 | 09/14/2012 | WARRANTY D | WARRANTY DEED | STOLE, CAROL JEAN | WILKINS, JOE | | | $168,000.00 | 122645 | 2012-08023 |
| 3 | 12/19/2006 | WARRANTY D | WARRANTY DEED | FULLER, CAROL J | STOLE, CAROL JEAN | | | $0.00 | 0 | 2006-15051 |
| 4 | 10/26/2004 | WARRANTY D | WARRANTY DEED | RICE, MAUREEN C | FULLER, CAROL J | | | $115,000.00 | 106048 | 2004-12358 |
| 5 | 05/24/2002 | WARRANTY D | WARRANTY DEED | | | | | $105,200.00 | 99581 | 2002-0006272 |
Payout Agreement
| No payout information available.. |