Property
Account |
| Property ID: | 33980 | Abbreviated Legal Description: | WALNUT GROVE LOT 6 BLK 1 LESS STRIP ON S. FOR ST |
| Parcel Number: | 360720780118 | Agent Code: | |
| Type: | Real | | |
| Tax Area: | 1 - OL-140-F | Land Use Code | 12 |
| Open Space: | N | DFL | N |
| Historic Property: | N | Remodel Property: | N |
| Multi-Family Redevelopment: | N | | |
| Township: | 7 | Section: | 20 |
| Range: | 36 |
Location |
| Address: | 609 ISAACS AVE WA 99362 | Mapsco: | |
| Neighborhood: | A-Apartment | Map ID: | |
| Neighborhood CD: | 513021 |
Owner |
| Name: | SIMON CORY T & JAIME L | Owner ID: | 70658 |
| Mailing Address: | RASMUSSEN PAUL A & KATY L 3042 S NOVARA WAY MERIDIAN, ID 83642 | % Ownership: | 100.0000000000% |
| | | Exemptions: | |
Taxes and Assessment Details
Property Tax Information as of
02/21/2026
Click on "Statement Details" to expand or collapse a tax statement.
* Please enter a valid date ** Please enter a valid date *
Statement Details |
| | TOTAL: | $0.00 | $0.00 | $0.00 | $0.00 | $0.00 | $0.00 |
|
| | $0.00 | $0.00 | $0.00 | $0.00 | $0.00 | $0.00 |
Values
| (+) Improvement Homesite Value: | + | $0 | |
| (+) Improvement Non-Homesite Value: | + | $378,430 | |
| (+) Land Homesite Value: | + | $0 | |
| (+) Land Non-Homesite Value: | + | $37,720 | |
| (+) Curr Use (HS): | + | $0 | $0 |
| (+) Curr Use (NHS): | + | $0 | $0 |
| | | -------------------------- | |
| (=) Market Value: | = | $416,150 | |
| (–) Productivity Loss: | – | $0 | |
| | | -------------------------- | |
| (=) Subtotal: | = | $416,150 | |
| (+) Senior Appraised Value: | + | $0 | |
| (+) Non-Senior Appraised Value: | + | $416,150 | |
| | | -------------------------- | |
| (=) Total Appraised Value: | = | $416,150 | |
| (–) Senior Exemption Loss: | – | $0 | |
| (–) Exemption Loss: | – | $0 | |
| | | -------------------------- | |
| (=) Taxable Value: | = | $416,150 | |
Taxing Jurisdiction
| Owner: | SIMON CORY T & JAIME L | | |
| % Ownership: | 100.0000000000% | | |
| Total Value: | $416,150 | | |
| Tax Area: | 1 - OL-140-F |
| CERFD | CURRENT EXPENSE REFUND 010 | 0.0000000000 | $416,150 | $416,150 | $0.00 | | |
| CURREXP | CURRENT EXPENSE 010 | 1.0175366760 | $416,150 | $416,150 | $423.45 | | |
| HUMNSERV | HUMAN SERVICES 119 | 0.0250000000 | $416,150 | $416,150 | $10.40 | | |
| SLDREL | SOLDIERS RELIEF 121 | 0.0155990005 | $416,150 | $416,150 | $6.49 | | |
| EMERGSER | EMS 147 | 0.3792580840 | $416,150 | $416,150 | $157.83 | | |
| EMSRFD | EMS REFUND 147 | 0.0000000000 | $416,150 | $416,150 | $0.00 | | |
| PORTRFD | PORT REFUND 640 | 0.0000000000 | $416,150 | $416,150 | $0.00 | | |
| PORTWWGEN | PORT OF WW 640 | 0.2460186015 | $416,150 | $416,150 | $102.38 | | |
| SD140BOND | SD #140 BOND 764 | 0.8342371393 | $416,150 | $416,150 | $347.17 | | |
| SD140GEN | SD #140 GENERAL 760 | 2.0646500647 | $416,150 | $416,150 | $859.20 | | |
| ST2 | STATE SCHOOL PART 2 600 | 0.8131451643 | $416,150 | $416,150 | $338.39 | | |
| STATESCHL | STATE SCHOOL 600 | 1.5158548041 | $416,150 | $416,150 | $630.82 | | |
| STREFUND | STATE REFUND LEVY 603 | 0.0000000000 | $416,150 | $416,150 | $0.00 | | |
| CWWBOND | C OF WW BOND 643 | 0.2760494372 | $416,150 | $416,150 | $114.88 | | |
| CWWGEN | CITY OF WW 631 | 1.6100204973 | $416,150 | $416,150 | $670.01 | | |
| CWWRFD | CITY OF WALLA WALLA REFUND 631 | 0.0000000000 | $416,150 | $416,150 | $0.00 | | |
| | Total Tax Rate: | 8.7973694689 | | | | | |
| | | | | Taxes w/Current Exemptions: | $3,661.02 | | |
| | | | | Taxes w/o Exemptions: | $3,661.02 | | |
Improvement / Building
| Improvement #1: | RESIDENTIAL | State Code: | 12 | 1861.0 sqft | Value: | $378,430 |
| Exterior Wall: | SIDING | Heating/Cooling: | WARM & COOLED AIR | | Number of Bathrooms: | 5 | Number of Bedrooms: | 4 | | Plumbing: | 21 | Roof Covering: | COMP SHINGLE |
|
| | Type | Description | Class CD | Sub Class CD | Year Built | Area |
| | MA | Main Area | 4 | 35 | 1930 | 1861.0 |
| | UPFL | Upper Floor (included in main area) | 4 | 35 | 1930 | 546.0 |
| | SI1 | SITE IMPROVEMENT | 4 | 35 | 1930 | 2.0 |
| | BASE | BASEMENT | 4 | 35 | 1930 | 1093.0 |
| | BPF | BASEMENT -PARTITIONED FINISH | 4 | 35 | 1930 | 196.0 |
| | DTG | Detached Garage | 4 | 35 | 1930 | 440.0 |
| | OSP | Open | 4 | 35 | 1930 | 35.0 |
| | SWP | Solid Wall Porch | 4 | 35 | 1930 | 72.0 |
Sketch
Property Image
Land
| 1 | RES 1 | Converted: Residential | 0.1385 | 6035.00 | 0.00 | 0.00 | 1.00 | $37,720 | $0 |
Roll Value History
| 2026 | N/A | N/A | N/A | N/A | N/A |
| 2025 | $396,900 | $60,400 | $0 | $457,300 | $457,300 |
| 2024 | $391,600 | $60,400 | $0 | $452,000 | $452,000 |
| 2023 | $378,430 | $37,720 | $0 | $416,150 | $416,150 |
| 2022 | $344,030 | $37,720 | $0 | $381,750 | $381,750 |
| 2021 | $245,740 | $37,720 | $0 | $283,460 | $283,460 |
| 2020 | $204,780 | $37,720 | $0 | $242,500 | $242,500 |
| 2019 | $204,780 | $37,720 | $0 | $242,500 | $242,500 |
| 2018 | $204,780 | $37,720 | $0 | $242,500 | $242,500 |
| 2017 | $213,440 | $24,100 | $0 | $237,540 | $237,540 |
| 2016 | $203,280 | $24,100 | $0 | $227,380 | $227,380 |
| 2015 | $193,600 | $24,100 | $0 | $217,700 | $217,700 |
| 2014 | $193,600 | $24,100 | $0 | $217,700 | $217,700 |
| 2013 | $193,600 | $24,100 | $0 | $217,700 | $217,700 |
| 2012 | $181,400 | $24,100 | $0 | $0 | $0 |
| 2011 | $204,200 | $24,100 | $0 | $0 | $0 |
| 2010 | $174,400 | $24,100 | $0 | $0 | $0 |
| 2009 | $196,500 | $24,100 | $0 | $0 | $0 |
| 2008 | $159,700 | $24,100 | $0 | $0 | $0 |
| 2007 | $159,700 | $24,100 | $0 | $0 | $0 |
Deed and Sales History
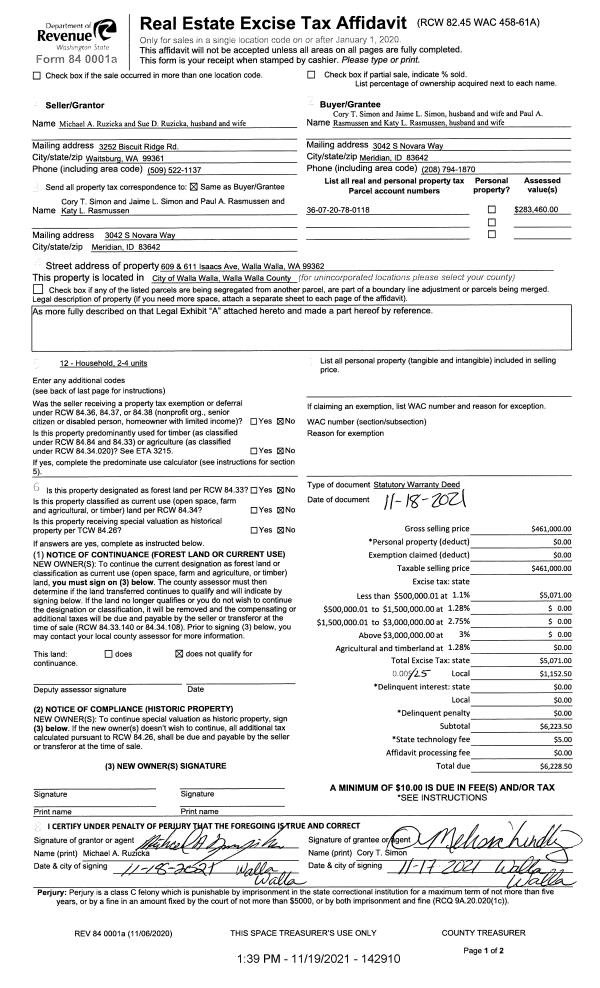
| 1 | 11/14/2025 | SWD | STATUTORY WARRANTY DEED | SIMON CORY T & JAIME L | BOARD OF TRUSTEES OF WHITMAN COLLEGE | | | $479,000.00 | 150361 | 2025-07065 |
| 2 | 11/19/2021 | SWD | STATUTORY WARRANTY DEED | RUZICKA MICHAEL A & SUE D | SIMON CORY T & JAIME L | | | $461,000.00 | 142910 | 2021-13797 |
| 3 | 09/07/2012 | WARRANTY D | WARRANTY DEED | JOHNSEN, KEITH D | RUZICKA, MICHAEL A & SUE D | | | $237,000.00 | 122610 | 2012-07841 |
| 4 | 12/22/2005 | WARRANTY D | WARRANTY DEED | KRZYCKI, BERNADINE L, A SINGLE | JOHNSEN, KEITH D | | | $185,000.00 | 109312 | 2005-15986 |
| 5 | 07/09/1969 | WARRANTY D | WARRANTY DEED | | | | | $18,500.00 | 0 | 3320-502673 |
Payout Agreement
| No payout information available.. |