| 1 | 01/07/2025 | QCD | QUIT CLAIM DEED | HANAFIN FAMILY TRUST ET AL | HANAFIN HEGEDUS PARTNERSHIP | | | | 148761 | 2025-00089 |
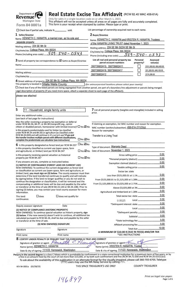
| 2 | 11/27/2023 | WARRANTY D | WARRANTY DEED | HANAFIN FAMILY TRUST ET AL | HANAFIN LIVING TRUST | | | | 146847 | 2023-06855 |
| 3 | 05/11/2023 | QCD | QUIT CLAIM DEED | | | | | | 145795 | 2023-02496 |
| 4 | 05/11/2023 | DPR | DEED OF PERSONAL REPRESENTATIVE | HANAFIN FAMILY TRUST ET AL | HANAFIN FAMILY TRUST ET AL | | | | 145794 | 2023-02495 |
| 5 | 04/13/2023 | QCD | QUIT CLAIM DEED | HANAFIN GARRY DOUGLAS ET AL | HANAFIN FAMILY TRUST ET AL | | | | 145655 | 2023-01942 |
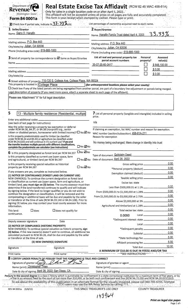
| 6 | 05/18/2022 | QCD | QUIT CLAIM DEED | HANAFIN GARRY D | HANAFIN FAMILY TRUST | | | | 143964 | 2022-04234 |
| 7 | 01/13/2016 | QCD | QUIT CLAIM DEED | HANAFIN KENNETH C ET AL | HANAFIN GARRY DOUGLAS ET AL | | | $0.00 | 129516 | 2016-00289 |
| 8 | 12/09/2014 | QCD | QUIT CLAIM DEED | HANAFIN KENNETH CARL ET AL | HANAFIN KENNETH C ET AL | | | $0.00 | 127073 | 2014-08926 |
| 9 | 12/27/2013 | QCD | QUIT CLAIM DEED | HANAFIN FAMILY TRUST B | HANAFIN KENNETH CARL ET AL | | | | 126529 | 2014-06216 |
| 10 | 06/15/1973 | QCD | QUIT CLAIM DEED | | | | | $11,000.00 | 0 | 1428-400945 |