Property
Account |
| Property ID: | 33937 | Abbreviated Legal Description: | WASHINGTON SCHOOL HOMES PUD LOT 8 |
| Parcel Number: | 360719640008 | Agent Code: | |
| Type: | Real | | |
| Tax Area: | 1 - OL-140-F | Land Use Code | 11 |
| Open Space: | N | DFL | N |
| Historic Property: | N | Remodel Property: | N |
| Multi-Family Redevelopment: | N | | |
| Township: | 7 | Section: | 19 |
| Range: | 36 |
Location |
| Address: | 505 MARTHA ST WA 99362 | Mapsco: | |
| Neighborhood: | A-SFR | Map ID: | |
| Neighborhood CD: | 313011 |
Owner |
| Name: | FRENCH TONYA | Owner ID: | 54350 |
| Mailing Address: | 505 MARTHA ST WALLA WALLA, WA 99362 | % Ownership: | 100.0000000000% |
| | | Exemptions: | |
Taxes and Assessment Details
Property Tax Information as of
02/21/2026
Click on "Statement Details" to expand or collapse a tax statement.
* Please enter a valid date ** Please enter a valid date *
Statement Details |
| | TOTAL: | $0.00 | $0.00 | $0.00 | $0.00 | $0.00 | $0.00 |
|
| | $0.00 | $0.00 | $0.00 | $0.00 | $0.00 | $0.00 |
Values
| (+) Improvement Homesite Value: | + | $0 | |
| (+) Improvement Non-Homesite Value: | + | $256,260 | |
| (+) Land Homesite Value: | + | $0 | |
| (+) Land Non-Homesite Value: | + | $55,000 | |
| (+) Curr Use (HS): | + | $0 | $0 |
| (+) Curr Use (NHS): | + | $0 | $0 |
| | | -------------------------- | |
| (=) Market Value: | = | $311,260 | |
| (–) Productivity Loss: | – | $0 | |
| | | -------------------------- | |
| (=) Subtotal: | = | $311,260 | |
| (+) Senior Appraised Value: | + | $0 | |
| (+) Non-Senior Appraised Value: | + | $311,260 | |
| | | -------------------------- | |
| (=) Total Appraised Value: | = | $311,260 | |
| (–) Senior Exemption Loss: | – | $0 | |
| (–) Exemption Loss: | – | $0 | |
| | | -------------------------- | |
| (=) Taxable Value: | = | $311,260 | |
Taxing Jurisdiction
| Owner: | FRENCH TONYA | | |
| % Ownership: | 100.0000000000% | | |
| Total Value: | $311,260 | | |
| Tax Area: | 1 - OL-140-F |
| CERFD | CURRENT EXPENSE REFUND 010 | 0.0000000000 | $311,260 | $311,260 | $0.00 | | |
| CURREXP | CURRENT EXPENSE 010 | 1.0175366760 | $311,260 | $311,260 | $316.72 | | |
| HUMNSERV | HUMAN SERVICES 119 | 0.0250000000 | $311,260 | $311,260 | $7.78 | | |
| SLDREL | SOLDIERS RELIEF 121 | 0.0155990005 | $311,260 | $311,260 | $4.86 | | |
| EMERGSER | EMS 147 | 0.3792580840 | $311,260 | $311,260 | $118.05 | | |
| EMSRFD | EMS REFUND 147 | 0.0000000000 | $311,260 | $311,260 | $0.00 | | |
| PORTRFD | PORT REFUND 640 | 0.0000000000 | $311,260 | $311,260 | $0.00 | | |
| PORTWWGEN | PORT OF WW 640 | 0.2460186015 | $311,260 | $311,260 | $76.58 | | |
| SD140BOND | SD #140 BOND 764 | 0.8342371393 | $311,260 | $311,260 | $259.66 | | |
| SD140GEN | SD #140 GENERAL 760 | 2.0646500647 | $311,260 | $311,260 | $642.64 | | |
| ST2 | STATE SCHOOL PART 2 600 | 0.8131451643 | $311,260 | $311,260 | $253.10 | | |
| STATESCHL | STATE SCHOOL 600 | 1.5158548041 | $311,260 | $311,260 | $471.82 | | |
| STREFUND | STATE REFUND LEVY 603 | 0.0000000000 | $311,260 | $311,260 | $0.00 | | |
| CWWBOND | C OF WW BOND 643 | 0.2760494372 | $311,260 | $311,260 | $85.92 | | |
| CWWGEN | CITY OF WW 631 | 1.6100204973 | $311,260 | $311,260 | $501.13 | | |
| CWWRFD | CITY OF WALLA WALLA REFUND 631 | 0.0000000000 | $311,260 | $311,260 | $0.00 | | |
| | Total Tax Rate: | 8.7973694689 | | | | | |
| | | | | Taxes w/Current Exemptions: | $2,738.26 | | |
| | | | | Taxes w/o Exemptions: | $2,738.26 | | |
Improvement / Building
| Improvement #1: | RESIDENTIAL | State Code: | 11 | 1528.0 sqft | Value: | $256,260 |
| Exterior Wall: | SIDING | Foundation: | SLAB FOUNDATION | | Heating/Cooling: | WARM & COOLED AIR | Number of Bathrooms: | 1.5 | | Number of Bedrooms: | 3 | Plumbing: | 10 | | Roof Covering: | COMP SHINGLE |   |   |
|
| | Type | Description | Class CD | Sub Class CD | Year Built | Area |
| | MA | Main Area | 4 | 35 | 2007 | 1528.0 |
| | GFP | GAS FIREPLACE | 4 | 35 | 0 | 1.0 |
| | RPC | OPEN PORCH W/ROOF , CEILED | 4 | 35 | 0 | 27.0 |
| | RPC | OPEN PORCH W/ROOF , CEILED | 4 | 35 | 0 | 161.0 |
| | SI1 | SITE IMPROVEMENT | 4 | 35 | 0 | 1.5 |
| | ATG | Attached Garage | 4 | 35 | 2007 | 312.0 |
| | UPFL | Upper Floor (included in main area) | 4 | 35 | 2007 | 727.0 |
Sketch
Property Image
Land
| 1 | RES 1 | Converted: Residential | 0.0942 | 4103.00 | 0.00 | 0.00 | 1.00 | $55,000 | $0 |
Roll Value History
| 2026 | N/A | N/A | N/A | N/A | N/A |
| 2025 | $315,720 | $55,000 | $0 | $370,720 | $370,720 |
| 2024 | $287,020 | $55,000 | $0 | $342,020 | $342,020 |
| 2023 | $256,260 | $55,000 | $0 | $311,260 | $311,260 |
| 2022 | $205,010 | $55,000 | $0 | $260,010 | $260,010 |
| 2021 | $193,950 | $20,000 | $0 | $213,950 | $213,950 |
| 2020 | $168,650 | $20,000 | $0 | $188,650 | $188,650 |
| 2019 | $168,650 | $20,000 | $0 | $188,650 | $188,650 |
| 2018 | $144,140 | $20,000 | $0 | $164,140 | $164,140 |
| 2017 | $144,140 | $20,000 | $0 | $164,140 | $164,140 |
| 2016 | $137,280 | $20,000 | $0 | $157,280 | $157,280 |
| 2015 | $133,010 | $20,000 | $0 | $153,010 | $153,010 |
| 2014 | $130,400 | $20,000 | $0 | $150,400 | $150,400 |
| 2013 | $130,400 | $20,000 | $0 | $150,400 | $150,400 |
| 2012 | $133,500 | $20,000 | $0 | $0 | $0 |
| 2011 | $138,200 | $20,000 | $0 | $0 | $0 |
| 2010 | $138,200 | $20,000 | $0 | $0 | $0 |
| 2009 | $0 | $0 | $0 | $0 | $0 |
| 2008 | $0 | $0 | $0 | $0 | $0 |
| 2007 | $0 | $0 | $0 | $0 | $0 |
Deed and Sales History
| 1 | 02/03/2014 | QCD | QUIT CLAIM DEED | PATTERSON SHIRLEY | FRENCH TONYA | | | | 125374 | 2014-00861 |
| 2 | 08/31/2012 | QCD | QUIT CLAIM DEED | FRENCH, TONYA C | PATTERSON, SHIRLEY | | | $0.00 | 122571 | 2012-07671 |
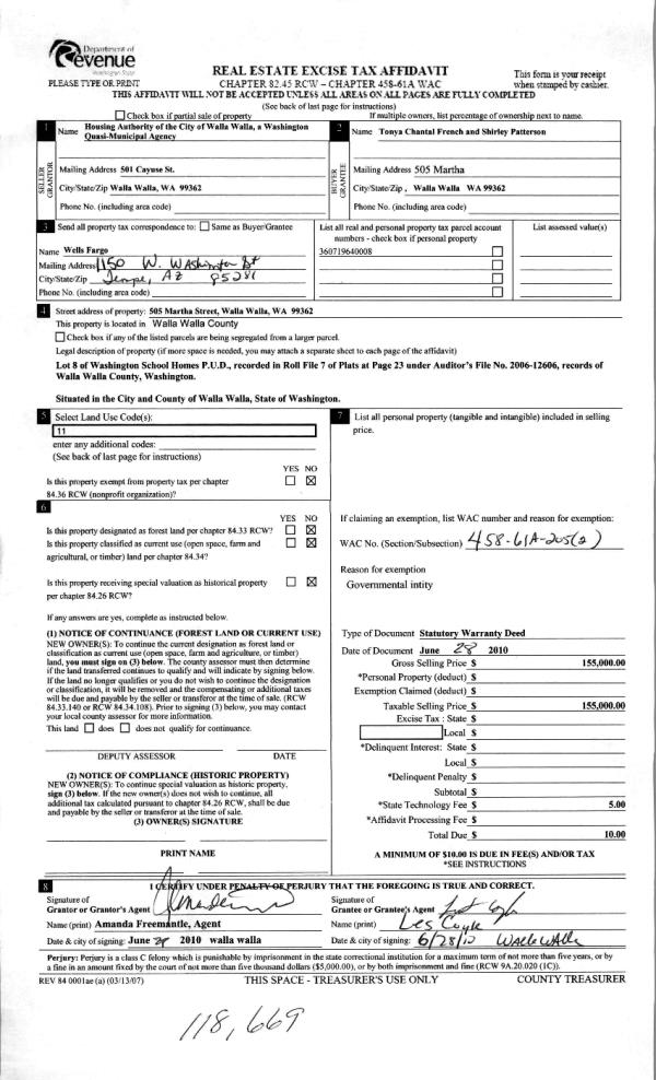
| 3 | 06/28/2010 | WARRANTY D | WARRANTY DEED | WALLA WALLA HOUSING AUTHORITY | FRENCH, TONYA C | | | $155,000.00 | 118669 | 2010-04991 |
| 4 | 01/11/2007 | WARRANTY D | WARRANTY DEED | WALLA WALLA CITY OF | WALLA WALLA HOUSING AUTHORITY | | | | 112058 | 2007-00481 |
Payout Agreement
| No payout information available.. |