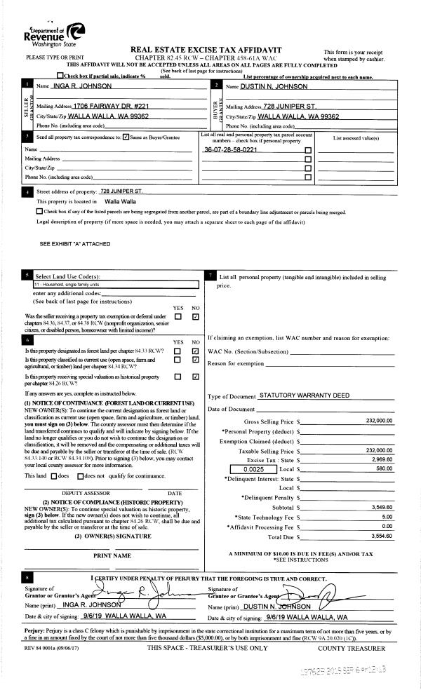
Property
Account |
| Property ID: | 33909 | Abbreviated Legal Description: | EIDLEWILDE (LOT 3 OF SURVEY) ELY PTN LOTS 1 & 2 BLOCK 2 PLUS STRIPTO S PLUS 1/2 VAC ST LY TO THE E |
| Parcel Number: | 360728580221 | Agent Code: | |
| Type: | Real | | |
| Tax Area: | 1 - OL-140-F | Land Use Code | 11 |
| Open Space: | N | DFL | N |
| Historic Property: | N | Remodel Property: | N |
| Multi-Family Redevelopment: | N | | |
| Township: | 7 | Section: | 28 |
| Range: | 36 |
Location |
| Address: | 728 JUNIPER ST WA 99362 | Mapsco: | |
| Neighborhood: | A Res | Map ID: | |
| Neighborhood CD: | 613011 |
Owner |
| Name: | JOHNSON DUSTIN N | Owner ID: | 65868 |
| Mailing Address: | 728 JUNIPER ST WALLA WALLA, WA 99362 | % Ownership: | 100.0000000000% |
| | | Exemptions: | |
Taxes and Assessment Details
Property Tax Information as of
02/21/2026
Click on "Statement Details" to expand or collapse a tax statement.
* Please enter a valid date ** Please enter a valid date *
Statement Details |
| | TOTAL: | $0.00 | $0.00 | $0.00 | $0.00 | $0.00 | $0.00 |
|
| | $0.00 | $0.00 | $0.00 | $0.00 | $0.00 | $0.00 |
Values
| (+) Improvement Homesite Value: | + | $0 | |
| (+) Improvement Non-Homesite Value: | + | $228,770 | |
| (+) Land Homesite Value: | + | $0 | |
| (+) Land Non-Homesite Value: | + | $90,740 | |
| (+) Curr Use (HS): | + | $0 | $0 |
| (+) Curr Use (NHS): | + | $0 | $0 |
| | | -------------------------- | |
| (=) Market Value: | = | $319,510 | |
| (–) Productivity Loss: | – | $0 | |
| | | -------------------------- | |
| (=) Subtotal: | = | $319,510 | |
| (+) Senior Appraised Value: | + | $0 | |
| (+) Non-Senior Appraised Value: | + | $319,510 | |
| | | -------------------------- | |
| (=) Total Appraised Value: | = | $319,510 | |
| (–) Senior Exemption Loss: | – | $0 | |
| (–) Exemption Loss: | – | $0 | |
| | | -------------------------- | |
| (=) Taxable Value: | = | $319,510 | |
Taxing Jurisdiction
| Owner: | JOHNSON DUSTIN N | | |
| % Ownership: | 100.0000000000% | | |
| Total Value: | $319,510 | | |
| Tax Area: | 1 - OL-140-F |
| CERFD | CURRENT EXPENSE REFUND 010 | 0.0000000000 | $319,510 | $319,510 | $0.00 | | |
| CURREXP | CURRENT EXPENSE 010 | 1.0175366760 | $319,510 | $319,510 | $325.11 | | |
| HUMNSERV | HUMAN SERVICES 119 | 0.0250000000 | $319,510 | $319,510 | $7.99 | | |
| SLDREL | SOLDIERS RELIEF 121 | 0.0155990005 | $319,510 | $319,510 | $4.98 | | |
| EMERGSER | EMS 147 | 0.3792580840 | $319,510 | $319,510 | $121.18 | | |
| EMSRFD | EMS REFUND 147 | 0.0000000000 | $319,510 | $319,510 | $0.00 | | |
| PORTRFD | PORT REFUND 640 | 0.0000000000 | $319,510 | $319,510 | $0.00 | | |
| PORTWWGEN | PORT OF WW 640 | 0.2460186015 | $319,510 | $319,510 | $78.61 | | |
| SD140BOND | SD #140 BOND 764 | 0.8342371393 | $319,510 | $319,510 | $266.55 | | |
| SD140GEN | SD #140 GENERAL 760 | 2.0646500647 | $319,510 | $319,510 | $659.68 | | |
| ST2 | STATE SCHOOL PART 2 600 | 0.8131451643 | $319,510 | $319,510 | $259.81 | | |
| STATESCHL | STATE SCHOOL 600 | 1.5158548041 | $319,510 | $319,510 | $484.33 | | |
| STREFUND | STATE REFUND LEVY 603 | 0.0000000000 | $319,510 | $319,510 | $0.00 | | |
| CWWBOND | C OF WW BOND 643 | 0.2760494372 | $319,510 | $319,510 | $88.20 | | |
| CWWGEN | CITY OF WW 631 | 1.6100204973 | $319,510 | $319,510 | $514.42 | | |
| CWWRFD | CITY OF WALLA WALLA REFUND 631 | 0.0000000000 | $319,510 | $319,510 | $0.00 | | |
| | Total Tax Rate: | 8.7973694689 | | | | | |
| | | | | Taxes w/Current Exemptions: | $2,810.86 | | |
| | | | | Taxes w/o Exemptions: | $2,810.86 | | |
Improvement / Building
| Improvement #1: | RESIDENTIAL | State Code: | 11 | 1284.0 sqft | Value: | $228,770 |
| Exterior Wall: | COMMON BRICK | Heating/Cooling: | WARM & COOLED AIR | | Number of Bathrooms: | 2 | Number of Bedrooms: | 3 | | Plumbing: | 9 | Roof Covering: | COMP SHINGLE |
|
| | Type | Description | Class CD | Sub Class CD | Year Built | Area |
| | MA | Main Area | 4 | 35 | 1937 | 1284.0 |
| | UPFL | Upper Floor (included in main area) | 4 | 35 | 1937 | 276.0 |
| | SI1 | SITE IMPROVEMENT | 4 | 35 | 1937 | 1.5 |
| | BASE | BASEMENT | 4 | 35 | 1937 | 652.0 |
| | BPF | BASEMENT -PARTITIONED FINISH | 4 | 35 | 1937 | 325.0 |
| | S1F | Single One Story Fireplace | 4 | 35 | 1937 | 1.0 |
| | PRC | PORCH W STEPS, ROOF,CEILED | 4 | 35 | 1937 | 95.0 |
| | WOD | Wood Deck | 4 | 35 | 1937 | 156.0 |
| | DTG | Detached Garage | 4 | 35 | 1937 | 560.0 |
Sketch
Property Image
Land
| 1 | RES 1 | Converted: Residential | 0.2504 | 10906.00 | 0.00 | 0.00 | 1.00 | $90,740 | $0 |
Roll Value History
| 2026 | N/A | N/A | N/A | N/A | N/A |
| 2025 | $212,050 | $110,810 | $0 | $322,860 | $322,860 |
| 2024 | $228,770 | $90,740 | $0 | $319,510 | $319,510 |
| 2023 | $228,770 | $90,740 | $0 | $319,510 | $319,510 |
| 2022 | $228,770 | $72,960 | $0 | $301,730 | $301,730 |
| 2021 | $152,520 | $72,960 | $0 | $225,480 | $225,480 |
| 2020 | $138,650 | $72,960 | $0 | $211,610 | $211,610 |
| 2019 | $138,650 | $72,960 | $0 | $211,610 | $211,610 |
| 2018 | $135,930 | $47,900 | $0 | $183,830 | $66,440 |
| 2017 | $135,930 | $47,900 | $0 | $183,830 | $66,440 |
| 2016 | $118,200 | $47,900 | $0 | $166,100 | $66,440 |
| 2015 | $118,200 | $47,900 | $0 | $166,100 | $66,440 |
| 2014 | $118,200 | $47,900 | $0 | $166,100 | $66,440 |
| 2013 | $118,200 | $47,900 | $0 | $166,100 | $66,440 |
| 2012 | $118,200 | $47,900 | $0 | $0 | $0 |
| 2011 | $118,200 | $47,900 | $0 | $0 | $0 |
| 2010 | $118,200 | $47,900 | $0 | $0 | $0 |
| 2009 | $136,700 | $47,900 | $0 | $0 | $0 |
| 2008 | $136,700 | $47,900 | $0 | $0 | $0 |
| 2007 | $91,200 | $25,400 | $0 | $0 | $0 |
Deed and Sales History
| 1 | 09/06/2019 | SWD | STATUTORY WARRANTY DEED | JOHNSON INGA R | JOHNSON DUSTIN N | | | $232,000.00 | 137629 | 2019-06910 |
| 2 | 05/02/2005 | WARRANTY D | WARRANTY DEED | KOFLER, ROB & GRETCHEN | JOHNSON, INGA R | | | $181,000.00 | 107390 | 2005-05092 |
Payout Agreement
| No payout information available.. |