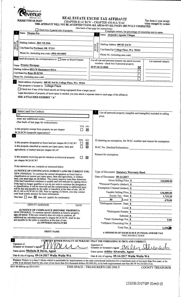
Property
Account |
| Property ID: | 33873 | Abbreviated Legal Description: | 36-7-35 TAX 7H; TAX 7K |
| Parcel Number: | 350736210020 | Agent Code: | |
| Type: | Real | | |
| Tax Area: | 75 - CP 250 | Land Use Code | 12 |
| Open Space: | N | DFL | N |
| Historic Property: | N | Remodel Property: | N |
| Multi-Family Redevelopment: | N | | |
| Township: | 7 | Section: | 36 |
| Range: | 35 |
Location |
| Address: | 408 SE 3RD ST WA 99324 | Mapsco: | |
| Neighborhood: | A SFR Multi Res | Map ID: | |
| Neighborhood CD: | 113081 |
Owner |
| Name: | VILLEGAS ALEJANDRO AGUSTIN | Owner ID: | 61750 |
| Mailing Address: | 408 SE 3RD ST COLLEGE PLACE, WA 99324 | % Ownership: | 100.0000000000% |
| | | Exemptions: | |
Taxes and Assessment Details
Property Tax Information as of
02/21/2026
Click on "Statement Details" to expand or collapse a tax statement.
* Please enter a valid date ** Please enter a valid date *
Statement Details |
| | TOTAL: | $0.00 | $0.00 | $0.00 | $0.00 | $0.00 | $0.00 |
|
| | $0.00 | $0.00 | $0.00 | $0.00 | $0.00 | $0.00 |
Values
| (+) Improvement Homesite Value: | + | $0 | |
| (+) Improvement Non-Homesite Value: | + | $173,750 | |
| (+) Land Homesite Value: | + | $0 | |
| (+) Land Non-Homesite Value: | + | $42,190 | |
| (+) Curr Use (HS): | + | $0 | $0 |
| (+) Curr Use (NHS): | + | $0 | $0 |
| | | -------------------------- | |
| (=) Market Value: | = | $215,940 | |
| (–) Productivity Loss: | – | $0 | |
| | | -------------------------- | |
| (=) Subtotal: | = | $215,940 | |
| (+) Senior Appraised Value: | + | $0 | |
| (+) Non-Senior Appraised Value: | + | $215,940 | |
| | | -------------------------- | |
| (=) Total Appraised Value: | = | $215,940 | |
| (–) Senior Exemption Loss: | – | $0 | |
| (–) Exemption Loss: | – | $0 | |
| | | -------------------------- | |
| (=) Taxable Value: | = | $215,940 | |
Taxing Jurisdiction
| Owner: | VILLEGAS ALEJANDRO AGUSTIN | | |
| % Ownership: | 100.0000000000% | | |
| Total Value: | $215,940 | | |
| Tax Area: | 75 - CP 250 |
| CERFD | CURRENT EXPENSE REFUND 010 | 0.0000000000 | $215,940 | $215,940 | $0.00 | | |
| CURREXP | CURRENT EXPENSE 010 | 1.0175366760 | $215,940 | $215,940 | $219.73 | | |
| HUMNSERV | HUMAN SERVICES 119 | 0.0250000000 | $215,940 | $215,940 | $5.40 | | |
| SLDREL | SOLDIERS RELIEF 121 | 0.0155990005 | $215,940 | $215,940 | $3.37 | | |
| COLLPLBOND | C OF CP BOND 644 | 0.4374241808 | $215,940 | $215,940 | $94.46 | | |
| COLLPLGEN | CITY OF CP 632 | 1.4453819216 | $215,940 | $215,940 | $312.12 | | |
| EMERGSER | EMS 147 | 0.3792580840 | $215,940 | $215,940 | $81.90 | | |
| EMSRFD | EMS REFUND 147 | 0.0000000000 | $215,940 | $215,940 | $0.00 | | |
| RURALLIB | RURAL LIBRARY 623 | 0.3710609029 | $215,940 | $215,940 | $80.13 | | |
| PORTRFD | PORT REFUND 640 | 0.0000000000 | $215,940 | $215,940 | $0.00 | | |
| PORTWWGEN | PORT OF WW 640 | 0.2460186015 | $215,940 | $215,940 | $53.13 | | |
| SD250BOND | SD #250 BOND 773 | 1.4560608159 | $215,940 | $215,940 | $314.42 | | |
| SD250GEN | SD #250 GENERAL 770 | 2.3880724087 | $215,940 | $215,940 | $515.68 | | |
| ST2 | STATE SCHOOL PART 2 600 | 0.8131451643 | $215,940 | $215,940 | $175.59 | | |
| STATESCHL | STATE SCHOOL 600 | 1.5158548041 | $215,940 | $215,940 | $327.33 | | |
| STREFUND | STATE REFUND LEVY 603 | 0.0000000000 | $215,940 | $215,940 | $0.00 | | |
| | Total Tax Rate: | 10.1104125603 | | | | | |
| | | | | Taxes w/Current Exemptions: | $2,183.26 | | |
| | | | | Taxes w/o Exemptions: | $2,183.26 | | |
Improvement / Building
| Improvement #1: | RESIDENTIAL | State Code: | 12 | 664.0 sqft | Value: | $109,330 |
| Exterior Wall: | STUCCO | Foundation: | SLAB FOUNDATION | | Heating/Cooling: | BASEBOARD ELECTRIC | Number of Bathrooms: | 1 | | Number of Bedrooms: | 2 | Plumbing: | 6 | | Roof Covering: | COMP SHINGLE |   |   |
|
| | Type | Description | Class CD | Sub Class CD | Year Built | Area |
| | MA | Main Area | 1 | 20 | 1948 | 664.0 |
| | SI1 | SITE IMPROVEMENT | 1 | 20 | 1948 | 1.0 |
| | DTG | Detached Garage | 1 | 20 | 1948 | 480.0 |
| Improvement #2: | RESIDENTIAL | State Code: | 12 | 512.0 sqft | Value: | $64,420 |
| Exterior Wall: | STUCCO | Foundation: | SLAB FOUNDATION | | Heating/Cooling: | BASEBOARD ELECTRIC | Number of Bathrooms: | 1 | | Number of Bedrooms: | 1 | Plumbing: | 5 | | Roof Covering: | COMP SHINGLE |   |   |
|
Sketch
Property Image
Land
| 1 | RES 1 | Converted: Residential | 0.1435 | 6250.00 | 0.00 | 0.00 | 1.00 | $42,190 | $0 |
Roll Value History
| 2026 | N/A | N/A | N/A | N/A | N/A |
| 2025 | $178,000 | $62,500 | $0 | $240,500 | $240,500 |
| 2024 | $178,000 | $42,200 | $0 | $220,200 | $220,200 |
| 2023 | $173,750 | $42,190 | $0 | $215,940 | $215,940 |
| 2022 | $151,080 | $42,190 | $0 | $193,270 | $193,270 |
| 2021 | $139,500 | $42,190 | $0 | $181,690 | $181,690 |
| 2020 | $69,750 | $42,190 | $0 | $111,940 | $111,940 |
| 2019 | $74,440 | $37,500 | $0 | $111,940 | $111,940 |
| 2018 | $70,900 | $37,500 | $0 | $108,400 | $108,400 |
| 2017 | $44,310 | $37,500 | $0 | $81,810 | $81,810 |
| 2016 | $42,200 | $37,500 | $0 | $79,700 | $79,700 |
| 2015 | $42,200 | $37,500 | $0 | $79,700 | $79,700 |
| 2014 | $42,200 | $37,500 | $0 | $79,700 | $79,700 |
| 2013 | $42,200 | $37,500 | $0 | $79,700 | $79,700 |
| 2012 | $42,200 | $37,500 | $0 | $0 | $0 |
| 2011 | $42,200 | $37,500 | $0 | $0 | $0 |
| 2010 | $42,200 | $37,500 | $0 | $0 | $0 |
| 2009 | $51,100 | $37,500 | $0 | $0 | $0 |
| 2008 | $41,900 | $18,800 | $0 | $0 | $0 |
| 2007 | $41,900 | $18,800 | $0 | $0 | $0 |
Deed and Sales History
| 1 | 04/25/2017 | LOPA | LACK OF PROBATE AFFIDAVIT | FOX BILLIE JEAN | FOX THOMAS J | | | $0.00 | 133236 | 2017-07295 |
| 2 | 09/15/2017 | SWD | STATUTORY WARRANTY DEED | FOX THOMAS J | VILLEGAS ALEJANDRO AGUSTIN | | | $134,000.00 | 133238 | 2017-07296 |
| 3 | 06/07/1996 | WARRANTY D | WARRANTY DEED | | | | | $30,000.00 | 86272 | 2419-605751 |
Payout Agreement
| No payout information available.. |