Property
Account |
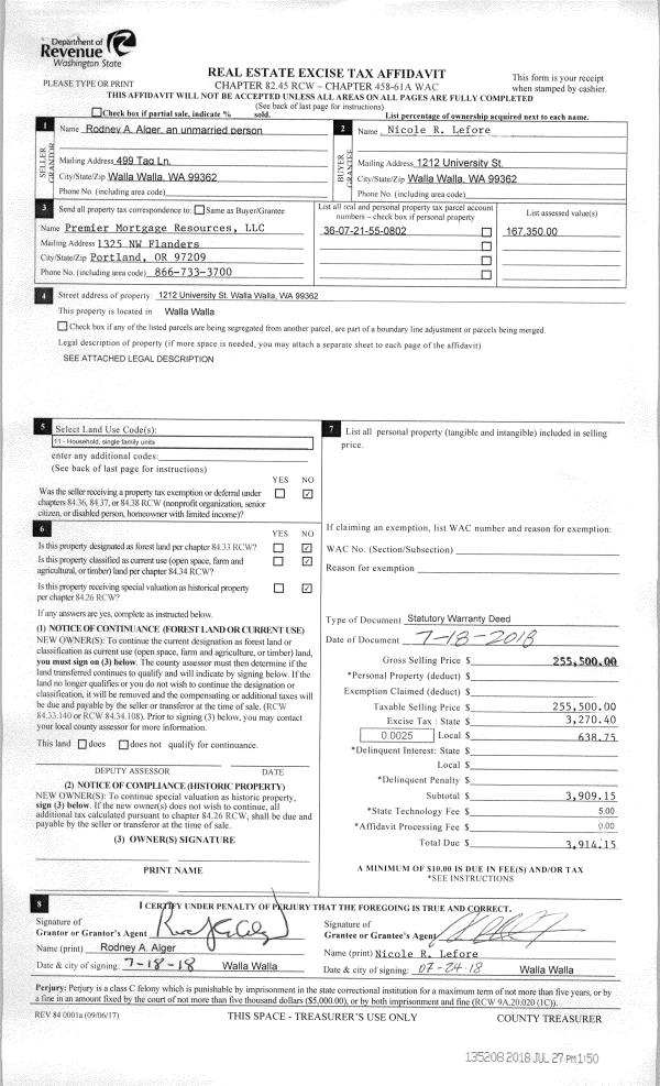
| Property ID: | 33863 | Abbreviated Legal Description: | ENNIS ANNEX TAX 3 LOT 2 BLK 8 |
| Parcel Number: | 360721550802 | Agent Code: | |
| Type: | Real | | |
| Tax Area: | 1 - OL-140-F | Land Use Code | 11 |
| Open Space: | N | DFL | N |
| Historic Property: | N | Remodel Property: | N |
| Multi-Family Redevelopment: | N | | |
| Township: | 7 | Section: | 21 |
| Range: | 36 |
Location |
| Address: | 1212 UNIVERSITY ST WA 99362 | Mapsco: | |
| Neighborhood: | A-SFR | Map ID: | |
| Neighborhood CD: | 513011 |
Owner |
| Name: | LEFORE NICOLE R | Owner ID: | 63616 |
| Mailing Address: | 1212 UNIVERSITY ST WALLA WALLA, WA 99362 | % Ownership: | 100.0000000000% |
| | | Exemptions: | |
Taxes and Assessment Details
Property Tax Information as of
02/21/2026
Click on "Statement Details" to expand or collapse a tax statement.
* Please enter a valid date ** Please enter a valid date *
Statement Details |
| | TOTAL: | $0.00 | $0.00 | $0.00 | $0.00 | $0.00 | $0.00 |
|
| | $0.00 | $0.00 | $0.00 | $0.00 | $0.00 | $0.00 |
Values
| (+) Improvement Homesite Value: | + | $0 | |
| (+) Improvement Non-Homesite Value: | + | $301,080 | |
| (+) Land Homesite Value: | + | $0 | |
| (+) Land Non-Homesite Value: | + | $40,500 | |
| (+) Curr Use (HS): | + | $0 | $0 |
| (+) Curr Use (NHS): | + | $0 | $0 |
| | | -------------------------- | |
| (=) Market Value: | = | $341,580 | |
| (–) Productivity Loss: | – | $0 | |
| | | -------------------------- | |
| (=) Subtotal: | = | $341,580 | |
| (+) Senior Appraised Value: | + | $0 | |
| (+) Non-Senior Appraised Value: | + | $341,580 | |
| | | -------------------------- | |
| (=) Total Appraised Value: | = | $341,580 | |
| (–) Senior Exemption Loss: | – | $0 | |
| (–) Exemption Loss: | – | $0 | |
| | | -------------------------- | |
| (=) Taxable Value: | = | $341,580 | |
Taxing Jurisdiction
| Owner: | LEFORE NICOLE R | | |
| % Ownership: | 100.0000000000% | | |
| Total Value: | $341,580 | | |
| Tax Area: | 1 - OL-140-F |
| CERFD | CURRENT EXPENSE REFUND 010 | 0.0000000000 | $341,580 | $341,580 | $0.00 | | |
| CURREXP | CURRENT EXPENSE 010 | 1.0175366760 | $341,580 | $341,580 | $347.57 | | |
| HUMNSERV | HUMAN SERVICES 119 | 0.0250000000 | $341,580 | $341,580 | $8.54 | | |
| SLDREL | SOLDIERS RELIEF 121 | 0.0155990005 | $341,580 | $341,580 | $5.33 | | |
| EMERGSER | EMS 147 | 0.3792580840 | $341,580 | $341,580 | $129.55 | | |
| EMSRFD | EMS REFUND 147 | 0.0000000000 | $341,580 | $341,580 | $0.00 | | |
| PORTRFD | PORT REFUND 640 | 0.0000000000 | $341,580 | $341,580 | $0.00 | | |
| PORTWWGEN | PORT OF WW 640 | 0.2460186015 | $341,580 | $341,580 | $84.04 | | |
| SD140BOND | SD #140 BOND 764 | 0.8342371393 | $341,580 | $341,580 | $284.96 | | |
| SD140GEN | SD #140 GENERAL 760 | 2.0646500647 | $341,580 | $341,580 | $705.24 | | |
| ST2 | STATE SCHOOL PART 2 600 | 0.8131451643 | $341,580 | $341,580 | $277.75 | | |
| STATESCHL | STATE SCHOOL 600 | 1.5158548041 | $341,580 | $341,580 | $517.79 | | |
| STREFUND | STATE REFUND LEVY 603 | 0.0000000000 | $341,580 | $341,580 | $0.00 | | |
| CWWBOND | C OF WW BOND 643 | 0.2760494372 | $341,580 | $341,580 | $94.29 | | |
| CWWGEN | CITY OF WW 631 | 1.6100204973 | $341,580 | $341,580 | $549.95 | | |
| CWWRFD | CITY OF WALLA WALLA REFUND 631 | 0.0000000000 | $341,580 | $341,580 | $0.00 | | |
| | Total Tax Rate: | 8.7973694689 | | | | | |
| | | | | Taxes w/Current Exemptions: | $3,005.01 | | |
| | | | | Taxes w/o Exemptions: | $3,005.01 | | |
Improvement / Building
| Improvement #1: | RESIDENTIAL | State Code: | 11 | 1109.0 sqft | Value: | $301,080 |
| Exterior Wall: | PLYWOOD | Heating/Cooling: | WARM & COOLED AIR | | Number of Bathrooms: | 1 | Number of Bedrooms: | 3 | | Plumbing: | 6 | Roof Covering: | COMP SHINGLE |
|
| | Type | Description | Class CD | Sub Class CD | Year Built | Area |
| | MA | Main Area | 1 | 30 | 1915 | 1109.0 |
| | PRC | PORCH W STEPS, ROOF,CEILED | 1 | 30 | 0 | 98.0 |
| | SI1 | SITE IMPROVEMENT | 1 | 30 | 0 | 3.0 |
| | BASE | BASEMENT | 1 | 30 | 1915 | 300.0 |
| | BPF | BASEMENT -PARTITIONED FINISH | 1 | 30 | 1915 | 300.0 |
| | WOD | Wood Deck | 1 | 30 | 1915 | 240.0 |
| | S1F | Single One Story Fireplace | 1 | 30 | 1915 | 1.0 |
Sketch
Property Image
Land
| 1 | RES 1 | Converted: Residential | 0.1488 | 6480.00 | 0.00 | 0.00 | 1.00 | $40,500 | $0 |
Roll Value History
| 2026 | N/A | N/A | N/A | N/A | N/A |
| 2025 | $301,700 | $64,800 | $0 | $366,500 | $366,500 |
| 2024 | $274,270 | $64,800 | $0 | $339,070 | $339,070 |
| 2023 | $301,080 | $40,500 | $0 | $341,580 | $341,580 |
| 2022 | $301,080 | $40,500 | $0 | $341,580 | $341,580 |
| 2021 | $240,860 | $40,500 | $0 | $281,360 | $281,360 |
| 2020 | $166,110 | $40,500 | $0 | $206,610 | $206,610 |
| 2019 | $166,110 | $40,500 | $0 | $206,610 | $206,610 |
| 2018 | $158,200 | $40,500 | $0 | $198,700 | $198,700 |
| 2017 | $141,450 | $25,900 | $0 | $167,350 | $167,350 |
| 2016 | $134,710 | $25,900 | $0 | $160,610 | $160,610 |
| 2015 | $134,710 | $25,900 | $0 | $160,610 | $160,610 |
| 2014 | $125,900 | $25,900 | $0 | $151,800 | $151,800 |
| 2013 | $125,900 | $25,900 | $0 | $151,800 | $151,800 |
| 2012 | $132,300 | $25,900 | $0 | $0 | $0 |
| 2011 | $132,300 | $25,900 | $0 | $0 | $0 |
| 2010 | $124,800 | $25,900 | $0 | $0 | $0 |
| 2009 | $141,500 | $25,900 | $0 | $0 | $0 |
| 2008 | $113,600 | $25,900 | $0 | $0 | $0 |
| 2007 | $113,600 | $25,900 | $0 | $0 | $0 |
Deed and Sales History
| 1 | 07/27/2018 | SWD | STATUTORY WARRANTY DEED | ALGER RODNEY A | LEFORE NICOLE R | | | $255,500.00 | 135208 | 2018-06113 |
| 2 | 11/28/2005 | WARRANTY D | WARRANTY DEED | HARVEY, MICHAEL D & KATHLEEN A | ALGER, RODNEY | | | $139,900.00 | 109122 | 2005-14908 |
| 3 | 08/23/2004 | WARRANTY D | WARRANTY DEED | NORTHWEST TRUSTEE SERVICES PLL | HARVEY, MICHAEL D & KATHLEEN A | | | $75,375.00 | 105547 | 2004-09653 |
| 4 | 10/24/2000 | QCD | QUIT CLAIM DEED | | | | | $0.00 | 96055 | 3040-010166 |
Payout Agreement
| No payout information available.. |