Property
Account |
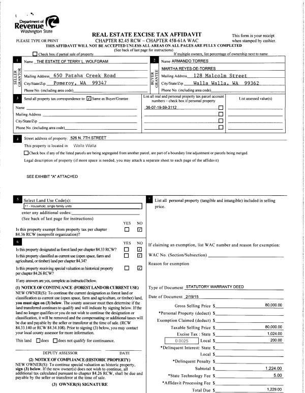
| Property ID: | 33862 | Abbreviated Legal Description: | LANGFORDS LOT 12 & N 6' OF LOT 13 BLK 31 |
| Parcel Number: | 360719593112 | Agent Code: | |
| Type: | Real | | |
| Tax Area: | 1 - OL-140-F | Land Use Code | 11 |
| Open Space: | N | DFL | N |
| Historic Property: | N | Remodel Property: | N |
| Multi-Family Redevelopment: | N | | |
| Township: | 7 | Section: | 19 |
| Range: | 36 |
Location |
| Address: | 526 N 7TH AVE WA 99362 | Mapsco: | |
| Neighborhood: | F SFR | Map ID: | |
| Neighborhood CD: | 512011 |
Owner |
| Name: | HURTADO-CASTILLO JUANA ISABEL | Owner ID: | 57539 |
| Mailing Address: | 526 N 7TH AVE WALLA WALLA, WA 99362 | % Ownership: | 100.0000000000% |
| | | Exemptions: | |
Taxes and Assessment Details
Values
| (+) Improvement Homesite Value: | + | $206,280 | |
| (+) Improvement Non-Homesite Value: | + | $0 | |
| (+) Land Homesite Value: | + | $37,430 | |
| (+) Land Non-Homesite Value: | + | $0 | |
| (+) Curr Use (HS): | + | $0 | $0 |
| (+) Curr Use (NHS): | + | $0 | $0 |
| | | -------------------------- | |
| (=) Market Value: | = | $243,710 | |
| (–) Productivity Loss: | – | $0 | |
| | | -------------------------- | |
| (=) Subtotal: | = | $243,710 | |
| (+) Senior Appraised Value: | + | $0 | |
| (+) Non-Senior Appraised Value: | + | $243,710 | |
| | | -------------------------- | |
| (=) Total Appraised Value: | = | $243,710 | |
| (–) Senior Exemption Loss: | – | $0 | |
| (–) Exemption Loss: | – | $0 | |
| | | -------------------------- | |
| (=) Taxable Value: | = | $243,710 | |
Taxing Jurisdiction
| Owner: | HURTADO-CASTILLO JUANA ISABEL | | |
| % Ownership: | 100.0000000000% | | |
| Total Value: | $243,710 | | |
| Tax Area: | 1 - OL-140-F |
| CERFD | CURRENT EXPENSE REFUND 010 | 0.0000000000 | $243,710 | $243,710 | $0.00 | | |
| CURREXP | CURRENT EXPENSE 010 | 1.0175366760 | $243,710 | $243,710 | $247.98 | | |
| HUMNSERV | HUMAN SERVICES 119 | 0.0250000000 | $243,710 | $243,710 | $6.09 | | |
| SLDREL | SOLDIERS RELIEF 121 | 0.0155990005 | $243,710 | $243,710 | $3.80 | | |
| EMERGSER | EMS 147 | 0.3792580840 | $243,710 | $243,710 | $92.43 | | |
| EMSRFD | EMS REFUND 147 | 0.0000000000 | $243,710 | $243,710 | $0.00 | | |
| PORTRFD | PORT REFUND 640 | 0.0000000000 | $243,710 | $243,710 | $0.00 | | |
| PORTWWGEN | PORT OF WW 640 | 0.2460186015 | $243,710 | $243,710 | $59.96 | | |
| SD140BOND | SD #140 BOND 764 | 0.8342371393 | $243,710 | $243,710 | $203.31 | | |
| SD140GEN | SD #140 GENERAL 760 | 2.0646500647 | $243,710 | $243,710 | $503.18 | | |
| ST2 | STATE SCHOOL PART 2 600 | 0.8131451643 | $243,710 | $243,710 | $198.17 | | |
| STATESCHL | STATE SCHOOL 600 | 1.5158548041 | $243,710 | $243,710 | $369.43 | | |
| STREFUND | STATE REFUND LEVY 603 | 0.0000000000 | $243,710 | $243,710 | $0.00 | | |
| CWWBOND | C OF WW BOND 643 | 0.2760494372 | $243,710 | $243,710 | $67.28 | | |
| CWWGEN | CITY OF WW 631 | 1.6100204973 | $243,710 | $243,710 | $392.38 | | |
| CWWRFD | CITY OF WALLA WALLA REFUND 631 | 0.0000000000 | $243,710 | $243,710 | $0.00 | | |
| | Total Tax Rate: | 8.7973694689 | | | | | |
| | | | | Taxes w/Current Exemptions: | $2,144.01 | | |
| | | | | Taxes w/o Exemptions: | $2,144.01 | | |
Improvement / Building
| Improvement #1: | RESIDENTIAL | State Code: | 11 | 1500.0 sqft | Value: | $206,280 |
| Exterior Wall: | SIDING | Heating/Cooling: | FORCED AIR | | Number of Bathrooms: | 2 | Number of Bedrooms: | 3 | | Plumbing: | 9 | Roof Covering: | COMP SHINGLE |
|
| | Type | Description | Class CD | Sub Class CD | Year Built | Area |
| | MA | Main Area | 4 | 30 | 1906 | 1500.0 |
| | SI1 | SITE IMPROVEMENT | 4 | 30 | 1906 | 1.0 |
| | BASE | BASEMENT | 4 | 30 | 1906 | 660.0 |
| | BPF | BASEMENT -PARTITIONED FINISH | 4 | 30 | 1906 | 660.0 |
| | S1F | Single One Story Fireplace | 4 | 30 | 1906 | 1.0 |
| | RPO | OPEN PORCH W/ROOF | 4 | 30 | 1906 | 56.0 |
| | UTST | Utility Storage Shed | 4 | 30 | 1906 | 216.0 |
| | UPFL | Upper Floor (included in main area) | 4 | 30 | 1906 | 474.0 |
Sketch
Property Image
Land
| 1 | RES 1 | Converted: Residential | 0.1637 | 7130.00 | 0.00 | 0.00 | 1.00 | $37,430 | $0 |
Roll Value History
| 2026 | N/A | N/A | N/A | N/A | N/A |
| 2025 | $248,800 | $64,170 | $0 | $312,970 | $312,970 |
| 2024 | $248,800 | $64,170 | $0 | $312,970 | $312,970 |
| 2023 | $206,280 | $37,430 | $0 | $243,710 | $243,710 |
| 2022 | $165,020 | $37,430 | $0 | $202,450 | $202,450 |
| 2021 | $165,020 | $37,430 | $0 | $202,450 | $202,450 |
| 2020 | $137,520 | $37,430 | $0 | $174,950 | $174,950 |
| 2019 | $137,520 | $37,430 | $0 | $174,950 | $174,950 |
| 2018 | $130,970 | $37,430 | $0 | $168,400 | $168,400 |
| 2017 | $65,570 | $21,400 | $0 | $86,970 | $86,970 |
| 2016 | $59,610 | $21,400 | $0 | $81,010 | $81,010 |
| 2015 | $56,770 | $21,400 | $0 | $78,170 | $78,170 |
| 2014 | $81,100 | $21,400 | $0 | $102,500 | $102,500 |
| 2013 | $81,100 | $21,400 | $0 | $102,500 | $4,700 |
| 2012 | $81,100 | $21,400 | $0 | $0 | $0 |
| 2011 | $71,800 | $21,400 | $0 | $0 | $0 |
| 2010 | $71,800 | $21,400 | $0 | $0 | $0 |
| 2009 | $82,100 | $21,400 | $0 | $0 | $0 |
| 2008 | $52,200 | $12,500 | $0 | $0 | $0 |
| 2007 | $52,200 | $12,500 | $0 | $0 | $0 |
Deed and Sales History
| 1 | 09/28/2015 | REAL ESTAT | REAL ESTATE CONTRACT | TORRES ARMANDO & MARTHA REYES-DE-TORRES | HURTADO-CASTILLO JUANA ISABEL | | | $85,000.00 | 128890 | 2015-08443 |
| 2 | 02/20/2015 | SWD | STATUTORY WARRANTY DEED | THOMPSON TERRY L ESTATE OF | TORRES ARMANDO & MARTHA REYES-DE-TORRES | | | $80,000.00 | 127465 | 2015-01554 |
| 3 | 06/30/1972 | WARRANTY D | WARRANTY DEED | | | | | $9,451.00 | 0 | 3460-522388 |
Payout Agreement
| No payout information available.. |