Property
Account |
| Property ID: | 33803 | Abbreviated Legal Description: | LUCARELLI'S 2ND SUBDIVISION LOT 3 |
| Parcel Number: | 350726680003 | Agent Code: | |
| Type: | Real | | |
| Tax Area: | 311 - 250-4 | Land Use Code | 11 |
| Open Space: | N | DFL | N |
| Historic Property: | N | Remodel Property: | N |
| Multi-Family Redevelopment: | N | | |
| Township: | 7 | Section: | 26 |
| Range: | 35 |
Location |
| Address: | 787 BLALOCK DR WA 99324 | Mapsco: | |
| Neighborhood: | A SFR Rural/City Infl | Map ID: | |
| Neighborhood CD: | 313012 |
Owner |
| Name: | PINE FAMILY TRUST | Owner ID: | 68907 |
| Mailing Address: | 787 BLALOCK DR WALLA WALLA, WA 99362 | % Ownership: | 100.0000000000% |
| | | Exemptions: | |
Taxes and Assessment Details
Property Tax Information as of
02/21/2026
Click on "Statement Details" to expand or collapse a tax statement.
* Please enter a valid date ** Please enter a valid date *
Statement Details |
| | TOTAL: | $0.00 | $0.00 | $0.00 | $0.00 | $0.00 | $0.00 |
|
| | $0.00 | $0.00 | $0.00 | $0.00 | $0.00 | $0.00 |
Values
| (+) Improvement Homesite Value: | + | $553,910 | |
| (+) Improvement Non-Homesite Value: | + | $0 | |
| (+) Land Homesite Value: | + | $90,000 | |
| (+) Land Non-Homesite Value: | + | $0 | |
| (+) Curr Use (HS): | + | $0 | $0 |
| (+) Curr Use (NHS): | + | $0 | $0 |
| | | -------------------------- | |
| (=) Market Value: | = | $643,910 | |
| (–) Productivity Loss: | – | $0 | |
| | | -------------------------- | |
| (=) Subtotal: | = | $643,910 | |
| (+) Senior Appraised Value: | + | $0 | |
| (+) Non-Senior Appraised Value: | + | $643,910 | |
| | | -------------------------- | |
| (=) Total Appraised Value: | = | $643,910 | |
| (–) Senior Exemption Loss: | – | $0 | |
| (–) Exemption Loss: | – | $0 | |
| | | -------------------------- | |
| (=) Taxable Value: | = | $643,910 | |
Taxing Jurisdiction
| Owner: | PINE FAMILY TRUST | | |
| % Ownership: | 100.0000000000% | | |
| Total Value: | $643,910 | | |
| Tax Area: | 311 - 250-4 |
| CERFD | CURRENT EXPENSE REFUND 010 | 0.0000000000 | $643,910 | $643,910 | $0.00 | | |
| CURREXP | CURRENT EXPENSE 010 | 1.0175366760 | $643,910 | $643,910 | $655.20 | | |
| HUMNSERV | HUMAN SERVICES 119 | 0.0250000000 | $643,910 | $643,910 | $16.10 | | |
| SLDREL | SOLDIERS RELIEF 121 | 0.0155990005 | $643,910 | $643,910 | $10.04 | | |
| EMERGSER | EMS 147 | 0.3792580840 | $643,910 | $643,910 | $244.21 | | |
| EMSRFD | EMS REFUND 147 | 0.0000000000 | $643,910 | $643,910 | $0.00 | | |
| FD4EXP | FD #4 EXPENSE 686 | 0.8836993059 | $643,910 | $643,910 | $569.02 | | |
| RLBRFD | RURAL LIBRARY REFUND 623 | 0.0000000000 | $643,910 | $643,910 | $0.00 | | |
| RURALLIB | RURAL LIBRARY 623 | 0.3710609029 | $643,910 | $643,910 | $238.93 | | |
| PORTRFD | PORT REFUND 640 | 0.0000000000 | $643,910 | $643,910 | $0.00 | | |
| PORTWWGEN | PORT OF WW 640 | 0.2460186015 | $643,910 | $643,910 | $158.41 | | |
| SD250BOND | SD #250 BOND 773 | 1.4560608159 | $643,910 | $643,910 | $937.57 | | |
| SD250GEN | SD #250 GENERAL 770 | 2.3880724087 | $643,910 | $643,910 | $1,537.70 | | |
| ST2 | STATE SCHOOL PART 2 600 | 0.8131451643 | $643,910 | $643,910 | $523.59 | | |
| STATESCHL | STATE SCHOOL 600 | 1.5158548041 | $643,910 | $643,910 | $976.07 | | |
| STREFUND | STATE REFUND LEVY 603 | 0.0000000000 | $643,910 | $643,910 | $0.00 | | |
| COROAD | COUNTY ROAD 115 | 1.6549953990 | $643,910 | $643,910 | $1,065.67 | | |
| CRPRD | COUNTY ROAD REFUND 115 | 0.0000000000 | $643,910 | $643,910 | $0.00 | | |
| | Total Tax Rate: | 10.7663011628 | | | | | |
| | | | | Taxes w/Current Exemptions: | $6,932.51 | | |
| | | | | Taxes w/o Exemptions: | $6,932.51 | | |
Improvement / Building
| Improvement #1: | RESIDENTIAL | State Code: | 11 | 3410.0 sqft | Value: | $553,910 |
| Exterior Wall: | PLYWOOD | Heating/Cooling: | WARM & COOLED AIR | | Number of Bathrooms: | 3.5 | Number of Bedrooms: | 4 | | Plumbing: | 15 | Roof Covering: | COMP SHINGLE |
|
| | Type | Description | Class CD | Sub Class CD | Year Built | Area |
| | MA | Main Area | 4 | 40 | 2008 | 3410.0 |
| | GFP | GAS FIREPLACE | 4 | 40 | 0 | 1.0 |
| | RPC | OPEN PORCH W/ROOF , CEILED | 4 | 40 | 0 | 152.0 |
| | RPC | OPEN PORCH W/ROOF , CEILED | 4 | 40 | 0 | 168.0 |
| | SI1 | SITE IMPROVEMENT | 4 | 40 | 0 | 3.5 |
| | ATG | Attached Garage | 4 | 40 | 2008 | 780.0 |
| | UPFL | Upper Floor (included in main area) | 4 | 40 | 2008 | 1023.0 |
Sketch
Property Image
Land
| 1 | RES 1 | Converted: Residential | 0.0000 | 0.00 | 0.00 | 0.00 | 1.00 | $90,000 | $0 |
Roll Value History
| 2026 | N/A | N/A | N/A | N/A | N/A |
| 2025 | $553,910 | $90,000 | $0 | $643,910 | $643,910 |
| 2024 | $553,910 | $90,000 | $0 | $643,910 | $643,910 |
| 2023 | $553,910 | $90,000 | $0 | $643,910 | $643,910 |
| 2022 | $553,910 | $90,000 | $0 | $643,910 | $643,910 |
| 2021 | $541,340 | $55,000 | $0 | $596,340 | $596,340 |
| 2020 | $360,890 | $55,000 | $0 | $415,890 | $415,890 |
| 2019 | $360,890 | $55,000 | $0 | $415,890 | $415,890 |
| 2018 | $337,280 | $55,000 | $0 | $392,280 | $392,280 |
| 2017 | $337,280 | $55,000 | $0 | $392,280 | $392,280 |
| 2016 | $337,280 | $55,000 | $0 | $392,280 | $392,280 |
| 2015 | $325,400 | $55,000 | $0 | $380,400 | $310,400 |
| 2014 | $325,400 | $55,000 | $0 | $380,400 | $380,400 |
| 2013 | $325,400 | $55,000 | $0 | $380,400 | $380,400 |
| 2012 | $325,400 | $55,000 | $0 | $0 | $0 |
| 2011 | $325,400 | $55,000 | $0 | $0 | $0 |
| 2010 | $342,600 | $55,000 | $0 | $0 | $0 |
| 2009 | $360,800 | $60,000 | $0 | $0 | $0 |
| 2008 | $0 | $2,000 | $0 | $0 | $0 |
| 2007 | $0 | $2,000 | $0 | $0 | $0 |
Deed and Sales History
| 1 | 02/23/2021 | SWD | STATUTORY WARRANTY DEED | BARTLETT DIANE L | PINE FAMILY TRUST | | | $659,000.00 | 140967 | 2021-02101 |
| 2 | 02/23/2021 | LOPA | LACK OF PROBATE AFFIDAVIT | BARTLETT GERARD GUAY ESTATE OF | BARTLETT DIANE L | | | $0.00 | 140966 | 2021-02099 |
| 3 | 01/06/2016 | QCD | QUIT CLAIM DEED | POPE EUGENE M & FAYE I | BARTLETT GERARD GUAY ESTATE OF | | | $0.00 | 129468 | 2016-00135 |
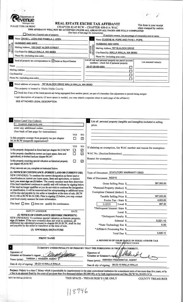
| 4 | 08/31/2010 | WARRANTY D | WARRANTY DEED | LEEN, DAVID L & PAMELA J | POPE, EUGENE M & FAYE I | | | $387,000.00 | 118946 | 2010-06754 |
| 5 | 08/28/2007 | WARRANTY D | WARRANTY DEED | LUCARELLI, JOHN | LEEN, DAVID L & PAMELA J | | | $87,500.00 | 113596 | 2007-10101 |
| 6 | 05/10/2007 | WARRANTY D | WARRANTY DEED | "LUCARELLI, RHEA" | LUCARELLI JOHN | | | | 112783 | 2007-05249 |
Payout Agreement
| No payout information available.. |