Property
Account |
| Property ID: | 33801 | Abbreviated Legal Description: | BLALOCK ORCHARDS TAX 5 LOT 4 BLK 16 |
| Parcel Number: | 350726521612 | Agent Code: | |
| Type: | Real | | |
| Tax Area: | 311 - 250-4 | Land Use Code | 11 |
| Open Space: | N | DFL | N |
| Historic Property: | N | Remodel Property: | N |
| Multi-Family Redevelopment: | N | | |
| Township: | 7 | Section: | 26 |
| Range: | 35 |
Location |
| Address: | 20 ROME ST WA 99324 | Mapsco: | |
| Neighborhood: | A SFR Rural/City Infl | Map ID: | |
| Neighborhood CD: | 313012 |
Owner |
| Name: | BULLER TIMOTHY & DEEANN | Owner ID: | 70246 |
| Mailing Address: | 20 ROME ST WALLA WALLA, WA 99362 | % Ownership: | 100.0000000000% |
| | | Exemptions: | |
Taxes and Assessment Details
Values
| (+) Improvement Homesite Value: | + | $0 | |
| (+) Improvement Non-Homesite Value: | + | $251,230 | |
| (+) Land Homesite Value: | + | $0 | |
| (+) Land Non-Homesite Value: | + | $88,860 | |
| (+) Curr Use (HS): | + | $0 | $0 |
| (+) Curr Use (NHS): | + | $0 | $0 |
| | | -------------------------- | |
| (=) Market Value: | = | $340,090 | |
| (–) Productivity Loss: | – | $0 | |
| | | -------------------------- | |
| (=) Subtotal: | = | $340,090 | |
| (+) Senior Appraised Value: | + | $0 | |
| (+) Non-Senior Appraised Value: | + | $340,090 | |
| | | -------------------------- | |
| (=) Total Appraised Value: | = | $340,090 | |
| (–) Senior Exemption Loss: | – | $0 | |
| (–) Exemption Loss: | – | $0 | |
| | | -------------------------- | |
| (=) Taxable Value: | = | $340,090 | |
Taxing Jurisdiction
| Owner: | BULLER TIMOTHY & DEEANN | | |
| % Ownership: | 100.0000000000% | | |
| Total Value: | $340,090 | | |
| Tax Area: | 311 - 250-4 |
| CERFD | CURRENT EXPENSE REFUND 010 | 0.0000000000 | $340,090 | $340,090 | $0.00 | | |
| CURREXP | CURRENT EXPENSE 010 | 1.0175366760 | $340,090 | $340,090 | $346.05 | | |
| HUMNSERV | HUMAN SERVICES 119 | 0.0250000000 | $340,090 | $340,090 | $8.50 | | |
| SLDREL | SOLDIERS RELIEF 121 | 0.0155990005 | $340,090 | $340,090 | $5.31 | | |
| EMERGSER | EMS 147 | 0.3792580840 | $340,090 | $340,090 | $128.98 | | |
| EMSRFD | EMS REFUND 147 | 0.0000000000 | $340,090 | $340,090 | $0.00 | | |
| FD4EXP | FD #4 EXPENSE 686 | 0.8836993059 | $340,090 | $340,090 | $300.54 | | |
| RLBRFD | RURAL LIBRARY REFUND 623 | 0.0000000000 | $340,090 | $340,090 | $0.00 | | |
| RURALLIB | RURAL LIBRARY 623 | 0.3710609029 | $340,090 | $340,090 | $126.19 | | |
| PORTRFD | PORT REFUND 640 | 0.0000000000 | $340,090 | $340,090 | $0.00 | | |
| PORTWWGEN | PORT OF WW 640 | 0.2460186015 | $340,090 | $340,090 | $83.67 | | |
| SD250BOND | SD #250 BOND 773 | 1.4560608159 | $340,090 | $340,090 | $495.19 | | |
| SD250GEN | SD #250 GENERAL 770 | 2.3880724087 | $340,090 | $340,090 | $812.16 | | |
| ST2 | STATE SCHOOL PART 2 600 | 0.8131451643 | $340,090 | $340,090 | $276.54 | | |
| STATESCHL | STATE SCHOOL 600 | 1.5158548041 | $340,090 | $340,090 | $515.53 | | |
| STREFUND | STATE REFUND LEVY 603 | 0.0000000000 | $340,090 | $340,090 | $0.00 | | |
| COROAD | COUNTY ROAD 115 | 1.6549953990 | $340,090 | $340,090 | $562.85 | | |
| CRPRD | COUNTY ROAD REFUND 115 | 0.0000000000 | $340,090 | $340,090 | $0.00 | | |
| | Total Tax Rate: | 10.7663011628 | | | | | |
| | | | | Taxes w/Current Exemptions: | $3,661.51 | | |
| | | | | Taxes w/o Exemptions: | $3,661.51 | | |
Improvement / Building
| Improvement #1: | RESIDENTIAL | State Code: | 11 | 1073.0 sqft | Value: | $251,230 |
| Exterior Wall: | METAL/STEEL | Heating/Cooling: | BASEBOARD ELECTRIC | | Number of Bathrooms: | 1 | Number of Bedrooms: | 2 | | Plumbing: | 6 | Roof Covering: | COMP SHINGLE |
|
| | Type | Description | Class CD | Sub Class CD | Year Built | Area |
| | MA | Main Area | 1 | 30 | 1949 | 1073.0 |
| | POL3 | POLE BUILDING-CON,ELEC,INSU | 1 | 30 | 2006 | 1440.0 |
| | SI1 | SITE IMPROVEMENT | 1 | 30 | 0 | 3.5 |
| | S1F | Single One Story Fireplace | 1 | 30 | 1949 | 1.0 |
Sketch
Property Image
Land
| 1 | RES 1 | Converted: Residential | 0.5000 | 21780.00 | 0.00 | 0.00 | 1.00 | $88,860 | $0 |
Roll Value History
| 2026 | N/A | N/A | N/A | N/A | N/A |
| 2025 | $260,140 | $88,860 | $0 | $349,000 | $349,000 |
| 2024 | $260,140 | $88,860 | $0 | $349,000 | $349,000 |
| 2023 | $251,230 | $88,860 | $0 | $340,090 | $340,090 |
| 2022 | $251,230 | $88,860 | $0 | $340,090 | $340,090 |
| 2021 | $112,960 | $57,100 | $0 | $170,060 | $170,060 |
| 2020 | $102,690 | $57,100 | $0 | $159,790 | $159,790 |
| 2019 | $102,690 | $57,100 | $0 | $159,790 | $159,790 |
| 2018 | $93,360 | $57,100 | $0 | $150,460 | $150,460 |
| 2017 | $84,870 | $57,100 | $0 | $141,970 | $141,970 |
| 2016 | $84,870 | $57,100 | $0 | $141,970 | $141,970 |
| 2015 | $82,350 | $57,100 | $0 | $139,450 | $139,450 |
| 2014 | $54,900 | $57,100 | $0 | $112,000 | $112,000 |
| 2013 | $54,900 | $57,100 | $0 | $112,000 | $112,000 |
| 2012 | $54,900 | $57,100 | $0 | $0 | $0 |
| 2011 | $54,900 | $57,100 | $0 | $0 | $0 |
| 2010 | $56,100 | $57,100 | $0 | $0 | $0 |
| 2009 | $90,600 | $35,200 | $0 | $0 | $0 |
| 2008 | $65,400 | $35,200 | $0 | $0 | $0 |
| 2007 | $65,400 | $35,200 | $0 | $0 | $0 |
Deed and Sales History
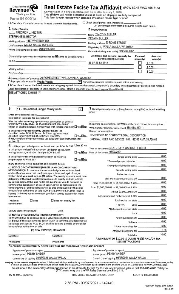
| 1 | 09/07/2021 | SWD | STATUTORY WARRANTY DEED | HECTOR FREDRICK L & STEPHANIE N | BULLER TIMOTHY & DEEANN | | | | 142449 | 2021-10982 |
| 2 | 08/23/2021 | SWD | STATUTORY WARRANTY DEED | HECTOR FREDRICK L & STEPHANIE N | BULLER TIMOTHY & DEEANN | | | $349,900.00 | 142342 | 2021-10337 |
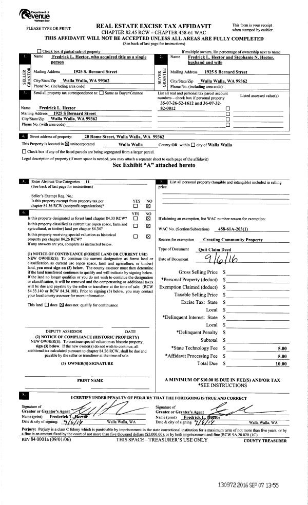
| 3 | 09/06/2016 | QCD | QUIT CLAIM DEED | HECTOR FREDERICK L | HECTOR FREDRICK L & STEPHANIE N | | | $0.00 | 130972 | 2016-07273 |
| 4 | 08/26/2016 | QCD | QUIT CLAIM DEED | HECTOR DANA | HECTOR FREDERICK L | | | $0.00 | 130971 | 2016-07272 |
| 5 | 06/15/2005 | WARRANTY D | WARRANTY DEED | WHITE, DAVID A & AMY J | HECTOR, FREDRICK L | | | $138,000.00 | 107723 | 2005-07154 |
| 6 | 04/15/1999 | WARRANTY D | WARRANTY DEED | | | | | $66,200.00 | 92560 | 2829-904588 |
Payout Agreement
| No payout information available.. |