Property
Account |
| Property ID: | 33796 | Abbreviated Legal Description: | EAST WALLA WALLA 1ST LOT 18 BLK 4; E 15' OF LOT 17 BLK 4 |
| Parcel Number: | 360727540418 | Agent Code: | |
| Type: | Real | | |
| Tax Area: | 1 - OL-140-F | Land Use Code | 11 |
| Open Space: | N | DFL | N |
| Historic Property: | N | Remodel Property: | N |
| Multi-Family Redevelopment: | N | | |
| Township: | 7 | Section: | 27 |
| Range: | 36 |
Location |
| Address: | 1923 PLEASANT ST WA 99362 | Mapsco: | |
| Neighborhood: | A Inferior Res | Map ID: | |
| Neighborhood CD: | 413111 |
Owner |
| Name: | BOYER GARRET | Owner ID: | 62029 |
| Mailing Address: | 1923 PLEASANT ST WALLA WALLA, WA 99362 | % Ownership: | 100.0000000000% |
| | | Exemptions: | |
Taxes and Assessment Details
Property Tax Information as of
04/19/2026
Click on "Statement Details" to expand or collapse a tax statement.
* Please enter a valid date ** Please enter a valid date *
Statement Details |
| | TOTAL: | $0.00 | $0.00 | $0.00 | $0.00 | $0.00 | $0.00 |
|
| | $0.00 | $0.00 | $0.00 | $0.00 | $0.00 | $0.00 |
Values
| (+) Improvement Homesite Value: | + | $0 | |
| (+) Improvement Non-Homesite Value: | + | $210,100 | |
| (+) Land Homesite Value: | + | $0 | |
| (+) Land Non-Homesite Value: | + | $62,400 | |
| (+) Curr Use (HS): | + | $0 | $0 |
| (+) Curr Use (NHS): | + | $0 | $0 |
| | | -------------------------- | |
| (=) Market Value: | = | $272,500 | |
| (–) Productivity Loss: | – | $0 | |
| | | -------------------------- | |
| (=) Subtotal: | = | $272,500 | |
| (+) Senior Appraised Value: | + | $0 | |
| (+) Non-Senior Appraised Value: | + | $272,500 | |
| | | -------------------------- | |
| (=) Total Appraised Value: | = | $272,500 | |
| (–) Senior Exemption Loss: | – | $0 | |
| (–) Exemption Loss: | – | $0 | |
| | | -------------------------- | |
| (=) Taxable Value: | = | $272,500 | |
Taxing Jurisdiction
| Owner: | BOYER GARRET | | |
| % Ownership: | 100.0000000000% | | |
| Total Value: | $272,500 | | |
| Tax Area: | 1 - OL-140-F |
| CERFD | CURRENT EXPENSE REFUND 010 | 0.0000000000 | $272,500 | $272,500 | $0.00 | | |
| CURREXP | CURRENT EXPENSE 010 | 1.0175366760 | $272,500 | $272,500 | $277.28 | | |
| HUMNSERV | HUMAN SERVICES 119 | 0.0250000000 | $272,500 | $272,500 | $6.81 | | |
| SLDREL | SOLDIERS RELIEF 121 | 0.0155990005 | $272,500 | $272,500 | $4.25 | | |
| EMERGSER | EMS 147 | 0.3792580840 | $272,500 | $272,500 | $103.35 | | |
| EMSRFD | EMS REFUND 147 | 0.0000000000 | $272,500 | $272,500 | $0.00 | | |
| PORTRFD | PORT REFUND 640 | 0.0000000000 | $272,500 | $272,500 | $0.00 | | |
| PORTWWGEN | PORT OF WW 640 | 0.2460186015 | $272,500 | $272,500 | $67.04 | | |
| SD140BOND | SD #140 BOND 764 | 0.8342371393 | $272,500 | $272,500 | $227.33 | | |
| SD140GEN | SD #140 GENERAL 760 | 2.0646500647 | $272,500 | $272,500 | $562.62 | | |
| ST2 | STATE SCHOOL PART 2 600 | 0.8131451643 | $272,500 | $272,500 | $221.58 | | |
| STATESCHL | STATE SCHOOL 600 | 1.5158548041 | $272,500 | $272,500 | $413.07 | | |
| STREFUND | STATE REFUND LEVY 603 | 0.0000000000 | $272,500 | $272,500 | $0.00 | | |
| CWWBOND | C OF WW BOND 643 | 0.2760494372 | $272,500 | $272,500 | $75.22 | | |
| CWWGEN | CITY OF WW 631 | 1.6100204973 | $272,500 | $272,500 | $438.73 | | |
| CWWRFD | CITY OF WALLA WALLA REFUND 631 | 0.0000000000 | $272,500 | $272,500 | $0.00 | | |
| | Total Tax Rate: | 8.7973694689 | | | | | |
| | | | | Taxes w/Current Exemptions: | $2,397.28 | | |
| | | | | Taxes w/o Exemptions: | $2,397.28 | | |
Improvement / Building
| Improvement #1: | RESIDENTIAL | State Code: | 11 | 1423.0 sqft | Value: | $210,100 |
| Exterior Wall: | SIDING | Foundation: | SLAB FOUNDATION | | Heating/Cooling: | WARM & COOLED AIR | Number of Bathrooms: | 2 | | Number of Bedrooms: | 2 | Plumbing: | 9 | | Roof Covering: | COMP SHINGLE |   |   |
|
| | Type | Description | Class CD | Sub Class CD | Year Built | Area |
| | MA | Main Area | 1 | 25 | 1956 | 1423.0 |
| | CPC | COVERED CARPORT/PATIO | 1 | 25 | 0 | 192.0 |
| | CPC | COVERED CARPORT/PATIO | 1 | 25 | 0 | 264.0 |
| | SI1 | SITE IMPROVEMENT | 1 | 25 | 0 | 2.0 |
| | RPO | OPEN PORCH W/ROOF | 1 | 25 | 0 | 60.0 |
| | S1F | Single One Story Fireplace | 1 | 25 | 0 | 1.0 |
Sketch
Property Image
Land
| 1 | RES 1 | Converted: Residential | 0.1791 | 7800.00 | 0.00 | 0.00 | 1.00 | $62,400 | $0 |
Roll Value History
| 2026 | N/A | N/A | N/A | N/A | N/A |
| 2025 | $220,610 | $62,400 | $0 | $283,010 | $283,010 |
| 2024 | $220,610 | $62,400 | $0 | $283,010 | $283,010 |
| 2023 | $210,100 | $62,400 | $0 | $272,500 | $272,500 |
| 2022 | $207,820 | $40,950 | $0 | $248,770 | $248,770 |
| 2021 | $115,450 | $40,950 | $0 | $156,400 | $156,400 |
| 2020 | $88,810 | $40,950 | $0 | $129,760 | $129,760 |
| 2019 | $88,810 | $40,950 | $0 | $129,760 | $129,760 |
| 2018 | $88,810 | $40,950 | $0 | $129,760 | $129,760 |
| 2017 | $88,810 | $40,950 | $0 | $129,760 | $129,760 |
| 2016 | $84,460 | $45,300 | $0 | $129,760 | $129,760 |
| 2015 | $76,780 | $45,300 | $0 | $122,080 | $122,080 |
| 2014 | $69,800 | $45,300 | $0 | $115,100 | $115,100 |
| 2013 | $69,800 | $45,300 | $0 | $115,100 | $115,100 |
| 2012 | $69,800 | $45,300 | $0 | $0 | $0 |
| 2011 | $76,600 | $45,300 | $0 | $0 | $0 |
| 2010 | $76,600 | $45,300 | $0 | $0 | $0 |
| 2009 | $90,100 | $45,300 | $0 | $0 | $0 |
| 2008 | $90,100 | $45,300 | $0 | $0 | $0 |
| 2007 | $80,200 | $22,800 | $0 | $0 | $0 |
Deed and Sales History
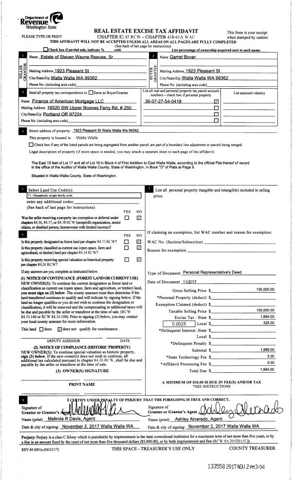
| 1 | 11/02/2017 | DPR | DEED OF PERSONAL REPRESENTATIVE | REEVES STEVEN WAYNE SR ESTATE OF | BOYER GARRET | | | $130,000.00 | 133558 | 2017-08840 |
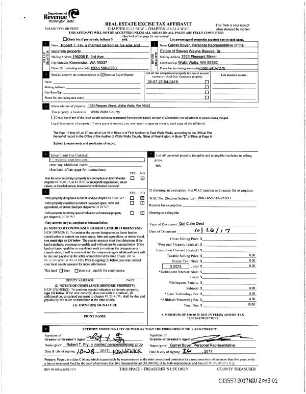
| 2 | 10/26/2017 | QCD | QUIT CLAIM DEED | FRY ROBERT T | REEVES STEVEN WAYNE SR ESTATE OF | | | $0.00 | 133557 | 2017-08839 |
| 3 | 11/02/2017 | LOPA | LACK OF PROBATE AFFIDAVIT | REEVES STEVEN W & | REEVES STEVEN WAYNE SR ESTATE OF | | | $0.00 | 133556 | 2017-08838 |
| 4 | 12/07/2016 | DEATH CERT | DEATH CERTIFICATE | FRY BARBARA J | | | | | 0 | 2016-10032 |
| 5 | 08/15/2012 | QCD | QUIT CLAIM DEED | FRY, BARBARA J | REEVES, STEVEN W & | | | $0.00 | 122491 | 2012-06981 |
| 6 | 08/12/2003 | QCD | QUIT CLAIM DEED | FRY, BARBARA & PATRICIA SMITH | FRY, BARBARA J | | | $15,000.00 | 102769 | 2003-12073 |
| 7 | 07/19/1996 | WARRANTY D | WARRANTY DEED | | | | | $88,500.00 | 86540 | 2429-607260 |
Payout Agreement
| No payout information available.. |