Property
Account |
| Property ID: | 33795 | Abbreviated Legal Description: | SCENIC VIEW LOT 14 BLK 4 |
| Parcel Number: | 350736580414 | Agent Code: | |
| Type: | Real | | |
| Tax Area: | 75 - CP 250 | Land Use Code | 11 |
| Open Space: | N | DFL | N |
| Historic Property: | N | Remodel Property: | N |
| Multi-Family Redevelopment: | N | | |
| Township: | 7 | Section: | 36 |
| Range: | 35 |
Location |
| Address: | 234 SE SCENIC VIEW DR WA 99324 | Mapsco: | |
| Neighborhood: | A SFR | Map ID: | |
| Neighborhood CD: | 113011 |
Owner |
| Name: | VAN DYKE TERRY B & BERTIE J | Owner ID: | 64842 |
| Mailing Address: | 234 SE SCENIC VIEW DR COLLEGE PLACE, WA 99324 | % Ownership: | 100.0000000000% |
| | | Exemptions: | |
Taxes and Assessment Details
Property Tax Information as of
02/21/2026
Click on "Statement Details" to expand or collapse a tax statement.
* Please enter a valid date ** Please enter a valid date *
Statement Details |
| | TOTAL: | $0.00 | $0.00 | $0.00 | $0.00 | $0.00 | $0.00 |
|
| | $0.00 | $0.00 | $0.00 | $0.00 | $0.00 | $0.00 |
Values
| (+) Improvement Homesite Value: | + | $0 | |
| (+) Improvement Non-Homesite Value: | + | $185,990 | |
| (+) Land Homesite Value: | + | $0 | |
| (+) Land Non-Homesite Value: | + | $40,500 | |
| (+) Curr Use (HS): | + | $0 | $0 |
| (+) Curr Use (NHS): | + | $0 | $0 |
| | | -------------------------- | |
| (=) Market Value: | = | $226,490 | |
| (–) Productivity Loss: | – | $0 | |
| | | -------------------------- | |
| (=) Subtotal: | = | $226,490 | |
| (+) Senior Appraised Value: | + | $0 | |
| (+) Non-Senior Appraised Value: | + | $226,490 | |
| | | -------------------------- | |
| (=) Total Appraised Value: | = | $226,490 | |
| (–) Senior Exemption Loss: | – | $0 | |
| (–) Exemption Loss: | – | $0 | |
| | | -------------------------- | |
| (=) Taxable Value: | = | $226,490 | |
Taxing Jurisdiction
| Owner: | VAN DYKE TERRY B & BERTIE J | | |
| % Ownership: | 100.0000000000% | | |
| Total Value: | $226,490 | | |
| Tax Area: | 75 - CP 250 |
| CERFD | CURRENT EXPENSE REFUND 010 | 0.0000000000 | $226,490 | $226,490 | $0.00 | | |
| CURREXP | CURRENT EXPENSE 010 | 1.0175366760 | $226,490 | $226,490 | $230.46 | | |
| HUMNSERV | HUMAN SERVICES 119 | 0.0250000000 | $226,490 | $226,490 | $5.66 | | |
| SLDREL | SOLDIERS RELIEF 121 | 0.0155990005 | $226,490 | $226,490 | $3.53 | | |
| COLLPLBOND | C OF CP BOND 644 | 0.4374241808 | $226,490 | $226,490 | $99.07 | | |
| COLLPLGEN | CITY OF CP 632 | 1.4453819216 | $226,490 | $226,490 | $327.36 | | |
| EMERGSER | EMS 147 | 0.3792580840 | $226,490 | $226,490 | $85.90 | | |
| EMSRFD | EMS REFUND 147 | 0.0000000000 | $226,490 | $226,490 | $0.00 | | |
| RURALLIB | RURAL LIBRARY 623 | 0.3710609029 | $226,490 | $226,490 | $84.04 | | |
| PORTRFD | PORT REFUND 640 | 0.0000000000 | $226,490 | $226,490 | $0.00 | | |
| PORTWWGEN | PORT OF WW 640 | 0.2460186015 | $226,490 | $226,490 | $55.72 | | |
| SD250BOND | SD #250 BOND 773 | 1.4560608159 | $226,490 | $226,490 | $329.78 | | |
| SD250GEN | SD #250 GENERAL 770 | 2.3880724087 | $226,490 | $226,490 | $540.87 | | |
| ST2 | STATE SCHOOL PART 2 600 | 0.8131451643 | $226,490 | $226,490 | $184.17 | | |
| STATESCHL | STATE SCHOOL 600 | 1.5158548041 | $226,490 | $226,490 | $343.33 | | |
| STREFUND | STATE REFUND LEVY 603 | 0.0000000000 | $226,490 | $226,490 | $0.00 | | |
| | Total Tax Rate: | 10.1104125603 | | | | | |
| | | | | Taxes w/Current Exemptions: | $2,289.89 | | |
| | | | | Taxes w/o Exemptions: | $2,289.89 | | |
Improvement / Building
| Improvement #1: | RESIDENTIAL | State Code: | 11 | 1136.0 sqft | Value: | $185,990 |
| Exterior Wall: | VINYL | Heating/Cooling: | WARM & COOLED AIR | | Number of Bathrooms: | 2 | Number of Bedrooms: | 3 | | Plumbing: | 6 | Roof Covering: | COMP SHINGLE |
|
| | Type | Description | Class CD | Sub Class CD | Year Built | Area |
| | MA | Main Area | 1 | 25 | 1949 | 1136.0 |
| | CPCS | CARPORT/SHED OR FLAT ROOF | 1 | 25 | 1949 | 264.0 |
| | SI1 | SITE IMPROVEMENT | 1 | 25 | 1949 | 1.0 |
| | RPO | OPEN PORCH W/ROOF | 1 | 25 | 1949 | 76.0 |
| | TOOL | TOOL SHED | 1 | 25 | 1949 | 150.0 |
Sketch
Property Image
Land
| 1 | RES 1 | Converted: Residential | 0.1377 | 6000.00 | 0.00 | 0.00 | 1.00 | $40,500 | $0 |
Roll Value History
| 2026 | N/A | N/A | N/A | N/A | N/A |
| 2025 | $213,880 | $60,000 | $0 | $273,880 | $273,880 |
| 2024 | $185,990 | $40,500 | $0 | $226,490 | $226,490 |
| 2023 | $185,990 | $40,500 | $0 | $226,490 | $226,490 |
| 2022 | $169,080 | $40,500 | $0 | $209,580 | $209,580 |
| 2021 | $116,610 | $40,500 | $0 | $157,110 | $157,110 |
| 2020 | $65,930 | $40,500 | $0 | $106,430 | $106,430 |
| 2019 | $70,430 | $36,000 | $0 | $106,430 | $106,430 |
| 2018 | $54,180 | $36,000 | $0 | $90,180 | $90,180 |
| 2017 | $52,600 | $36,000 | $0 | $88,600 | $88,600 |
| 2016 | $47,820 | $36,000 | $0 | $83,820 | $83,820 |
| 2015 | $43,470 | $36,000 | $0 | $79,470 | $79,470 |
| 2014 | $48,300 | $36,000 | $0 | $84,300 | $84,300 |
| 2013 | $48,300 | $36,000 | $0 | $84,300 | $84,300 |
| 2012 | $63,200 | $36,000 | $0 | $0 | $0 |
| 2011 | $63,200 | $36,000 | $0 | $0 | $0 |
| 2010 | $58,500 | $36,000 | $0 | $0 | $0 |
| 2009 | $69,000 | $36,000 | $0 | $0 | $0 |
| 2008 | $44,000 | $18,000 | $0 | $0 | $0 |
| 2007 | $44,000 | $18,000 | $0 | $0 | $0 |
Deed and Sales History
| 1 | 03/13/2019 | QCD | QUIT CLAIM DEED | VAN DYKE BERTHA JEAN | VAN DYKE TERRY B & BERTIE J | | | $0.00 | 136532 | 2019-01704 |
| 2 | 04/14/2017 | QCD | QUIT CLAIM DEED | BAFUS PATRICIA ANN | VAN DYKE BERTHA JEAN | | | $0.00 | 132215 | 2017-02832 |
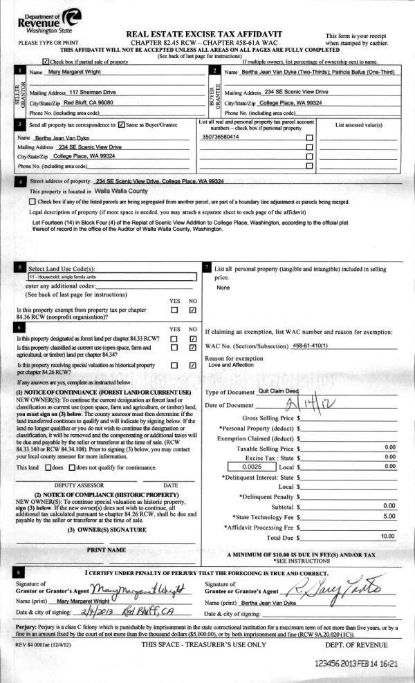
| 3 | 02/14/2013 | QCD | QUIT CLAIM DEED | WRIGHT, MARY MARGARET | VAN DYKE, BERTHA JEAN | | | $0.00 | 123456 | 2013-01324 |
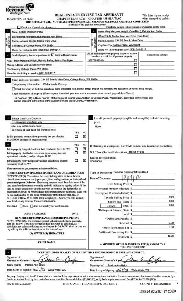
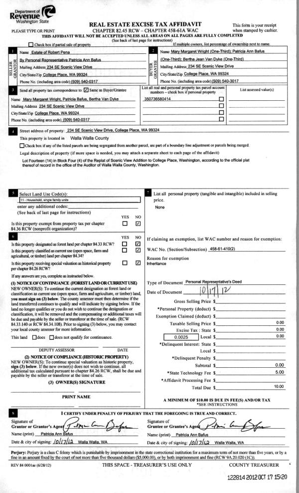
| 4 | 10/17/2012 | WARRANTY D | WARRANTY DEED | PENA, ROBERT ESTATE OF | BAFUS, PATRICIA ANN, MARY MARG | | | $0.00 | 122814 | 2012-09151 |
| 5 | 09/17/2012 | WARRANTY D | WARRANTY DEED | PENA, ROBERT ESTATE OF | BAFUS, PATRICIA ANN | | | $0.00 | 0 | CC #12-4-00067-9 |
| 6 | 05/30/2006 | QCD | QUIT CLAIM DEED | PENA, MARGARET S | PENA, ROBERT | | | | 110378 | 2006-06214 |
| 7 | 01/11/1949 | WARRANTY D | WARRANTY DEED | | | | | $0.00 | 0 | 2460-327279 |
Payout Agreement
| No payout information available.. |