Property
Account |
| Property ID: | 33793 | Abbreviated Legal Description: | 34-7-36 TAX 34 |
| Parcel Number: | 360734240059 | Agent Code: | |
| Type: | Real | | |
| Tax Area: | 101 - 140-4 | Land Use Code | 11 |
| Open Space: | N | DFL | N |
| Historic Property: | N | Remodel Property: | N |
| Multi-Family Redevelopment: | N | | |
| Township: | 7 | Section: | 34 |
| Range: | 36 |
Location |
| Address: | 1857 RESER RD WA 99362 | Mapsco: | |
| Neighborhood: | VG Res Rural/City Inf | Map ID: | |
| Neighborhood CD: | 415012 |
Owner |
| Name: | WILBURN PETER J & HEATHER M | Owner ID: | 69111 |
| Mailing Address: | 1857 RESER RD WALLA WALLA, WA 99362 | % Ownership: | 100.0000000000% |
| | | Exemptions: | |
Taxes and Assessment Details
Values
| (+) Improvement Homesite Value: | + | N/A | |
| (+) Improvement Non-Homesite Value: | + | N/A | |
| (+) Land Homesite Value: | + | N/A | |
| (+) Land Non-Homesite Value: | + | N/A | Ag / Timber Use Value |
| (+) Curr Use (HS): | + | N/A | N/A |
| (+) Curr Use (NHS): | + | N/A | N/A |
| | | -------------------------- | |
| (=) Market Value: | = | N/A | |
| (–) Productivity Loss: | – | N/A | |
| | | -------------------------- | |
| (=) Subtotal: | = | N/A | |
| (+) Senior Appraised Value: | + | N/A | |
| (+) Non-Senior Appraised Value: | + | N/A | |
| | | -------------------------- | |
| (=) Total Appraised Value: | = | N/A | |
| (–) Senior Exemption Loss: | – | N/A | |
| (–) Exemption Loss: | – | N/A | |
| | | -------------------------- | |
| (=) Taxable Value: | = | N/A | |
Taxing Jurisdiction
| Owner: | WILBURN PETER J & HEATHER M | | |
| % Ownership: | 100.0000000000% | | |
| Total Value: | N/A | | |
| Tax Area: | 101 - 140-4 |
| CERFD | CURRENT EXPENSE REFUND 010 | N/A | N/A | N/A | N/A | | |
| CURREXP | CURRENT EXPENSE 010 | N/A | N/A | N/A | N/A | | |
| HUMNSERV | HUMAN SERVICES 119 | N/A | N/A | N/A | N/A | | |
| SLDREL | SOLDIERS RELIEF 121 | N/A | N/A | N/A | N/A | | |
| EMERGSER | EMS 147 | N/A | N/A | N/A | N/A | | |
| EMSRFD | EMS REFUND 147 | N/A | N/A | N/A | N/A | | |
| FD4EXP | FD #4 EXPENSE 686 | N/A | N/A | N/A | N/A | | |
| RLBRFD | RURAL LIBRARY REFUND 623 | N/A | N/A | N/A | N/A | | |
| RURALLIB | RURAL LIBRARY 623 | N/A | N/A | N/A | N/A | | |
| PORTRFD | PORT REFUND 640 | N/A | N/A | N/A | N/A | | |
| PORTWWGEN | PORT OF WW 640 | N/A | N/A | N/A | N/A | | |
| SD140BOND | SD #140 BOND 764 | N/A | N/A | N/A | N/A | | |
| SD140GEN | SD #140 GENERAL 760 | N/A | N/A | N/A | N/A | | |
| ST2 | STATE SCHOOL PART 2 600 | N/A | N/A | N/A | N/A | | |
| STATESCHL | STATE SCHOOL 600 | N/A | N/A | N/A | N/A | | |
| STREFUND | STATE REFUND LEVY 603 | N/A | N/A | N/A | N/A | | |
| COROAD | COUNTY ROAD 115 | N/A | N/A | N/A | N/A | | |
| CRPRD | COUNTY ROAD REFUND 115 | N/A | N/A | N/A | N/A | | |
| | Total Tax Rate: | N/A | | | | | |
| | | | | Taxes w/Current Exemptions: | N/A | | |
| | | | | Taxes w/o Exemptions: | N/A | | |
Improvement / Building
| Improvement #1: | RESIDENTIAL | State Code: | 11 | 2896.0 sqft | Value: | N/A |
| Exterior Wall: | SIDING | Heating/Cooling: | WARM & COOLED AIR | | Number of Bathrooms: | 4 | Number of Bedrooms: | 3 | | Plumbing: | 16 | Roof Covering: | COMP SHINGLE |
|
| | Type | Description | Class CD | Sub Class CD | Year Built | Area |
| | MA | Main Area | 1 | 35 | 1974 | 2896.0 |
| | SI1 | SITE IMPROVEMENT | 1 | 35 | 1974 | 5.0 |
| | BASE | BASEMENT | 1 | 35 | 1974 | 2896.0 |
| | BPF | BASEMENT -PARTITIONED FINISH | 1 | 35 | 1974 | 1200.0 |
| | D2F | Double 2 Story Fireplace | 1 | 35 | 1974 | 1.0 |
| | RPO | OPEN PORCH W/ROOF | 1 | 35 | 1974 | 258.0 |
| | RPO | OPEN PORCH W/ROOF | 1 | 35 | 1974 | 374.0 |
| | RPO | OPEN PORCH W/ROOF | 1 | 35 | 1974 | 190.0 |
| | ATG | Attached Garage | 1 | 35 | 1974 | 720.0 |
Sketch
Property Image
Land
| 1 | RES 1 | Converted: Residential | 0.6000 | 26136.00 | 0.00 | 0.00 | 1.00 | N/A | N/A |
Roll Value History
| 2026 | N/A | N/A | N/A | N/A | N/A |
| 2025 | $420,990 | $144,010 | $0 | $565,000 | $565,000 |
| 2024 | $382,720 | $144,010 | $0 | $526,730 | $526,730 |
| 2023 | $382,720 | $144,010 | $0 | $526,730 | $526,730 |
| 2022 | $450,260 | $71,090 | $0 | $521,350 | $521,350 |
| 2021 | $375,220 | $71,090 | $0 | $446,310 | $446,310 |
| 2020 | $312,680 | $71,090 | $0 | $383,770 | $383,770 |
| 2019 | $312,680 | $71,090 | $0 | $383,770 | $383,770 |
| 2018 | $284,250 | $71,090 | $0 | $355,340 | $355,340 |
| 2017 | $258,410 | $71,090 | $0 | $329,500 | $329,500 |
| 2016 | $228,000 | $60,800 | $0 | $288,800 | $288,800 |
| 2015 | $190,000 | $60,800 | $0 | $250,800 | $250,800 |
| 2014 | $190,000 | $60,800 | $0 | $250,800 | $250,800 |
| 2013 | $190,000 | $60,800 | $0 | $250,800 | $250,800 |
| 2012 | $190,000 | $60,800 | $0 | $0 | $0 |
| 2011 | $169,900 | $60,800 | $0 | $0 | $0 |
| 2010 | $169,900 | $60,800 | $0 | $0 | $0 |
| 2009 | $195,500 | $60,800 | $0 | $0 | $0 |
| 2008 | $195,500 | $60,800 | $0 | $0 | $0 |
| 2007 | $196,500 | $38,300 | $0 | $0 | $0 |
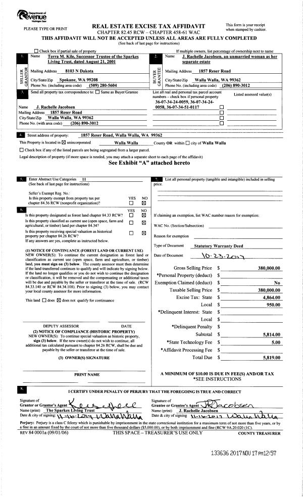
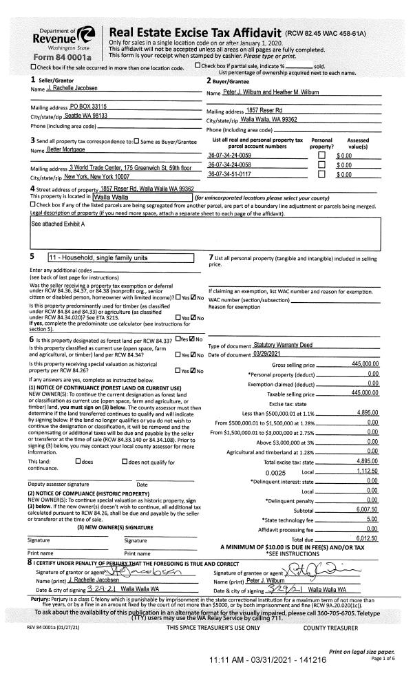
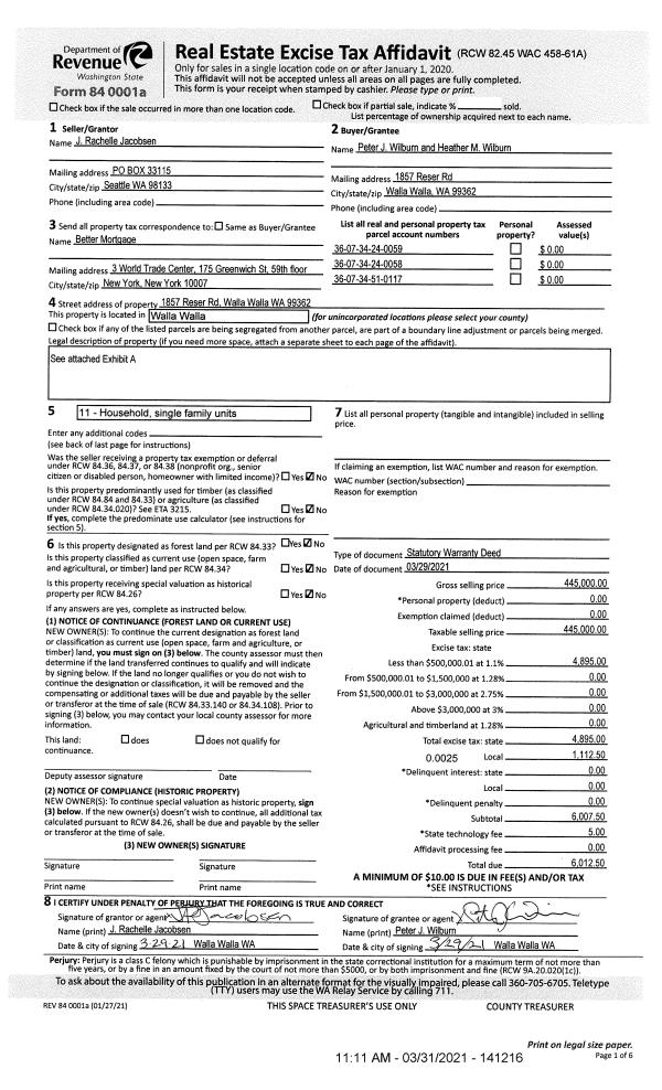
Deed and Sales History
| 1 | 03/31/2021 | SWD | STATUTORY WARRANTY DEED | JACOBSEN J RACHELLE | WILBURN PETER J & HEATHER M | | 3-PARCELS | $445,000.00 | 141216 | 2021-03711 |
|   | |
| 2 | 10/23/2017 | SWD | STATUTORY WARRANTY DEED | SPARKES LIVING TRUST | JACOBSEN J RACHELLE | | 3-PARCELS | $0.00 | 133636 | 2017-09283 |
| 3 | 05/16/2016 | QCD | QUIT CLAIM DEED | VALERIE A SPARKES LIVING TRUST | SPARKES LIVING TRUST | | | $0.00 | 130220 | 2016-03659 |
| 4 | 09/12/2014 | WARRANTY D | WARRANTY DEED | SPARKES VALERIE LIVING TRUST | VALERIE A SPARKES LIVING TRUST | | 3-PARCELS | | 126631 | 2014-06694 |
| 5 | 08/20/2012 | WARRANTY D | WARRANTY DEED | SPARKES VALERIE | SPARKES VALERIE LIVING TRUST | | | | 122515 | 2012-07105 |
| 6 | 02/24/2006 | WARRANTY D | WARRANTY DEED | BLOCK CLARENCE E | SPARKES VALERIE | | | | 109714 | 2006-02123 |
| 7 | 06/01/1964 | WARRANTY D | WARRANTY DEED | | | | | $2,750.00 | 0 | 3100-458073 |
Payout Agreement
| No payout information available.. |