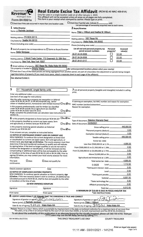
| 1 | 03/31/2021 | SWD | STATUTORY WARRANTY DEED | JACOBSEN J RACHELLE | WILBURN PETER J & HEATHER M | | 3-PARCELS | $445,000.00 | 141216 | 2021-03711 |
|   | |
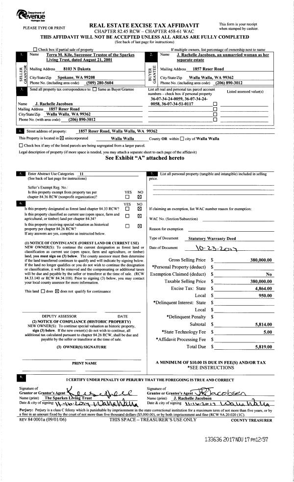
| 2 | 10/23/2017 | SWD | STATUTORY WARRANTY DEED | SPARKES LIVING TRUST | JACOBSEN J RACHELLE | | 3-PARCELS | $0.00 | 133636 | 2017-09283 |
| 3 | 05/16/2016 | QCD | QUIT CLAIM DEED | VALERIE A SPARKES LIVING TRUST | SPARKES LIVING TRUST | | | $0.00 | 130220 | 2016-03659 |
| 4 | 09/12/2014 | WARRANTY D | WARRANTY DEED | SPARKES VALERIE LIVING TRUST | VALERIE A SPARKES LIVING TRUST | | 3-PARCELS | | 126631 | 2014-06694 |
| 5 | 08/20/2012 | WARRANTY D | WARRANTY DEED | "SPARKES, VALERIE" | SPARKES VALERIE LIVING TRUST | | | | 122515 | 2012-07105 |
| 6 | 02/24/2006 | WARRANTY D | WARRANTY DEED | "BLOCK, CLARENCE E ESTATE~OF" | SPARKES VALERIE | | | | 109714 | 2006-02123 |
| 7 | 07/01/1963 | WARRANTY D | WARRANTY DEED | | | | | $300.00 | 0 | 3060-449302 |