Property
Account |
| Property ID: | 33780 | Abbreviated Legal Description: | WATERTOWN LOT 3 BLK 9 |
| Parcel Number: | 360721730903 | Agent Code: | |
| Type: | Real | | |
| Tax Area: | 1 - OL-140-F | Land Use Code | 11 |
| Open Space: | N | DFL | N |
| Historic Property: | N | Remodel Property: | N |
| Multi-Family Redevelopment: | N | | |
| Township: | 7 | Section: | 21 |
| Range: | 36 |
Location |
| Address: | 1416 OLIVE ST WA 99362 | Mapsco: | |
| Neighborhood: | A-SFR | Map ID: | |
| Neighborhood CD: | 513011 |
Owner |
| Name: | CAN YURI | Owner ID: | 62853 |
| Mailing Address: | 1416 OLIVE ST WALLA WALLA, WA 99362 | % Ownership: | 100.0000000000% |
| | | Exemptions: | |
Taxes and Assessment Details
Property Tax Information as of
02/21/2026
Click on "Statement Details" to expand or collapse a tax statement.
* Please enter a valid date ** Please enter a valid date *
Statement Details |
| | TOTAL: | $0.00 | $0.00 | $0.00 | $0.00 | $0.00 | $0.00 |
|
| | $0.00 | $0.00 | $0.00 | $0.00 | $0.00 | $0.00 |
Values
| (+) Improvement Homesite Value: | + | $0 | |
| (+) Improvement Non-Homesite Value: | + | $249,300 | |
| (+) Land Homesite Value: | + | $0 | |
| (+) Land Non-Homesite Value: | + | $46,880 | |
| (+) Curr Use (HS): | + | $0 | $0 |
| (+) Curr Use (NHS): | + | $0 | $0 |
| | | -------------------------- | |
| (=) Market Value: | = | $296,180 | |
| (–) Productivity Loss: | – | $0 | |
| | | -------------------------- | |
| (=) Subtotal: | = | $296,180 | |
| (+) Senior Appraised Value: | + | $0 | |
| (+) Non-Senior Appraised Value: | + | $296,180 | |
| | | -------------------------- | |
| (=) Total Appraised Value: | = | $296,180 | |
| (–) Senior Exemption Loss: | – | $0 | |
| (–) Exemption Loss: | – | $0 | |
| | | -------------------------- | |
| (=) Taxable Value: | = | $296,180 | |
Taxing Jurisdiction
| Owner: | CAN YURI | | |
| % Ownership: | 100.0000000000% | | |
| Total Value: | $296,180 | | |
| Tax Area: | 1 - OL-140-F |
| CERFD | CURRENT EXPENSE REFUND 010 | 0.0000000000 | $296,180 | $296,180 | $0.00 | | |
| CURREXP | CURRENT EXPENSE 010 | 1.0175366760 | $296,180 | $296,180 | $301.37 | | |
| HUMNSERV | HUMAN SERVICES 119 | 0.0250000000 | $296,180 | $296,180 | $7.40 | | |
| SLDREL | SOLDIERS RELIEF 121 | 0.0155990005 | $296,180 | $296,180 | $4.62 | | |
| EMERGSER | EMS 147 | 0.3792580840 | $296,180 | $296,180 | $112.33 | | |
| EMSRFD | EMS REFUND 147 | 0.0000000000 | $296,180 | $296,180 | $0.00 | | |
| PORTRFD | PORT REFUND 640 | 0.0000000000 | $296,180 | $296,180 | $0.00 | | |
| PORTWWGEN | PORT OF WW 640 | 0.2460186015 | $296,180 | $296,180 | $72.87 | | |
| SD140BOND | SD #140 BOND 764 | 0.8342371393 | $296,180 | $296,180 | $247.08 | | |
| SD140GEN | SD #140 GENERAL 760 | 2.0646500647 | $296,180 | $296,180 | $611.51 | | |
| ST2 | STATE SCHOOL PART 2 600 | 0.8131451643 | $296,180 | $296,180 | $240.84 | | |
| STATESCHL | STATE SCHOOL 600 | 1.5158548041 | $296,180 | $296,180 | $448.97 | | |
| STREFUND | STATE REFUND LEVY 603 | 0.0000000000 | $296,180 | $296,180 | $0.00 | | |
| CWWBOND | C OF WW BOND 643 | 0.2760494372 | $296,180 | $296,180 | $81.76 | | |
| CWWGEN | CITY OF WW 631 | 1.6100204973 | $296,180 | $296,180 | $476.86 | | |
| CWWRFD | CITY OF WALLA WALLA REFUND 631 | 0.0000000000 | $296,180 | $296,180 | $0.00 | | |
| | Total Tax Rate: | 8.7973694689 | | | | | |
| | | | | Taxes w/Current Exemptions: | $2,605.61 | | |
| | | | | Taxes w/o Exemptions: | $2,605.61 | | |
Improvement / Building
| Improvement #1: | RESIDENTIAL | State Code: | 11 | 1320.0 sqft | Value: | $249,300 |
| Exterior Wall: | PLYWOOD | Heating/Cooling: | HEAT PUMP | | Number of Bathrooms: | 2 | Number of Bedrooms: | 3 | | Plumbing: | 9 | Roof Covering: | COMP SHINGLE |
|
| | Type | Description | Class CD | Sub Class CD | Year Built | Area |
| | MA | Main Area | 2 | 30 | 1910 | 1320.0 |
| | UPFL | Upper Floor (included in main area) | 2 | 30 | 1910 | 720.0 |
| | SI1 | SITE IMPROVEMENT | 2 | 30 | 1910 | 1.0 |
| | RPO | OPEN PORCH W/ROOF | 2 | 30 | 1910 | 120.0 |
| | BLW | WOOD BALCONIES | 2 | 30 | 1910 | 120.0 |
Sketch
Property Image
Land
| 1 | RES 1 | Converted: Residential | 0.1722 | 7500.00 | 0.00 | 0.00 | 1.00 | $46,880 | $0 |
Roll Value History
| 2026 | N/A | N/A | N/A | N/A | N/A |
| 2025 | $210,820 | $75,000 | $0 | $285,820 | $285,820 |
| 2024 | $221,910 | $75,000 | $0 | $296,910 | $296,910 |
| 2023 | $249,300 | $46,880 | $0 | $296,180 | $296,180 |
| 2022 | $226,640 | $46,880 | $0 | $273,520 | $273,520 |
| 2021 | $151,090 | $46,880 | $0 | $197,970 | $197,970 |
| 2020 | $125,910 | $46,880 | $0 | $172,790 | $172,790 |
| 2019 | $125,910 | $46,880 | $0 | $172,790 | $172,790 |
| 2018 | $125,910 | $46,880 | $0 | $172,790 | $172,790 |
| 2017 | $109,200 | $30,000 | $0 | $139,200 | $139,200 |
| 2016 | $84,000 | $30,000 | $0 | $114,000 | $114,000 |
| 2015 | $84,000 | $30,000 | $0 | $114,000 | $114,000 |
| 2014 | $80,000 | $30,000 | $0 | $110,000 | $110,000 |
| 2013 | $80,000 | $30,000 | $0 | $110,000 | $110,000 |
| 2012 | $80,000 | $30,000 | $0 | $0 | $0 |
| 2011 | $74,800 | $30,000 | $0 | $0 | $0 |
| 2010 | $69,800 | $30,000 | $0 | $0 | $0 |
| 2009 | $80,900 | $30,000 | $0 | $0 | $0 |
| 2008 | $80,900 | $30,000 | $0 | $0 | $0 |
| 2007 | $80,900 | $30,000 | $0 | $0 | $0 |
Deed and Sales History
| 1 | 04/06/2018 | SWD | STATUTORY WARRANTY DEED | AVINA FERNANDO JR & JENNIFER | CAN YURI | | | $189,000.00 | 134468 | 2018-02699 |
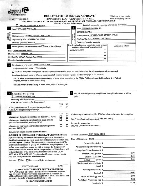
| 2 | 08/06/2012 | QCD | QUIT CLAIM DEED | AVINA, FERNANDO JR | AVINA, FERNANDO JR & JENNIFER | | | $0.00 | 122458 | 2012-06720 |
| 3 | 01/08/2007 | QCD | QUIT CLAIM DEED | AVINA-GARCIA, SARA | AVINA, FERNANDO JR | | | | 112039 | 2007-00309 |
| 4 | 04/27/2005 | WARRANTY D | WARRANTY DEED | FOSTER, BENJAMIN P & NIKKOLA | AVINA, FERNANDO JR & SARA | | | $110,000.00 | 107339 | 2005-04801 |
| 5 | 09/29/1989 | WARRANTY D | WARRANTY DEED | | | | | $49,900.00 | 0 | 1788-906223 |
Payout Agreement
| No payout information available.. |