Property
Account |
| Property ID: | 33776 | Abbreviated Legal Description: | ROBERTS TAX 3 BLK 7 |
| Parcel Number: | 360729870723 | Agent Code: | |
| Type: | Real | | |
| Tax Area: | 1 - OL-140-F | Land Use Code | 11 |
| Open Space: | N | DFL | N |
| Historic Property: | N | Remodel Property: | N |
| Multi-Family Redevelopment: | N | | |
| Township: | 7 | Section: | 29 |
| Range: | 36 |
Location |
| Address: | 383 S PALOUSE ST WA 99362 | Mapsco: | |
| Neighborhood: | G-SFR | Map ID: | |
| Neighborhood CD: | 514011 |
Owner |
| Name: | WHITESIDE ADAM R & JESSICA CM VALENTINE-WHITESIDE | Owner ID: | 58653 |
| Mailing Address: | 383 S PALOUSE ST WALLA WALLA, WA 99362 | % Ownership: | 100.0000000000% |
| | | Exemptions: | |
Taxes and Assessment Details
Values
| (+) Improvement Homesite Value: | + | $0 | |
| (+) Improvement Non-Homesite Value: | + | $359,070 | |
| (+) Land Homesite Value: | + | $0 | |
| (+) Land Non-Homesite Value: | + | $36,250 | |
| (+) Curr Use (HS): | + | $0 | $0 |
| (+) Curr Use (NHS): | + | $0 | $0 |
| | | -------------------------- | |
| (=) Market Value: | = | $395,320 | |
| (–) Productivity Loss: | – | $0 | |
| | | -------------------------- | |
| (=) Subtotal: | = | $395,320 | |
| (+) Senior Appraised Value: | + | $0 | |
| (+) Non-Senior Appraised Value: | + | $395,320 | |
| | | -------------------------- | |
| (=) Total Appraised Value: | = | $395,320 | |
| (–) Senior Exemption Loss: | – | $0 | |
| (–) Exemption Loss: | – | $0 | |
| | | -------------------------- | |
| (=) Taxable Value: | = | $395,320 | |
Taxing Jurisdiction
| Owner: | WHITESIDE ADAM R & JESSICA CM VALENTINE-WHITESIDE | | |
| % Ownership: | 100.0000000000% | | |
| Total Value: | $395,320 | | |
| Tax Area: | 1 - OL-140-F |
| CERFD | CURRENT EXPENSE REFUND 010 | 0.0000000000 | $395,320 | $395,320 | $0.00 | | |
| CURREXP | CURRENT EXPENSE 010 | 1.0175366760 | $395,320 | $395,320 | $402.25 | | |
| HUMNSERV | HUMAN SERVICES 119 | 0.0250000000 | $395,320 | $395,320 | $9.88 | | |
| SLDREL | SOLDIERS RELIEF 121 | 0.0155990005 | $395,320 | $395,320 | $6.17 | | |
| EMERGSER | EMS 147 | 0.3792580840 | $395,320 | $395,320 | $149.93 | | |
| EMSRFD | EMS REFUND 147 | 0.0000000000 | $395,320 | $395,320 | $0.00 | | |
| PORTRFD | PORT REFUND 640 | 0.0000000000 | $395,320 | $395,320 | $0.00 | | |
| PORTWWGEN | PORT OF WW 640 | 0.2460186015 | $395,320 | $395,320 | $97.26 | | |
| SD140BOND | SD #140 BOND 764 | 0.8342371393 | $395,320 | $395,320 | $329.79 | | |
| SD140GEN | SD #140 GENERAL 760 | 2.0646500647 | $395,320 | $395,320 | $816.20 | | |
| ST2 | STATE SCHOOL PART 2 600 | 0.8131451643 | $395,320 | $395,320 | $321.45 | | |
| STATESCHL | STATE SCHOOL 600 | 1.5158548041 | $395,320 | $395,320 | $599.25 | | |
| STREFUND | STATE REFUND LEVY 603 | 0.0000000000 | $395,320 | $395,320 | $0.00 | | |
| CWWBOND | C OF WW BOND 643 | 0.2760494372 | $395,320 | $395,320 | $109.13 | | |
| CWWGEN | CITY OF WW 631 | 1.6100204973 | $395,320 | $395,320 | $636.47 | | |
| CWWRFD | CITY OF WALLA WALLA REFUND 631 | 0.0000000000 | $395,320 | $395,320 | $0.00 | | |
| | Total Tax Rate: | 8.7973694689 | | | | | |
| | | | | Taxes w/Current Exemptions: | $3,477.78 | | |
| | | | | Taxes w/o Exemptions: | $3,477.78 | | |
Improvement / Building
| Improvement #1: | RESIDENTIAL | State Code: | 11 | 1684.0 sqft | Value: | $359,070 |
| Exterior Wall: | SIDING | Heating/Cooling: | WARM & COOLED AIR | | Number of Bathrooms: | 2 | Number of Bedrooms: | 4 | | Plumbing: | 10 | Roof Covering: | COMP SHINGLE |
|
| | Type | Description | Class CD | Sub Class CD | Year Built | Area |
| | MA | Main Area | 4 | 40 | 1910 | 1684.0 |
| | UPFL | Upper Floor (included in main area) | 4 | 40 | 1910 | 500.0 |
| | SI1 | SITE IMPROVEMENT | 4 | 40 | 1910 | 2.5 |
| | BASE | BASEMENT | 4 | 40 | 1910 | 168.0 |
| | WOD | Wood Deck | 4 | 40 | 1910 | 90.0 |
| | CPC | COVERED CARPORT/PATIO | 4 | 40 | 1910 | 160.0 |
| | RCD | WOOD DECK W/ROOF, CEILED | 4 | 40 | 1910 | 216.0 |
Sketch
Property Image
Land
| 1 | RES 1 | Converted: Residential | 0.1148 | 5000.00 | 0.00 | 0.00 | 1.00 | $36,250 | $0 |
Roll Value History
| 2026 | N/A | N/A | N/A | N/A | N/A |
| 2025 | $464,250 | $55,000 | $0 | $519,250 | $519,250 |
| 2024 | $464,250 | $55,000 | $0 | $519,250 | $519,250 |
| 2023 | $359,070 | $36,250 | $0 | $395,320 | $395,320 |
| 2022 | $326,430 | $36,250 | $0 | $362,680 | $362,680 |
| 2021 | $296,750 | $36,250 | $0 | $333,000 | $333,000 |
| 2020 | $228,270 | $36,250 | $0 | $264,520 | $264,520 |
| 2019 | $228,270 | $36,250 | $0 | $264,520 | $264,520 |
| 2018 | $217,400 | $36,250 | $0 | $253,650 | $253,650 |
| 2017 | $228,100 | $22,500 | $0 | $250,600 | $250,600 |
| 2016 | $228,100 | $22,500 | $0 | $250,600 | $250,600 |
| 2015 | $228,100 | $22,500 | $0 | $250,600 | $250,600 |
| 2014 | $228,100 | $22,500 | $0 | $250,600 | $250,600 |
| 2013 | $228,100 | $22,500 | $0 | $250,600 | $250,600 |
| 2012 | $228,100 | $22,500 | $0 | $0 | $0 |
| 2011 | $228,100 | $22,500 | $0 | $0 | $0 |
| 2010 | $205,300 | $22,500 | $0 | $0 | $0 |
| 2009 | $205,300 | $22,500 | $0 | $0 | $0 |
| 2008 | $175,600 | $22,500 | $0 | $0 | $0 |
| 2007 | $175,600 | $22,500 | $0 | $0 | $0 |
Deed and Sales History
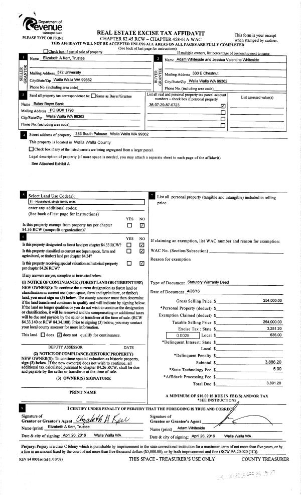
| 1 | 04/26/2016 | SWD | STATUTORY WARRANTY DEED | KERR ELIZABETH A LIVING TRUST | WHITESIDE ADAM R & JESSICA CM VALENTINE-WHITESIDE | | | $254,000.00 | 130100 | 2016-03107 |
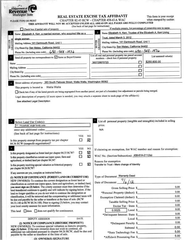
| 2 | 07/30/2012 | WARRANTY D | WARRANTY DEED | KERR, ELIZABETH A | KERR, ELIZABETH A LIVING TRUST | | | $0.00 | 122408 | 2012-06469 |
| 3 | 06/30/2009 | WARRANTY D | WARRANTY DEED | SOFIA, ULYSSES J & HEIDI J | KERR, ELIZABETH A | | | $265,000.00 | 116942 | 2009-06591 |
| 4 | 08/25/1998 | WARRANTY D | WARRANTY DEED | | | | | $138,000.00 | 91098 | 2719-809668 |
Payout Agreement
| No payout information available.. |