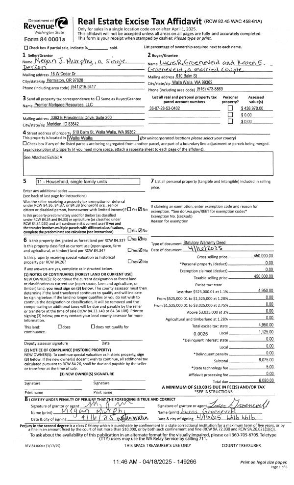
Property
Account |
| Property ID: | 33775 | Abbreviated Legal Description: | BRYANTS LOT 2 & W 25' OF LOT 3 BLK 4 |
| Parcel Number: | 360728530402 | Agent Code: | |
| Type: | Real | | |
| Tax Area: | 1 - OL-140-F | Land Use Code | 11 |
| Open Space: | N | DFL | N |
| Historic Property: | N | Remodel Property: | N |
| Multi-Family Redevelopment: | N | | |
| Township: | 7 | Section: | 28 |
| Range: | 36 |
Location |
| Address: | 610 BALM ST WA 99362 | Mapsco: | |
| Neighborhood: | A Res | Map ID: | |
| Neighborhood CD: | 613011 |
Owner |
| Name: | SUSTRICH SHAWN J & NATALIE J DEARING | Owner ID: | 70453 |
| Mailing Address: | 610 BALM ST WALLA WALLA, WA 99362 | % Ownership: | 100.0000000000% |
| | | Exemptions: | |
Taxes and Assessment Details
Property Tax Information as of
02/21/2026
Click on "Statement Details" to expand or collapse a tax statement.
* Please enter a valid date ** Please enter a valid date *
Statement Details |
| | TOTAL: | $0.00 | $0.00 | $0.00 | $0.00 | $0.00 | $0.00 |
|
| | $0.00 | $0.00 | $0.00 | $0.00 | $0.00 | $0.00 |
Values
| (+) Improvement Homesite Value: | + | $0 | |
| (+) Improvement Non-Homesite Value: | + | $361,970 | |
| (+) Land Homesite Value: | + | $0 | |
| (+) Land Non-Homesite Value: | + | $75,000 | |
| (+) Curr Use (HS): | + | $0 | $0 |
| (+) Curr Use (NHS): | + | $0 | $0 |
| | | -------------------------- | |
| (=) Market Value: | = | $436,970 | |
| (–) Productivity Loss: | – | $0 | |
| | | -------------------------- | |
| (=) Subtotal: | = | $436,970 | |
| (+) Senior Appraised Value: | + | $0 | |
| (+) Non-Senior Appraised Value: | + | $436,970 | |
| | | -------------------------- | |
| (=) Total Appraised Value: | = | $436,970 | |
| (–) Senior Exemption Loss: | – | $0 | |
| (–) Exemption Loss: | – | $0 | |
| | | -------------------------- | |
| (=) Taxable Value: | = | $436,970 | |
Taxing Jurisdiction
| Owner: | SUSTRICH SHAWN J & NATALIE J DEARING | | |
| % Ownership: | 100.0000000000% | | |
| Total Value: | $436,970 | | |
| Tax Area: | 1 - OL-140-F |
| CERFD | CURRENT EXPENSE REFUND 010 | 0.0000000000 | $436,970 | $436,970 | $0.00 | | |
| CURREXP | CURRENT EXPENSE 010 | 1.0175366760 | $436,970 | $436,970 | $444.63 | | |
| HUMNSERV | HUMAN SERVICES 119 | 0.0250000000 | $436,970 | $436,970 | $10.92 | | |
| SLDREL | SOLDIERS RELIEF 121 | 0.0155990005 | $436,970 | $436,970 | $6.82 | | |
| EMERGSER | EMS 147 | 0.3792580840 | $436,970 | $436,970 | $165.72 | | |
| EMSRFD | EMS REFUND 147 | 0.0000000000 | $436,970 | $436,970 | $0.00 | | |
| PORTRFD | PORT REFUND 640 | 0.0000000000 | $436,970 | $436,970 | $0.00 | | |
| PORTWWGEN | PORT OF WW 640 | 0.2460186015 | $436,970 | $436,970 | $107.50 | | |
| SD140BOND | SD #140 BOND 764 | 0.8342371393 | $436,970 | $436,970 | $364.54 | | |
| SD140GEN | SD #140 GENERAL 760 | 2.0646500647 | $436,970 | $436,970 | $902.19 | | |
| ST2 | STATE SCHOOL PART 2 600 | 0.8131451643 | $436,970 | $436,970 | $355.32 | | |
| STATESCHL | STATE SCHOOL 600 | 1.5158548041 | $436,970 | $436,970 | $662.38 | | |
| STREFUND | STATE REFUND LEVY 603 | 0.0000000000 | $436,970 | $436,970 | $0.00 | | |
| CWWBOND | C OF WW BOND 643 | 0.2760494372 | $436,970 | $436,970 | $120.63 | | |
| CWWGEN | CITY OF WW 631 | 1.6100204973 | $436,970 | $436,970 | $703.53 | | |
| CWWRFD | CITY OF WALLA WALLA REFUND 631 | 0.0000000000 | $436,970 | $436,970 | $0.00 | | |
| | Total Tax Rate: | 8.7973694689 | | | | | |
| | | | | Taxes w/Current Exemptions: | $3,844.18 | | |
| | | | | Taxes w/o Exemptions: | $3,844.18 | | |
Improvement / Building
| Improvement #1: | RESIDENTIAL | State Code: | 11 | 1215.0 sqft | Value: | $361,970 |
| Exterior Wall: | SIDING | Heating/Cooling: | WARM & COOLED AIR | | Number of Bathrooms: | 3 | Number of Bedrooms: | 3 | | Plumbing: | 15 | Roof Covering: | COMP SHINGLE |
|
| | Type | Description | Class CD | Sub Class CD | Year Built | Area |
| | MA | Main Area | 1 | 30 | 1883 | 1215.0 |
| | SI1 | SITE IMPROVEMENT | 1 | 30 | 1883 | 4.0 |
| | BASE | BASEMENT | 1 | 30 | 1883 | 1200.0 |
| | BPF | BASEMENT -PARTITIONED FINISH | 1 | 30 | 2020 | 1200.0 |
| | SWP | Solid Wall Porch | 1 | 30 | 1883 | 48.0 |
| | UTIL-STOR | UTILITY STORAGE | 1 | 30 | 1883 | 100.0 |
Sketch
Property Image
Land
| 1 | RES 1 | Converted: Residential | 0.2066 | 9000.00 | 0.00 | 0.00 | 1.00 | $75,000 | $0 |
Roll Value History
| 2026 | N/A | N/A | N/A | N/A | N/A |
| 2025 | $337,860 | $99,000 | $0 | $436,860 | $436,860 |
| 2024 | $361,970 | $75,000 | $0 | $436,970 | $436,970 |
| 2023 | $361,970 | $75,000 | $0 | $436,970 | $436,970 |
| 2022 | $329,060 | $65,000 | $0 | $394,060 | $394,060 |
| 2021 | $177,870 | $65,000 | $0 | $242,870 | $242,870 |
| 2020 | $17,610 | $65,000 | $0 | $82,610 | $82,610 |
| 2019 | $83,660 | $65,000 | $0 | $148,660 | $7,300 |
| 2018 | $74,240 | $46,300 | $0 | $120,540 | $7,300 |
| 2017 | $53,030 | $46,300 | $0 | $99,330 | $7,300 |
| 2016 | $50,500 | $46,300 | $0 | $96,800 | $7,300 |
| 2015 | $50,500 | $46,300 | $0 | $96,800 | $7,300 |
| 2014 | $50,500 | $46,300 | $0 | $96,800 | $7,300 |
| 2013 | $50,500 | $46,300 | $0 | $96,800 | $7,300 |
| 2012 | $61,300 | $46,300 | $0 | $0 | $0 |
| 2011 | $61,300 | $46,300 | $0 | $0 | $0 |
| 2010 | $61,300 | $46,300 | $0 | $0 | $0 |
| 2009 | $73,300 | $46,300 | $0 | $0 | $0 |
| 2008 | $73,300 | $46,300 | $0 | $0 | $0 |
| 2007 | $55,900 | $23,800 | $0 | $0 | $0 |
Deed and Sales History
| 1 | 04/18/2025 | SWD | STATUTORY WARRANTY DEED | MURPHY MEGAN J | GROENEVELD LUCAS R & KAREN E | | | $450,000.00 | 149266 | 2025-02082 |
| 2 | 06/11/2024 | SWD | STATUTORY WARRANTY DEED | SUSTRICH SHAWN J & NATALIE J DEARING | MURPHY MEGAN J | | | $439,000.00 | 147685 | 2024-03078 |
| 3 | 10/14/2021 | SWD | STATUTORY WARRANTY DEED | HAYUNGA CURTIS L & JOYCE L | SUSTRICH SHAWN J & NATALIE J DEARING | | | $400,000.00 | 142669 | 2021-12505 |
| 4 | 03/06/2020 | SWD | STATUTORY WARRANTY DEED | SUTTON DOLORES M | HAYUNGA CURTIS L & JOYCE L | | | $78,000.00 | 138757 | 2020-02111 |
| 5 | 03/06/2020 | LOPA | LACK OF PROBATE AFFIDAVIT | SUTTON ANDREW M & DOLORES M | SUTTON DOLORES M | | | $0.00 | 138756 | 2020-02110 |
| 6 | 08/28/1969 | WARRANTY D | WARRANTY DEED | | | | | $8,250.00 | 0 | 3320-503565 |
Payout Agreement
| No payout information available.. |