| 1 | 05/18/2018 | SWD | STATUTORY WARRANTY DEED | SHERRELL RYAN J & LORI E | CLEARMAN DAVID J & ELIZABETH W | | | $235,000.00 | 134742 | 2018-03949 |
| 2 | 12/11/2015 | SWD | STATUTORY WARRANTY DEED | BOLLING STEVEN R & AMANDA L | SHERRELL RYAN J & LORI E | | | $194,000.00 | 129323 | 2015-10559 |
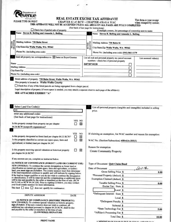
| 3 | 07/17/2012 | QCD | QUIT CLAIM DEED | BOLLING, STEVEN R | BOLLING, STEVEN R & AMANDA L | | | | 122347 | 2012-06016 |
| 4 | 03/19/2010 | WARRANTY D | WARRANTY DEED | MACE, TERRY & TRICIA K | BOLLING, STEVEN R | | | $167,000.00 | 118225 | 2010-02280 |
| 5 | 02/17/2006 | WARRANTY D | WARRANTY DEED | SECRETARY OF VETERAN AFFAIRS | MACE, TERRY & TRICIA K | | | $153,165.00 | 109685 | 2006-01925 |
| 6 | 05/23/2005 | WARRANTY D | WARRANTY DEED | MORTGAGE ELECTRONIC REGISTRATI | SECRETARY OF VETERAN AFFAIRS | | | $138,365.00 | 107549 | 2005-06168 |
| 7 | 05/23/2005 | WARRANTY D | WARRANTY DEED | NORTHWWEST TRUSTEE SERVICE | MORTGAGE ELECTRONIC REGISTRATI | | | $138,365.00 | 107548 | 2005-06167 |
| 8 | 06/03/2003 | WARRANTY D | WARRANTY DEED | TOMPKINS, MARK A & TINA G | FESLER, DAVID M | | | $150,000.00 | 102247 | 2003-08195 |
| 9 | 05/30/2001 | WARRANTY D | WARRANTY DEED | | | | | $119,900.00 | 97255 | 3130-105557 |