Property
Account |
| Property ID: | 33720 | Abbreviated Legal Description: | 35 07 36 TRACT B OF SHT PLT (ELY 50' OF TAX 8A & 7M) |
| Parcel Number: | 350736210067 | Agent Code: | |
| Type: | Real | | |
| Tax Area: | 75 - CP 250 | Land Use Code | 12 |
| Open Space: | N | DFL | N |
| Historic Property: | N | Remodel Property: | N |
| Multi-Family Redevelopment: | N | | |
| Township: | 7 | Section: | 36 |
| Range: | 35 |
Location |
| Address: | 370 SE 3RD ST WA 99324 | Mapsco: | |
| Neighborhood: | A Duplex | Map ID: | |
| Neighborhood CD: | 113031 |
Owner |
| Name: | ROBERSON ERNEST P | Owner ID: | 51962 |
| Mailing Address: | 374 SE 3RD ST COLLEGE PLACE, WA 99324 | % Ownership: | 100.0000000000% |
| | | Exemptions: | |
Taxes and Assessment Details
Property Tax Information as of
02/21/2026
Click on "Statement Details" to expand or collapse a tax statement.
* Please enter a valid date ** Please enter a valid date *
Statement Details |
| | TOTAL: | $0.00 | $0.00 | $0.00 | $0.00 | $0.00 | $0.00 |
|
| | $0.00 | $0.00 | $0.00 | $0.00 | $0.00 | $0.00 |
Values
| (+) Improvement Homesite Value: | + | $0 | |
| (+) Improvement Non-Homesite Value: | + | $350,460 | |
| (+) Land Homesite Value: | + | $0 | |
| (+) Land Non-Homesite Value: | + | $72,500 | |
| (+) Curr Use (HS): | + | $0 | $0 |
| (+) Curr Use (NHS): | + | $0 | $0 |
| | | -------------------------- | |
| (=) Market Value: | = | $422,960 | |
| (–) Productivity Loss: | – | $0 | |
| | | -------------------------- | |
| (=) Subtotal: | = | $422,960 | |
| (+) Senior Appraised Value: | + | $0 | |
| (+) Non-Senior Appraised Value: | + | $422,960 | |
| | | -------------------------- | |
| (=) Total Appraised Value: | = | $422,960 | |
| (–) Senior Exemption Loss: | – | $0 | |
| (–) Exemption Loss: | – | $0 | |
| | | -------------------------- | |
| (=) Taxable Value: | = | $422,960 | |
Taxing Jurisdiction
| Owner: | ROBERSON ERNEST P | | |
| % Ownership: | 100.0000000000% | | |
| Total Value: | $422,960 | | |
| Tax Area: | 75 - CP 250 |
| CERFD | CURRENT EXPENSE REFUND 010 | 0.0000000000 | $422,960 | $422,960 | $0.00 | | |
| CURREXP | CURRENT EXPENSE 010 | 0.9851088983 | $422,960 | $422,960 | $416.66 | | |
| HUMNSERV | HUMAN SERVICES 119 | 0.0250000000 | $422,960 | $422,960 | $10.57 | | |
| SLDREL | SOLDIERS RELIEF 121 | 0.0155990000 | $422,960 | $422,960 | $6.60 | | |
| COLLPLBOND | C OF CP BOND 644 | 0.3846009312 | $422,960 | $422,960 | $162.67 | | |
| COLLPLGEN | CITY OF CP 632 | 1.4193088888 | $422,960 | $422,960 | $600.31 | | |
| EMERGSER | EMS 147 | 0.3676811629 | $422,960 | $422,960 | $155.51 | | |
| EMSRFD | EMS REFUND 147 | 0.0000000000 | $422,960 | $422,960 | $0.00 | | |
| RLBRFD | RURAL LIBRARY REFUND 623 | 0.0000000000 | $422,960 | $0 | $0.00 | | |
| RURALLIB | RURAL LIBRARY 623 | 0.0000000000 | $422,960 | $0 | $0.00 | | |
| PORTRFD | PORT REFUND 640 | 0.0000000000 | $422,960 | $422,960 | $0.00 | | |
| PORTWWGEN | PORT OF WW 640 | 0.2344301070 | $422,960 | $422,960 | $99.15 | | |
| SD250BOND | SD #250 BOND 773 | 1.3740031235 | $422,960 | $422,960 | $581.15 | | |
| SD250GEN | SD #250 GENERAL 770 | 2.4999999988 | $422,960 | $422,960 | $1,057.40 | | |
| ST2 | STATE SCHOOL PART 2 600 | 0.8853714103 | $422,960 | $422,960 | $374.48 | | |
| STATESCHL | STATE SCHOOL 600 | 1.6424571473 | $422,960 | $422,960 | $694.69 | | |
| STREFUND | STATE REFUND LEVY 603 | 0.0000000000 | $422,960 | $422,960 | $0.00 | | |
| | Total Tax Rate: | 9.8335606681 | | | | | |
| | | | | Taxes w/Current Exemptions: | $4,159.19 | | |
| | | | | Taxes w/o Exemptions: | $4,159.19 | | |
Improvement / Building
| Improvement #1: | RESIDENTIAL | State Code: | 12 | 2160.0 sqft | Value: | $350,460 |
| Exterior Wall: | VINYL | Heating/Cooling: | WARM & COOLED AIR | | Number of Bathrooms: | 2 | Number of Bedrooms: | 4 | | Plumbing: | 12 | Roof Covering: | COMP SHINGLE |
|
| | Type | Description | Class CD | Sub Class CD | Year Built | Area |
| | MA | Main Area | 1 | 30 | 2003 | 2160.0 |
| | SI1 | SITE IMPROVEMENT | 1 | 30 | 2003 | 2.0 |
| | ATG | Attached Garage | 1 | 30 | 2003 | 520.0 |
Sketch
Property Image
Land
| 1 | RES 1 | Converted: Residential | 0.1664 | 7250.00 | 0.00 | 0.00 | 1.00 | $72,500 | $0 |
Roll Value History
| 2026 | N/A | N/A | N/A | N/A | N/A |
| 2025 | $350,460 | $72,500 | $0 | $422,960 | $422,960 |
| 2024 | $368,900 | $48,900 | $0 | $417,800 | $417,800 |
| 2023 | $366,650 | $48,940 | $0 | $415,590 | $415,590 |
| 2022 | $305,540 | $48,940 | $0 | $354,480 | $354,480 |
| 2021 | $244,430 | $48,940 | $0 | $293,370 | $293,370 |
| 2020 | $181,060 | $48,940 | $0 | $230,000 | $230,000 |
| 2019 | $186,500 | $43,500 | $0 | $230,000 | $230,000 |
| 2018 | $186,500 | $43,500 | $0 | $230,000 | $230,000 |
| 2017 | $186,500 | $43,500 | $0 | $230,000 | $230,000 |
| 2016 | $186,500 | $43,500 | $0 | $230,000 | $230,000 |
| 2015 | $186,500 | $43,500 | $0 | $230,000 | $230,000 |
| 2014 | $186,500 | $43,500 | $0 | $230,000 | $230,000 |
| 2013 | $186,500 | $43,500 | $0 | $230,000 | $230,000 |
| 2012 | $186,500 | $43,500 | $0 | $0 | $0 |
| 2011 | $186,500 | $43,500 | $0 | $0 | $0 |
| 2010 | $148,200 | $43,500 | $0 | $0 | $0 |
| 2009 | $158,300 | $43,500 | $0 | $0 | $0 |
| 2008 | $146,000 | $21,800 | $0 | $0 | $0 |
| 2007 | $146,000 | $21,800 | $0 | $0 | $0 |
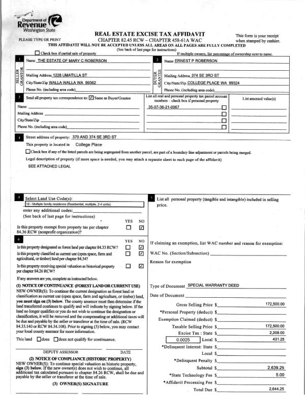
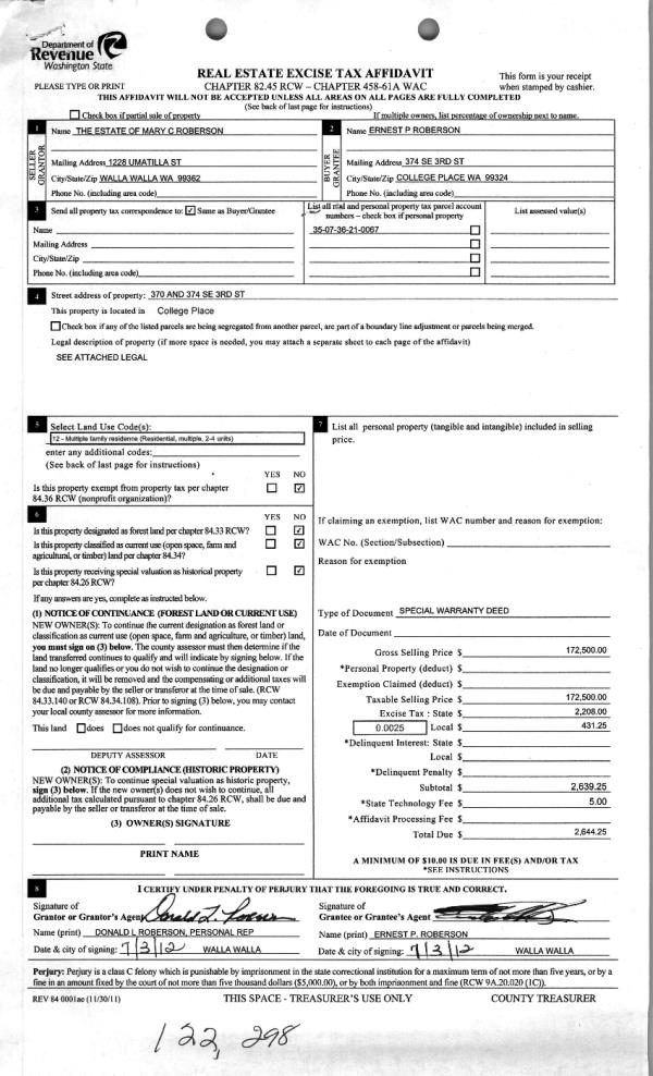
Deed and Sales History
| 1 | 11/28/2012 | WARRANTY D | WARRANTY DEED | ROBERSON, MARY C ESTATE OF | ROBERSON, ERNEST P | | | $0.00 | 123053 | 2012-10526 |
| 2 | 07/03/2012 | WARRANTY D | WARRANTY DEED | ROBERSON, MARY C ESTATE OF | ROBERSON, MARY C ESTATE OF | | | $172,500.00 | 122298 | 2012-05623 |
| 3 | 07/21/2003 | WARRANTY D | WARRANTY DEED | HAEN, SCOTT M & CARLA D | ROBERSON, MARY C | | | $168,500.00 | 102611 | 2003-10758 |
| 4 | 10/30/2002 | WARRANTY D | WARRANTY DEED | PADDOCK, ROGER E & KATHLEEN C | HAEN, SCOTT M & CARLA D | | | $46,000.00 | 100701 | 2002-12291 |
|   | |
Payout Agreement
| No payout information available.. |