Property
Account |
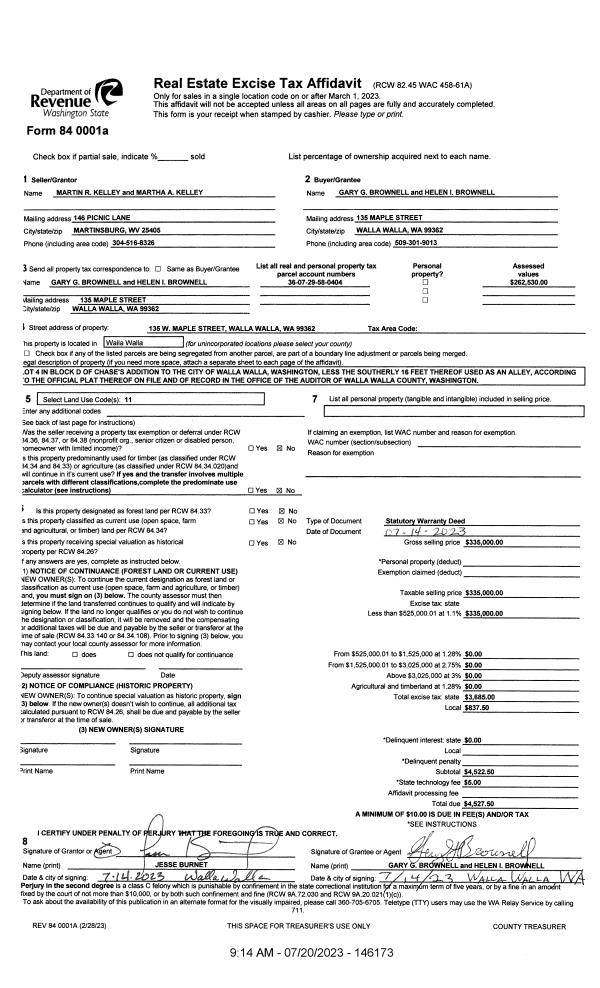
| Property ID: | 33694 | Abbreviated Legal Description: | CHASE ADDITION LOT 4 BLK 4; LESS ALLEY |
| Parcel Number: | 360729580404 | Agent Code: | |
| Type: | Real | | |
| Tax Area: | 1 - OL-140-F | Land Use Code | 11 |
| Open Space: | N | DFL | N |
| Historic Property: | N | Remodel Property: | N |
| Multi-Family Redevelopment: | N | | |
| Township: | 7 | Section: | 29 |
| Range: | 36 |
Location |
| Address: | 135 W MAPLE ST WA 99362 | Mapsco: | |
| Neighborhood: | Fair Res | Map ID: | |
| Neighborhood CD: | 612011 |
Owner |
| Name: | BROWNELL GARY G & HELEN I | Owner ID: | 73946 |
| Mailing Address: | 135 MAPLE ST WALLA WALLA, WA 99362 | % Ownership: | 100.0000000000% |
| | | Exemptions: | |
Taxes and Assessment Details
Property Tax Information as of
04/18/2026
Click on "Statement Details" to expand or collapse a tax statement.
* Please enter a valid date ** Please enter a valid date *
Statement Details |
| | TOTAL: | $0.00 | $0.00 | $0.00 | $0.00 | $0.00 | $0.00 |
|
| | $0.00 | $0.00 | $0.00 | $0.00 | $0.00 | $0.00 |
Values
| (+) Improvement Homesite Value: | + | $0 | |
| (+) Improvement Non-Homesite Value: | + | $193,150 | |
| (+) Land Homesite Value: | + | $0 | |
| (+) Land Non-Homesite Value: | + | $69,380 | |
| (+) Curr Use (HS): | + | $0 | $0 |
| (+) Curr Use (NHS): | + | $0 | $0 |
| | | -------------------------- | |
| (=) Market Value: | = | $262,530 | |
| (–) Productivity Loss: | – | $0 | |
| | | -------------------------- | |
| (=) Subtotal: | = | $262,530 | |
| (+) Senior Appraised Value: | + | $0 | |
| (+) Non-Senior Appraised Value: | + | $262,530 | |
| | | -------------------------- | |
| (=) Total Appraised Value: | = | $262,530 | |
| (–) Senior Exemption Loss: | – | $0 | |
| (–) Exemption Loss: | – | $0 | |
| | | -------------------------- | |
| (=) Taxable Value: | = | $262,530 | |
Taxing Jurisdiction
| Owner: | BROWNELL GARY G & HELEN I | | |
| % Ownership: | 100.0000000000% | | |
| Total Value: | $262,530 | | |
| Tax Area: | 1 - OL-140-F |
| CERFD | CURRENT EXPENSE REFUND 010 | 0.0000000000 | $262,530 | $262,530 | $0.00 | | |
| CURREXP | CURRENT EXPENSE 010 | 1.0175366760 | $262,530 | $262,530 | $267.13 | | |
| HUMNSERV | HUMAN SERVICES 119 | 0.0250000000 | $262,530 | $262,530 | $6.56 | | |
| SLDREL | SOLDIERS RELIEF 121 | 0.0155990005 | $262,530 | $262,530 | $4.10 | | |
| EMERGSER | EMS 147 | 0.3792580840 | $262,530 | $262,530 | $99.57 | | |
| EMSRFD | EMS REFUND 147 | 0.0000000000 | $262,530 | $262,530 | $0.00 | | |
| PORTRFD | PORT REFUND 640 | 0.0000000000 | $262,530 | $262,530 | $0.00 | | |
| PORTWWGEN | PORT OF WW 640 | 0.2460186015 | $262,530 | $262,530 | $64.59 | | |
| SD140BOND | SD #140 BOND 764 | 0.8342371393 | $262,530 | $262,530 | $219.01 | | |
| SD140GEN | SD #140 GENERAL 760 | 2.0646500647 | $262,530 | $262,530 | $542.03 | | |
| ST2 | STATE SCHOOL PART 2 600 | 0.8131451643 | $262,530 | $262,530 | $213.48 | | |
| STATESCHL | STATE SCHOOL 600 | 1.5158548041 | $262,530 | $262,530 | $397.96 | | |
| STREFUND | STATE REFUND LEVY 603 | 0.0000000000 | $262,530 | $262,530 | $0.00 | | |
| CWWBOND | C OF WW BOND 643 | 0.2760494372 | $262,530 | $262,530 | $72.47 | | |
| CWWGEN | CITY OF WW 631 | 1.6100204973 | $262,530 | $262,530 | $422.68 | | |
| CWWRFD | CITY OF WALLA WALLA REFUND 631 | 0.0000000000 | $262,530 | $262,530 | $0.00 | | |
| | Total Tax Rate: | 8.7973694689 | | | | | |
| | | | | Taxes w/Current Exemptions: | $2,309.58 | | |
| | | | | Taxes w/o Exemptions: | $2,309.58 | | |
Improvement / Building
| Improvement #1: | RESIDENTIAL | State Code: | 11 | 1092.0 sqft | Value: | $193,150 |
| Exterior Wall: | SIDING | Heating/Cooling: | HEAT PUMP | | Number of Bathrooms: | 1 | Number of Bedrooms: | 2 | | Plumbing: | 7 | Roof Covering: | METAL ROOFING |
|
| | Type | Description | Class CD | Sub Class CD | Year Built | Area |
| | MA | Main Area | 1 | 25 | 1905 | 1092.0 |
| | SI1 | SITE IMPROVEMENT | 1 | 25 | 1905 | 1.0 |
| | BASE | BASEMENT | 1 | 25 | 1905 | 788.0 |
| | BMF | BASEMENT - MIN FINISH | 1 | 25 | 1905 | 394.0 |
| | DTG | Detached Garage | 1 | 25 | 1905 | 380.0 |
| | RPO | OPEN PORCH W/ROOF | 1 | 25 | 1905 | 108.0 |
| | UTST | Utility Storage Shed | 1 | 25 | 1905 | 168.0 |
| | UTST | Utility Storage Shed | 1 | 25 | 1905 | 168.0 |
| | WOD | Wood Deck | 1 | 25 | 1905 | 40.0 |
Sketch
Property Image
Land
| 1 | RES 1 | Converted: Residential | 0.2594 | 11300.00 | 0.00 | 0.00 | 1.00 | $69,380 | $0 |
Roll Value History
| 2026 | N/A | N/A | N/A | N/A | N/A |
| 2025 | $244,260 | $87,010 | $0 | $331,270 | $331,270 |
| 2024 | $231,160 | $69,380 | $0 | $300,540 | $300,540 |
| 2023 | $193,150 | $69,380 | $0 | $262,530 | $262,530 |
| 2022 | $193,150 | $54,470 | $0 | $247,620 | $247,620 |
| 2021 | $160,960 | $54,470 | $0 | $215,430 | $215,430 |
| 2020 | $134,130 | $54,470 | $0 | $188,600 | $188,600 |
| 2019 | $134,130 | $54,470 | $0 | $188,600 | $188,600 |
| 2018 | $56,100 | $48,200 | $0 | $104,300 | $104,300 |
| 2017 | $46,750 | $48,200 | $0 | $94,950 | $94,950 |
| 2016 | $42,500 | $48,200 | $0 | $90,700 | $90,700 |
| 2015 | $42,500 | $48,200 | $0 | $90,700 | $90,700 |
| 2014 | $42,500 | $48,200 | $0 | $90,700 | $90,700 |
| 2013 | $42,500 | $48,200 | $0 | $90,700 | $90,700 |
| 2012 | $58,400 | $48,200 | $0 | $0 | $0 |
| 2011 | $58,400 | $48,200 | $0 | $0 | $0 |
| 2010 | $58,400 | $48,200 | $0 | $0 | $0 |
| 2009 | $83,400 | $48,200 | $0 | $0 | $0 |
| 2008 | $83,400 | $48,200 | $0 | $0 | $0 |
| 2007 | $55,800 | $20,400 | $0 | $0 | $0 |
Deed and Sales History
| 1 | 07/20/2023 | SWD | STATUTORY WARRANTY DEED | KELLEY MARTIN R & MARTHA A | BROWNELL GARY G & HELEN I | | | $335,000.00 | 146173 | 2023-04082 |
| 2 | 10/27/2016 | QCD | QUIT CLAIM DEED | KELLEY MARTIN | KELLEY MARTIN R & MARTHA A | | | | 131368 | 2016-09083 |
| 3 | 08/03/2012 | WARRANTY D | WARRANTY DEED | RIEHL, JACK R ESTATE OF | KELLEY, MARTIN | | | $95,200.00 | 122451 | 2012-06654 |
| 4 | 12/08/1997 | WARRANTY D | WARRANTY DEED | | | | | $73,500.00 | 89480 | 2609-711936 |
Payout Agreement
| No payout information available.. |