Property
Account |
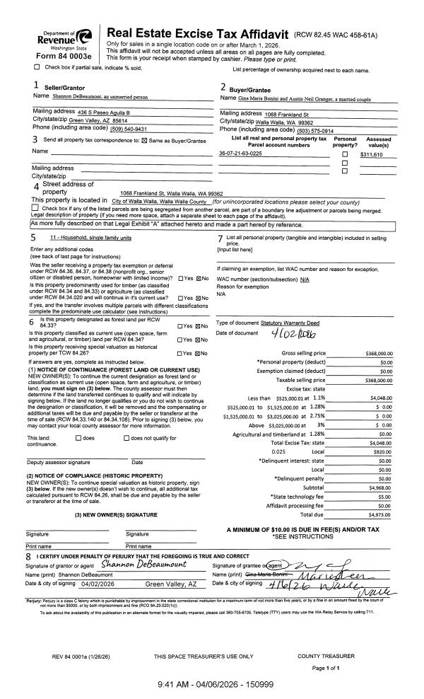
| Property ID: | 33688 | Abbreviated Legal Description: | LENNONS & WILDWOOD TAX 9 BLK 2 |
| Parcel Number: | 360721630225 | Agent Code: | |
| Type: | Real | | |
| Tax Area: | 1 - OL-140-F | Land Use Code | 11 |
| Open Space: | N | DFL | N |
| Historic Property: | N | Remodel Property: | N |
| Multi-Family Redevelopment: | N | | |
| Township: | 7 | Section: | 21 |
| Range: | 36 |
Location |
| Address: | 1068 FRANKLAND ST WA 99362 | Mapsco: | |
| Neighborhood: | G-SFR | Map ID: | |
| Neighborhood CD: | 514011 |
Owner |
| Name: | DEBEAUMONT SHANNON | Owner ID: | 59715 |
| Mailing Address: | 1068 FRANKLAND ST WALLA WALLA, WA 99362 | % Ownership: | 100.0000000000% |
| | | Exemptions: | |
Taxes and Assessment Details
Values
| (+) Improvement Homesite Value: | + | $0 | |
| (+) Improvement Non-Homesite Value: | + | $301,600 | |
| (+) Land Homesite Value: | + | $0 | |
| (+) Land Non-Homesite Value: | + | $40,240 | |
| (+) Curr Use (HS): | + | $0 | $0 |
| (+) Curr Use (NHS): | + | $0 | $0 |
| | | -------------------------- | |
| (=) Market Value: | = | $341,840 | |
| (–) Productivity Loss: | – | $0 | |
| | | -------------------------- | |
| (=) Subtotal: | = | $341,840 | |
| (+) Senior Appraised Value: | + | $0 | |
| (+) Non-Senior Appraised Value: | + | $341,840 | |
| | | -------------------------- | |
| (=) Total Appraised Value: | = | $341,840 | |
| (–) Senior Exemption Loss: | – | $0 | |
| (–) Exemption Loss: | – | $0 | |
| | | -------------------------- | |
| (=) Taxable Value: | = | $341,840 | |
Taxing Jurisdiction
| Owner: | DEBEAUMONT SHANNON | | |
| % Ownership: | 100.0000000000% | | |
| Total Value: | $341,840 | | |
| Tax Area: | 1 - OL-140-F |
| CERFD | CURRENT EXPENSE REFUND 010 | 0.0000000000 | $341,840 | $341,840 | $0.00 | | |
| CURREXP | CURRENT EXPENSE 010 | 1.0175366760 | $341,840 | $341,840 | $347.83 | | |
| HUMNSERV | HUMAN SERVICES 119 | 0.0250000000 | $341,840 | $341,840 | $8.55 | | |
| SLDREL | SOLDIERS RELIEF 121 | 0.0155990005 | $341,840 | $341,840 | $5.33 | | |
| EMERGSER | EMS 147 | 0.3792580840 | $341,840 | $341,840 | $129.65 | | |
| EMSRFD | EMS REFUND 147 | 0.0000000000 | $341,840 | $341,840 | $0.00 | | |
| PORTRFD | PORT REFUND 640 | 0.0000000000 | $341,840 | $341,840 | $0.00 | | |
| PORTWWGEN | PORT OF WW 640 | 0.2460186015 | $341,840 | $341,840 | $84.10 | | |
| SD140BOND | SD #140 BOND 764 | 0.8342371393 | $341,840 | $341,840 | $285.18 | | |
| SD140GEN | SD #140 GENERAL 760 | 2.0646500647 | $341,840 | $341,840 | $705.78 | | |
| ST2 | STATE SCHOOL PART 2 600 | 0.8131451643 | $341,840 | $341,840 | $277.97 | | |
| STATESCHL | STATE SCHOOL 600 | 1.5158548041 | $341,840 | $341,840 | $518.18 | | |
| STREFUND | STATE REFUND LEVY 603 | 0.0000000000 | $341,840 | $341,840 | $0.00 | | |
| CWWBOND | C OF WW BOND 643 | 0.2760494372 | $341,840 | $341,840 | $94.36 | | |
| CWWGEN | CITY OF WW 631 | 1.6100204973 | $341,840 | $341,840 | $550.37 | | |
| CWWRFD | CITY OF WALLA WALLA REFUND 631 | 0.0000000000 | $341,840 | $341,840 | $0.00 | | |
| | Total Tax Rate: | 8.7973694689 | | | | | |
| | | | | Taxes w/Current Exemptions: | $3,007.30 | | |
| | | | | Taxes w/o Exemptions: | $3,007.30 | | |
Improvement / Building
| Improvement #1: | RESIDENTIAL | State Code: | 11 | 1118.0 sqft | Value: | $301,600 |
| Exterior Wall: | STUCCO | Heating/Cooling: | WARM & COOLED AIR | | Number of Bathrooms: | 2 | Number of Bedrooms: | 2 | | Plumbing: | 9 | Roof Covering: | COMP SHINGLE |
|
| | Type | Description | Class CD | Sub Class CD | Year Built | Area |
| | MA | Main Area | 1 | 30 | 1940 | 1118.0 |
| | SI1 | SITE IMPROVEMENT | 1 | 30 | 1940 | 1.5 |
| | BASE | BASEMENT | 1 | 30 | 1940 | 1118.0 |
| | BPF | BASEMENT -PARTITIONED FINISH | 1 | 30 | 1940 | 600.0 |
| | DTG | Detached Garage | 1 | 30 | 1940 | 480.0 |
| | RPS | PORCH W/STEPS,ROOF | 1 | 30 | 1940 | 28.0 |
| | S1F | Single One Story Fireplace | 1 | 30 | 1940 | 1.0 |
| | CPC | COVERED CARPORT/PATIO | 1 | 30 | 1940 | 200.0 |
| | CPC | COVERED CARPORT/PATIO | 1 | 30 | 1940 | 256.0 |
Sketch
Property Image
Land
| 1 | RES 1 | Converted: Residential | 0.1274 | 5550.00 | 0.00 | 0.00 | 1.00 | $40,240 | $0 |
Roll Value History
| 2026 | N/A | N/A | N/A | N/A | N/A |
| 2025 | $250,560 | $61,050 | $0 | $311,610 | $311,610 |
| 2024 | $250,560 | $61,050 | $0 | $311,610 | $311,610 |
| 2023 | $301,600 | $40,240 | $0 | $341,840 | $341,840 |
| 2022 | $274,180 | $40,240 | $0 | $314,420 | $314,420 |
| 2021 | $210,910 | $40,240 | $0 | $251,150 | $251,150 |
| 2020 | $150,650 | $40,240 | $0 | $190,890 | $190,890 |
| 2019 | $150,650 | $40,240 | $0 | $190,890 | $190,890 |
| 2018 | $131,000 | $40,240 | $0 | $171,240 | $171,240 |
| 2017 | $143,680 | $25,000 | $0 | $168,680 | $168,680 |
| 2016 | $143,680 | $25,000 | $0 | $168,680 | $168,680 |
| 2015 | $130,620 | $25,000 | $0 | $155,620 | $155,620 |
| 2014 | $124,400 | $25,000 | $0 | $149,400 | $149,400 |
| 2013 | $124,400 | $25,000 | $0 | $149,400 | $149,400 |
| 2012 | $133,000 | $25,000 | $0 | $0 | $0 |
| 2011 | $133,000 | $25,000 | $0 | $0 | $0 |
| 2010 | $125,500 | $25,000 | $0 | $0 | $0 |
| 2009 | $142,200 | $25,000 | $0 | $0 | $0 |
| 2008 | $106,400 | $22,200 | $0 | $0 | $0 |
| 2007 | $106,400 | $22,200 | $0 | $0 | $0 |
Deed and Sales History
| 1 | 08/18/2025 | TODD | TRANSFER ON DEATH DEED | DEBEAUMONT SHANNON | | | | | 0 | 2025-04901 |
| 2 | 09/27/2016 | SWD | STATUTORY WARRANTY DEED | ZERBA CECIL & MARILYN | DEBEAUMONT SHANNON | | | $162,500.00 | 131126 | 2016-07916 |
| 3 | 06/27/2012 | WARRANTY D | WARRANTY DEED | FRANKS, KAREN I | ZERBA, CECIL & MARILYN | | | $147,000.00 | 122252 | 2012-05390 |
| 4 | 05/11/2005 | QCD | QUIT CLAIM DEED | CLARK, KAREN I | FRANKS, KAREN I | | | | 107455 | 2005-05669 |
| 5 | 08/31/1983 | WARRANTY D | WARRANTY DEED | | | | | $49,000.00 | 0 | 1398-306337 |
Payout Agreement
| No payout information available.. |