Property
Account |
| Property ID: | 33683 | Abbreviated Legal Description: | SINGLETONS SUB LOT 8 BLK 2 |
| Parcel Number: | 360729800208 | Agent Code: | |
| Type: | Real | | |
| Tax Area: | 1 - OL-140-F | Land Use Code | 11 |
| Open Space: | N | DFL | N |
| Historic Property: | N | Remodel Property: | N |
| Multi-Family Redevelopment: | N | | |
| Township: | 7 | Section: | 29 |
| Range: | 36 |
Location |
| Address: | 125 E CHESTNUT ST WA 99362 | Mapsco: | |
| Neighborhood: | A-SFR | Map ID: | |
| Neighborhood CD: | 513011 |
Owner |
| Name: | ARCHER GROUP LLC | Owner ID: | 72817 |
| Mailing Address: | 310 E CHESTNUT ST WALLA WALLA, WA 99362 | % Ownership: | 100.0000000000% |
| | | Exemptions: | |
Taxes and Assessment Details
Property Tax Information as of
02/21/2026
Click on "Statement Details" to expand or collapse a tax statement.
* Please enter a valid date ** Please enter a valid date *
Statement Details |
| | TOTAL: | $0.00 | $0.00 | $0.00 | $0.00 | $0.00 | $0.00 |
|
| | $0.00 | $0.00 | $0.00 | $0.00 | $0.00 | $0.00 |
Values
| (+) Improvement Homesite Value: | + | $0 | |
| (+) Improvement Non-Homesite Value: | + | $344,110 | |
| (+) Land Homesite Value: | + | $0 | |
| (+) Land Non-Homesite Value: | + | $34,030 | |
| (+) Curr Use (HS): | + | $0 | $0 |
| (+) Curr Use (NHS): | + | $0 | $0 |
| | | -------------------------- | |
| (=) Market Value: | = | $378,140 | |
| (–) Productivity Loss: | – | $0 | |
| | | -------------------------- | |
| (=) Subtotal: | = | $378,140 | |
| (+) Senior Appraised Value: | + | $0 | |
| (+) Non-Senior Appraised Value: | + | $378,140 | |
| | | -------------------------- | |
| (=) Total Appraised Value: | = | $378,140 | |
| (–) Senior Exemption Loss: | – | $0 | |
| (–) Exemption Loss: | – | $0 | |
| | | -------------------------- | |
| (=) Taxable Value: | = | $378,140 | |
Taxing Jurisdiction
| Owner: | ARCHER GROUP LLC | | |
| % Ownership: | 100.0000000000% | | |
| Total Value: | $378,140 | | |
| Tax Area: | 1 - OL-140-F |
| CERFD | CURRENT EXPENSE REFUND 010 | 0.0000000000 | $378,140 | $378,140 | $0.00 | | |
| CURREXP | CURRENT EXPENSE 010 | 1.0175366760 | $378,140 | $378,140 | $384.77 | | |
| HUMNSERV | HUMAN SERVICES 119 | 0.0250000000 | $378,140 | $378,140 | $9.45 | | |
| SLDREL | SOLDIERS RELIEF 121 | 0.0155990005 | $378,140 | $378,140 | $5.90 | | |
| EMERGSER | EMS 147 | 0.3792580840 | $378,140 | $378,140 | $143.41 | | |
| EMSRFD | EMS REFUND 147 | 0.0000000000 | $378,140 | $378,140 | $0.00 | | |
| PORTRFD | PORT REFUND 640 | 0.0000000000 | $378,140 | $378,140 | $0.00 | | |
| PORTWWGEN | PORT OF WW 640 | 0.2460186015 | $378,140 | $378,140 | $93.03 | | |
| SD140BOND | SD #140 BOND 764 | 0.8342371393 | $378,140 | $378,140 | $315.46 | | |
| SD140GEN | SD #140 GENERAL 760 | 2.0646500647 | $378,140 | $378,140 | $780.73 | | |
| ST2 | STATE SCHOOL PART 2 600 | 0.8131451643 | $378,140 | $378,140 | $307.48 | | |
| STATESCHL | STATE SCHOOL 600 | 1.5158548041 | $378,140 | $378,140 | $573.21 | | |
| STREFUND | STATE REFUND LEVY 603 | 0.0000000000 | $378,140 | $378,140 | $0.00 | | |
| CWWBOND | C OF WW BOND 643 | 0.2760494372 | $378,140 | $378,140 | $104.39 | | |
| CWWGEN | CITY OF WW 631 | 1.6100204973 | $378,140 | $378,140 | $608.81 | | |
| CWWRFD | CITY OF WALLA WALLA REFUND 631 | 0.0000000000 | $378,140 | $378,140 | $0.00 | | |
| | Total Tax Rate: | 8.7973694689 | | | | | |
| | | | | Taxes w/Current Exemptions: | $3,326.64 | | |
| | | | | Taxes w/o Exemptions: | $3,326.64 | | |
Improvement / Building
| Improvement #1: | RESIDENTIAL | State Code: | 11 | 1864.0 sqft | Value: | $344,110 |
| Exterior Wall: | SIDING | Heating/Cooling: | WARM & COOLED AIR | | Number of Bathrooms: | 2 | Number of Bedrooms: | 3 | | Plumbing: | 10 | Roof Covering: | COMP SHINGLE |
|
| | Type | Description | Class CD | Sub Class CD | Year Built | Area |
| | MA | Main Area | 4 | 35 | 1900 | 1864.0 |
| | UPFL | Upper Floor (included in main area) | 4 | 35 | 1900 | 676.0 |
| | SI1 | SITE IMPROVEMENT | 4 | 35 | 1900 | 2.5 |
| | OPS | OPEN PORCH W/STEPS | 4 | 35 | 1900 | 28.0 |
| | RCD | WOOD DECK W/ROOF, CEILED | 4 | 35 | 1900 | 156.0 |
Sketch
Property Image
Land
| 1 | RES 1 | Converted: Residential | 0.1250 | 5444.00 | 0.00 | 0.00 | 1.00 | $34,030 | $0 |
Roll Value History
| 2026 | N/A | N/A | N/A | N/A | N/A |
| 2025 | $356,840 | $54,440 | $0 | $411,280 | $411,280 |
| 2024 | $324,400 | $54,440 | $0 | $378,840 | $378,840 |
| 2023 | $344,110 | $34,030 | $0 | $378,140 | $378,140 |
| 2022 | $327,720 | $34,030 | $0 | $361,750 | $361,750 |
| 2021 | $234,090 | $34,030 | $0 | $268,120 | $268,120 |
| 2020 | $187,270 | $34,030 | $0 | $221,300 | $221,300 |
| 2019 | $187,270 | $34,030 | $0 | $221,300 | $221,300 |
| 2018 | $178,350 | $34,030 | $0 | $212,380 | $212,380 |
| 2017 | $206,800 | $21,800 | $0 | $228,600 | $228,600 |
| 2016 | $188,000 | $21,800 | $0 | $209,800 | $209,800 |
| 2015 | $188,000 | $21,800 | $0 | $209,800 | $209,800 |
| 2014 | $188,000 | $21,800 | $0 | $209,800 | $209,800 |
| 2013 | $188,000 | $21,800 | $0 | $209,800 | $209,800 |
| 2012 | $188,000 | $21,800 | $0 | $0 | $0 |
| 2011 | $178,000 | $21,800 | $0 | $0 | $0 |
| 2010 | $178,000 | $21,800 | $0 | $0 | $0 |
| 2009 | $200,200 | $21,800 | $0 | $0 | $0 |
| 2008 | $189,300 | $32,700 | $0 | $0 | $0 |
| 2007 | $63,000 | $10,900 | $0 | $0 | $0 |
Deed and Sales History
| 1 | 11/09/2022 | SWD | STATUTORY WARRANTY DEED | LANHAM SARA B TRUST | ARCHER GROUP LLC | | | $175,000.00 | 144993 | 2022-09032 |
| 2 | 09/21/2021 | SWD | STATUTORY WARRANTY DEED | BOSTWICK ANNA S | LANHAM SARA B TRUST | | | $374,000.00 | 142525 | 2021-11559 |
| 3 | 06/19/2019 | SWD | STATUTORY WARRANTY DEED | EDWARDS BENJAMIN | BOSTWICK ANNA S | | | $237,000.00 | 137106 | 2019-04307 |
| 4 | 05/30/2013 | QCD | QUIT CLAIM DEED | EDWARDS, DONNA | EDWARDS, BENJAMIN | | | $0.00 | 124037 | 2013-05403 |
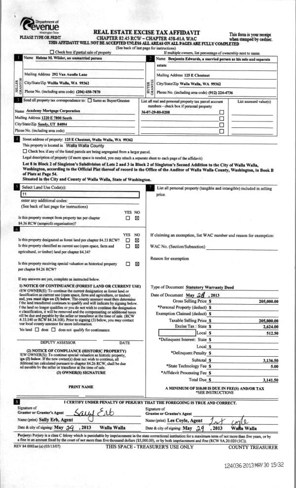
| 5 | 05/30/2013 | WARRANTY D | WARRANTY DEED | WILDER, HELENE M | EDWARDS, BENJAMIN | | | $205,000.00 | 124036 | 2013-05402 |
| 6 | 06/29/2012 | WARRANTY D | WARRANTY DEED | BAIRD, ANGELA K | WILDER, HELENE M | | | $203,000.00 | 122269 | 2012-05472 |
| 7 | 12/27/2005 | WARRANTY D | WARRANTY DEED | LOREE, DAVID E & RACHELLE M | BAIRD, ANGELA K | | | $151,700.00 | 109336 | 2005-16172 |
| 8 | 03/25/2005 | WARRANTY D | WARRANTY DEED | LEROUE, KIM A | LOREE, DAVID E & RACHELLE M | | | $80,000.00 | 107068 | 2005-03381 |
| 9 | 08/28/2003 | WARRANTY D | WARRANTY DEED | JENSEN, MICHAEL J & APRIL M | LEROUE, KIM A | | | $68,000.00 | 102874 | 2003-13008 |
| 10 | 03/24/2000 | WARRANTY D | WARRANTY DEED | | | | | $66,000.00 | 94767 | 2960-002864 |
Payout Agreement
| No payout information available.. |